Indicates properties built or renovated this year or last year.
Masukan Judul
0 / 1000
Showing 1341-1360 of 1.400 properties


KOST DIJUAL JOGJA EKSKLUSIF 14 KAMAR DEKAT UGM JCM TUGU MALIOBORO Kost dijual jogja eksklusif terdiri...

DIJUAL CEPAT KOST DAN RUMAH INDUK DEKAT KAMPUS UGM JOGJA Lokasi Jl. Nyi Tjondrolukito, Kutu Dukuh,...

DIJUAL KOST EXCLUSIVE MEWAH FULLY FURNISHED DEKAT KAMPUS UII JAKAL Lokasi: 3 Menit ke Kampus UII...

KOST EXCLUSIVE FULL FURNISHED JAKAL CONDONGCATUR DEKAT KAMPUS UGM Konsep Mezzanine Ada Balkon dan...

For sale: Exclusive 12-bedroom boarding house inside the ring road 4 minutes to UGM Located in an...

RUMAH KOST DIJUAL JOGJA 9 KAMAR 2 LANTAI SENDANGADI DEKAT UGM Kondisi kos dari tahun 2020 smpai dengan...

KOST RUMAH INDUK DIJUAL BABARSARI FULL PENGHUNI DEKAT KAMPUS Kost & rumah induk dijual di Jogja,...

KOST EKSKLUSIVE FULL FURNISHED JAKAL DEKAT KAMPUS UGM POTENSI ROI 11% + Lokasi : Jalan raya kaliurang...

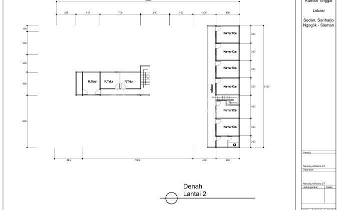
KOS EKSKLUSIF PROSES BANGUN DEKAT KAMPUS UGM JL. KALIURANG KM. 7,5 BANTENG NGAGLIK SLEMAN Dekat dengan...

Limited opportunity for you to own a strategic boarding house with high investment returns in Depok,...

**AFFORDABLE EXCLUSIVE BOARDING HOUSE FULLY FURNISHED NEAR UGM CAMPUS, MEZZANINE MODEL, JL. MONJALI**...

**Exclusive Boarding House - Affordable Construction Process Near UGM & UII Campuses, Jl. Kaliurang...

Boarding House in Kaliurang, Sleman. For sale in a comfortable area. The specifications are as follows:...

Boarding House in Kaliurang, Sleman. For sale in a peaceful area. The specifications are as follows:...

Limited opportunity for you to acquire a comfortable boarding house with high investment returns...

Limited opportunity for you to acquire a strategic boarding house with high investment returns in...

FOR SALE 14-ROOM BOARDING HOUSE AT JAKAL KM 4.5 CATURTUNGGAL NEAR UGM CAMPUS Walkable to UGM Campus...

NEW KOS FOR SALE BEHIND UII CAMPUS KALIURANG, JOGJA *Land Area 91 ㎡; Building Area 130 ㎡* *7 Exclusive...

For Sale: Under Construction Exclusive Boarding House with 10 Rooms, Condongcatur Near UPN, Amikom,...

FOR SALE: BOARDING HOUSE & MAIN HOUSE LOCATION: MONJALI, PALAGAN STREET Land area 660 m2 Boarding...

Apakah Anda akan melewati rekomendasi?
Tidak perlu khawatir Anda masih akan mendapatkan rekomendasi properti dalam 1 x 24 jam
Beritahu Kami mengapa alasan Anda tidak ingin melihat rekomendasi lagi?
Tunggu Agen akan menghubungi Anda
Tunggu Agen akan menghubungi Anda
Kamu akan dihubungi oleh tim Rumah123 untuk konsultasi seputar KPR
Property Price
Down Payment