Menandakan properti yang dibangun atau direnovasi di tahun ini atau tahun lalu.
Masukan Judul
0 / 1000
Menampilkan 781-800 dari total 850 properti


Rumah dibawah harga pasaran di wisata bukut mas ini memiliki dimensi lebar 6x13 dilengkapi dengan...

SUPER MURAH‼️‼️ Dijual Rumah dibawah Modal waktu beli 2014 Seperti Baru, Dari Baru tdk terpakai di...

LT : 240 m2 ( 12 x 20 ) LB : 250 m2 KT : 4 + 1 KM : 3 + 1 Hadap Utara 4400 watt SHM MURAH‼️ RP.4.000.000.000...

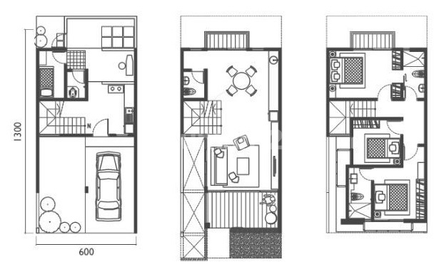
SIAP HUNI Dijual Rumah Minimalis 2 Lt Wisata Bukit Mas II Cluster Du louvre Spesifikasi : LT : 180m2...

*SUPER MURAH 1 Milyar-an SPESIAL Lokasi Bisa parkir 4 Mobil, Dalam Rumah 2 Mobil, disamping Rumah...

Wisata Bukit Mas - Cluster Alexandria Spesifikasi : - Luas tanah 240 m (12x20) - Luas bangunan 340...

-Dijual Rumah Wisata Bukit Mas - Cluster Alexandria, Wiyung Surabaya Spesifikasi : - Luas Tanah 240m2...

*SIAP HUNI* Dijual Rumah Minimalis 2 Lt Wisata Bukit Mas Cluster Du louvre LT : 180 m² (9x20) LB...

Rumah Siap Huni Wisata Bukit Mas LT 200 (10×20) LB 170 (2lantai) 3+1KT 3+1KM SHM Selatan Full Furnish...

SIAP HUNI – HARGA TURUN 300 JUTA!! Rumah Minimalis 2 Lantai – Cluster Du Louvre, Wisata Bukit Mas...

WISATA BUKIT MAS cluster Du Louvre - LT. 180 m2 (9x20) - LB. 240 m2 - 2lt - KT. 4+1 - KM. 3+1 - hadap...

Jual Rumah Wisata Bukit Mas Jalan Utama Luar Cluster Double Way *Dijual WBM Luar Cluster Double Way*...

Minimalis Siap Huni Semi Furnished Baru Du Louvre Wisata Bukit Mas LT 180 (9x20) LB 240 KT. 4+1 /...

BUYER ONLY ‼️turun hargaaa Cluster De lourve LT 180 (9x20) • LB 240 KT. 4+1 / KM. 3+1 hadap utara...

Dijual rumah baguuusss SHM @ WISATA BUKIT MAS ------------------------------ Semi Furnished Sudah...

*MURAH BGT LOH* Wisata bukit mas 2M an luas 200 Wbm 2 royal palais Luas tanah 200 (10x20) Luas bangunan...

REVISI TURUN HARGA LAGI, HARUS LAKU BULAN INI Wisata Bukit Mas Venetian LT: 240m2 (12x20) LB: 320m2...

Dijual rumah WISATA BUKIT MAS LT. 180m² (9x20) LB. 240 (2lt) KT. 4+1 KM. 3+1 Hadap utara SHM Semi...

*DIJUAL Rumah Wisata Bukit Mas Dekat Fasum taman bermain & lapangan Tennis*‼️ _master bedroom ada...

Rumah di Wisata Bukit Mas. Temukan rumah 2 lantai yang asri ini, dijual dengan pemandangan indah...

Apakah Anda akan melewati rekomendasi?
Tidak perlu khawatir Anda masih akan mendapatkan rekomendasi properti dalam 1 x 24 jam
Beritahu Kami mengapa alasan Anda tidak ingin melihat rekomendasi lagi?
Tunggu Agen akan menghubungi Anda
Tunggu Agen akan menghubungi Anda
Kamu akan dihubungi oleh tim Rumah123 untuk konsultasi seputar KPR
Harga Properti
Uang Muka