Murah Disewakan Ex Kantor Showroom Jl Raya Hr Muhammad, Surabaya Barat
HR Muhammad, Surabaya
(Renter Only, No cobroking) Murah Disewakan Ex Kantor Showroom Jalan Raya HR Muhammad, Surabaya Barat...

Diperbarui 11 jam yang lalu oleh
Daud Imanuel Sandy Illu

Ciputra World Office Tower, bare condition, di Surabaya Barat
HR Muhammad, Surabaya
Ciputra World Office Tower, di Jl. Mayjend Sungkono 87-89, Surabaya Barat Lantai : 26 Luas. : 70m2...

Diperbarui 3 hari yang lalu oleh
Noni Karyanto

office space 70m2 di Ciputra World Office Tower, Surabaya
HR Muhammad, Surabaya
RENT Office Space at 26th floor, Ciputra World Jl Mayjen Sungkono, Surabaya RENT bare condition RENT...

Diperbarui 3 hari yang lalu oleh
Noni Karyanto

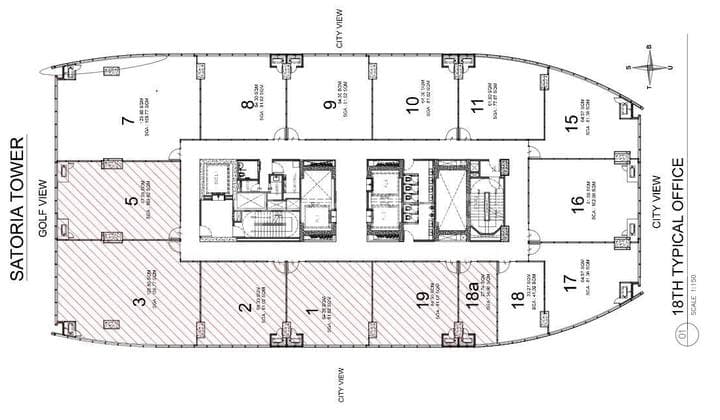
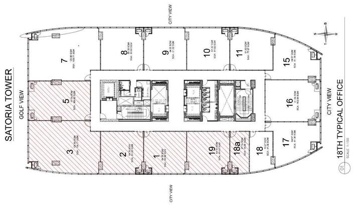
Kantor Hr Muhammad Surabaya Murah Rik.nw192
HR Muhammad, Surabaya
Unit Kantor di Satoria Office tower GOLF VIEW Office premium dikelilingi padang golf Bukit Darmo...

Diperbarui 1 minggu yang lalu oleh
Angelina Untung


Gedung Kantor Jl Raya Hr Muhammad Siap Pakai, Strategis, Sangat Cocok untuk Showroom
HR Muhammad, Surabaya
Disewakan Gedung Kantor JL Raya Hr Muhammad Siap Pakai, Strategis, sangat cocok untuk Showroom Dibagian...
Diperbarui 2 minggu yang lalu oleh
property base.id
Independen
KANTOR + GUDANG AREA HR MUHAMMAD 0 JALAN RAYA DISEWAKAN
HR Muhammad, Surabaya
Kantor di HR Muhammad, Surabaya. Disewakan di wilayah yang nyaman. Dengan kategorinya adalah sebagai...

Diperbarui 5 bulan yang lalu oleh
Michael Halim







