Mengenal Perbedaan Site Plan dan Block Plan Disertai Contohnya
Terakhir diperbarui 02 Desember 2024 · 4 min read · by Ilham Budhiman

Saat memasarkan proyek perumahan baru, biasanya developer melengkapi brosur dengan gambar site plan dan block plan. Lalu, apa perbedaan site plan dan block plan?
Sederhananya, site plan dan block plan memberikan gambaran kawasan perumahan yang sedang dijual. Dengan melihatnya, Anda dapat memilih unit dengan posisi yang diinginkan.
Site plan dan block plan bukan hanya berguna untuk konsumen yang ingin membeli rumah, tetapi juga sangat penting bagi developer dalam proses pembangunan perumahan.
Pasalnya, site plan memperlihatkan detail pembangunan dan semua unsur penunjang dalam kawasan. Sementara itu, block plan adalah rencana tata ruang terkait pemanfaatan area suatu wilayah.
Nah, supaya lebih jelas tentang perbedaan blok plan dan site plan ini, mari kita simak penjelasan di bawah, dimulai dari pengertian hingga contohnya.
Daftar Isi Artikel:
Pengertian Site Plan dan Block Plan

Foto: Wikimedia
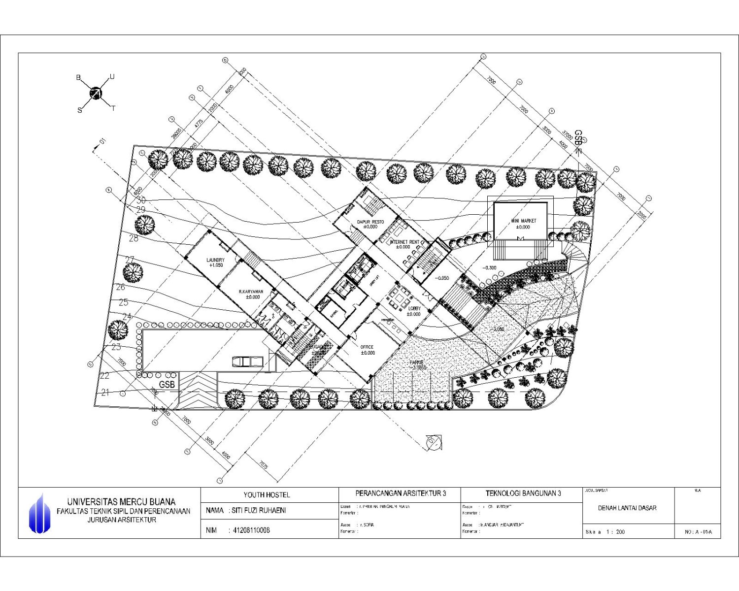
Apa Itu Site Plan?
Pengertian site plan adalah gambar dua dimensi yang menggambarkan secara detail perencanaan pengembangan suatu kawasan perumahan, termasuk:
- tata letak;
- detail bangunan;
- rute jalan;
- ruang terbuka; dan
- elemen lainnya.
Site plan memberikan gambaran secara menyeluruh. Melalui gambar dua dimensi ini, kita dapat melihat beberapa hal seperti
- akses ruang dari tapak,
- perletakan ruang dan hubungannya dengan ruang lain, serta
- view yang didapat dari setiap ruang.
Apa Itu Block Plan?
Blok plan adalah gambar dua dimensi yang menunjukkan rencana tata ruang meliputi lokasi dan penempatan blok-blok bangunan dalam suatu kawasan.
Hal tersebut juga termasuk pada fasilitas pendukung, misalnya, rencana jalan, listrik, utilitas air bersih dan air kotor, hingga fasilitas umum dan sosial.
Blokplan umumnya menunjukkan denah area, posisi bangunan, dan hubungan antar blok, seperti jalan dan taman. Selain itu memuat informasi tentang
- keterangan skala;
- keterangan gambar;
- nama setiap jalan;
- arah jalur lalu lintas;
- arah mata angin;
- vegetasi;
- perletakan nama bangunan; dan
- nama pintu masuk.
Syarat Membuat Block Plan
Rupanya, membuat site plan dan block plan proyek perumahan tak boleh asal-asalan. Namun harus sesuai dengan serangkaian persyaratan khusus.
Gambar dua dimensi ini harus menunjukkan arah utara, serta sebaiknya harus ditarik ke skala metrik standar yang ditentukan. Nah, biasanya skala berada pada 1:100, 1:200, dan 1:500.
Gambar site plan dan gambar block plan juga harus menunjukkan batas-batas proyek serta bangunan lain yang terletak di perbatasan tersebut.
Perbedaan Site Plan dan Block Plan

Foto: Arsitag
Setelah mengetahui block plan dan site plan artinya serta syarat pembuatannya, mari kita merangkum perbedaan gambar dua dimensi ini.
Site Plan
- Menggambarkan tata letak bangunan, sarana dan prasarana pendukung.
- Biasanya dibuat untuk lahan seluas kurang dari 50 hektare.
- Wajib mengajukan site plan setelah pengembang memiliki izin pemanfaatan ruang, izin lokasi, dan izin teknis lainnya.
- Memiliki luasan gambar yang didasari kepemilikan lahan pada saat diajukan.
- Dibuat sebelum melaksanakan pembangunan fisik.
- Site plan memiliki bentuk yang lebih detail dari master plan.
Block Plan
- Block plan menjabarkan wujud ruang fungsional dari rencana setiap kawasan.
- Dalam block plan perlu menyertakan struktur batas yang diusulkan termasuk dinding dan pagar.
- Block plan bermanfaat sebagai perencanaan pembangunan lebih detail.
- Block plan menjadi syarat memperoleh Izin Mendirikan Bangunan (IMB).
- Block plan dapat berguna sebagai kontrol proses pembangunan.
Jika dirangkum dalam tabel, ada tiga aspek yang membedakan site plan dan block plan, yaitu sebagai berikut.
| Site Plan | Block Plan | |
|---|---|---|
| Cakupan | Mencakup seluruh area proyek | Mencakup area blok tertentu |
| Detail | Menunjukkan detail bangunan dan elemen lainnya | Menunjukkan penempatan blok dan hubungan antar blok |
| Fungsi | Memberikan gambaran desain keseluruhan | Membantu dalam pemilihan lokasi unit |
Biasanya, selain site plan dan block plan, developer juga menunjukkan denah pada brosur pemasaran rumah.
Lantas, apa itu denah? Yuk, kita simak jawabannya!
Mengenal Apa Itu Denah
Untuk diketahui, selain site plan dan block plan, ada pula denah yang merupakan visualisasi tampak atas dari bangunan.
Visualisasi denah biasanya dipotong secara horizontal dengan ketinggian 1 meter dari titik 0.00, yang ditentukan oleh arsitek.
Umumnya gambar denah bangunan sering dijumpai di brosur-brosur properti, yaitu bagian dinding yang terpotong dengan diblok berwarna hitam.
Sementara, kolom lainnya diberi warna putih atau warna lain sebagai pembeda.
Nah, setelah mengulas pengertian dan perbedaan site plan dan block plan, berikut contoh gambar site plan dan contoh gambar block plan yang bisa Anda perhatikan.
Contoh Site Plan dan Block Plan
Contoh Site Plan
Foto: Arsitag
Contoh Block Plan
Foto: Arsitag
Demikian perbedaan site plan dan block plan yang penting untuk diketahui. Bila kurang mengerti melihat visualisasinya, berikut tips membaca keduanya.
Tips Membaca Site Plan dan Block Plan
- Perhatikan skala gambar dan legenda untuk memahami informasi dengan benar.
- Identifikasi lokasi bangunan yang Anda minati dan perhatikan aksesnya.
- Perhatikan fasilitas-fasilitas yang tersedia di area perumahan.
- Bandingkan site plan dan block plan dari beberapa developer untuk mendapatkan pilihan terbaik.
Demikian informasi mengenai perbedaan site plan dan block plan dari Rumah123.
Semoga ulasan di atas bermanfaat.
Punya pertanyaan lain?
Ngobrolin properti di Teras123 sekarang juga!



