
Pilihan denah rumah 4 kamar mesti Anda ketahui jika ingin membangun hunian untuk keluarga dengan jumlah anggota 4-5 orang.
Ya, dibandingkan dengan denah rumah lainnya, hunian dengan 4 kamar akan lebih pas untuk keluarga yang anggotanya cukup banyak.
Denahnya pun bisa dibuat bervariasi. Misalnya, semua kamar tidur ditempatkan di lantai bawah. Artinya, rumahnya hanya terdiri dari 1 lantai.
Atau, beberapa kamar tidur dapat ditempatkan di lantai kedua jadi rumahnya bisa dirancang memiliki 2-3 lantai.
Ingin mengetahui contoh denah rumahnya? Anda bisa melihat beberapa gambarnya di bawah ini, ya.
Denah Rumah 4 Kamar Tipe T9 di Eonna

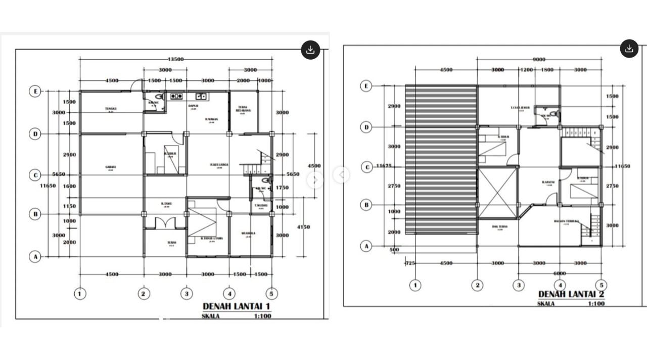
Contoh denah rumah yang pertama ini memiliki empat kamar tidur di beberapa lantai berbeda.
Di lantai pertama, terdapat satu kamar tidur yang berada di samping ruang tamu.
Sementara itu, tiga kamar lainnya di Eonna BSD ditempatkan di lantai atas.
Dengan begitu, kamar tidur di lantai bawah bisa ditempati oleh orangtua, sementara lantai atas ditempati oleh anak-anak.
{"attributes":{"type":"udp","pdp_id":["nps3172"],"custom_title":"Detail Rumah Eonna"},"pdp":{"data":{"GetPropertiesByOriginID":{"properties":[{"uuid":"109659fb-d272-4e65-8a79-694868e642df","agent":{"organization":{"uuid":"375c5096-65af-459d-9acc-d55cb2dd2ab8","name":"Sinar Mas Land","medias":[{"mediaType":"REGULAR","mediaInfo":[{"mediaUrl":"https:\/\/pic.rumah123.com\/r123\/250x250-fit\/developer\/logo\/developer-logo-sinar-mas-land-01-1600160450.jpg","thumbnailUrl":"https:\/\/pic.rumah123.com\/r123\/250x160-fit\/developer\/logo\/developer-logo-sinar-mas-land-01-1600160450.jpg","formatUrl":"https:\/\/pic.rumah123.com\/r123\/{width}x{height}-{scale}\/developer\/logo\/developer-logo-sinar-mas-land-01-1600160450.jpg","order":0}]}],"contacts":[{"contactType":1,"type":"EMAIL","value":"evergreen@99.co"},{"contactType":3,"type":"WHATSAPP","value":"+6281288336230"},{"contactType":2,"type":"PHONE_NUMBER","value":"+628128617820"}],"url":"\/properti-baru\/developer\/sinar-mas-land\/1142\/"}},"location":{"uuid":"d5a79deb-3763-4fb5-a0ff-d78359281f66","level":0,"name":"Bsd City","locationType":0,"text":"BSD City, Tangerang"},"originId":{"value":"nps3172","formattedValue":"nps3172"},"price":{"minValue":5424908000,"maxValue":10882299000,"currencyType":360,"display":"Rp 5,42 Miliar - 10,8 Miliar","offer":5424908000,"unitType":0,"subDisplay":""},"title":"Eonna, BSD City","medias":[{"mediaType":"YOUTUBE","mediaInfo":[{"mediaUrl":"https:\/\/www.youtube.com\/watch?v=P4Drdu6r2Us","thumbnailUrl":"https:\/\/www.youtube.com\/watch?v=P4Drdu6r2Us","formatUrl":"https:\/\/www.youtube.com\/watch?v=P4Drdu6r2Us","order":0}]},{"mediaType":"FACILITY","mediaInfo":[{"mediaUrl":"https:\/\/pic.rumah123.com\/r123\/1080x720-fit\/","thumbnailUrl":"https:\/\/pic.rumah123.com\/r123\/250x160-fit\/","formatUrl":"https:\/\/pic.rumah123.com\/r123\/{width}x{height}-{scale}\/","order":1},{"mediaUrl":"https:\/\/pic.rumah123.com\/r123\/1080x720-fit\/","thumbnailUrl":"https:\/\/pic.rumah123.com\/r123\/250x160-fit\/","formatUrl":"https:\/\/pic.rumah123.com\/r123\/{width}x{height}-{scale}\/","order":2},{"mediaUrl":"https:\/\/pic.rumah123.com\/r123\/1080x720-fit\/","thumbnailUrl":"https:\/\/pic.rumah123.com\/r123\/250x160-fit\/","formatUrl":"https:\/\/pic.rumah123.com\/r123\/{width}x{height}-{scale}\/","order":3},{"mediaUrl":"https:\/\/pic.rumah123.com\/r123\/1080x720-fit\/","thumbnailUrl":"https:\/\/pic.rumah123.com\/r123\/250x160-fit\/","formatUrl":"https:\/\/pic.rumah123.com\/r123\/{width}x{height}-{scale}\/","order":4},{"mediaUrl":"https:\/\/pic.rumah123.com\/r123\/1080x720-fit\/","thumbnailUrl":"https:\/\/pic.rumah123.com\/r123\/250x160-fit\/","formatUrl":"https:\/\/pic.rumah123.com\/r123\/{width}x{height}-{scale}\/","order":5}]},{"mediaType":"BROCHURE","mediaInfo":[{"mediaUrl":"","thumbnailUrl":"https:\/\/core-asset-manager.rumah123.com\/prod\/r123\/document\/060ea9dd1c8015bad89ec838bf9df436.pdf","formatUrl":null,"order":0}]},{"mediaType":"BACKGROUND","mediaInfo":[{"mediaUrl":"https:\/\/pic.rumah123.com\/r123\/1080x720-fit\/primary_property\/project\/3172\/1685504067_6476c0439c8a5ads_images_3172.jpg","thumbnailUrl":"https:\/\/pic.rumah123.com\/r123\/250x160-fit\/primary_property\/project\/3172\/1685504067_6476c0439c8a5ads_images_3172.jpg","formatUrl":"https:\/\/pic.rumah123.com\/r123\/{width}x{height}-{scale}\/primary_property\/project\/3172\/1685504067_6476c0439c8a5ads_images_3172.jpg","order":0},{"mediaUrl":"https:\/\/pic.rumah123.com\/r123\/1080x720-fit\/primary_property\/project\/3172\/1685504096_6476c06030ad6ads_images_3172.jpg","thumbnailUrl":"https:\/\/pic.rumah123.com\/r123\/250x160-fit\/primary_property\/project\/3172\/1685504096_6476c06030ad6ads_images_3172.jpg","formatUrl":"https:\/\/pic.rumah123.com\/r123\/{width}x{height}-{scale}\/primary_property\/project\/3172\/1685504096_6476c06030ad6ads_images_3172.jpg","order":2},{"mediaUrl":"https:\/\/pic.rumah123.com\/r123\/1080x720-fit\/primary_property\/project\/3172\/1685504110_6476c06e0cc81ads_images_3172.jpg","thumbnailUrl":"https:\/\/pic.rumah123.com\/r123\/250x160-fit\/primary_property\/project\/3172\/1685504110_6476c06e0cc81ads_images_3172.jpg","formatUrl":"https:\/\/pic.rumah123.com\/r123\/{width}x{height}-{scale}\/primary_property\/project\/3172\/1685504110_6476c06e0cc81ads_images_3172.jpg","order":3},{"mediaUrl":"https:\/\/pic.rumah123.com\/r123\/1080x720-fit\/primary_property\/project\/3172\/1685504150_6476c0969bff0ads_images_3172.jpg","thumbnailUrl":"https:\/\/pic.rumah123.com\/r123\/250x160-fit\/primary_property\/project\/3172\/1685504150_6476c0969bff0ads_images_3172.jpg","formatUrl":"https:\/\/pic.rumah123.com\/r123\/{width}x{height}-{scale}\/primary_property\/project\/3172\/1685504150_6476c0969bff0ads_images_3172.jpg","order":4}]},{"mediaType":"LOGO","mediaInfo":[{"mediaUrl":"https:\/\/picture.rumah123.com\/original\/r123\/primary_property\/project\/3172\/1707096828_65c03afc22287ads_logo_3172.jpg","thumbnailUrl":"https:\/\/picture.rumah123.com\/original\/r123\/primary_property\/project\/3172\/1707096828_65c03afc22287ads_logo_3172.jpg","formatUrl":"https:\/\/picture.rumah123.com\/original\/r123\/primary_property\/project\/3172\/1707096828_65c03afc22287ads_logo_3172.jpg","order":0}]},{"mediaType":"COVER","mediaInfo":[{"mediaUrl":"https:\/\/pic.rumah123.com\/r123\/1080x720-fit\/primary_property\/project\/3172\/1685504067_6476c0439c8a5ads_images_3172.jpg","thumbnailUrl":"https:\/\/pic.rumah123.com\/r123\/250x160-fit\/primary_property\/project\/3172\/1685504067_6476c0439c8a5ads_images_3172.jpg","formatUrl":"https:\/\/pic.rumah123.com\/r123\/{width}x{height}-{scale}\/primary_property\/project\/3172\/1685504067_6476c0439c8a5ads_images_3172.jpg","order":0}]},{"mediaType":"SITEPLAN","mediaInfo":[{"mediaUrl":"https:\/\/pic.rumah123.com\/r123\/1080x720-fit\/primary_property\/project\/3172\/1685699825_siteplan_3172.jpg","thumbnailUrl":"https:\/\/pic.rumah123.com\/r123\/250x160-fit\/primary_property\/project\/3172\/1685699825_siteplan_3172.jpg","formatUrl":"https:\/\/pic.rumah123.com\/r123\/{width}x{height}-{scale}\/primary_property\/project\/3172\/1685699825_siteplan_3172.jpg","order":0}]}],"primaryProject":{"subUnits":[{"name":"Elyon","properties":[{"title":"Tipe T8","description":" ","uuid":"e5103ba2-fd5a-41cd-9419-6bc8a1526524","medias":[{"mediaType":"COVER","mediaInfo":[{"mediaUrl":"https:\/\/picture.rumah123.com\/r123-images\/1080x720-fit\/customer\/1917985\/5b404446db014a772f3772195acf7c51.jpg","thumbnailUrl":"https:\/\/picture.rumah123.com\/r123-images\/250x160-fit\/customer\/1917985\/5b404446db014a772f3772195acf7c51.jpg","formatUrl":"https:\/\/picture.rumah123.com\/r123-images\/{width}x{height}-{scale}\/customer\/1917985\/5b404446db014a772f3772195acf7c51.jpg","order":0}]},{"mediaType":"REGULAR","mediaInfo":[{"mediaUrl":"https:\/\/picture.rumah123.com\/r123-images\/1080x720-fit\/customer\/1917985\/c24d8ba27b834add26b1b82e1eacdcd7.jpg","thumbnailUrl":"https:\/\/picture.rumah123.com\/r123-images\/250x160-fit\/customer\/1917985\/c24d8ba27b834add26b1b82e1eacdcd7.jpg","formatUrl":"https:\/\/picture.rumah123.com\/r123-images\/{width}x{height}-{scale}\/customer\/1917985\/c24d8ba27b834add26b1b82e1eacdcd7.jpg","order":1},{"mediaUrl":"https:\/\/picture.rumah123.com\/r123-images\/1080x720-fit\/customer\/1917985\/fe6e824a12eefb6bdecc6a94042f4839.jpg","thumbnailUrl":"https:\/\/picture.rumah123.com\/r123-images\/250x160-fit\/customer\/1917985\/fe6e824a12eefb6bdecc6a94042f4839.jpg","formatUrl":"https:\/\/picture.rumah123.com\/r123-images\/{width}x{height}-{scale}\/customer\/1917985\/fe6e824a12eefb6bdecc6a94042f4839.jpg","order":2}]},{"mediaType":"SITEPLAN","mediaInfo":[{"mediaUrl":"https:\/\/picture.rumah123.com\/r123-images\/1080x720-fit\/customer\/1917985\/fd0a84c90b68b624433bd81248ce2099.jpg","thumbnailUrl":"https:\/\/picture.rumah123.com\/r123-images\/250x160-fit\/customer\/1917985\/fd0a84c90b68b624433bd81248ce2099.jpg","formatUrl":"https:\/\/picture.rumah123.com\/r123-images\/{width}x{height}-{scale}\/customer\/1917985\/fd0a84c90b68b624433bd81248ce2099.jpg","order":0}]}],"attributes":{"landSize":{"name":"landSize","label":"Luas Tanah","value":"128","formattedValue":"128 m\u00b2"},"buildingSize":{"name":"buildingSize","label":"Luas Bangunan","value":"189","formattedValue":"189 m\u00b2"},"bedrooms":{"name":"bedrooms","label":"Kamar","value":"6","formattedValue":"6"},"bathrooms":{"name":"bathrooms","label":"Kamar Mandi","value":"5","formattedValue":"5"},"carports":{"name":"carports","label":"Carport","value":"2","formattedValue":"2"}},"propertyType":{"name":"propertyType","label":"Tipe Properti","value":"0","formattedValue":"Rumah"},"price":{"minValue":5615532000,"maxValue":5615532000,"currencyType":360,"display":"Rp 5,61 Miliar","offer":5615532000,"unitType":0,"subDisplay":""},"location":{"uuid":"","level":0,"name":"","locationType":0,"text":""},"subtitle":"","url":"\/perumahan-baru\/properti\/tangerang\/eonna-bsd-city\/tipe-t8\/hos09918\/"},{"title":"Tipe T9","description":" ","uuid":"12e140da-7bdb-48b6-aab5-2460bb449cb7","medias":[{"mediaType":"COVER","mediaInfo":[{"mediaUrl":"https:\/\/picture.rumah123.com\/r123-images\/1080x720-fit\/customer\/1917985\/9bca074476d8decb4b26d5ae264e700b.jpg","thumbnailUrl":"https:\/\/picture.rumah123.com\/r123-images\/250x160-fit\/customer\/1917985\/9bca074476d8decb4b26d5ae264e700b.jpg","formatUrl":"https:\/\/picture.rumah123.com\/r123-images\/{width}x{height}-{scale}\/customer\/1917985\/9bca074476d8decb4b26d5ae264e700b.jpg","order":0}]},{"mediaType":"REGULAR","mediaInfo":[{"mediaUrl":"https:\/\/picture.rumah123.com\/r123-images\/1080x720-fit\/customer\/1917985\/797ca325c6a156392d9627b02c002e49.jpg","thumbnailUrl":"https:\/\/picture.rumah123.com\/r123-images\/250x160-fit\/customer\/1917985\/797ca325c6a156392d9627b02c002e49.jpg","formatUrl":"https:\/\/picture.rumah123.com\/r123-images\/{width}x{height}-{scale}\/customer\/1917985\/797ca325c6a156392d9627b02c002e49.jpg","order":1},{"mediaUrl":"https:\/\/picture.rumah123.com\/r123-images\/1080x720-fit\/customer\/1917985\/aa3f733b2a4a543eb2e0ed6a78d40711.jpg","thumbnailUrl":"https:\/\/picture.rumah123.com\/r123-images\/250x160-fit\/customer\/1917985\/aa3f733b2a4a543eb2e0ed6a78d40711.jpg","formatUrl":"https:\/\/picture.rumah123.com\/r123-images\/{width}x{height}-{scale}\/customer\/1917985\/aa3f733b2a4a543eb2e0ed6a78d40711.jpg","order":2}]},{"mediaType":"SITEPLAN","mediaInfo":[{"mediaUrl":"https:\/\/picture.rumah123.com\/r123-images\/1080x720-fit\/customer\/1917985\/151d13d998d11528592e07eef66b9683.jpg","thumbnailUrl":"https:\/\/picture.rumah123.com\/r123-images\/250x160-fit\/customer\/1917985\/151d13d998d11528592e07eef66b9683.jpg","formatUrl":"https:\/\/picture.rumah123.com\/r123-images\/{width}x{height}-{scale}\/customer\/1917985\/151d13d998d11528592e07eef66b9683.jpg","order":0}]}],"attributes":{"landSize":{"name":"landSize","label":"Luas Tanah","value":"162","formattedValue":"162 m\u00b2"},"buildingSize":{"name":"buildingSize","label":"Luas Bangunan","value":"265","formattedValue":"265 m\u00b2"},"bedrooms":{"name":"bedrooms","label":"Kamar","value":"6","formattedValue":"6"},"bathrooms":{"name":"bathrooms","label":"Kamar Mandi","value":"6","formattedValue":"6"},"carports":{"name":"carports","label":"Carport","value":"3","formattedValue":"3"}},"propertyType":{"name":"propertyType","label":"Tipe Properti","value":"0","formattedValue":"Rumah"},"price":{"minValue":7478501000,"maxValue":7478501000,"currencyType":360,"display":"Rp 7,47 Miliar","offer":7478501000,"unitType":0,"subDisplay":""},"location":{"uuid":"","level":0,"name":"","locationType":0,"text":""},"subtitle":"","url":"\/perumahan-baru\/properti\/tangerang\/eonna-bsd-city\/tipe-t9\/hos19946\/"}]},{"name":"Namee","properties":[{"title":"Tipe T8","description":"","uuid":"8f5a769c-ca24-4d15-b258-c917e80fc829","medias":[{"mediaType":"COVER","mediaInfo":[{"mediaUrl":"https:\/\/picture.rumah123.com\/r123-images\/1080x720-fit\/customer\/543233\/2024-07-22-09-54-37-a9ccc410-48b8-4a1f-a62e-09c008aa467d.jpg","thumbnailUrl":"https:\/\/picture.rumah123.com\/r123-images\/250x160-fit\/customer\/543233\/2024-07-22-09-54-37-a9ccc410-48b8-4a1f-a62e-09c008aa467d.jpg","formatUrl":"https:\/\/picture.rumah123.com\/r123-images\/{width}x{height}-{scale}\/customer\/543233\/2024-07-22-09-54-37-a9ccc410-48b8-4a1f-a62e-09c008aa467d.jpg","order":0}]},{"mediaType":"REGULAR","mediaInfo":[{"mediaUrl":"https:\/\/picture.rumah123.com\/r123-images\/1080x720-fit\/customer\/543233\/2024-07-22-09-54-49-4ade335f-14a7-433c-9a2c-95d0323d59b6.jpg","thumbnailUrl":"https:\/\/picture.rumah123.com\/r123-images\/250x160-fit\/customer\/543233\/2024-07-22-09-54-49-4ade335f-14a7-433c-9a2c-95d0323d59b6.jpg","formatUrl":"https:\/\/picture.rumah123.com\/r123-images\/{width}x{height}-{scale}\/customer\/543233\/2024-07-22-09-54-49-4ade335f-14a7-433c-9a2c-95d0323d59b6.jpg","order":1},{"mediaUrl":"https:\/\/picture.rumah123.com\/r123-images\/1080x720-fit\/customer\/543233\/2024-07-22-09-54-50-38e48366-abbc-4047-8951-2f6868920da8.jpg","thumbnailUrl":"https:\/\/picture.rumah123.com\/r123-images\/250x160-fit\/customer\/543233\/2024-07-22-09-54-50-38e48366-abbc-4047-8951-2f6868920da8.jpg","formatUrl":"https:\/\/picture.rumah123.com\/r123-images\/{width}x{height}-{scale}\/customer\/543233\/2024-07-22-09-54-50-38e48366-abbc-4047-8951-2f6868920da8.jpg","order":2},{"mediaUrl":"https:\/\/picture.rumah123.com\/r123-images\/1080x720-fit\/customer\/543233\/2024-07-22-09-54-50-986c51b6-4c25-4ae7-8f00-6289e9c07674.jpg","thumbnailUrl":"https:\/\/picture.rumah123.com\/r123-images\/250x160-fit\/customer\/543233\/2024-07-22-09-54-50-986c51b6-4c25-4ae7-8f00-6289e9c07674.jpg","formatUrl":"https:\/\/picture.rumah123.com\/r123-images\/{width}x{height}-{scale}\/customer\/543233\/2024-07-22-09-54-50-986c51b6-4c25-4ae7-8f00-6289e9c07674.jpg","order":3}]},{"mediaType":"SITEPLAN","mediaInfo":[{"mediaUrl":"https:\/\/picture.rumah123.com\/r123-images\/1080x720-fit\/customer\/543233\/2024-07-22-09-54-52-606d7e5d-f97c-4967-a0cf-3f4580a22334.jpg","thumbnailUrl":"https:\/\/picture.rumah123.com\/r123-images\/250x160-fit\/customer\/543233\/2024-07-22-09-54-52-606d7e5d-f97c-4967-a0cf-3f4580a22334.jpg","formatUrl":"https:\/\/picture.rumah123.com\/r123-images\/{width}x{height}-{scale}\/customer\/543233\/2024-07-22-09-54-52-606d7e5d-f97c-4967-a0cf-3f4580a22334.jpg","order":0}]}],"attributes":{"landSize":{"name":"landSize","label":"Luas Tanah","value":"128","formattedValue":"128 m\u00b2"},"buildingSize":{"name":"buildingSize","label":"Luas Bangunan","value":"192","formattedValue":"192 m\u00b2"},"bedrooms":{"name":"bedrooms","label":"Kamar","value":"4","formattedValue":"4"},"bathrooms":{"name":"bathrooms","label":"Kamar Mandi","value":"4","formattedValue":"4"},"carports":null},"propertyType":{"name":"propertyType","label":"Tipe Properti","value":"0","formattedValue":"Rumah"},"price":{"minValue":5424908000,"maxValue":5424908000,"currencyType":360,"display":"Rp 5,42 Miliar","offer":5424908000,"unitType":0,"subDisplay":""},"location":{"uuid":"","level":0,"name":"","locationType":0,"text":""},"subtitle":"","url":"\/perumahan-baru\/properti\/tangerang\/eonna-bsd-city\/tipe-t8\/hos18896\/"},{"title":"Tipe T9","description":"","uuid":"64eb37b6-d705-4552-b9f5-cf523895936d","medias":[{"mediaType":"COVER","mediaInfo":[{"mediaUrl":"https:\/\/picture.rumah123.com\/r123-images\/1080x720-fit\/customer\/543233\/2024-07-22-09-56-11-94170e4a-5d9f-4907-82b3-2eb85b6b0125.jpg","thumbnailUrl":"https:\/\/picture.rumah123.com\/r123-images\/250x160-fit\/customer\/543233\/2024-07-22-09-56-11-94170e4a-5d9f-4907-82b3-2eb85b6b0125.jpg","formatUrl":"https:\/\/picture.rumah123.com\/r123-images\/{width}x{height}-{scale}\/customer\/543233\/2024-07-22-09-56-11-94170e4a-5d9f-4907-82b3-2eb85b6b0125.jpg","order":0}]},{"mediaType":"REGULAR","mediaInfo":[{"mediaUrl":"https:\/\/picture.rumah123.com\/r123-images\/1080x720-fit\/customer\/543233\/2024-07-22-09-56-17-252124fd-bb99-4211-9674-3ce1395d1697.jpg","thumbnailUrl":"https:\/\/picture.rumah123.com\/r123-images\/250x160-fit\/customer\/543233\/2024-07-22-09-56-17-252124fd-bb99-4211-9674-3ce1395d1697.jpg","formatUrl":"https:\/\/picture.rumah123.com\/r123-images\/{width}x{height}-{scale}\/customer\/543233\/2024-07-22-09-56-17-252124fd-bb99-4211-9674-3ce1395d1697.jpg","order":1},{"mediaUrl":"https:\/\/picture.rumah123.com\/r123-images\/1080x720-fit\/customer\/543233\/2024-07-22-09-56-17-8e746246-d851-4641-848e-8d16fbb98d9b.jpg","thumbnailUrl":"https:\/\/picture.rumah123.com\/r123-images\/250x160-fit\/customer\/543233\/2024-07-22-09-56-17-8e746246-d851-4641-848e-8d16fbb98d9b.jpg","formatUrl":"https:\/\/picture.rumah123.com\/r123-images\/{width}x{height}-{scale}\/customer\/543233\/2024-07-22-09-56-17-8e746246-d851-4641-848e-8d16fbb98d9b.jpg","order":2},{"mediaUrl":"https:\/\/picture.rumah123.com\/r123-images\/1080x720-fit\/customer\/543233\/2024-07-22-09-56-18-6b1781f5-903d-4fb2-8d53-db4c5d54fe79.jpg","thumbnailUrl":"https:\/\/picture.rumah123.com\/r123-images\/250x160-fit\/customer\/543233\/2024-07-22-09-56-18-6b1781f5-903d-4fb2-8d53-db4c5d54fe79.jpg","formatUrl":"https:\/\/picture.rumah123.com\/r123-images\/{width}x{height}-{scale}\/customer\/543233\/2024-07-22-09-56-18-6b1781f5-903d-4fb2-8d53-db4c5d54fe79.jpg","order":3}]},{"mediaType":"SITEPLAN","mediaInfo":[{"mediaUrl":"https:\/\/picture.rumah123.com\/r123-images\/1080x720-fit\/customer\/543233\/2024-07-22-09-56-20-3dcf59c6-f3c9-4b73-8667-c2e4182c41b0.jpg","thumbnailUrl":"https:\/\/picture.rumah123.com\/r123-images\/250x160-fit\/customer\/543233\/2024-07-22-09-56-20-3dcf59c6-f3c9-4b73-8667-c2e4182c41b0.jpg","formatUrl":"https:\/\/picture.rumah123.com\/r123-images\/{width}x{height}-{scale}\/customer\/543233\/2024-07-22-09-56-20-3dcf59c6-f3c9-4b73-8667-c2e4182c41b0.jpg","order":0}]}],"attributes":{"landSize":{"name":"landSize","label":"Luas Tanah","value":"144","formattedValue":"144 m\u00b2"},"buildingSize":{"name":"buildingSize","label":"Luas Bangunan","value":"255","formattedValue":"255 m\u00b2"},"bedrooms":{"name":"bedrooms","label":"Kamar","value":"4","formattedValue":"4"},"bathrooms":{"name":"bathrooms","label":"Kamar Mandi","value":"4","formattedValue":"4"},"carports":null},"propertyType":{"name":"propertyType","label":"Tipe Properti","value":"0","formattedValue":"Rumah"},"price":{"minValue":7796163000,"maxValue":7796163000,"currencyType":360,"display":"Rp 7,79 Miliar","offer":7796163000,"unitType":0,"subDisplay":""},"location":{"uuid":"","level":0,"name":"","locationType":0,"text":""},"subtitle":"","url":"\/perumahan-baru\/properti\/tangerang\/eonna-bsd-city\/tipe-t9\/hos28897\/"}]},{"name":"Aerra","properties":[{"title":"Type 10","description":"[\"Pondasi: Mini Pile\",\"Dinding: Batu bata, plester aci, finishing cat\",\"Atap: Rangka atap baja ringan\",\"Penutup Atap: Genteng metal. Dak beton dengan waterproofing system\",\"Plafond: Gypsum board, finishin cat (Ruang Dalam), GRC Board, Finishing cat (Overstek)\",\"Finishing Dinding: Finishing cat weathercoat (Luar). Plester aci finishing cat (ruang keluarga, ruang makan, ruang tidur, ruang servis). homogenous Tile (KM\\\/WC Utama, tamu, powder room, anak)\",\"Lantai: Homogenous tile ( Ruang utama dan tangga). Homogeneous tile (Carport, tangga entrance, teras, balkon, kamar mandi). Laminated floor (kamar tidur utama, tamu, dan anak). keramik (Area Servis)\",\"Jendela: frame aluminium powder coating dengan kaca\",\"Pintu: kusen aluminium dan daun pintu solid engineering door (Utama). kusen aluminium dan daun pintu engineering door (Ruang dalam). Pintu dan kusen aluminium (Taman Belakang). PVC (KM, servis)\",\"Sanitair: KOHLER\\\/Setara\",\"Air: Standard PDAM\",\"Listrik: 4400 VA\",\"Smart Home Package\"]","uuid":"06ed56eb-a834-4335-8e83-838c1c6ba5c6","medias":[{"mediaType":"COVER","mediaInfo":[{"mediaUrl":"https:\/\/pic.rumah123.com\/r123\/1080x720-fit\/primary_property\/project\/3172\/1670225564_1670225564638d9e9c1adb5ads_images_1670225564.jpg","thumbnailUrl":"https:\/\/pic.rumah123.com\/r123\/250x160-fit\/primary_property\/project\/3172\/1670225564_1670225564638d9e9c1adb5ads_images_1670225564.jpg","formatUrl":"https:\/\/pic.rumah123.com\/r123\/{width}x{height}-{scale}\/primary_property\/project\/3172\/1670225564_1670225564638d9e9c1adb5ads_images_1670225564.jpg","order":0}]},{"mediaType":"SITEPLAN","mediaInfo":[{"mediaUrl":"https:\/\/pic.rumah123.com\/r123\/1080x720-fit\/primary_property\/project\/3172\/1670225570_638d9ea2d0d09floorplan_6835.jpg","thumbnailUrl":"https:\/\/pic.rumah123.com\/r123\/250x160-fit\/primary_property\/project\/3172\/1670225570_638d9ea2d0d09floorplan_6835.jpg","formatUrl":"https:\/\/pic.rumah123.com\/r123\/{width}x{height}-{scale}\/primary_property\/project\/3172\/1670225570_638d9ea2d0d09floorplan_6835.jpg","order":0}]}],"attributes":{"landSize":{"name":"landSize","label":"Luas Tanah","value":"180","formattedValue":"180 m\u00b2"},"buildingSize":{"name":"buildingSize","label":"Luas Bangunan","value":"325","formattedValue":"325 m\u00b2"},"bedrooms":{"name":"bedrooms","label":"Kamar","value":"6","formattedValue":"6"},"bathrooms":{"name":"bathrooms","label":"Kamar Mandi","value":"7","formattedValue":"7"},"carports":null},"propertyType":{"name":"propertyType","label":"Tipe Properti","value":"0","formattedValue":"Rumah"},"price":{"minValue":10882299000,"maxValue":10882299000,"currencyType":360,"display":"Rp 10,8 Miliar","offer":10882299000,"unitType":0,"subDisplay":""},"location":{"uuid":"","level":0,"name":"","locationType":0,"text":""},"subtitle":"","url":"\/perumahan-baru\/properti\/tangerang\/eonna-bsd-city\/type-10\/hos16835\/"},{"title":"Type 9","description":"[\"Pondasi: Mini Pile\",\"Dinding: Batu bata, plester aci, finishing cat\",\"Atap: Rangka atap baja ringan\",\"Penutup Atap: Genteng metal. Dak beton dengan waterproofing system\",\"Plafond: Gypsum board, finishin cat (Ruang Dalam), GRC Board, Finishing cat (Overstek)\",\"Finishing Dinding: Finishing cat weathercoat (Luar). Plester aci finishing cat (ruang keluarga, ruang makan, ruang tidur, ruang servis). homogenous Tile (KM\\\/WC Utama, tamu, powder room, anak)\",\"Lantai: Homogenous tile ( Ruang utama dan tangga). Homogeneous tile (Carport, tangga entrance, teras, balkon, kamar mandi). Laminated floor (kamar tidur utama, tamu, dan anak). keramik (Area Servis)\",\"Jendela: frame aluminium powder coating dengan kaca\",\"Pintu: kusen aluminium dan daun pintu solid engineering door (Utama). kusen aluminium dan daun pintu engineering door (Ruang dalam). Pintu dan kusen aluminium (Taman Belakang). PVC (KM, servis)\",\"Sanitair: KOHLER\\\/Setara\",\"Air: Standard PDAM\",\"Listrik: 4400 VA\",\"Smart Home Package\"]","uuid":"b89ffc8e-6f8d-4458-b32b-97b7bc643f6b","medias":[{"mediaType":"COVER","mediaInfo":[{"mediaUrl":"https:\/\/pic.rumah123.com\/r123\/1080x720-fit\/primary_property\/project\/3172\/1670225647_1670225647638d9eef28758ads_images_1670225647.jpg","thumbnailUrl":"https:\/\/pic.rumah123.com\/r123\/250x160-fit\/primary_property\/project\/3172\/1670225647_1670225647638d9eef28758ads_images_1670225647.jpg","formatUrl":"https:\/\/pic.rumah123.com\/r123\/{width}x{height}-{scale}\/primary_property\/project\/3172\/1670225647_1670225647638d9eef28758ads_images_1670225647.jpg","order":0}]},{"mediaType":"REGULAR","mediaInfo":[{"mediaUrl":"https:\/\/pic.rumah123.com\/r123\/1080x720-fit\/primary_property\/project\/3172\/1670225660_1670225660638d9efce8ab6ads_images_6836.jpg","thumbnailUrl":"https:\/\/pic.rumah123.com\/r123\/250x160-fit\/primary_property\/project\/3172\/1670225660_1670225660638d9efce8ab6ads_images_6836.jpg","formatUrl":"https:\/\/pic.rumah123.com\/r123\/{width}x{height}-{scale}\/primary_property\/project\/3172\/1670225660_1670225660638d9efce8ab6ads_images_6836.jpg","order":2},{"mediaUrl":"https:\/\/pic.rumah123.com\/r123\/1080x720-fit\/primary_property\/project\/3172\/1670225661_1670225661638d9efd5810bads_images_6836.jpg","thumbnailUrl":"https:\/\/pic.rumah123.com\/r123\/250x160-fit\/primary_property\/project\/3172\/1670225661_1670225661638d9efd5810bads_images_6836.jpg","formatUrl":"https:\/\/pic.rumah123.com\/r123\/{width}x{height}-{scale}\/primary_property\/project\/3172\/1670225661_1670225661638d9efd5810bads_images_6836.jpg","order":3},{"mediaUrl":"https:\/\/pic.rumah123.com\/r123\/1080x720-fit\/primary_property\/project\/3172\/1670225661_1670225661638d9efd5ebc8ads_images_6836.jpg","thumbnailUrl":"https:\/\/pic.rumah123.com\/r123\/250x160-fit\/primary_property\/project\/3172\/1670225661_1670225661638d9efd5ebc8ads_images_6836.jpg","formatUrl":"https:\/\/pic.rumah123.com\/r123\/{width}x{height}-{scale}\/primary_property\/project\/3172\/1670225661_1670225661638d9efd5ebc8ads_images_6836.jpg","order":4}]},{"mediaType":"SITEPLAN","mediaInfo":[{"mediaUrl":"https:\/\/pic.rumah123.com\/r123\/1080x720-fit\/primary_property\/project\/3172\/1670225652_638d9ef443671floorplan_6836.jpg","thumbnailUrl":"https:\/\/pic.rumah123.com\/r123\/250x160-fit\/primary_property\/project\/3172\/1670225652_638d9ef443671floorplan_6836.jpg","formatUrl":"https:\/\/pic.rumah123.com\/r123\/{width}x{height}-{scale}\/primary_property\/project\/3172\/1670225652_638d9ef443671floorplan_6836.jpg","order":0}]}],"attributes":{"landSize":{"name":"landSize","label":"Luas Tanah","value":"144","formattedValue":"144 m\u00b2"},"buildingSize":{"name":"buildingSize","label":"Luas Bangunan","value":"255","formattedValue":"255 m\u00b2"},"bedrooms":{"name":"bedrooms","label":"Kamar","value":"6","formattedValue":"6"},"bathrooms":{"name":"bathrooms","label":"Kamar Mandi","value":"5","formattedValue":"5"},"carports":null},"propertyType":{"name":"propertyType","label":"Tipe Properti","value":"0","formattedValue":"Rumah"},"price":{"minValue":8278974000,"maxValue":8278974000,"currencyType":360,"display":"Rp 8,27 Miliar","offer":8278974000,"unitType":0,"subDisplay":""},"location":{"uuid":"","level":0,"name":"","locationType":0,"text":""},"subtitle":"","url":"\/perumahan-baru\/properti\/tangerang\/eonna-bsd-city\/type-9\/hos26836\/"},{"title":"Type 8","description":"[\"Pondasi: Mini Pile\",\"Dinding: Batu bata, plester aci, finishing cat\",\"Atap: Rangka atap baja ringan\",\"Penutup Atap: Genteng metal. Dak beton dengan waterproofing system\",\"Plafond: Gypsum board, finishin cat (Ruang Dalam), GRC Board, Finishing cat (Overstek)\",\"Finishing Dinding: Finishing cat weathercoat (Luar). Plester aci finishing cat (ruang keluarga, ruang makan, ruang tidur, ruang servis). homogenous Tile (KM\\\/WC Utama, tamu, powder room, anak)\",\"Lantai: Homogenous tile ( Ruang utama dan tangga). Homogeneous tile (Carport, tangga entrance, teras, balkon, kamar mandi). Laminated floor (kamar tidur utama, tamu, dan anak). keramik (Area Servis)\",\"Jendela: frame aluminium powder coating dengan kaca\",\"Pintu: kusen aluminium dan daun pintu solid engineering door (Utama). kusen aluminium dan daun pintu engineering door (Ruang dalam). Pintu dan kusen aluminium (Taman Belakang). PVC (KM, servis)\",\"Sanitair: KOHLER\\\/Setara\",\"Air: Standard PDAM\",\"Listrik: 4400 VA\",\"Smart Home Package\"]","uuid":"f22c7f2c-6363-451c-b3d8-b562deb4cf66","medias":[{"mediaType":"COVER","mediaInfo":[{"mediaUrl":"https:\/\/pic.rumah123.com\/r123\/1080x720-fit\/primary_property\/project\/3172\/1670225713_1670225713638d9f31cfcbbads_images_1670225713.jpg","thumbnailUrl":"https:\/\/pic.rumah123.com\/r123\/250x160-fit\/primary_property\/project\/3172\/1670225713_1670225713638d9f31cfcbbads_images_1670225713.jpg","formatUrl":"https:\/\/pic.rumah123.com\/r123\/{width}x{height}-{scale}\/primary_property\/project\/3172\/1670225713_1670225713638d9f31cfcbbads_images_1670225713.jpg","order":0}]},{"mediaType":"REGULAR","mediaInfo":[{"mediaUrl":"https:\/\/pic.rumah123.com\/r123\/1080x720-fit\/primary_property\/project\/3172\/1670225723_1670225723638d9f3be7a95ads_images_6837.jpg","thumbnailUrl":"https:\/\/pic.rumah123.com\/r123\/250x160-fit\/primary_property\/project\/3172\/1670225723_1670225723638d9f3be7a95ads_images_6837.jpg","formatUrl":"https:\/\/pic.rumah123.com\/r123\/{width}x{height}-{scale}\/primary_property\/project\/3172\/1670225723_1670225723638d9f3be7a95ads_images_6837.jpg","order":2},{"mediaUrl":"https:\/\/pic.rumah123.com\/r123\/1080x720-fit\/primary_property\/project\/3172\/1670225724_1670225724638d9f3c84919ads_images_6837.jpg","thumbnailUrl":"https:\/\/pic.rumah123.com\/r123\/250x160-fit\/primary_property\/project\/3172\/1670225724_1670225724638d9f3c84919ads_images_6837.jpg","formatUrl":"https:\/\/pic.rumah123.com\/r123\/{width}x{height}-{scale}\/primary_property\/project\/3172\/1670225724_1670225724638d9f3c84919ads_images_6837.jpg","order":3},{"mediaUrl":"https:\/\/pic.rumah123.com\/r123\/1080x720-fit\/primary_property\/project\/3172\/1670225724_1670225724638d9f3cb6ff7ads_images_6837.jpg","thumbnailUrl":"https:\/\/pic.rumah123.com\/r123\/250x160-fit\/primary_property\/project\/3172\/1670225724_1670225724638d9f3cb6ff7ads_images_6837.jpg","formatUrl":"https:\/\/pic.rumah123.com\/r123\/{width}x{height}-{scale}\/primary_property\/project\/3172\/1670225724_1670225724638d9f3cb6ff7ads_images_6837.jpg","order":4}]},{"mediaType":"SITEPLAN","mediaInfo":[{"mediaUrl":"https:\/\/pic.rumah123.com\/r123\/1080x720-fit\/primary_property\/project\/3172\/1670225718_638d9f363e1affloorplan_6837.jpg","thumbnailUrl":"https:\/\/pic.rumah123.com\/r123\/250x160-fit\/primary_property\/project\/3172\/1670225718_638d9f363e1affloorplan_6837.jpg","formatUrl":"https:\/\/pic.rumah123.com\/r123\/{width}x{height}-{scale}\/primary_property\/project\/3172\/1670225718_638d9f363e1affloorplan_6837.jpg","order":0}]}],"attributes":{"landSize":{"name":"landSize","label":"Luas Tanah","value":"112","formattedValue":"112 m\u00b2"},"buildingSize":{"name":"buildingSize","label":"Luas Bangunan","value":"192","formattedValue":"192 m\u00b2"},"bedrooms":{"name":"bedrooms","label":"Kamar","value":"6","formattedValue":"6"},"bathrooms":{"name":"bathrooms","label":"Kamar Mandi","value":"5","formattedValue":"5"},"carports":null},"propertyType":{"name":"propertyType","label":"Tipe Properti","value":"0","formattedValue":"Rumah"},"price":{"minValue":5855521000,"maxValue":5855521000,"currencyType":360,"display":"Rp 5,85 Miliar","offer":5855521000,"unitType":0,"subDisplay":""},"location":{"uuid":"","level":0,"name":"","locationType":0,"text":""},"subtitle":"","url":"\/perumahan-baru\/properti\/tangerang\/eonna-bsd-city\/type-8\/hos36837\/"}]}]},"url":"\/perumahan-baru\/properti\/tangerang\/eonna-bsd-city\/nps3172\/"}]}}},"strapi":null,"baseUrl":"https:\/\/www.rumah123.com"}
Denah Rumah 4 Kamar di Bukit Podomoro Jakarta

Denah rumah di Bukit Podomoro Jakarta ini hanya memiliki dua lantai saja.
Satu kamar tidurnya di lantai dasar, sementara tiga kamar tidurnya berada di lantai dua.
Denah rumah ini dirancang untuk kenyamanan keluarga modern dengan tata ruang yang efisien.
Meskipun hanya memiliki dua lantai, desainnya tetap mampu memberikan privasi bagi setiap anggota keluarga.
{"attributes":{"type":"udp","pdp_id":["nps2891"],"custom_title":"Detail Rumah Bukit Podomoro Jakarta"},"pdp":{"data":{"GetPropertiesByOriginID":{"properties":[{"uuid":"1c310ecf-a6e2-4400-b563-4e576e5894f2","agent":{"organization":{"uuid":"d33c6916-4681-46ac-82ae-eecc73f3ad7e","name":"PT. Agung Podomoro Land, Tbk","medias":[{"mediaType":"REGULAR","mediaInfo":[{"mediaUrl":"https:\/\/pic.rumah123.com\/r123\/250x250-fit\/developer\/logo\/developer-index-1481083146.jpg","thumbnailUrl":"https:\/\/pic.rumah123.com\/r123\/250x160-fit\/developer\/logo\/developer-index-1481083146.jpg","formatUrl":"https:\/\/pic.rumah123.com\/r123\/{width}x{height}-{scale}\/developer\/logo\/developer-index-1481083146.jpg","order":0}]}],"contacts":[{"contactType":1,"type":"EMAIL","value":"evergreen@99.co"},{"contactType":3,"type":"WHATSAPP","value":"+6281288336231"},{"contactType":2,"type":"PHONE_NUMBER","value":"+6281288336231"}],"url":"\/properti-baru\/developer\/pt-agung-podomoro-land-tbk\/824\/"}},"location":{"uuid":"e4c8458e-9248-474e-a151-da9be197182f","level":0,"name":"Duren Sawit","locationType":0,"text":"Duren Sawit, Jakarta Timur"},"originId":{"value":"nps2891","formattedValue":"nps2891"},"price":{"minValue":4300000000,"maxValue":7200000000,"currencyType":360,"display":"Rp 4,3 Miliar - 7,2 Miliar","offer":4300000000,"unitType":0,"subDisplay":""},"title":"Bukit Podomoro Jakarta","medias":[{"mediaType":"LOGO","mediaInfo":[{"mediaUrl":"https:\/\/picture.rumah123.com\/original\/r123\/primary_property\/project\/2891\/1641450167_61d68ab749824ads_logo_2891.jpg","thumbnailUrl":"https:\/\/picture.rumah123.com\/original\/r123\/primary_property\/project\/2891\/1641450167_61d68ab749824ads_logo_2891.jpg","formatUrl":"https:\/\/picture.rumah123.com\/original\/r123\/primary_property\/project\/2891\/1641450167_61d68ab749824ads_logo_2891.jpg","order":0}]},{"mediaType":"COVER","mediaInfo":[{"mediaUrl":"https:\/\/picture.rumah123.com\/r123-images\/1080x720-fit\/customer\/4419385\/64bf35eba9aa2e3bffde66fe3c5f066c.jpg","thumbnailUrl":"https:\/\/picture.rumah123.com\/r123-images\/250x160-fit\/customer\/4419385\/64bf35eba9aa2e3bffde66fe3c5f066c.jpg","formatUrl":"https:\/\/picture.rumah123.com\/r123-images\/{width}x{height}-{scale}\/customer\/4419385\/64bf35eba9aa2e3bffde66fe3c5f066c.jpg","order":0}]},{"mediaType":"SITEPLAN","mediaInfo":[{"mediaUrl":"https:\/\/picture.rumah123.com\/r123-images\/1080x720-fit\/customer\/4419385\/bc4467fde8d382e7ee0a0826dfa961d9.jpg","thumbnailUrl":"https:\/\/picture.rumah123.com\/r123-images\/250x160-fit\/customer\/4419385\/bc4467fde8d382e7ee0a0826dfa961d9.jpg","formatUrl":"https:\/\/picture.rumah123.com\/r123-images\/{width}x{height}-{scale}\/customer\/4419385\/bc4467fde8d382e7ee0a0826dfa961d9.jpg","order":0}]},{"mediaType":"YOUTUBE","mediaInfo":[{"mediaUrl":"https:\/\/www.youtube.com\/watch?v=0-Lx39F8KQQ","thumbnailUrl":"https:\/\/www.youtube.com\/watch?v=0-Lx39F8KQQ","formatUrl":"https:\/\/www.youtube.com\/watch?v=0-Lx39F8KQQ","order":0}]},{"mediaType":"FACILITY","mediaInfo":[{"mediaUrl":"https:\/\/pic.rumah123.com\/r123\/1080x720-fit\/","thumbnailUrl":"https:\/\/pic.rumah123.com\/r123\/250x160-fit\/","formatUrl":"https:\/\/pic.rumah123.com\/r123\/{width}x{height}-{scale}\/","order":1},{"mediaUrl":"https:\/\/pic.rumah123.com\/r123\/1080x720-fit\/","thumbnailUrl":"https:\/\/pic.rumah123.com\/r123\/250x160-fit\/","formatUrl":"https:\/\/pic.rumah123.com\/r123\/{width}x{height}-{scale}\/","order":2},{"mediaUrl":"https:\/\/pic.rumah123.com\/r123\/1080x720-fit\/","thumbnailUrl":"https:\/\/pic.rumah123.com\/r123\/250x160-fit\/","formatUrl":"https:\/\/pic.rumah123.com\/r123\/{width}x{height}-{scale}\/","order":3},{"mediaUrl":"https:\/\/pic.rumah123.com\/r123\/1080x720-fit\/","thumbnailUrl":"https:\/\/pic.rumah123.com\/r123\/250x160-fit\/","formatUrl":"https:\/\/pic.rumah123.com\/r123\/{width}x{height}-{scale}\/","order":4},{"mediaUrl":"https:\/\/pic.rumah123.com\/r123\/1080x720-fit\/","thumbnailUrl":"https:\/\/pic.rumah123.com\/r123\/250x160-fit\/","formatUrl":"https:\/\/pic.rumah123.com\/r123\/{width}x{height}-{scale}\/","order":5},{"mediaUrl":"https:\/\/pic.rumah123.com\/r123\/1080x720-fit\/","thumbnailUrl":"https:\/\/pic.rumah123.com\/r123\/250x160-fit\/","formatUrl":"https:\/\/pic.rumah123.com\/r123\/{width}x{height}-{scale}\/","order":6},{"mediaUrl":"https:\/\/pic.rumah123.com\/r123\/1080x720-fit\/","thumbnailUrl":"https:\/\/pic.rumah123.com\/r123\/250x160-fit\/","formatUrl":"https:\/\/pic.rumah123.com\/r123\/{width}x{height}-{scale}\/","order":7},{"mediaUrl":"https:\/\/pic.rumah123.com\/r123\/1080x720-fit\/","thumbnailUrl":"https:\/\/pic.rumah123.com\/r123\/250x160-fit\/","formatUrl":"https:\/\/pic.rumah123.com\/r123\/{width}x{height}-{scale}\/","order":8},{"mediaUrl":"https:\/\/pic.rumah123.com\/r123\/1080x720-fit\/","thumbnailUrl":"https:\/\/pic.rumah123.com\/r123\/250x160-fit\/","formatUrl":"https:\/\/pic.rumah123.com\/r123\/{width}x{height}-{scale}\/","order":9},{"mediaUrl":"https:\/\/pic.rumah123.com\/r123\/1080x720-fit\/","thumbnailUrl":"https:\/\/pic.rumah123.com\/r123\/250x160-fit\/","formatUrl":"https:\/\/pic.rumah123.com\/r123\/{width}x{height}-{scale}\/","order":10},{"mediaUrl":"https:\/\/pic.rumah123.com\/r123\/1080x720-fit\/","thumbnailUrl":"https:\/\/pic.rumah123.com\/r123\/250x160-fit\/","formatUrl":"https:\/\/pic.rumah123.com\/r123\/{width}x{height}-{scale}\/","order":11},{"mediaUrl":"https:\/\/pic.rumah123.com\/r123\/1080x720-fit\/","thumbnailUrl":"https:\/\/pic.rumah123.com\/r123\/250x160-fit\/","formatUrl":"https:\/\/pic.rumah123.com\/r123\/{width}x{height}-{scale}\/","order":12},{"mediaUrl":"https:\/\/pic.rumah123.com\/r123\/1080x720-fit\/","thumbnailUrl":"https:\/\/pic.rumah123.com\/r123\/250x160-fit\/","formatUrl":"https:\/\/pic.rumah123.com\/r123\/{width}x{height}-{scale}\/","order":13},{"mediaUrl":"https:\/\/pic.rumah123.com\/r123\/1080x720-fit\/","thumbnailUrl":"https:\/\/pic.rumah123.com\/r123\/250x160-fit\/","formatUrl":"https:\/\/pic.rumah123.com\/r123\/{width}x{height}-{scale}\/","order":14},{"mediaUrl":"https:\/\/pic.rumah123.com\/r123\/1080x720-fit\/","thumbnailUrl":"https:\/\/pic.rumah123.com\/r123\/250x160-fit\/","formatUrl":"https:\/\/pic.rumah123.com\/r123\/{width}x{height}-{scale}\/","order":15},{"mediaUrl":"https:\/\/pic.rumah123.com\/r123\/1080x720-fit\/","thumbnailUrl":"https:\/\/pic.rumah123.com\/r123\/250x160-fit\/","formatUrl":"https:\/\/pic.rumah123.com\/r123\/{width}x{height}-{scale}\/","order":16}]},{"mediaType":"BACKGROUND","mediaInfo":[{"mediaUrl":"https:\/\/picture.rumah123.com\/r123-images\/1080x720-fit\/customer\/4419385\/64bf35eba9aa2e3bffde66fe3c5f066c.jpg","thumbnailUrl":"https:\/\/picture.rumah123.com\/r123-images\/250x160-fit\/customer\/4419385\/64bf35eba9aa2e3bffde66fe3c5f066c.jpg","formatUrl":"https:\/\/picture.rumah123.com\/r123-images\/{width}x{height}-{scale}\/customer\/4419385\/64bf35eba9aa2e3bffde66fe3c5f066c.jpg","order":0},{"mediaUrl":"https:\/\/pic.rumah123.com\/r123\/1080x720-fit\/primary_property\/project\/2891\/1641450180_61d68ac40431cads_images_2891.jpg","thumbnailUrl":"https:\/\/pic.rumah123.com\/r123\/250x160-fit\/primary_property\/project\/2891\/1641450180_61d68ac40431cads_images_2891.jpg","formatUrl":"https:\/\/pic.rumah123.com\/r123\/{width}x{height}-{scale}\/primary_property\/project\/2891\/1641450180_61d68ac40431cads_images_2891.jpg","order":1},{"mediaUrl":"https:\/\/pic.rumah123.com\/r123\/1080x720-fit\/primary_property\/project\/2891\/1684127468_6461beec59d95ads_images_2891.jpg","thumbnailUrl":"https:\/\/pic.rumah123.com\/r123\/250x160-fit\/primary_property\/project\/2891\/1684127468_6461beec59d95ads_images_2891.jpg","formatUrl":"https:\/\/pic.rumah123.com\/r123\/{width}x{height}-{scale}\/primary_property\/project\/2891\/1684127468_6461beec59d95ads_images_2891.jpg","order":2},{"mediaUrl":"https:\/\/pic.rumah123.com\/r123\/1080x720-fit\/primary_property\/project\/2891\/1684127475_6461bef3763a0ads_images_2891.jpg","thumbnailUrl":"https:\/\/pic.rumah123.com\/r123\/250x160-fit\/primary_property\/project\/2891\/1684127475_6461bef3763a0ads_images_2891.jpg","formatUrl":"https:\/\/pic.rumah123.com\/r123\/{width}x{height}-{scale}\/primary_property\/project\/2891\/1684127475_6461bef3763a0ads_images_2891.jpg","order":3},{"mediaUrl":"https:\/\/pic.rumah123.com\/r123\/1080x720-fit\/primary_property\/project\/2891\/1684127482_6461befa5c983ads_images_2891.jpg","thumbnailUrl":"https:\/\/pic.rumah123.com\/r123\/250x160-fit\/primary_property\/project\/2891\/1684127482_6461befa5c983ads_images_2891.jpg","formatUrl":"https:\/\/pic.rumah123.com\/r123\/{width}x{height}-{scale}\/primary_property\/project\/2891\/1684127482_6461befa5c983ads_images_2891.jpg","order":4},{"mediaUrl":"https:\/\/pic.rumah123.com\/r123\/1080x720-fit\/primary_property\/project\/2891\/1684127503_6461bf0fd66e2ads_images_2891.jpg","thumbnailUrl":"https:\/\/pic.rumah123.com\/r123\/250x160-fit\/primary_property\/project\/2891\/1684127503_6461bf0fd66e2ads_images_2891.jpg","formatUrl":"https:\/\/pic.rumah123.com\/r123\/{width}x{height}-{scale}\/primary_property\/project\/2891\/1684127503_6461bf0fd66e2ads_images_2891.jpg","order":5},{"mediaUrl":"https:\/\/pic.rumah123.com\/r123\/1080x720-fit\/primary_property\/project\/2891\/1684127511_6461bf17e3b5aads_images_2891.jpg","thumbnailUrl":"https:\/\/pic.rumah123.com\/r123\/250x160-fit\/primary_property\/project\/2891\/1684127511_6461bf17e3b5aads_images_2891.jpg","formatUrl":"https:\/\/pic.rumah123.com\/r123\/{width}x{height}-{scale}\/primary_property\/project\/2891\/1684127511_6461bf17e3b5aads_images_2891.jpg","order":6},{"mediaUrl":"https:\/\/pic.rumah123.com\/r123\/1080x720-fit\/primary_property\/project\/2891\/1684127518_6461bf1ebb9b1ads_images_2891.jpg","thumbnailUrl":"https:\/\/pic.rumah123.com\/r123\/250x160-fit\/primary_property\/project\/2891\/1684127518_6461bf1ebb9b1ads_images_2891.jpg","formatUrl":"https:\/\/pic.rumah123.com\/r123\/{width}x{height}-{scale}\/primary_property\/project\/2891\/1684127518_6461bf1ebb9b1ads_images_2891.jpg","order":7},{"mediaUrl":"https:\/\/pic.rumah123.com\/r123\/1080x720-fit\/primary_property\/project\/2891\/1684127526_6461bf26c585dads_images_2891.jpg","thumbnailUrl":"https:\/\/pic.rumah123.com\/r123\/250x160-fit\/primary_property\/project\/2891\/1684127526_6461bf26c585dads_images_2891.jpg","formatUrl":"https:\/\/pic.rumah123.com\/r123\/{width}x{height}-{scale}\/primary_property\/project\/2891\/1684127526_6461bf26c585dads_images_2891.jpg","order":8},{"mediaUrl":"https:\/\/pic.rumah123.com\/r123\/1080x720-fit\/primary_property\/project\/2891\/1692873990_64e735060b6f9ads_images_2891.jpg","thumbnailUrl":"https:\/\/pic.rumah123.com\/r123\/250x160-fit\/primary_property\/project\/2891\/1692873990_64e735060b6f9ads_images_2891.jpg","formatUrl":"https:\/\/pic.rumah123.com\/r123\/{width}x{height}-{scale}\/primary_property\/project\/2891\/1692873990_64e735060b6f9ads_images_2891.jpg","order":9},{"mediaUrl":"https:\/\/picture.rumah123.com\/r123-images\/1080x720-fit\/customer\/543233\/250a7a44e78695205e4bdad367c6a2a6.jpg","thumbnailUrl":"https:\/\/picture.rumah123.com\/r123-images\/250x160-fit\/customer\/543233\/250a7a44e78695205e4bdad367c6a2a6.jpg","formatUrl":"https:\/\/picture.rumah123.com\/r123-images\/{width}x{height}-{scale}\/customer\/543233\/250a7a44e78695205e4bdad367c6a2a6.jpg","order":10}]}],"primaryProject":{"subUnits":[{"name":"Bukit Podomoro Jakarta","properties":[{"title":"Wyndham","description":"Pondasi : Tiang Pancang\nDinding : Bata Merah\nLantai : Homogenous Tile 80 X 80 Unit Type 6 dan 7","uuid":"37e26e01-a72e-441e-bba1-44d0418d4eb4","medias":[{"mediaType":"COVER","mediaInfo":[{"mediaUrl":"https:\/\/picture.rumah123.com\/r123-images\/1080x720-fit\/customer\/1899233\/4c4c6135923754f3d9124869c7abd6ac.jpg","thumbnailUrl":"https:\/\/picture.rumah123.com\/r123-images\/250x160-fit\/customer\/1899233\/4c4c6135923754f3d9124869c7abd6ac.jpg","formatUrl":"https:\/\/picture.rumah123.com\/r123-images\/{width}x{height}-{scale}\/customer\/1899233\/4c4c6135923754f3d9124869c7abd6ac.jpg","order":0}]},{"mediaType":"REGULAR","mediaInfo":[{"mediaUrl":"https:\/\/pic.rumah123.com\/r123\/1080x720-fit\/primary_property\/project\/2891\/1699503534_1699503534654c5daeec58cads_images_1699503534.jpg","thumbnailUrl":"https:\/\/pic.rumah123.com\/r123\/250x160-fit\/primary_property\/project\/2891\/1699503534_1699503534654c5daeec58cads_images_1699503534.jpg","formatUrl":"https:\/\/pic.rumah123.com\/r123\/{width}x{height}-{scale}\/primary_property\/project\/2891\/1699503534_1699503534654c5daeec58cads_images_1699503534.jpg","order":1},{"mediaUrl":"https:\/\/pic.rumah123.com\/r123\/1080x720-fit\/primary_property\/project\/2891\/1699512143_1699512143654c7f4f69647ads_images_7761.jpg","thumbnailUrl":"https:\/\/pic.rumah123.com\/r123\/250x160-fit\/primary_property\/project\/2891\/1699512143_1699512143654c7f4f69647ads_images_7761.jpg","formatUrl":"https:\/\/pic.rumah123.com\/r123\/{width}x{height}-{scale}\/primary_property\/project\/2891\/1699512143_1699512143654c7f4f69647ads_images_7761.jpg","order":2},{"mediaUrl":"https:\/\/pic.rumah123.com\/r123\/1080x720-fit\/primary_property\/project\/2891\/1699512143_1699512143654c7f4fd5e7cads_images_7761.jpg","thumbnailUrl":"https:\/\/pic.rumah123.com\/r123\/250x160-fit\/primary_property\/project\/2891\/1699512143_1699512143654c7f4fd5e7cads_images_7761.jpg","formatUrl":"https:\/\/pic.rumah123.com\/r123\/{width}x{height}-{scale}\/primary_property\/project\/2891\/1699512143_1699512143654c7f4fd5e7cads_images_7761.jpg","order":3},{"mediaUrl":"https:\/\/pic.rumah123.com\/r123\/1080x720-fit\/primary_property\/project\/2891\/1699512143_1699512143654c7f4fdbaf4ads_images_7761.jpg","thumbnailUrl":"https:\/\/pic.rumah123.com\/r123\/250x160-fit\/primary_property\/project\/2891\/1699512143_1699512143654c7f4fdbaf4ads_images_7761.jpg","formatUrl":"https:\/\/pic.rumah123.com\/r123\/{width}x{height}-{scale}\/primary_property\/project\/2891\/1699512143_1699512143654c7f4fdbaf4ads_images_7761.jpg","order":4}]},{"mediaType":"SITEPLAN","mediaInfo":[{"mediaUrl":"https:\/\/picture.rumah123.com\/r123-images\/1080x720-fit\/customer\/1899233\/2015a97248389dfb3ff49af9124f39c4.png","thumbnailUrl":"https:\/\/picture.rumah123.com\/r123-images\/250x160-fit\/customer\/1899233\/2015a97248389dfb3ff49af9124f39c4.png","formatUrl":"https:\/\/picture.rumah123.com\/r123-images\/{width}x{height}-{scale}\/customer\/1899233\/2015a97248389dfb3ff49af9124f39c4.png","order":0}]}],"attributes":{"landSize":{"name":"landSize","label":"Luas Tanah","value":"90","formattedValue":"90 m\u00b2"},"buildingSize":{"name":"buildingSize","label":"Luas Bangunan","value":"120","formattedValue":"120 m\u00b2"},"bedrooms":{"name":"bedrooms","label":"Kamar","value":"3","formattedValue":"3"},"bathrooms":{"name":"bathrooms","label":"Kamar Mandi","value":"2","formattedValue":"2"},"carports":null},"propertyType":{"name":"propertyType","label":"Tipe Properti","value":"0","formattedValue":"Rumah"},"price":{"minValue":4300000000,"maxValue":4300000000,"currencyType":360,"display":"Rp 4,3 Miliar","offer":4300000000,"unitType":0,"subDisplay":""},"location":{"uuid":"","level":0,"name":"","locationType":0,"text":""},"subtitle":"","url":"\/perumahan-baru\/properti\/jakarta-timur\/bukit-podomoro-jakarta\/wyndham\/hos17761\/"},{"title":"Tipe 6 Classic","description":"[\"Structure \",\"Foundation : Mini Pile\",\"Main Structure : Reinforced Concrete\",\"Wall (Exterior & Interior) : Red Brick (with Plaster & Paint)\",\"Roof \",\"Main Roof : Bitumen Shingles with Lightweight Steel Structures +Insulation & Concrete Flat Roof\",\"Carport Canopy : Laminated Tempered Glass with Steel Structure\",\"Ceiling\",\"Interior : Gypsumboard with Paint Finish\",\"Exterior Area and Bathroom : Water Resistant Gypsumboard with Paint Finish\",\"Door & Window\",\"Main Entrance Door & Interior Door : Solid Engineeering Wood\",\"Sliding Door : Glass, Alumunium Powder \",\"Service Bathroom Door : Coating Frame Engineering Wood\",\"Window : Glass, Alumunium Powder Coating Frame\",\"Sanitair\",\"Main, Guest & Kids Bathroom : Shower (ex. Hansgrohe)\",\"Bathroom : Wastafel, Toilet (ex. TOTO)\",\"Service bathroom : Shower, Toilet (ex. TOTO)\",\"Finishing Wall\",\"Interior Wall \",\"General Wall, Bedroom : Interior Paint\",\"Main, Guest & Kisd Bathroom : Homogeneous Tile\",\"Service Bathroom : Ceramic Paint\",\"Exterior Wall : Exterior Paint\",\"Floor\",\"Interior Area Type 6 & 7 : Premium Homogeneous Tile 80x80cm\",\"Interior Area Type 8 : Premium Homogeneous Tile 100x100cm\",\"Bedroom : Vinyl Flooring\",\"Balcony & Bathroom : Homogeneous Tile\",\"Service Bathroom : Ceramic Tile\",\"Carport : Patterned Concrete\",\"Utilities\",\"Clean Water : PDAM\",\"Electricity : Type 6 (5500 VA), Type 7 & & (7700 VA)\",\"Phone : Living Room & Main Bedroom\",\"Water Heater : Electric Centralized System\",\"AC : Installation Provided\"]","uuid":"8eb93271-3c68-4d70-bd96-d6fa56ec7b15","medias":[{"mediaType":"COVER","mediaInfo":[{"mediaUrl":"https:\/\/picture.rumah123.com\/r123-images\/1080x720-fit\/customer\/4419385\/7f75a3b3fec588082de4105b3a48e876.jpg","thumbnailUrl":"https:\/\/picture.rumah123.com\/r123-images\/250x160-fit\/customer\/4419385\/7f75a3b3fec588082de4105b3a48e876.jpg","formatUrl":"https:\/\/picture.rumah123.com\/r123-images\/{width}x{height}-{scale}\/customer\/4419385\/7f75a3b3fec588082de4105b3a48e876.jpg","order":0}]},{"mediaType":"REGULAR","mediaInfo":[{"mediaUrl":"https:\/\/picture.rumah123.com\/r123-images\/1080x720-fit\/customer\/4419385\/ae6401e8557e998c5c53e39c65fde232.jpg","thumbnailUrl":"https:\/\/picture.rumah123.com\/r123-images\/250x160-fit\/customer\/4419385\/ae6401e8557e998c5c53e39c65fde232.jpg","formatUrl":"https:\/\/picture.rumah123.com\/r123-images\/{width}x{height}-{scale}\/customer\/4419385\/ae6401e8557e998c5c53e39c65fde232.jpg","order":1},{"mediaUrl":"https:\/\/picture.rumah123.com\/r123-images\/1080x720-fit\/customer\/4419385\/e4e08d1459ff433da6049e72ba7103f8.jpg","thumbnailUrl":"https:\/\/picture.rumah123.com\/r123-images\/250x160-fit\/customer\/4419385\/e4e08d1459ff433da6049e72ba7103f8.jpg","formatUrl":"https:\/\/picture.rumah123.com\/r123-images\/{width}x{height}-{scale}\/customer\/4419385\/e4e08d1459ff433da6049e72ba7103f8.jpg","order":2},{"mediaUrl":"https:\/\/pic.rumah123.com\/r123\/1080x720-fit\/primary_property\/project\/2891\/1691748641_169174864164d609210288aads_images_5798.jpg","thumbnailUrl":"https:\/\/pic.rumah123.com\/r123\/250x160-fit\/primary_property\/project\/2891\/1691748641_169174864164d609210288aads_images_5798.jpg","formatUrl":"https:\/\/pic.rumah123.com\/r123\/{width}x{height}-{scale}\/primary_property\/project\/2891\/1691748641_169174864164d609210288aads_images_5798.jpg","order":3},{"mediaUrl":"https:\/\/pic.rumah123.com\/r123\/1080x720-fit\/primary_property\/project\/2891\/1641451978_164145197861d691caeaf74ads_images_1641451978.jpg","thumbnailUrl":"https:\/\/pic.rumah123.com\/r123\/250x160-fit\/primary_property\/project\/2891\/1641451978_164145197861d691caeaf74ads_images_1641451978.jpg","formatUrl":"https:\/\/pic.rumah123.com\/r123\/{width}x{height}-{scale}\/primary_property\/project\/2891\/1641451978_164145197861d691caeaf74ads_images_1641451978.jpg","order":4},{"mediaUrl":"https:\/\/pic.rumah123.com\/r123\/1080x720-fit\/primary_property\/project\/2891\/1683613772_16836137726459e84cc9a95ads_images_5798.jpg","thumbnailUrl":"https:\/\/pic.rumah123.com\/r123\/250x160-fit\/primary_property\/project\/2891\/1683613772_16836137726459e84cc9a95ads_images_5798.jpg","formatUrl":"https:\/\/pic.rumah123.com\/r123\/{width}x{height}-{scale}\/primary_property\/project\/2891\/1683613772_16836137726459e84cc9a95ads_images_5798.jpg","order":5},{"mediaUrl":"https:\/\/pic.rumah123.com\/r123\/1080x720-fit\/primary_property\/project\/2891\/1683613773_16836137736459e84d5999aads_images_5798.jpg","thumbnailUrl":"https:\/\/pic.rumah123.com\/r123\/250x160-fit\/primary_property\/project\/2891\/1683613773_16836137736459e84d5999aads_images_5798.jpg","formatUrl":"https:\/\/pic.rumah123.com\/r123\/{width}x{height}-{scale}\/primary_property\/project\/2891\/1683613773_16836137736459e84d5999aads_images_5798.jpg","order":6},{"mediaUrl":"https:\/\/pic.rumah123.com\/r123\/1080x720-fit\/primary_property\/project\/2891\/1683613779_16836137796459e853dc3e2ads_images_5798.jpg","thumbnailUrl":"https:\/\/pic.rumah123.com\/r123\/250x160-fit\/primary_property\/project\/2891\/1683613779_16836137796459e853dc3e2ads_images_5798.jpg","formatUrl":"https:\/\/pic.rumah123.com\/r123\/{width}x{height}-{scale}\/primary_property\/project\/2891\/1683613779_16836137796459e853dc3e2ads_images_5798.jpg","order":7},{"mediaUrl":"https:\/\/pic.rumah123.com\/r123\/1080x720-fit\/primary_property\/project\/2891\/1683613781_16836137816459e8553fd95ads_images_5798.jpg","thumbnailUrl":"https:\/\/pic.rumah123.com\/r123\/250x160-fit\/primary_property\/project\/2891\/1683613781_16836137816459e8553fd95ads_images_5798.jpg","formatUrl":"https:\/\/pic.rumah123.com\/r123\/{width}x{height}-{scale}\/primary_property\/project\/2891\/1683613781_16836137816459e8553fd95ads_images_5798.jpg","order":8},{"mediaUrl":"https:\/\/pic.rumah123.com\/r123\/1080x720-fit\/primary_property\/project\/2891\/1683613781_16836137816459e8556d2a7ads_images_5798.jpg","thumbnailUrl":"https:\/\/pic.rumah123.com\/r123\/250x160-fit\/primary_property\/project\/2891\/1683613781_16836137816459e8556d2a7ads_images_5798.jpg","formatUrl":"https:\/\/pic.rumah123.com\/r123\/{width}x{height}-{scale}\/primary_property\/project\/2891\/1683613781_16836137816459e8556d2a7ads_images_5798.jpg","order":9},{"mediaUrl":"https:\/\/pic.rumah123.com\/r123\/1080x720-fit\/primary_property\/project\/2891\/1683613781_16836137816459e8557112fads_images_5798.jpg","thumbnailUrl":"https:\/\/pic.rumah123.com\/r123\/250x160-fit\/primary_property\/project\/2891\/1683613781_16836137816459e8557112fads_images_5798.jpg","formatUrl":"https:\/\/pic.rumah123.com\/r123\/{width}x{height}-{scale}\/primary_property\/project\/2891\/1683613781_16836137816459e8557112fads_images_5798.jpg","order":10},{"mediaUrl":"https:\/\/pic.rumah123.com\/r123\/1080x720-fit\/primary_property\/project\/2891\/1683613781_16836137816459e8557eb13ads_images_5798.jpg","thumbnailUrl":"https:\/\/pic.rumah123.com\/r123\/250x160-fit\/primary_property\/project\/2891\/1683613781_16836137816459e8557eb13ads_images_5798.jpg","formatUrl":"https:\/\/pic.rumah123.com\/r123\/{width}x{height}-{scale}\/primary_property\/project\/2891\/1683613781_16836137816459e8557eb13ads_images_5798.jpg","order":11}]},{"mediaType":"SITEPLAN","mediaInfo":[{"mediaUrl":"https:\/\/pic.rumah123.com\/r123\/1080x720-fit\/primary_property\/project\/2891\/1683613963_6459e90bd1fabfloorplan_5798.jpg","thumbnailUrl":"https:\/\/pic.rumah123.com\/r123\/250x160-fit\/primary_property\/project\/2891\/1683613963_6459e90bd1fabfloorplan_5798.jpg","formatUrl":"https:\/\/pic.rumah123.com\/r123\/{width}x{height}-{scale}\/primary_property\/project\/2891\/1683613963_6459e90bd1fabfloorplan_5798.jpg","order":0}]}],"attributes":{"landSize":{"name":"landSize","label":"Luas Tanah","value":"90","formattedValue":"90 m\u00b2"},"buildingSize":{"name":"buildingSize","label":"Luas Bangunan","value":"146","formattedValue":"146 m\u00b2"},"bedrooms":{"name":"bedrooms","label":"Kamar","value":"3","formattedValue":"3"},"bathrooms":{"name":"bathrooms","label":"Kamar Mandi","value":"3","formattedValue":"3"},"carports":null},"propertyType":{"name":"propertyType","label":"Tipe Properti","value":"0","formattedValue":"Rumah"},"price":{"minValue":4700000000,"maxValue":4700000000,"currencyType":360,"display":"Rp 4,7 Miliar","offer":4700000000,"unitType":0,"subDisplay":""},"location":{"uuid":"","level":0,"name":"","locationType":0,"text":""},"subtitle":"","url":"\/perumahan-baru\/properti\/jakarta-timur\/bukit-podomoro-jakarta\/tipe-6-classic\/hos25798\/"},{"title":"Tipe 7 WINDSOR (2 Lantai)","description":"[\"Pondasi : Tiang Pancang \",\"Dinding : Bata Merah \",\"Lantai : Homogenous Tyle 80 X 80 Unit Type 6 dan 7\"]","uuid":"e88bd60f-854b-49f6-9ea9-b460205dda08","medias":[{"mediaType":"COVER","mediaInfo":[{"mediaUrl":"https:\/\/pic.rumah123.com\/r123\/1080x720-fit\/primary_property\/project\/2891\/1699504024_1699504024654c5f989074bads_images_1699504024.jpg","thumbnailUrl":"https:\/\/pic.rumah123.com\/r123\/250x160-fit\/primary_property\/project\/2891\/1699504024_1699504024654c5f989074bads_images_1699504024.jpg","formatUrl":"https:\/\/pic.rumah123.com\/r123\/{width}x{height}-{scale}\/primary_property\/project\/2891\/1699504024_1699504024654c5f989074bads_images_1699504024.jpg","order":0}]},{"mediaType":"REGULAR","mediaInfo":[{"mediaUrl":"https:\/\/pic.rumah123.com\/r123\/1080x720-fit\/primary_property\/project\/2891\/1699512229_1699512229654c7fa534332ads_images_7762.jpg","thumbnailUrl":"https:\/\/pic.rumah123.com\/r123\/250x160-fit\/primary_property\/project\/2891\/1699512229_1699512229654c7fa534332ads_images_7762.jpg","formatUrl":"https:\/\/pic.rumah123.com\/r123\/{width}x{height}-{scale}\/primary_property\/project\/2891\/1699512229_1699512229654c7fa534332ads_images_7762.jpg","order":2},{"mediaUrl":"https:\/\/pic.rumah123.com\/r123\/1080x720-fit\/primary_property\/project\/2891\/1699512229_1699512229654c7fa59f885ads_images_7762.jpg","thumbnailUrl":"https:\/\/pic.rumah123.com\/r123\/250x160-fit\/primary_property\/project\/2891\/1699512229_1699512229654c7fa59f885ads_images_7762.jpg","formatUrl":"https:\/\/pic.rumah123.com\/r123\/{width}x{height}-{scale}\/primary_property\/project\/2891\/1699512229_1699512229654c7fa59f885ads_images_7762.jpg","order":3},{"mediaUrl":"https:\/\/pic.rumah123.com\/r123\/1080x720-fit\/primary_property\/project\/2891\/1699512229_1699512229654c7fa5bf9faads_images_7762.jpg","thumbnailUrl":"https:\/\/pic.rumah123.com\/r123\/250x160-fit\/primary_property\/project\/2891\/1699512229_1699512229654c7fa5bf9faads_images_7762.jpg","formatUrl":"https:\/\/pic.rumah123.com\/r123\/{width}x{height}-{scale}\/primary_property\/project\/2891\/1699512229_1699512229654c7fa5bf9faads_images_7762.jpg","order":4},{"mediaUrl":"https:\/\/pic.rumah123.com\/r123\/1080x720-fit\/primary_property\/project\/2891\/1699512229_1699512229654c7fa5c9b7eads_images_7762.jpg","thumbnailUrl":"https:\/\/pic.rumah123.com\/r123\/250x160-fit\/primary_property\/project\/2891\/1699512229_1699512229654c7fa5c9b7eads_images_7762.jpg","formatUrl":"https:\/\/pic.rumah123.com\/r123\/{width}x{height}-{scale}\/primary_property\/project\/2891\/1699512229_1699512229654c7fa5c9b7eads_images_7762.jpg","order":5},{"mediaUrl":"https:\/\/pic.rumah123.com\/r123\/1080x720-fit\/primary_property\/project\/2891\/1699512230_1699512230654c7fa611c19ads_images_7762.jpg","thumbnailUrl":"https:\/\/pic.rumah123.com\/r123\/250x160-fit\/primary_property\/project\/2891\/1699512230_1699512230654c7fa611c19ads_images_7762.jpg","formatUrl":"https:\/\/pic.rumah123.com\/r123\/{width}x{height}-{scale}\/primary_property\/project\/2891\/1699512230_1699512230654c7fa611c19ads_images_7762.jpg","order":6}]},{"mediaType":"SITEPLAN","mediaInfo":[{"mediaUrl":"https:\/\/pic.rumah123.com\/r123\/1080x720-fit\/primary_property\/project\/2891\/1699504028_654c5f9c6e1cafloorplan_7762.jpg","thumbnailUrl":"https:\/\/pic.rumah123.com\/r123\/250x160-fit\/primary_property\/project\/2891\/1699504028_654c5f9c6e1cafloorplan_7762.jpg","formatUrl":"https:\/\/pic.rumah123.com\/r123\/{width}x{height}-{scale}\/primary_property\/project\/2891\/1699504028_654c5f9c6e1cafloorplan_7762.jpg","order":0}]}],"attributes":{"landSize":{"name":"landSize","label":"Luas Tanah","value":"105","formattedValue":"105 m\u00b2"},"buildingSize":{"name":"buildingSize","label":"Luas Bangunan","value":"138","formattedValue":"138 m\u00b2"},"bedrooms":{"name":"bedrooms","label":"Kamar","value":"5","formattedValue":"5"},"bathrooms":{"name":"bathrooms","label":"Kamar Mandi","value":"4","formattedValue":"4"},"carports":null},"propertyType":{"name":"propertyType","label":"Tipe Properti","value":"0","formattedValue":"Rumah"},"price":{"minValue":5000000000,"maxValue":5000000000,"currencyType":360,"display":"Rp 5 Miliar","offer":5000000000,"unitType":0,"subDisplay":""},"location":{"uuid":"","level":0,"name":"","locationType":0,"text":""},"subtitle":"","url":"\/perumahan-baru\/properti\/jakarta-timur\/bukit-podomoro-jakarta\/tipe-7-windsor-2-lantai\/hos37762\/"},{"title":"Tipe 7 Classic","description":"[\"Structure \",\"Foundation : Mini Pile\",\"Main Structure : Reinforced Concrete\",\"Wall (Exterior & Interior) : Red Brick (with Plaster & Paint)\",\"Roof \",\"Main Roof : Bitumen Shingles with Lightweight Steel Structures +Insulation & Concrete Flat Roof\",\"Carport Canopy : Laminated Tempered Glass with Steel Structure\",\"Ceiling\",\"Interior : Gypsumboard with Paint Finish\",\"Exterior Area and Bathroom : Water Resistant Gypsumboard with Paint Finish\",\"Door & Window\",\"Main Entrance Door & Interior Door : Solid Engineeering Wood\",\"Sliding Door : Glass, Alumunium Powder \",\"Service Bathroom Door : Coating Frame Engineering Wood\",\"Window : Glass, Alumunium Powder Coating Frame\",\"Sanitair\",\"Main, Guest & Kids Bathroom : Shower (ex. Hansgrohe)\",\"Bathroom : Wastafel, Toilet (ex. TOTO)\",\"Service bathroom : Shower, Toilet (ex. TOTO)\",\"Finishing Wall\",\"Interior Wall \",\"General Wall, Bedroom : Interior Paint\",\"Main, Guest & Kisd Bathroom : Homogeneous Tile\",\"Service Bathroom : Ceramic Paint\",\"Exterior Wall : Exterior Paint\",\"Floor\",\"Interior Area Type 6 & 7 : Premium Homogeneous Tile 80x80cm\",\"Interior Area Type 8 : Premium Homogeneous Tile 100x100cm\",\"Bedroom : Vinyl Flooring\",\"Balcony & Bathroom : Homogeneous Tile\",\"Service Bathroom : Ceramic Tile\",\"Carport : Patterned Concrete\",\"Utilities\",\"Clean Water : PDAM\",\"Electricity : Type 6 (5500 VA), Type 7 & & (7700 VA)\",\"Phone : Living Room & Main Bedroom\",\"Water Heater : Electric Centralized System\",\"AC : Installation Provided\"]","uuid":"6cdf3098-0e4f-4843-bd6b-fcda3cae1c55","medias":[{"mediaType":"COVER","mediaInfo":[{"mediaUrl":"https:\/\/picture.rumah123.com\/r123-images\/1080x720-fit\/customer\/4419385\/96a40e592e7a8dfccd40d54c6a9e2110.jpg","thumbnailUrl":"https:\/\/picture.rumah123.com\/r123-images\/250x160-fit\/customer\/4419385\/96a40e592e7a8dfccd40d54c6a9e2110.jpg","formatUrl":"https:\/\/picture.rumah123.com\/r123-images\/{width}x{height}-{scale}\/customer\/4419385\/96a40e592e7a8dfccd40d54c6a9e2110.jpg","order":0}]},{"mediaType":"REGULAR","mediaInfo":[{"mediaUrl":"https:\/\/picture.rumah123.com\/r123-images\/1080x720-fit\/customer\/4419385\/fce5db6bea7fefa1cdec1b983e095f79.jpg","thumbnailUrl":"https:\/\/picture.rumah123.com\/r123-images\/250x160-fit\/customer\/4419385\/fce5db6bea7fefa1cdec1b983e095f79.jpg","formatUrl":"https:\/\/picture.rumah123.com\/r123-images\/{width}x{height}-{scale}\/customer\/4419385\/fce5db6bea7fefa1cdec1b983e095f79.jpg","order":1},{"mediaUrl":"https:\/\/picture.rumah123.com\/r123-images\/1080x720-fit\/customer\/4419385\/a59f2b879e5f0c9f2cf2ef6ecaae9e66.jpg","thumbnailUrl":"https:\/\/picture.rumah123.com\/r123-images\/250x160-fit\/customer\/4419385\/a59f2b879e5f0c9f2cf2ef6ecaae9e66.jpg","formatUrl":"https:\/\/picture.rumah123.com\/r123-images\/{width}x{height}-{scale}\/customer\/4419385\/a59f2b879e5f0c9f2cf2ef6ecaae9e66.jpg","order":2},{"mediaUrl":"https:\/\/pic.rumah123.com\/r123\/1080x720-fit\/primary_property\/project\/2891\/1641452276_164145227661d692f4eec28ads_images_1641452276.jpg","thumbnailUrl":"https:\/\/pic.rumah123.com\/r123\/250x160-fit\/primary_property\/project\/2891\/1641452276_164145227661d692f4eec28ads_images_1641452276.jpg","formatUrl":"https:\/\/pic.rumah123.com\/r123\/{width}x{height}-{scale}\/primary_property\/project\/2891\/1641452276_164145227661d692f4eec28ads_images_1641452276.jpg","order":3},{"mediaUrl":"https:\/\/picture.rumah123.com\/r123-images\/1080x720-fit\/customer\/4357922\/cecd5d17a57004cfdb268fabfb74be11.jpg","thumbnailUrl":"https:\/\/picture.rumah123.com\/r123-images\/250x160-fit\/customer\/4357922\/cecd5d17a57004cfdb268fabfb74be11.jpg","formatUrl":"https:\/\/picture.rumah123.com\/r123-images\/{width}x{height}-{scale}\/customer\/4357922\/cecd5d17a57004cfdb268fabfb74be11.jpg","order":4},{"mediaUrl":"https:\/\/pic.rumah123.com\/r123\/1080x720-fit\/primary_property\/project\/2891\/1683614106_16836141066459e99aeadc3ads_images_5799.jpg","thumbnailUrl":"https:\/\/pic.rumah123.com\/r123\/250x160-fit\/primary_property\/project\/2891\/1683614106_16836141066459e99aeadc3ads_images_5799.jpg","formatUrl":"https:\/\/pic.rumah123.com\/r123\/{width}x{height}-{scale}\/primary_property\/project\/2891\/1683614106_16836141066459e99aeadc3ads_images_5799.jpg","order":5},{"mediaUrl":"https:\/\/pic.rumah123.com\/r123\/1080x720-fit\/primary_property\/project\/2891\/1683614121_16836141216459e9a90f74bads_images_5799.jpg","thumbnailUrl":"https:\/\/pic.rumah123.com\/r123\/250x160-fit\/primary_property\/project\/2891\/1683614121_16836141216459e9a90f74bads_images_5799.jpg","formatUrl":"https:\/\/pic.rumah123.com\/r123\/{width}x{height}-{scale}\/primary_property\/project\/2891\/1683614121_16836141216459e9a90f74bads_images_5799.jpg","order":6},{"mediaUrl":"https:\/\/pic.rumah123.com\/r123\/1080x720-fit\/primary_property\/project\/2891\/1683614121_16836141216459e9a973d67ads_images_5799.jpg","thumbnailUrl":"https:\/\/pic.rumah123.com\/r123\/250x160-fit\/primary_property\/project\/2891\/1683614121_16836141216459e9a973d67ads_images_5799.jpg","formatUrl":"https:\/\/pic.rumah123.com\/r123\/{width}x{height}-{scale}\/primary_property\/project\/2891\/1683614121_16836141216459e9a973d67ads_images_5799.jpg","order":7},{"mediaUrl":"https:\/\/pic.rumah123.com\/r123\/1080x720-fit\/primary_property\/project\/2891\/1683614121_16836141216459e9a97ab36ads_images_5799.jpg","thumbnailUrl":"https:\/\/pic.rumah123.com\/r123\/250x160-fit\/primary_property\/project\/2891\/1683614121_16836141216459e9a97ab36ads_images_5799.jpg","formatUrl":"https:\/\/pic.rumah123.com\/r123\/{width}x{height}-{scale}\/primary_property\/project\/2891\/1683614121_16836141216459e9a97ab36ads_images_5799.jpg","order":8},{"mediaUrl":"https:\/\/pic.rumah123.com\/r123\/1080x720-fit\/primary_property\/project\/2891\/1683614121_16836141216459e9a9a67fbads_images_5799.jpg","thumbnailUrl":"https:\/\/pic.rumah123.com\/r123\/250x160-fit\/primary_property\/project\/2891\/1683614121_16836141216459e9a9a67fbads_images_5799.jpg","formatUrl":"https:\/\/pic.rumah123.com\/r123\/{width}x{height}-{scale}\/primary_property\/project\/2891\/1683614121_16836141216459e9a9a67fbads_images_5799.jpg","order":9},{"mediaUrl":"https:\/\/pic.rumah123.com\/r123\/1080x720-fit\/primary_property\/project\/2891\/1683614121_16836141216459e9a9b9783ads_images_5799.jpg","thumbnailUrl":"https:\/\/pic.rumah123.com\/r123\/250x160-fit\/primary_property\/project\/2891\/1683614121_16836141216459e9a9b9783ads_images_5799.jpg","formatUrl":"https:\/\/pic.rumah123.com\/r123\/{width}x{height}-{scale}\/primary_property\/project\/2891\/1683614121_16836141216459e9a9b9783ads_images_5799.jpg","order":10},{"mediaUrl":"https:\/\/pic.rumah123.com\/r123\/1080x720-fit\/primary_property\/project\/2891\/1683614121_16836141216459e9a9ae2b7ads_images_5799.jpg","thumbnailUrl":"https:\/\/pic.rumah123.com\/r123\/250x160-fit\/primary_property\/project\/2891\/1683614121_16836141216459e9a9ae2b7ads_images_5799.jpg","formatUrl":"https:\/\/pic.rumah123.com\/r123\/{width}x{height}-{scale}\/primary_property\/project\/2891\/1683614121_16836141216459e9a9ae2b7ads_images_5799.jpg","order":11},{"mediaUrl":"https:\/\/pic.rumah123.com\/r123\/1080x720-fit\/primary_property\/project\/2891\/1683614122_16836141226459e9aa0502fads_images_5799.jpg","thumbnailUrl":"https:\/\/pic.rumah123.com\/r123\/250x160-fit\/primary_property\/project\/2891\/1683614122_16836141226459e9aa0502fads_images_5799.jpg","formatUrl":"https:\/\/pic.rumah123.com\/r123\/{width}x{height}-{scale}\/primary_property\/project\/2891\/1683614122_16836141226459e9aa0502fads_images_5799.jpg","order":12}]},{"mediaType":"SITEPLAN","mediaInfo":[{"mediaUrl":"https:\/\/pic.rumah123.com\/r123\/1080x720-fit\/primary_property\/project\/2891\/1683614197_6459e9f57db4cfloorplan_5799.jpg","thumbnailUrl":"https:\/\/pic.rumah123.com\/r123\/250x160-fit\/primary_property\/project\/2891\/1683614197_6459e9f57db4cfloorplan_5799.jpg","formatUrl":"https:\/\/pic.rumah123.com\/r123\/{width}x{height}-{scale}\/primary_property\/project\/2891\/1683614197_6459e9f57db4cfloorplan_5799.jpg","order":0}]}],"attributes":{"landSize":{"name":"landSize","label":"Luas Tanah","value":"105","formattedValue":"105 m\u00b2"},"buildingSize":{"name":"buildingSize","label":"Luas Bangunan","value":"180","formattedValue":"180 m\u00b2"},"bedrooms":{"name":"bedrooms","label":"Kamar","value":"4","formattedValue":"4"},"bathrooms":{"name":"bathrooms","label":"Kamar Mandi","value":"4","formattedValue":"4"},"carports":null},"propertyType":{"name":"propertyType","label":"Tipe Properti","value":"0","formattedValue":"Rumah"},"price":{"minValue":5600000000,"maxValue":5600000000,"currencyType":360,"display":"Rp 5,6 Miliar","offer":5600000000,"unitType":0,"subDisplay":""},"location":{"uuid":"","level":0,"name":"","locationType":0,"text":""},"subtitle":"","url":"\/perumahan-baru\/properti\/jakarta-timur\/bukit-podomoro-jakarta\/tipe-7-classic\/hos45799\/"},{"title":"Tipe 7 Art Deco","description":"[\"Pondasi : Tiang Pancang \",\"Dinding : Bata Merah \",\"Lantai : Homogenous Tyle 80 X 80 Unit Type 6 dan 7\"]","uuid":"d544c8d6-ee3b-4bee-b941-c822d6c6328e","medias":[{"mediaType":"COVER","mediaInfo":[{"mediaUrl":"https:\/\/picture.rumah123.com\/r123-images\/1080x720-fit\/customer\/4419385\/1668bfeb22ef2f043e61d64600d5b571.jpg","thumbnailUrl":"https:\/\/picture.rumah123.com\/r123-images\/250x160-fit\/customer\/4419385\/1668bfeb22ef2f043e61d64600d5b571.jpg","formatUrl":"https:\/\/picture.rumah123.com\/r123-images\/{width}x{height}-{scale}\/customer\/4419385\/1668bfeb22ef2f043e61d64600d5b571.jpg","order":0}]},{"mediaType":"REGULAR","mediaInfo":[{"mediaUrl":"https:\/\/picture.rumah123.com\/r123-images\/1080x720-fit\/customer\/4419385\/6c2f697305162688daee5ed9c4526146.jpg","thumbnailUrl":"https:\/\/picture.rumah123.com\/r123-images\/250x160-fit\/customer\/4419385\/6c2f697305162688daee5ed9c4526146.jpg","formatUrl":"https:\/\/picture.rumah123.com\/r123-images\/{width}x{height}-{scale}\/customer\/4419385\/6c2f697305162688daee5ed9c4526146.jpg","order":1},{"mediaUrl":"https:\/\/pic.rumah123.com\/r123\/1080x720-fit\/primary_property\/project\/2891\/1699504449_1699504449654c6141bdd9aads_images_1699504449.jpg","thumbnailUrl":"https:\/\/pic.rumah123.com\/r123\/250x160-fit\/primary_property\/project\/2891\/1699504449_1699504449654c6141bdd9aads_images_1699504449.jpg","formatUrl":"https:\/\/pic.rumah123.com\/r123\/{width}x{height}-{scale}\/primary_property\/project\/2891\/1699504449_1699504449654c6141bdd9aads_images_1699504449.jpg","order":2},{"mediaUrl":"https:\/\/pic.rumah123.com\/r123\/1080x720-fit\/primary_property\/project\/2891\/1699511729_1699511729654c7db1c465aads_images_7763.jpg","thumbnailUrl":"https:\/\/pic.rumah123.com\/r123\/250x160-fit\/primary_property\/project\/2891\/1699511729_1699511729654c7db1c465aads_images_7763.jpg","formatUrl":"https:\/\/pic.rumah123.com\/r123\/{width}x{height}-{scale}\/primary_property\/project\/2891\/1699511729_1699511729654c7db1c465aads_images_7763.jpg","order":3},{"mediaUrl":"https:\/\/pic.rumah123.com\/r123\/1080x720-fit\/primary_property\/project\/2891\/1699511730_1699511730654c7db24e7a7ads_images_7763.jpg","thumbnailUrl":"https:\/\/pic.rumah123.com\/r123\/250x160-fit\/primary_property\/project\/2891\/1699511730_1699511730654c7db24e7a7ads_images_7763.jpg","formatUrl":"https:\/\/pic.rumah123.com\/r123\/{width}x{height}-{scale}\/primary_property\/project\/2891\/1699511730_1699511730654c7db24e7a7ads_images_7763.jpg","order":4},{"mediaUrl":"https:\/\/pic.rumah123.com\/r123\/1080x720-fit\/primary_property\/project\/2891\/1699511730_1699511730654c7db24ee51ads_images_7763.jpg","thumbnailUrl":"https:\/\/pic.rumah123.com\/r123\/250x160-fit\/primary_property\/project\/2891\/1699511730_1699511730654c7db24ee51ads_images_7763.jpg","formatUrl":"https:\/\/pic.rumah123.com\/r123\/{width}x{height}-{scale}\/primary_property\/project\/2891\/1699511730_1699511730654c7db24ee51ads_images_7763.jpg","order":5},{"mediaUrl":"https:\/\/pic.rumah123.com\/r123\/1080x720-fit\/primary_property\/project\/2891\/1699511730_1699511730654c7db24a21cads_images_7763.jpg","thumbnailUrl":"https:\/\/pic.rumah123.com\/r123\/250x160-fit\/primary_property\/project\/2891\/1699511730_1699511730654c7db24a21cads_images_7763.jpg","formatUrl":"https:\/\/pic.rumah123.com\/r123\/{width}x{height}-{scale}\/primary_property\/project\/2891\/1699511730_1699511730654c7db24a21cads_images_7763.jpg","order":6},{"mediaUrl":"https:\/\/pic.rumah123.com\/r123\/1080x720-fit\/primary_property\/project\/2891\/1699511730_1699511730654c7db28d76eads_images_7763.jpg","thumbnailUrl":"https:\/\/pic.rumah123.com\/r123\/250x160-fit\/primary_property\/project\/2891\/1699511730_1699511730654c7db28d76eads_images_7763.jpg","formatUrl":"https:\/\/pic.rumah123.com\/r123\/{width}x{height}-{scale}\/primary_property\/project\/2891\/1699511730_1699511730654c7db28d76eads_images_7763.jpg","order":8},{"mediaUrl":"https:\/\/pic.rumah123.com\/r123\/1080x720-fit\/primary_property\/project\/2891\/1699511730_1699511730654c7db2c59f5ads_images_7763.jpg","thumbnailUrl":"https:\/\/pic.rumah123.com\/r123\/250x160-fit\/primary_property\/project\/2891\/1699511730_1699511730654c7db2c59f5ads_images_7763.jpg","formatUrl":"https:\/\/pic.rumah123.com\/r123\/{width}x{height}-{scale}\/primary_property\/project\/2891\/1699511730_1699511730654c7db2c59f5ads_images_7763.jpg","order":9}]},{"mediaType":"SITEPLAN","mediaInfo":[{"mediaUrl":"https:\/\/pic.rumah123.com\/r123\/1080x720-fit\/primary_property\/project\/2891\/1699504453_654c614588a93floorplan_7763.jpg","thumbnailUrl":"https:\/\/pic.rumah123.com\/r123\/250x160-fit\/primary_property\/project\/2891\/1699504453_654c614588a93floorplan_7763.jpg","formatUrl":"https:\/\/pic.rumah123.com\/r123\/{width}x{height}-{scale}\/primary_property\/project\/2891\/1699504453_654c614588a93floorplan_7763.jpg","order":0}]}],"attributes":{"landSize":{"name":"landSize","label":"Luas Tanah","value":"105","formattedValue":"105 m\u00b2"},"buildingSize":{"name":"buildingSize","label":"Luas Bangunan","value":"180","formattedValue":"180 m\u00b2"},"bedrooms":{"name":"bedrooms","label":"Kamar","value":"5","formattedValue":"5"},"bathrooms":{"name":"bathrooms","label":"Kamar Mandi","value":"5","formattedValue":"5"},"carports":null},"propertyType":{"name":"propertyType","label":"Tipe Properti","value":"0","formattedValue":"Rumah"},"price":{"minValue":5600000000,"maxValue":5600000000,"currencyType":360,"display":"Rp 5,6 Miliar","offer":5600000000,"unitType":0,"subDisplay":""},"location":{"uuid":"","level":0,"name":"","locationType":0,"text":""},"subtitle":"","url":"\/perumahan-baru\/properti\/jakarta-timur\/bukit-podomoro-jakarta\/tipe-7-art-deco\/hos57763\/"},{"title":"Tipe 7 Regent","description":"[\"Pondasi : Tiang Pancang \",\"Dinding : Bata Merah \",\"Lantai : Homogenous Tyle 80 X 80 Unit Type 6 dan 7\"]","uuid":"3073f774-f1ed-4425-80e7-8e295607b5ba","medias":[{"mediaType":"COVER","mediaInfo":[{"mediaUrl":"https:\/\/pic.rumah123.com\/r123\/1080x720-fit\/primary_property\/project\/2891\/1699509785_1699509785654c7619d0efaads_images_1699509785.jpg","thumbnailUrl":"https:\/\/pic.rumah123.com\/r123\/250x160-fit\/primary_property\/project\/2891\/1699509785_1699509785654c7619d0efaads_images_1699509785.jpg","formatUrl":"https:\/\/pic.rumah123.com\/r123\/{width}x{height}-{scale}\/primary_property\/project\/2891\/1699509785_1699509785654c7619d0efaads_images_1699509785.jpg","order":0}]},{"mediaType":"REGULAR","mediaInfo":[{"mediaUrl":"https:\/\/pic.rumah123.com\/r123\/1080x720-fit\/primary_property\/project\/2891\/1699511908_1699511908654c7e6471975ads_images_7764.jpg","thumbnailUrl":"https:\/\/pic.rumah123.com\/r123\/250x160-fit\/primary_property\/project\/2891\/1699511908_1699511908654c7e6471975ads_images_7764.jpg","formatUrl":"https:\/\/pic.rumah123.com\/r123\/{width}x{height}-{scale}\/primary_property\/project\/2891\/1699511908_1699511908654c7e6471975ads_images_7764.jpg","order":2},{"mediaUrl":"https:\/\/pic.rumah123.com\/r123\/1080x720-fit\/primary_property\/project\/2891\/1699511909_1699511909654c7e65134c0ads_images_7764.jpg","thumbnailUrl":"https:\/\/pic.rumah123.com\/r123\/250x160-fit\/primary_property\/project\/2891\/1699511909_1699511909654c7e65134c0ads_images_7764.jpg","formatUrl":"https:\/\/pic.rumah123.com\/r123\/{width}x{height}-{scale}\/primary_property\/project\/2891\/1699511909_1699511909654c7e65134c0ads_images_7764.jpg","order":3},{"mediaUrl":"https:\/\/pic.rumah123.com\/r123\/1080x720-fit\/primary_property\/project\/2891\/1699511909_1699511909654c7e6516417ads_images_7764.jpg","thumbnailUrl":"https:\/\/pic.rumah123.com\/r123\/250x160-fit\/primary_property\/project\/2891\/1699511909_1699511909654c7e6516417ads_images_7764.jpg","formatUrl":"https:\/\/pic.rumah123.com\/r123\/{width}x{height}-{scale}\/primary_property\/project\/2891\/1699511909_1699511909654c7e6516417ads_images_7764.jpg","order":4},{"mediaUrl":"https:\/\/pic.rumah123.com\/r123\/1080x720-fit\/primary_property\/project\/2891\/1699511909_1699511909654c7e651b246ads_images_7764.jpg","thumbnailUrl":"https:\/\/pic.rumah123.com\/r123\/250x160-fit\/primary_property\/project\/2891\/1699511909_1699511909654c7e651b246ads_images_7764.jpg","formatUrl":"https:\/\/pic.rumah123.com\/r123\/{width}x{height}-{scale}\/primary_property\/project\/2891\/1699511909_1699511909654c7e651b246ads_images_7764.jpg","order":5},{"mediaUrl":"https:\/\/pic.rumah123.com\/r123\/1080x720-fit\/primary_property\/project\/2891\/1699511909_1699511909654c7e6567b99ads_images_7764.jpg","thumbnailUrl":"https:\/\/pic.rumah123.com\/r123\/250x160-fit\/primary_property\/project\/2891\/1699511909_1699511909654c7e6567b99ads_images_7764.jpg","formatUrl":"https:\/\/pic.rumah123.com\/r123\/{width}x{height}-{scale}\/primary_property\/project\/2891\/1699511909_1699511909654c7e6567b99ads_images_7764.jpg","order":6},{"mediaUrl":"https:\/\/pic.rumah123.com\/r123\/1080x720-fit\/primary_property\/project\/2891\/1699511909_1699511909654c7e65b14a1ads_images_7764.jpg","thumbnailUrl":"https:\/\/pic.rumah123.com\/r123\/250x160-fit\/primary_property\/project\/2891\/1699511909_1699511909654c7e65b14a1ads_images_7764.jpg","formatUrl":"https:\/\/pic.rumah123.com\/r123\/{width}x{height}-{scale}\/primary_property\/project\/2891\/1699511909_1699511909654c7e65b14a1ads_images_7764.jpg","order":7},{"mediaUrl":"https:\/\/pic.rumah123.com\/r123\/1080x720-fit\/primary_property\/project\/2891\/1699511927_1699511927654c7e77d366dads_images_7764.jpg","thumbnailUrl":"https:\/\/pic.rumah123.com\/r123\/250x160-fit\/primary_property\/project\/2891\/1699511927_1699511927654c7e77d366dads_images_7764.jpg","formatUrl":"https:\/\/pic.rumah123.com\/r123\/{width}x{height}-{scale}\/primary_property\/project\/2891\/1699511927_1699511927654c7e77d366dads_images_7764.jpg","order":8}]},{"mediaType":"SITEPLAN","mediaInfo":[{"mediaUrl":"https:\/\/pic.rumah123.com\/r123\/1080x720-fit\/primary_property\/project\/2891\/1699510463_654c78bf4eaf9floorplan_7764.jpg","thumbnailUrl":"https:\/\/pic.rumah123.com\/r123\/250x160-fit\/primary_property\/project\/2891\/1699510463_654c78bf4eaf9floorplan_7764.jpg","formatUrl":"https:\/\/pic.rumah123.com\/r123\/{width}x{height}-{scale}\/primary_property\/project\/2891\/1699510463_654c78bf4eaf9floorplan_7764.jpg","order":0}]}],"attributes":{"landSize":{"name":"landSize","label":"Luas Tanah","value":"105","formattedValue":"105 m\u00b2"},"buildingSize":{"name":"buildingSize","label":"Luas Bangunan","value":"193","formattedValue":"193 m\u00b2"},"bedrooms":{"name":"bedrooms","label":"Kamar","value":"5","formattedValue":"5"},"bathrooms":{"name":"bathrooms","label":"Kamar Mandi","value":"5","formattedValue":"5"},"carports":null},"propertyType":{"name":"propertyType","label":"Tipe Properti","value":"0","formattedValue":"Rumah"},"price":{"minValue":5800000000,"maxValue":5800000000,"currencyType":360,"display":"Rp 5,8 Miliar","offer":5800000000,"unitType":0,"subDisplay":""},"location":{"uuid":"","level":0,"name":"","locationType":0,"text":""},"subtitle":"","url":"\/perumahan-baru\/properti\/jakarta-timur\/bukit-podomoro-jakarta\/tipe-7-regent\/hos67764\/"},{"title":"Tipe 8 Royal","description":"[\"Pondasi : Tiang Pancang \",\"Dinding : Bata Merah \",\"Lantai : Homogenous Tyle 80 X 80 Unit Type 6 dan 7\"]","uuid":"cc8fa706-6a85-43c1-ba38-18029226b24a","medias":[{"mediaType":"COVER","mediaInfo":[{"mediaUrl":"https:\/\/pic.rumah123.com\/r123\/1080x720-fit\/primary_property\/project\/2891\/1699509897_1699509897654c76893e85aads_images_7765.jpg","thumbnailUrl":"https:\/\/pic.rumah123.com\/r123\/250x160-fit\/primary_property\/project\/2891\/1699509897_1699509897654c76893e85aads_images_7765.jpg","formatUrl":"https:\/\/pic.rumah123.com\/r123\/{width}x{height}-{scale}\/primary_property\/project\/2891\/1699509897_1699509897654c76893e85aads_images_7765.jpg","order":0}]},{"mediaType":"REGULAR","mediaInfo":[{"mediaUrl":"https:\/\/pic.rumah123.com\/r123\/1080x720-fit\/primary_property\/project\/2891\/1699512049_1699512049654c7ef186f1cads_images_7765.jpg","thumbnailUrl":"https:\/\/pic.rumah123.com\/r123\/250x160-fit\/primary_property\/project\/2891\/1699512049_1699512049654c7ef186f1cads_images_7765.jpg","formatUrl":"https:\/\/pic.rumah123.com\/r123\/{width}x{height}-{scale}\/primary_property\/project\/2891\/1699512049_1699512049654c7ef186f1cads_images_7765.jpg","order":2},{"mediaUrl":"https:\/\/pic.rumah123.com\/r123\/1080x720-fit\/primary_property\/project\/2891\/1699512050_1699512050654c7ef2af579ads_images_7765.jpg","thumbnailUrl":"https:\/\/pic.rumah123.com\/r123\/250x160-fit\/primary_property\/project\/2891\/1699512050_1699512050654c7ef2af579ads_images_7765.jpg","formatUrl":"https:\/\/pic.rumah123.com\/r123\/{width}x{height}-{scale}\/primary_property\/project\/2891\/1699512050_1699512050654c7ef2af579ads_images_7765.jpg","order":3},{"mediaUrl":"https:\/\/pic.rumah123.com\/r123\/1080x720-fit\/primary_property\/project\/2891\/1699512050_1699512050654c7ef2b02cfads_images_7765.jpg","thumbnailUrl":"https:\/\/pic.rumah123.com\/r123\/250x160-fit\/primary_property\/project\/2891\/1699512050_1699512050654c7ef2b02cfads_images_7765.jpg","formatUrl":"https:\/\/pic.rumah123.com\/r123\/{width}x{height}-{scale}\/primary_property\/project\/2891\/1699512050_1699512050654c7ef2b02cfads_images_7765.jpg","order":4},{"mediaUrl":"https:\/\/pic.rumah123.com\/r123\/1080x720-fit\/primary_property\/project\/2891\/1699512050_1699512050654c7ef2a8a1bads_images_7765.jpg","thumbnailUrl":"https:\/\/pic.rumah123.com\/r123\/250x160-fit\/primary_property\/project\/2891\/1699512050_1699512050654c7ef2a8a1bads_images_7765.jpg","formatUrl":"https:\/\/pic.rumah123.com\/r123\/{width}x{height}-{scale}\/primary_property\/project\/2891\/1699512050_1699512050654c7ef2a8a1bads_images_7765.jpg","order":5},{"mediaUrl":"https:\/\/pic.rumah123.com\/r123\/1080x720-fit\/primary_property\/project\/2891\/1699512050_1699512050654c7ef2b0d4dads_images_7765.jpg","thumbnailUrl":"https:\/\/pic.rumah123.com\/r123\/250x160-fit\/primary_property\/project\/2891\/1699512050_1699512050654c7ef2b0d4dads_images_7765.jpg","formatUrl":"https:\/\/pic.rumah123.com\/r123\/{width}x{height}-{scale}\/primary_property\/project\/2891\/1699512050_1699512050654c7ef2b0d4dads_images_7765.jpg","order":6},{"mediaUrl":"https:\/\/pic.rumah123.com\/r123\/1080x720-fit\/primary_property\/project\/2891\/1699512050_1699512050654c7ef2ebcb0ads_images_7765.jpg","thumbnailUrl":"https:\/\/pic.rumah123.com\/r123\/250x160-fit\/primary_property\/project\/2891\/1699512050_1699512050654c7ef2ebcb0ads_images_7765.jpg","formatUrl":"https:\/\/pic.rumah123.com\/r123\/{width}x{height}-{scale}\/primary_property\/project\/2891\/1699512050_1699512050654c7ef2ebcb0ads_images_7765.jpg","order":7}]},{"mediaType":"SITEPLAN","mediaInfo":[{"mediaUrl":"https:\/\/pic.rumah123.com\/r123\/1080x720-fit\/primary_property\/project\/2891\/1699510472_654c78c8d9f91floorplan_7765.jpg","thumbnailUrl":"https:\/\/pic.rumah123.com\/r123\/250x160-fit\/primary_property\/project\/2891\/1699510472_654c78c8d9f91floorplan_7765.jpg","formatUrl":"https:\/\/pic.rumah123.com\/r123\/{width}x{height}-{scale}\/primary_property\/project\/2891\/1699510472_654c78c8d9f91floorplan_7765.jpg","order":0}]}],"attributes":{"landSize":{"name":"landSize","label":"Luas Tanah","value":"120","formattedValue":"120 m\u00b2"},"buildingSize":{"name":"buildingSize","label":"Luas Bangunan","value":"223","formattedValue":"223 m\u00b2"},"bedrooms":{"name":"bedrooms","label":"Kamar","value":"5","formattedValue":"5"},"bathrooms":{"name":"bathrooms","label":"Kamar Mandi","value":"5","formattedValue":"5"},"carports":null},"propertyType":{"name":"propertyType","label":"Tipe Properti","value":"0","formattedValue":"Rumah"},"price":{"minValue":6600000000,"maxValue":6600000000,"currencyType":360,"display":"Rp 6,6 Miliar","offer":6600000000,"unitType":0,"subDisplay":""},"location":{"uuid":"","level":0,"name":"","locationType":0,"text":""},"subtitle":"","url":"\/perumahan-baru\/properti\/jakarta-timur\/bukit-podomoro-jakarta\/tipe-8-royal\/hos77765\/"},{"title":"Tipe 8 Classic","description":"[\"Structure \",\"Foundation : Mini Pile\",\"Main Structure : Reinforced Concrete\",\"Wall (Exterior & Interior) : Red Brick (with Plaster & Paint)\",\"Roof \",\"Main Roof : Bitumen Shingles with Lightweight Steel Structures +Insulation & Concrete Flat Roof\",\"Carport Canopy : Laminated Tempered Glass with Steel Structure\",\"Ceiling\",\"Interior : Gypsumboard with Paint Finish\",\"Exterior Area and Bathroom : Water Resistant Gypsumboard with Paint Finish\",\"Door & Window\",\"Main Entrance Door & Interior Door : Solid Engineeering Wood\",\"Sliding Door : Glass, Alumunium Powder \",\"Service Bathroom Door : Coating Frame Engineering Wood\",\"Window : Glass, Alumunium Powder Coating Frame\",\"Sanitair\",\"Main, Guest & Kids Bathroom : Shower (ex. Hansgrohe)\",\"Bathroom : Wastafel, Toilet (ex. TOTO)\",\"Service bathroom : Shower, Toilet (ex. TOTO)\",\"Finishing Wall\",\"Interior Wall \",\"General Wall, Bedroom : Interior Paint\",\"Main, Guest & Kisd Bathroom : Homogeneous Tile\",\"Service Bathroom : Ceramic Paint\",\"Exterior Wall : Exterior Paint\",\"Floor\",\"Interior Area Type 6 & 7 : Premium Homogeneous Tile 80x80cm\",\"Interior Area Type 8 : Premium Homogeneous Tile 100x100cm\",\"Bedroom : Vinyl Flooring\",\"Balcony & Bathroom : Homogeneous Tile\",\"Service Bathroom : Ceramic Tile\",\"Carport : Patterned Concrete\",\"Utilities\",\"Clean Water : PDAM\",\"Electricity : Type 6 (5500 VA), Type 7 & & (7700 VA)\",\"Phone : Living Room & Main Bedroom\",\"Water Heater : Electric Centralized System\",\"AC : Installation Provided\"]","uuid":"f6c0e738-4790-4f4a-b9df-92aa028e2057","medias":[{"mediaType":"SITEPLAN","mediaInfo":[{"mediaUrl":"https:\/\/pic.rumah123.com\/r123\/1080x720-fit\/primary_property\/project\/2891\/1683614376_6459eaa83209ffloorplan_5801.jpg","thumbnailUrl":"https:\/\/pic.rumah123.com\/r123\/250x160-fit\/primary_property\/project\/2891\/1683614376_6459eaa83209ffloorplan_5801.jpg","formatUrl":"https:\/\/pic.rumah123.com\/r123\/{width}x{height}-{scale}\/primary_property\/project\/2891\/1683614376_6459eaa83209ffloorplan_5801.jpg","order":0}]},{"mediaType":"COVER","mediaInfo":[{"mediaUrl":"https:\/\/picture.rumah123.com\/r123-images\/1080x720-fit\/customer\/4419385\/42a0a18bb01d24ff90be2d93ed4b1633.jpg","thumbnailUrl":"https:\/\/picture.rumah123.com\/r123-images\/250x160-fit\/customer\/4419385\/42a0a18bb01d24ff90be2d93ed4b1633.jpg","formatUrl":"https:\/\/picture.rumah123.com\/r123-images\/{width}x{height}-{scale}\/customer\/4419385\/42a0a18bb01d24ff90be2d93ed4b1633.jpg","order":0}]},{"mediaType":"REGULAR","mediaInfo":[{"mediaUrl":"https:\/\/picture.rumah123.com\/r123-images\/1080x720-fit\/customer\/4419385\/2ebe0d0d999d01f9b1d5234f18a7f14b.jpg","thumbnailUrl":"https:\/\/picture.rumah123.com\/r123-images\/250x160-fit\/customer\/4419385\/2ebe0d0d999d01f9b1d5234f18a7f14b.jpg","formatUrl":"https:\/\/picture.rumah123.com\/r123-images\/{width}x{height}-{scale}\/customer\/4419385\/2ebe0d0d999d01f9b1d5234f18a7f14b.jpg","order":1},{"mediaUrl":"https:\/\/picture.rumah123.com\/r123-images\/1080x720-fit\/customer\/4419385\/b4c3d8e4be085301b250e5f21a489e41.jpg","thumbnailUrl":"https:\/\/picture.rumah123.com\/r123-images\/250x160-fit\/customer\/4419385\/b4c3d8e4be085301b250e5f21a489e41.jpg","formatUrl":"https:\/\/picture.rumah123.com\/r123-images\/{width}x{height}-{scale}\/customer\/4419385\/b4c3d8e4be085301b250e5f21a489e41.jpg","order":2},{"mediaUrl":"https:\/\/picture.rumah123.com\/r123-images\/1080x720-fit\/customer\/4357922\/eb0af6981341fa2bd24605910596ab0a.jpg","thumbnailUrl":"https:\/\/picture.rumah123.com\/r123-images\/250x160-fit\/customer\/4357922\/eb0af6981341fa2bd24605910596ab0a.jpg","formatUrl":"https:\/\/picture.rumah123.com\/r123-images\/{width}x{height}-{scale}\/customer\/4357922\/eb0af6981341fa2bd24605910596ab0a.jpg","order":3},{"mediaUrl":"https:\/\/pic.rumah123.com\/r123\/1080x720-fit\/primary_property\/project\/2891\/1691748730_169174873064d60979f1d9dads_images_5801.jpg","thumbnailUrl":"https:\/\/pic.rumah123.com\/r123\/250x160-fit\/primary_property\/project\/2891\/1691748730_169174873064d60979f1d9dads_images_5801.jpg","formatUrl":"https:\/\/pic.rumah123.com\/r123\/{width}x{height}-{scale}\/primary_property\/project\/2891\/1691748730_169174873064d60979f1d9dads_images_5801.jpg","order":4},{"mediaUrl":"https:\/\/pic.rumah123.com\/r123\/1080x720-fit\/primary_property\/project\/2891\/1683614304_16836143046459ea60c2790ads_images_5801.jpg","thumbnailUrl":"https:\/\/pic.rumah123.com\/r123\/250x160-fit\/primary_property\/project\/2891\/1683614304_16836143046459ea60c2790ads_images_5801.jpg","formatUrl":"https:\/\/pic.rumah123.com\/r123\/{width}x{height}-{scale}\/primary_property\/project\/2891\/1683614304_16836143046459ea60c2790ads_images_5801.jpg","order":5},{"mediaUrl":"https:\/\/pic.rumah123.com\/r123\/1080x720-fit\/primary_property\/project\/2891\/1683614314_16836143146459ea6a17166ads_images_5801.jpg","thumbnailUrl":"https:\/\/pic.rumah123.com\/r123\/250x160-fit\/primary_property\/project\/2891\/1683614314_16836143146459ea6a17166ads_images_5801.jpg","formatUrl":"https:\/\/pic.rumah123.com\/r123\/{width}x{height}-{scale}\/primary_property\/project\/2891\/1683614314_16836143146459ea6a17166ads_images_5801.jpg","order":6},{"mediaUrl":"https:\/\/pic.rumah123.com\/r123\/1080x720-fit\/primary_property\/project\/2891\/1683614314_16836143146459ea6ac31bbads_images_5801.jpg","thumbnailUrl":"https:\/\/pic.rumah123.com\/r123\/250x160-fit\/primary_property\/project\/2891\/1683614314_16836143146459ea6ac31bbads_images_5801.jpg","formatUrl":"https:\/\/pic.rumah123.com\/r123\/{width}x{height}-{scale}\/primary_property\/project\/2891\/1683614314_16836143146459ea6ac31bbads_images_5801.jpg","order":7},{"mediaUrl":"https:\/\/pic.rumah123.com\/r123\/1080x720-fit\/primary_property\/project\/2891\/1683614314_16836143146459ea6ac5ca5ads_images_5801.jpg","thumbnailUrl":"https:\/\/pic.rumah123.com\/r123\/250x160-fit\/primary_property\/project\/2891\/1683614314_16836143146459ea6ac5ca5ads_images_5801.jpg","formatUrl":"https:\/\/pic.rumah123.com\/r123\/{width}x{height}-{scale}\/primary_property\/project\/2891\/1683614314_16836143146459ea6ac5ca5ads_images_5801.jpg","order":8},{"mediaUrl":"https:\/\/pic.rumah123.com\/r123\/1080x720-fit\/primary_property\/project\/2891\/1683614315_16836143156459ea6b017e3ads_images_5801.jpg","thumbnailUrl":"https:\/\/pic.rumah123.com\/r123\/250x160-fit\/primary_property\/project\/2891\/1683614315_16836143156459ea6b017e3ads_images_5801.jpg","formatUrl":"https:\/\/pic.rumah123.com\/r123\/{width}x{height}-{scale}\/primary_property\/project\/2891\/1683614315_16836143156459ea6b017e3ads_images_5801.jpg","order":9},{"mediaUrl":"https:\/\/pic.rumah123.com\/r123\/1080x720-fit\/primary_property\/project\/2891\/1683614315_16836143156459ea6b0ae81ads_images_5801.jpg","thumbnailUrl":"https:\/\/pic.rumah123.com\/r123\/250x160-fit\/primary_property\/project\/2891\/1683614315_16836143156459ea6b0ae81ads_images_5801.jpg","formatUrl":"https:\/\/pic.rumah123.com\/r123\/{width}x{height}-{scale}\/primary_property\/project\/2891\/1683614315_16836143156459ea6b0ae81ads_images_5801.jpg","order":10},{"mediaUrl":"https:\/\/pic.rumah123.com\/r123\/1080x720-fit\/primary_property\/project\/2891\/1683614315_16836143156459ea6b03a71ads_images_5801.jpg","thumbnailUrl":"https:\/\/pic.rumah123.com\/r123\/250x160-fit\/primary_property\/project\/2891\/1683614315_16836143156459ea6b03a71ads_images_5801.jpg","formatUrl":"https:\/\/pic.rumah123.com\/r123\/{width}x{height}-{scale}\/primary_property\/project\/2891\/1683614315_16836143156459ea6b03a71ads_images_5801.jpg","order":11},{"mediaUrl":"https:\/\/pic.rumah123.com\/r123\/1080x720-fit\/primary_property\/project\/2891\/1683614315_16836143156459ea6b40593ads_images_5801.jpg","thumbnailUrl":"https:\/\/pic.rumah123.com\/r123\/250x160-fit\/primary_property\/project\/2891\/1683614315_16836143156459ea6b40593ads_images_5801.jpg","formatUrl":"https:\/\/pic.rumah123.com\/r123\/{width}x{height}-{scale}\/primary_property\/project\/2891\/1683614315_16836143156459ea6b40593ads_images_5801.jpg","order":12}]}],"attributes":{"landSize":{"name":"landSize","label":"Luas Tanah","value":"136","formattedValue":"136 m\u00b2"},"buildingSize":{"name":"buildingSize","label":"Luas Bangunan","value":"231","formattedValue":"231 m\u00b2"},"bedrooms":{"name":"bedrooms","label":"Kamar","value":"5","formattedValue":"5"},"bathrooms":{"name":"bathrooms","label":"Kamar Mandi","value":"4","formattedValue":"4"},"carports":null},"propertyType":{"name":"propertyType","label":"Tipe Properti","value":"0","formattedValue":"Rumah"},"price":{"minValue":7200000000,"maxValue":7200000000,"currencyType":360,"display":"Rp 7,2 Miliar","offer":7200000000,"unitType":0,"subDisplay":""},"location":{"uuid":"","level":0,"name":"","locationType":0,"text":""},"subtitle":"","url":"\/perumahan-baru\/properti\/jakarta-timur\/bukit-podomoro-jakarta\/tipe-8-classic\/hos85801\/"}]},{"name":"Ruko","properties":[{"title":"Bukit Boulevard 5x10, 3 Lantai","description":"","uuid":"9474d858-a9b3-48b1-b85d-4bfc0aef52d2","medias":[{"mediaType":"COVER","mediaInfo":[{"mediaUrl":"https:\/\/picture.rumah123.com\/r123-images\/1080x720-fit\/customer\/543233\/4fea85e1a14ab0bee9f97da47debf90c.jpg","thumbnailUrl":"https:\/\/picture.rumah123.com\/r123-images\/250x160-fit\/customer\/543233\/4fea85e1a14ab0bee9f97da47debf90c.jpg","formatUrl":"https:\/\/picture.rumah123.com\/r123-images\/{width}x{height}-{scale}\/customer\/543233\/4fea85e1a14ab0bee9f97da47debf90c.jpg","order":0}]},{"mediaType":"REGULAR","mediaInfo":[{"mediaUrl":"https:\/\/picture.rumah123.com\/r123-images\/1080x720-fit\/customer\/543233\/52769823488ced8b39740ddaeb3529fa.jpg","thumbnailUrl":"https:\/\/picture.rumah123.com\/r123-images\/250x160-fit\/customer\/543233\/52769823488ced8b39740ddaeb3529fa.jpg","formatUrl":"https:\/\/picture.rumah123.com\/r123-images\/{width}x{height}-{scale}\/customer\/543233\/52769823488ced8b39740ddaeb3529fa.jpg","order":1}]},{"mediaType":"SITEPLAN","mediaInfo":[{"mediaUrl":"https:\/\/picture.rumah123.com\/r123-images\/1080x720-fit\/customer\/543233\/0b0ac336d4fc38fec9594a3aa9e92576.jpg","thumbnailUrl":"https:\/\/picture.rumah123.com\/r123-images\/250x160-fit\/customer\/543233\/0b0ac336d4fc38fec9594a3aa9e92576.jpg","formatUrl":"https:\/\/picture.rumah123.com\/r123-images\/{width}x{height}-{scale}\/customer\/543233\/0b0ac336d4fc38fec9594a3aa9e92576.jpg","order":0}]}],"attributes":{"landSize":{"name":"landSize","label":"Luas Tanah","value":"50","formattedValue":"50 m\u00b2"},"buildingSize":{"name":"buildingSize","label":"Luas Bangunan","value":"150","formattedValue":"150 m\u00b2"},"bedrooms":null,"bathrooms":null,"carports":null},"propertyType":{"name":"propertyType","label":"Tipe Properti","value":"2","formattedValue":"Ruko"},"price":{"minValue":4300000000,"maxValue":4300000000,"currencyType":360,"display":"Rp 4,3 Miliar","offer":4300000000,"unitType":0,"subDisplay":""},"location":{"uuid":"","level":0,"name":"","locationType":0,"text":""},"subtitle":"","url":"\/perumahan-baru\/properti\/jakarta-timur\/bukit-podomoro-jakarta\/bukit-boulevard-5x10-3-lantai\/shs19352\/"},{"title":"Bukit Avenue 5x17, 3 Lantai","description":"","uuid":"061899e1-a24d-43b0-8d43-06235d7e6110","medias":[{"mediaType":"COVER","mediaInfo":[{"mediaUrl":"https:\/\/picture.rumah123.com\/r123-images\/1080x720-fit\/customer\/543233\/d0006fa911baf476a7f0658a91fb91be.jpg","thumbnailUrl":"https:\/\/picture.rumah123.com\/r123-images\/250x160-fit\/customer\/543233\/d0006fa911baf476a7f0658a91fb91be.jpg","formatUrl":"https:\/\/picture.rumah123.com\/r123-images\/{width}x{height}-{scale}\/customer\/543233\/d0006fa911baf476a7f0658a91fb91be.jpg","order":0}]},{"mediaType":"REGULAR","mediaInfo":[{"mediaUrl":"https:\/\/picture.rumah123.com\/r123-images\/1080x720-fit\/customer\/543233\/04ed4a9e37c2d240d5c12180b4dbaa3b.jpg","thumbnailUrl":"https:\/\/picture.rumah123.com\/r123-images\/250x160-fit\/customer\/543233\/04ed4a9e37c2d240d5c12180b4dbaa3b.jpg","formatUrl":"https:\/\/picture.rumah123.com\/r123-images\/{width}x{height}-{scale}\/customer\/543233\/04ed4a9e37c2d240d5c12180b4dbaa3b.jpg","order":1},{"mediaUrl":"https:\/\/picture.rumah123.com\/r123-images\/1080x720-fit\/customer\/543233\/b359b3b7dad4fbdd0ded21b169ee4fe7.jpg","thumbnailUrl":"https:\/\/picture.rumah123.com\/r123-images\/250x160-fit\/customer\/543233\/b359b3b7dad4fbdd0ded21b169ee4fe7.jpg","formatUrl":"https:\/\/picture.rumah123.com\/r123-images\/{width}x{height}-{scale}\/customer\/543233\/b359b3b7dad4fbdd0ded21b169ee4fe7.jpg","order":2}]},{"mediaType":"SITEPLAN","mediaInfo":[{"mediaUrl":"https:\/\/picture.rumah123.com\/r123-images\/1080x720-fit\/customer\/543233\/ed782ecf86dbbaa884531a2ecdbea326.jpg","thumbnailUrl":"https:\/\/picture.rumah123.com\/r123-images\/250x160-fit\/customer\/543233\/ed782ecf86dbbaa884531a2ecdbea326.jpg","formatUrl":"https:\/\/picture.rumah123.com\/r123-images\/{width}x{height}-{scale}\/customer\/543233\/ed782ecf86dbbaa884531a2ecdbea326.jpg","order":0}]}],"attributes":{"landSize":{"name":"landSize","label":"Luas Tanah","value":"85","formattedValue":"85 m\u00b2"},"buildingSize":{"name":"buildingSize","label":"Luas Bangunan","value":"195","formattedValue":"195 m\u00b2"},"bedrooms":null,"bathrooms":null,"carports":null},"propertyType":{"name":"propertyType","label":"Tipe Properti","value":"2","formattedValue":"Ruko"},"price":{"minValue":6500000000,"maxValue":6500000000,"currencyType":360,"display":"Rp 6,5 Miliar","offer":6500000000,"unitType":0,"subDisplay":""},"location":{"uuid":"","level":0,"name":"","locationType":0,"text":""},"subtitle":"","url":"\/perumahan-baru\/properti\/jakarta-timur\/bukit-podomoro-jakarta\/bukit-avenue-5x17-3-lantai\/shs29351\/"}]}]},"url":"\/perumahan-baru\/properti\/jakarta-timur\/bukit-podomoro-jakarta\/nps2891\/"}]}}},"strapi":null,"baseUrl":"https:\/\/www.rumah123.com"}
Denah Rumah 4 Kamar Tidur 1 Lantai

Sumber foto: instagram.com/tangromastudio
Ini adalah denah yang cocok diterapkan untuk kamu yang ingin mendapatkan kenyamanan tanpa harus membuat rumah bertingkat.
Denahnya memaksimalkan penggunaan lahan secara horizontal dan dengan pembagian ruang secara efisien.
Apabila penataannya tepat, dan dibuat dengan konsep open space, rumah akan tetap terasa lapang, fungsional, dan estetis.
Denah Rumah 4 Kamar Tidur dengan Koridor

Sumber foto: instagram.com/denahrumah.impian
Koridor pada bagian tengah rumah ini bisa berfungsi sebagai penghubung utama antar kamar tanpa mengganggu area aktivitas utama.
Dengan denah ini, kamu pun bisa lebih mudah untuk membagi ruang secara jelas dan terorganisir.
Selain fungsional, koridor juga bisa dimanfaatkan untuk elemen dekoratif seperti rak atau pencahayaan artistik.
Denah Rumah 4 Kamar Tidur dengan 2 Lantai

Sumber foto: instagram.com/bengkelrumahsleman
Tak perlu bingung jika ingin membangun rumah di lahan terbatas.
Apabila budget-mu banyak, bisa membuatnya jadi bertingkat.
Setelah itu, kamu bisa membagi lantainya sesuai fungsinya.
Misalnya, lantai bawah biasanya difokuskan untuk area publik seperti ruang tamu, dapur, dan satu kamar tamu, sementara lantai atas difungsikan sebagai area privat.
Desain Rumah Mewah 4 Kamar dengan Kolam Renang

Sumber foto: Pinterest
Membeli rumah dengan ukuran tanah yang luas memang ada plus minus-nya.
Di satu sisi Anda bisa berkreasi dengan membuat kebun, tapi akan repot untuk mengurus dan merawat semua tanaman.
Apabila Anda memiliki layout rumah 4 kamar tidur seperti di atas, penambahan kolam renang dengan patio bisa jadi referensi terbaik.
Selain dapat memanfaatkan lahan secara maksimal, Anda juga bisa mendapatkan hiburan terbaik selama di rumah.
Tidak hanya kolam renang, Anda juga dapat membuat area hiburan lain seperti ruang home theater berkapasitas delapan orang.
Rumah 2 Lantai 4 Kamar Tidur

Sumber foto: Pinterest
Model rumah dua lantai jadi opsi tepat buat Anda yang memiliki lahan terbatas.
Meskipun luas tanah yang tidak terlalu luas, namun untuk ukuran rumah dengan 4 kamar atau lebih, rata-rata luas bangunanya bisa mencapai 98 m² sampai 180 m².
Luas bangunan tersebut cukup ideal, selain ketersediaan ruang yang banyak, ukuran setiap area pun terbilang sangat lega dan mudah dibagi-bagi.
Jika Anda tipe orang yang lebih menyukai semua aktivitas santai berada dalam satu area, maka contoh denah di atas dapat ditiru.
Terlihat jelas pada denah, yang mana semua kamar tidur diletakkan di lantai dua dengan dua kamar mandi.
Sedangkan, di lantai pertama khusus digunakan sebagai area aktif seperti memasak, menyambut tamu, hingga bercengkrama bersama keluarga.
Menariknya ketika kita masuk ke dalam rumah, Anda akan dibawa untuk melihat isi keseluruhan ruangan.
Mulai dari area entertainment, kamar tamu, sampai akhirnya area open plan yang menyatukan ruang tamu, ruang makan hingga dapur.
Rumah 4 Kamar Tidur Satu Lantai dengan Mushola

Sumber foto: Pinterest
Masih dengan model rumah dua lantai, hanya saja bentuk hunian ini dibuat lebih memanjang.
Banyaknya rumah yang dibuat memanjang, tentu saja menjadi salah satu trik dalam mengatasi rumah di lahan terbatas.
Bahkan Anda bisa membuat model rumah tersebut di dalam gang atau kawasan padat.
Sama seperti rumah empat kamar pada umumnya, hunian ini juga membagi ruangan berdasarkan level.
Pada lantai kedua, semua kegiatan services seperti laundry serta teras untuk menjemur dilakukan di area ini.
Begitu juga dengan tiga kamar tidur anak yang semuanya berada pada lantai yang sama. Tak lupa juga penambahan ruang keluarga bisa jadi area berkumpul dan bermain anak.
Sementara untuk kamar tidur utama difokuskan pada lantai pertama, bersamaan dengan ruangan lainnya termasuk musala yang ada di samping ruang tamu.
Khusus denah rumah dengan mushola, bangunannya dibuat semi outdoor dengan menambahkan patio taman.
Selain mendapat cahaya lebih banyak, musala jadi terlihat lebih luas.
Denah 4 Kamar Tidur dengan Taman sebagai Pemisah

Sumber foto: maxresdefault
Nah, denah rumah 4 kamar terakhir ini bisa Anda jadikan referensi untuk hunian keluarga.
Agar desain rumah lebih menarik dan fungsional, Anda bisa membuat banyak ruang terbuka di dalam rumah.
Seperti contoh denah di atas, terlihat banyak sekali area taman dan transisi ruang pemisah antara ruang istirahat dengan area aktivitas.
Ya, pemilik rumah membuat dua taman samping rumah dengan menambahkan jendela besar, agar perputaran udara jadi lebih lancar serta membuat rumah jadi lebih sehat.
Bicara soal jendela besar sebagai ventilasi alami, sudah banyak perumahan menggunakan material ini sebagai focal point, bahkan ada model dinding rumah kaca.
Denah Rumah 4 Kamar Tidur dengan Teras

Jika Anda sedang mencari rumah dengan nuansa hijau, denah rumah 4 kamar satu ini cocok untuk dipilih.
Pada denah di atas, terdapat sebuah teras dan taman indoor yang bisa diakses dari dalam ruang keluarga dan salah satu kamar tidur.
Dengan adanya taman di dalam hunian, tentu rumah akan bertambah asri dan sejuk, serta memiliki kualitas udara yang baik.
Denah Rumah 4 Kamar Tidur yang Minimalis

Denah rumah 4 kamar di atas terlihat cukup padat karena di sisi kanan dan kiri ruang diletakkan sebuah kamar tidur.
Meski begitu, denah hunian tersebut bisa menjadi inspirasi untuk Anda yang ingin membeli rumah berukuran sedang, tapi memiliki kamar tidur yang cukup banyak.
Denah minimalis di atas cocok bagi Anda yang menginginkan rumah compact, yang difokuskan untuk ruangan fungsional.
Denah Rumah 4 Kamar 1 Lantai

Sumber foto: Pinterest
Denah rumah 4 kamar 1 lantai ini mengusung konsep open space atau ruang terbuka.
Jadi, ruang keluarga, ruang makan, dapur, dan ruang tamunya dibuat tanpa sekat.
Keuntungannya, ruang tengah rumahnya bisa terkesan lega, bebas pengap, dan memiliki pencahayaan yang optimal.
Dengan begitu, tinggal di rumahnya bisa lebih nyaman dan sehat.
Pasalnya, pencahayaan yang optimal bisa membantu mengurangi kelembapan yang berpotensi menjadi sarang bakteri dan virus.
Pada denah di atas, semua tempat tidurnya ditempatkan di pojok rumah.
Jadi, usahakan membangun rumahnya dengan bentuk persegi, agar tata ruang kamar tidurnya dapat ditempatkan secara optimal.
Denah Rumah 4 Kamar 1 Mushola

Sumber foto: Canva
Pada gambar di atas, musholanya ditempatkan terpisah dari ruang utama di rumah.
Dengan begitu, penghuni bisa beribadah secara khusyuk karena ruangannya tenang.
Lalu, karena ruangannya dibuat terpisah, Anda bisa membuat desain mushola yang sedikit berbeda dibandingkan ruangan-ruangan lainnya.
Misalnya, jika Anda ingin mushola yang terkesan alami, bisa menambahkan unsur batu alam di beberapa bagiannya.
Atau, Anda juga bisa menambahkan taman kecil lengkap dengan kolamnya di luar mushola.
Suara gemericik dari kolam itu bisa membuat suasana di mushola menjadi lebih tenang.
Baca juga: 9 Inspirasi Desain Mushola Rumah Minimalis yang Nyaman untuk Ibadah
Denah Rumah 4 Kamar Sederhana

Sumber foto: home-designing.com
Untuk membuat rumah terkesan lebih sederhana, Anda bisa mengusung desain minimalis.
Ya, minimalis adalah desain yang mengutamakan kesederhanaan, kerapian, dan kebersihan.
Itu karena desain tersebut mencoba untuk mengurangi aspek dekoratif berlebihan.
Biasanya, rumah minimalis juga menggunakan warna-warna yang netral, seperti putih, abu-abu, atau krem.
Pada denah rumah 4 kamar sederhana di atas, warna yang digunakan adalah abu-abu dan putih.
Dengan begitu, rumahnya jadi terkesan lebih sederhana.
Jika bingung dengan desain minimalis, Anda bisa melihat contohnya di Yara at the Kaia Grand Wisata atau Bukit Podomoro Jakarta.
Denah Rumah 4 Kamar 2 Lantai

Denah rumah ini bisa dibangun di lahan kosong yang terbatas, misalnya tanah seluas 84 meter persegi.
Lahan-lahan tersebut biasanya berada di kota-kota besar, seperti tanah di Jakarta Pusat, tanah di Bandung, atau tanah di Surabaya.
Pada contoh denah di atas, dua kamar tidurnya berada di lantai bawah, dan dua kamar lainnya berada di lantai atas.
Dua lantai di bawah bisa dimanfaatkan untuk kamar pasangan suami istri dan tamu.
Sementara itu, dua kamar lainnya dapat digunakan sebagai kamar anak.
Denah Rumah 4 Kamar Tidur dan Garasi

Keberadaan garasi di rumah bisa membawa banyak manfaat.
Pertama, mobil dan motor yang Anda miliki tentu bisa lebih aman.
Kedua, Anda bisa leluasa menyimpan sejumlah perkakas yang dibutuhkan dalam perbaikan rumah atau kendaraan.
Dan yang ketiga, rumah dengan garasi biasanya memiliki nilai jual lebih tinggi.
Jadi, jangan ragu untuk membangun garasi di rumah, ya.
Baca juga: 10 Desain Garasi Rumah Minimalis yang Keren dan Aman
Denah Rumah 4 Kamar Minimalis

Sumber foto: nawakarya.co.id
Banyak yang salah kaprah menganggap desain minimalis hanya cocok diterapkan di rumah-rumah mungil.
Namun ternyata tidak demikian. Rumah yang memiliki desain lega, seperti rumah empat kamar tidur juga cocok mengadopsi desain minimalis.
Dengan mengadopsi desain ini, rumah bisa terkesan lebih rapi dan bersih.
Selain itu, rumahnya juga mudah dirawat karena tidak banyak dekorasi.
Jika bingung membuat denahnya, kamu bisa mengambil inspirasi dari gambar di atas.
Keempat kamar tidurnya berada di empat pojok rumah.
Lalu, di antara kedua ruangan kamar, terdapat kamar mandi yang bisa diakses dari dua sisi.
Adanya kamar mandi itu bisa memberikan kemudahan bagi penghuni yang sedang berada di kamar tidur.
Baca juga: 6 Denah Rumah 2 Lantai Minimalis di Perumahan Modern
Denah Rumah 4 Kamar Tidur 2 Kamar Mandi

Rumah ini didesain memiliki dua kamar mandi yang berada di dekat dapur.
Dengan begitu, penghuni rumah tidak akan mengalami antrean ketika hendak mandi di pagi hari saat hendak beraktivitas.
Selain itu, keberadaan kamar mandi yang dekat dapur itu juga memudahkan untuk penghuni yang ingin membuat air sisa memasak.
Kelebihan lainnya pada denah rumah di atas adalah keberadaan taman di bagian depan dan belakang rumah.
Selain membuat rumah terlihat segar, taman itu bisa dimanfaatkan sebagai tempat bersantai.
Mau ngobrolin apapun soal properti? Yuk ke Teras123, dari jual beli properti, KPR sampai share pengalaman kamu juga bisa lho di sini!