
Foto: archdaily
Berikut beberapa contoh denah rumah dengan mushola di dalam untuk keluarga muslim. Hunian Islami seperti ini bisa menjadi tempat tinggal yang lebih nyaman dan tentram.
Mushola merupakan tempat salat, langgar, atau surau. Ruangan khusus yang sengaja dibuat agar salat lebih nyaman dan khusyuk.
Saat ini banyak arsitek dan desainer interior yang merancang denah rumah ada mushola. Tujuannya untuk menyokong keamanan dan kenyamanan penghuni dalam beribadah.
Ya, mungkin kamu berpikir bahwa mushola hanya bisa diadakan dalam hunian yang luas. Kenyataannya tidak begitu, denah rumah minimalis & sederhana pun bisa hadirkan surau.
Ada banyak ide untuk menciptakan sketsa rumah simpel dengan tempat ibadah ini. Langsung saja kita simak beberapa contoh denah rumah dengan mushola di dalam.
Gambar Denah Rumah dengan Mushola Sederhana
Denah Rumah 2 Kamar 1 Mushola

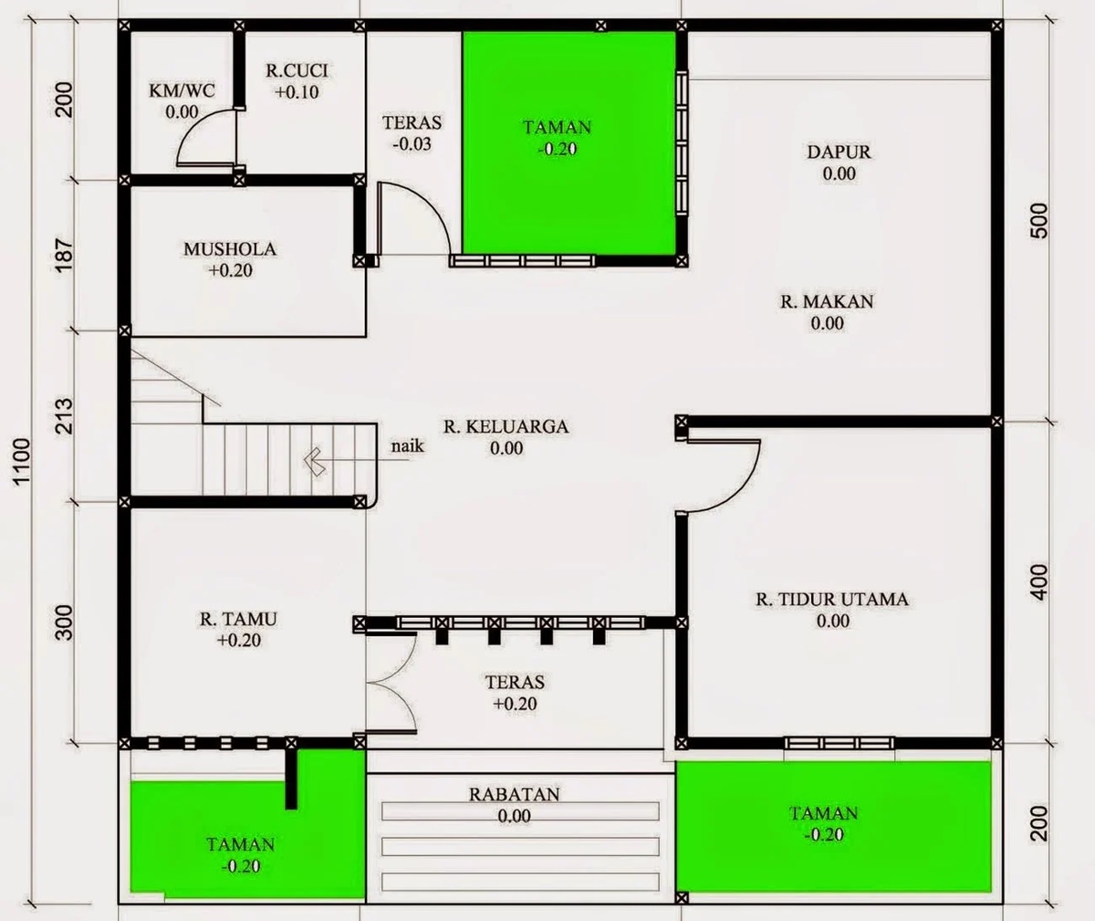
Ukuran mushola dalam rumah ini mungil, sehingga kamu bisa menerapkannya pada lahan terbatas. Ya, seperti yang terlihat, letak mushola dalam rumah berdekatan dengan taman.
Hal tersebut membuat suasana surau lebih segar dan sejuk. Dengan begitu, kamu mendapatkan kenyamanan optimal ketika beribadah.
Pilihlah material kaca untuk membangun sekat yang membatasi mushola dengan taman. Hal ini akan membuat ruangan terasa lebih luas dan tidak sumpek.
Sketsa surau kecil ini bisa dicoba diterapkan pada denah rumah 6×12 atau 6×10 2 kamar. Intinya tipe rumah minimalis dengan luas tanah atau bangunan minimal 60 meter persegi.
Denah Rumah 6×12 3 Kamar 1 Mushola

Foto: desainrumahislami
Sketsa desain rumah 3 kamar tidur 1 mushola minimalis: Desain Rumah Islami
Rumah 1 lantai dengan 3 kamar tidur ini bukan hanya bisa diisi dengan ruang standar. Di sana terdapat lahan kosong yang bisa disulap menjadi tempat beribadah.
Kamu juga bisa melengkapi mushola dengan kolam ikan atau taman agar suasana lebih nyaman. Elemen alami ini bisa menghadirkan suasana khusyuk.
Kemudian supaya rumah tampak lapang, sebaiknya minimalisasi penggunaan sekat permanen dan gunakan partisi portabel yang bisa dipindahkan.
Desain Rumah Ada Mushola 4 Kamar

Foto: Pinterest
Denah rumah dengan mushola 1 lantai ini memiliki luas ukuran 17×18 meter dengan 4 kamar tidur. Berhubung ukurannya besar, jadi cocok untuk keluarga besar.
Dengan ukuran tanah dan bangunan luas, jadi lebih mudah menentukan letak mushola dalam rumah. Pembuat denah menempatkan mushola di antara ruang keluarga dan tamu.
Secara tidak langsung, mushola tersebut menjadi sekat antara kedua ruang tersebut. Jika ada tamu datang dan ikut salat, maka mereka pun mudah menjangkaunya.
Nah, untuk melengkapi semua kebutuhan ibadah, ruang mushola pada contoh denah di atas bisa dibuat ukuran 3×4 atau 4×4 meter.
Denah Rumah 2 Lantai dengan Mushola

Foto: Pinterest
Ruang khusus untuk salat memberikan privasi yang lebih baik bagi penghuni ketika beribadah. Banyak area dalam hunian yang bisa dijadikan tempat ibadah.
Jika mempunyai rumah 2 lantai, maka mushola di bawah tangga bisa menjadi pilihan tepat. Daripada dibiarkan menjadi “area mati”, tentu lebih baik memanfaatkannya untuk ibadah.
Bentuk ruang untuk salat bisa dibuat memanjang, sehingga bisa menampung imam dan makmum salat. Kemudian buatlah ventilasi udara agar mushola tidak lembap.
Banyak pilihan rumah 2 lantai yang bisa disisipkan mushola di bawah tangga. Contohnya seperti rumah di Green Bamboo Terrace, Anvaya Townhouse dan Parkspring.
{"attributes":{"type":"pdp","custom_title":"REKOMENDASI RUMAH 2 LANTAI","custom_cta":"Lihat Unit,Lihat Unit,Lihat Unit","pdp_id":["nps3024","nps3277"]},"pdp":{"data":{"GetPropertiesByOriginID":{"properties":[{"uuid":"75240bf0-0bdd-4757-90bd-a63738746627","agent":{"organization":{"uuid":"42ed3cdc-d2ff-4e11-bedc-133166cd72eb","name":"PT. Anvaya Developer Indonesia","medias":[{"mediaType":"REGULAR","mediaInfo":[{"mediaUrl":"https:\/\/pic.rumah123.com\/r123\/250x250-fit\/developer\/logo\/developer-logo-pt-anvaya-developer-indonesia-1684811999.png","thumbnailUrl":"https:\/\/pic.rumah123.com\/r123\/250x160-fit\/developer\/logo\/developer-logo-pt-anvaya-developer-indonesia-1684811999.png","formatUrl":"https:\/\/pic.rumah123.com\/r123\/{width}x{height}-{scale}\/developer\/logo\/developer-logo-pt-anvaya-developer-indonesia-1684811999.png","order":0}]}],"contacts":[{"contactType":1,"type":"EMAIL","value":"evergreen@99.co"},{"contactType":3,"type":"WHATSAPP","value":"+6281288336230"},{"contactType":5,"type":"WEBSITE","value":"https:\/\/www.anvaya.land\/"},{"contactType":2,"type":"PHONE_NUMBER","value":"+628128617820"}],"url":"\/properti-baru\/developer\/pt-anvaya-developer-indonesia\/1761\/"}},"location":{"uuid":"129274fd-483d-4302-b3df-9116e4b3d683","level":0,"name":"Bogor Barat","locationType":0,"text":"Bogor Barat, Bogor"},"originId":{"value":"nps3277","formattedValue":"nps3277"},"price":{"minValue":1450000000,"maxValue":2250000000,"currencyType":360,"display":"Rp 1,45 Miliar - 2,25 Miliar","offer":1450000000,"unitType":0,"subDisplay":""},"title":"Anvaya Townhouse","medias":[{"mediaType":"FACILITY","mediaInfo":[{"mediaUrl":"https:\/\/pic.rumah123.com\/r123\/1080x720-fit\/primary_property\/project\/3277\/1685088161_facility_63277.png","thumbnailUrl":"https:\/\/pic.rumah123.com\/r123\/250x160-fit\/primary_property\/project\/3277\/1685088161_facility_63277.png","formatUrl":"https:\/\/pic.rumah123.com\/r123\/{width}x{height}-{scale}\/primary_property\/project\/3277\/1685088161_facility_63277.png","order":0},{"mediaUrl":"https:\/\/pic.rumah123.com\/r123\/1080x720-fit\/primary_property\/project\/3277\/1685088188_facility_83277.png","thumbnailUrl":"https:\/\/pic.rumah123.com\/r123\/250x160-fit\/primary_property\/project\/3277\/1685088188_facility_83277.png","formatUrl":"https:\/\/pic.rumah123.com\/r123\/{width}x{height}-{scale}\/primary_property\/project\/3277\/1685088188_facility_83277.png","order":1},{"mediaUrl":"https:\/\/pic.rumah123.com\/r123\/1080x720-fit\/primary_property\/project\/3277\/1685088245_facility_373277.png","thumbnailUrl":"https:\/\/pic.rumah123.com\/r123\/250x160-fit\/primary_property\/project\/3277\/1685088245_facility_373277.png","formatUrl":"https:\/\/pic.rumah123.com\/r123\/{width}x{height}-{scale}\/primary_property\/project\/3277\/1685088245_facility_373277.png","order":2}]},{"mediaType":"BACKGROUND","mediaInfo":[{"mediaUrl":"https:\/\/pic.rumah123.com\/r123\/1080x720-fit\/primary_property\/project\/3277\/1698034311_6535f287b5dbfads_images_3277.jpg","thumbnailUrl":"https:\/\/pic.rumah123.com\/r123\/250x160-fit\/primary_property\/project\/3277\/1698034311_6535f287b5dbfads_images_3277.jpg","formatUrl":"https:\/\/pic.rumah123.com\/r123\/{width}x{height}-{scale}\/primary_property\/project\/3277\/1698034311_6535f287b5dbfads_images_3277.jpg","order":0}]},{"mediaType":"LOGO","mediaInfo":[{"mediaUrl":"https:\/\/picture.rumah123.com\/original\/r123\/primary_property\/project\/3277\/1684815415_646c3e37acd5eads_logo_3277.png","thumbnailUrl":"https:\/\/picture.rumah123.com\/original\/r123\/primary_property\/project\/3277\/1684815415_646c3e37acd5eads_logo_3277.png","formatUrl":"https:\/\/picture.rumah123.com\/original\/r123\/primary_property\/project\/3277\/1684815415_646c3e37acd5eads_logo_3277.png","order":0}]},{"mediaType":"COVER","mediaInfo":[{"mediaUrl":"https:\/\/pic.rumah123.com\/r123\/1080x720-fit\/primary_property\/project\/3277\/1698034311_6535f287b5dbfads_images_3277.jpg","thumbnailUrl":"https:\/\/pic.rumah123.com\/r123\/250x160-fit\/primary_property\/project\/3277\/1698034311_6535f287b5dbfads_images_3277.jpg","formatUrl":"https:\/\/pic.rumah123.com\/r123\/{width}x{height}-{scale}\/primary_property\/project\/3277\/1698034311_6535f287b5dbfads_images_3277.jpg","order":0}]},{"mediaType":"SITEPLAN","mediaInfo":[{"mediaUrl":"https:\/\/pic.rumah123.com\/r123\/1080x720-fit\/primary_property\/project\/3277\/1684813439_siteplan_3277.png","thumbnailUrl":"https:\/\/pic.rumah123.com\/r123\/250x160-fit\/primary_property\/project\/3277\/1684813439_siteplan_3277.png","formatUrl":"https:\/\/pic.rumah123.com\/r123\/{width}x{height}-{scale}\/primary_property\/project\/3277\/1684813439_siteplan_3277.png","order":0}]}],"primaryProject":{"subUnits":[{"name":"Anvaya Townhouse","properties":[{"title":"Vasra","description":"[\"Struktur Bangunan: Struktur beton bertulang, kolom bertulang, balok kolom bertulang, lantai beton bertulang\",\"Dinding \\\/ Atap: Bata ringan\",\" Lantai utama \\\/ Lantai KT \\\/ Lantai KM : Homegenous Tile (Infiniti) \",\"Dinding KM : Homegenous Tile (Infiniti)\",\"Dinding interior : Cat interior (Dulux)\",\"Dinding eksterior : Cat weathershield (Dulux) \",\"Plafon : Rangka Hollow galvanis (A-Plus)\",\"Cat Plafon : Cat Plafon putih (Dulux)\",\"Pintu dan Jendela : alumunium (Allure Industries)\",\"Genteng : Bitumen, GAF Roofing (Garansi 25 tahun)\",\"Closet, Closer Washer, Wastafel, Kran Air, Shower, Floor Drain : American Standard\",\"Pipa air bersih : Rucika\",\"Pipa buangan : Wavin\",\"Toren air : Tangki air, Penguin\",\"Septic tank : Tanji tinja, Bio-fill\",\"Kabel : NYA, NYM (Jembo Cable)\",\"Pipa : Conduit, Clipsal\",\"Stop kontak : Pieno (Schneider)\",\"Saklar : Pieno (Schneider)\",\"MCB : 1 phase (Schneider)\",\"Lampu : LED 4\\\"9 watt (Phillips)\",\"Air : PDAM\",\"Listrik : Abodemen, PLN\",\"Panel surya : 2 panel surya, AmeriSolar (Garansi 12 tahun)\"]","uuid":"a40eb2fe-f455-4bd7-9eaf-f0016eb0a94b","medias":[{"mediaType":"COVER","mediaInfo":[{"mediaUrl":"https:\/\/pic.rumah123.com\/r123\/1080x720-fit\/primary_property\/project\/3277\/1698034213_16980342136535f22558541ads_images_7262.jpg","thumbnailUrl":"https:\/\/pic.rumah123.com\/r123\/250x160-fit\/primary_property\/project\/3277\/1698034213_16980342136535f22558541ads_images_7262.jpg","formatUrl":"https:\/\/pic.rumah123.com\/r123\/{width}x{height}-{scale}\/primary_property\/project\/3277\/1698034213_16980342136535f22558541ads_images_7262.jpg","order":0}]},{"mediaType":"REGULAR","mediaInfo":[{"mediaUrl":"https:\/\/pic.rumah123.com\/r123\/1080x720-fit\/primary_property\/project\/3277\/1698033845_16980338456535f0b566950ads_images_7262.jpg","thumbnailUrl":"https:\/\/pic.rumah123.com\/r123\/250x160-fit\/primary_property\/project\/3277\/1698033845_16980338456535f0b566950ads_images_7262.jpg","formatUrl":"https:\/\/pic.rumah123.com\/r123\/{width}x{height}-{scale}\/primary_property\/project\/3277\/1698033845_16980338456535f0b566950ads_images_7262.jpg","order":0},{"mediaUrl":"https:\/\/pic.rumah123.com\/r123\/1080x720-fit\/primary_property\/project\/3277\/1698033849_16980338496535f0b9e345bads_images_7262.jpg","thumbnailUrl":"https:\/\/pic.rumah123.com\/r123\/250x160-fit\/primary_property\/project\/3277\/1698033849_16980338496535f0b9e345bads_images_7262.jpg","formatUrl":"https:\/\/pic.rumah123.com\/r123\/{width}x{height}-{scale}\/primary_property\/project\/3277\/1698033849_16980338496535f0b9e345bads_images_7262.jpg","order":1}]},{"mediaType":"SITEPLAN","mediaInfo":[{"mediaUrl":"https:\/\/pic.rumah123.com\/r123\/1080x720-fit\/primary_property\/project\/3277\/1684814255_646c39afc6da3floorplan_7262.png","thumbnailUrl":"https:\/\/pic.rumah123.com\/r123\/250x160-fit\/primary_property\/project\/3277\/1684814255_646c39afc6da3floorplan_7262.png","formatUrl":"https:\/\/pic.rumah123.com\/r123\/{width}x{height}-{scale}\/primary_property\/project\/3277\/1684814255_646c39afc6da3floorplan_7262.png","order":0}]}],"attributes":{"landSize":{"name":"landSize","label":"Luas Tanah","value":"70","formattedValue":"70 m\u00b2"},"buildingSize":{"name":"buildingSize","label":"Luas Bangunan","value":"85","formattedValue":"85 m\u00b2"},"bedrooms":{"name":"bedrooms","label":"Kamar","value":"3","formattedValue":"3"},"bathrooms":{"name":"bathrooms","label":"Kamar Mandi","value":"3","formattedValue":"3"},"carports":null},"propertyType":{"name":"propertyType","label":"Tipe Properti","value":"0","formattedValue":"Rumah"},"price":{"minValue":1450000000,"maxValue":1450000000,"currencyType":360,"display":"Rp 1,45 Miliar","offer":1450000000,"unitType":0,"subDisplay":""},"location":{"uuid":"","level":0,"name":"","locationType":0,"text":""},"subtitle":"","url":"\/perumahan-baru\/properti\/bogor\/anvaya-townhouse\/vasra\/hos17262\/"},{"title":"Vardhana","description":"[\"Struktur Bangunan: Struktur beton bertulang, kolom bertulang, balok kolom bertulang, lantai beton bertulang\",\"Dinding \\\/ Atap: Bata ringan\",\" Lantai utama \\\/ Lantai KT \\\/ Lantai KM : Homegenous Tile (Infiniti) \",\"Dinding KM : Homegenous Tile (Infiniti)\",\"Dinding interior : Cat interior (Dulux)\",\"Dinding eksterior : Cat weathershield (Dulux) \",\"Plafon : Rangka Hollow galvanis (A-Plus)\",\"Cat Plafon : Cat Plafon putih (Dulux)\",\"Pintu dan Jendela : alumunium (Allure Industries)\",\"Genteng : Bitumen, GAF Roofing (Garansi 25 tahun)\",\"Closet, Closer Washer, Wastafel, Kran Air, Shower, Floor Drain : American Standard\",\"Pipa air bersih : Rucika\",\"Pipa buangan : Wavin\",\"Toren air : Tangki air, Penguin\",\"Septic tank : Tanji tinja, Bio-fill\",\"Kabel : NYA, NYM (Jembo Cable)\",\"Pipa : Conduit, Clipsal\",\"Stop kontak : Pieno (Schneider)\",\"Saklar : Pieno (Schneider)\",\"MCB : 1 phase (Schneider)\",\"Lampu : LED 4\\\"9 watt (Phillips)\",\"Air : PDAM\",\"Listrik : Abodemen, PLN\",\"Panel surya : 2 panel surya, AmeriSolar (Garansi 12 tahun)\"]","uuid":"69f53e1c-a266-4b79-be63-4ab830b56c8b","medias":[{"mediaType":"COVER","mediaInfo":[{"mediaUrl":"https:\/\/pic.rumah123.com\/r123\/1080x720-fit\/primary_property\/project\/3277\/1698034243_16980342436535f243d8c6aads_images_7263.jpg","thumbnailUrl":"https:\/\/pic.rumah123.com\/r123\/250x160-fit\/primary_property\/project\/3277\/1698034243_16980342436535f243d8c6aads_images_7263.jpg","formatUrl":"https:\/\/pic.rumah123.com\/r123\/{width}x{height}-{scale}\/primary_property\/project\/3277\/1698034243_16980342436535f243d8c6aads_images_7263.jpg","order":0}]},{"mediaType":"REGULAR","mediaInfo":[{"mediaUrl":"https:\/\/pic.rumah123.com\/r123\/1080x720-fit\/primary_property\/project\/3277\/1698034259_16980342596535f25387b62ads_images_7263.jpg","thumbnailUrl":"https:\/\/pic.rumah123.com\/r123\/250x160-fit\/primary_property\/project\/3277\/1698034259_16980342596535f25387b62ads_images_7263.jpg","formatUrl":"https:\/\/pic.rumah123.com\/r123\/{width}x{height}-{scale}\/primary_property\/project\/3277\/1698034259_16980342596535f25387b62ads_images_7263.jpg","order":1},{"mediaUrl":"https:\/\/pic.rumah123.com\/r123\/1080x720-fit\/primary_property\/project\/3277\/1698034264_16980342646535f258132a6ads_images_7263.jpg","thumbnailUrl":"https:\/\/pic.rumah123.com\/r123\/250x160-fit\/primary_property\/project\/3277\/1698034264_16980342646535f258132a6ads_images_7263.jpg","formatUrl":"https:\/\/pic.rumah123.com\/r123\/{width}x{height}-{scale}\/primary_property\/project\/3277\/1698034264_16980342646535f258132a6ads_images_7263.jpg","order":2}]},{"mediaType":"SITEPLAN","mediaInfo":[{"mediaUrl":"https:\/\/pic.rumah123.com\/r123\/1080x720-fit\/primary_property\/project\/3277\/1684814195_646c3973c9b1ffloorplan_7263.png","thumbnailUrl":"https:\/\/pic.rumah123.com\/r123\/250x160-fit\/primary_property\/project\/3277\/1684814195_646c3973c9b1ffloorplan_7263.png","formatUrl":"https:\/\/pic.rumah123.com\/r123\/{width}x{height}-{scale}\/primary_property\/project\/3277\/1684814195_646c3973c9b1ffloorplan_7263.png","order":0}]}],"attributes":{"landSize":{"name":"landSize","label":"Luas Tanah","value":"70","formattedValue":"70 m\u00b2"},"buildingSize":{"name":"buildingSize","label":"Luas Bangunan","value":"85","formattedValue":"85 m\u00b2"},"bedrooms":{"name":"bedrooms","label":"Kamar","value":"3","formattedValue":"3"},"bathrooms":{"name":"bathrooms","label":"Kamar Mandi","value":"3","formattedValue":"3"},"carports":null},"propertyType":{"name":"propertyType","label":"Tipe Properti","value":"0","formattedValue":"Rumah"},"price":{"minValue":1450000000,"maxValue":1450000000,"currencyType":360,"display":"Rp 1,45 Miliar","offer":1450000000,"unitType":0,"subDisplay":""},"location":{"uuid":"","level":0,"name":"","locationType":0,"text":""},"subtitle":"","url":"\/perumahan-baru\/properti\/bogor\/anvaya-townhouse\/vardhana\/hos27263\/"}]},{"name":"Ruko Anvaya","properties":[{"title":"Suvarna","description":"[\"Struktur Bangunan: Struktur beton bertulang, kolom bertulang, balok kolom bertulang, lantai beton bertulang\",\"Dinding \\\/ Atap: Bata ringan\",\" Lantai utama \\\/ Lantai KT \\\/ Lantai KM : Homegenous Tile (Infiniti) \",\"Dinding KM : Homegenous Tile (Infiniti)\",\"Dinding interior : Cat interior (Dulux)\",\"Dinding eksterior : Cat weathershield (Dulux) \",\"Plafon : Rangka Hollow galvanis (A-Plus)\",\"Cat Plafon : Cat Plafon putih (Dulux)\",\"Pintu dan Jendela : alumunium (Allure Industries)\",\"Genteng : Bitumen, GAF Roofing (Garansi 25 tahun)\",\"Closet, Closer Washer, Wastafel, Kran Air, Shower, Floor Drain : American Standard\",\"Pipa air bersih : Rucika\",\"Pipa buangan : Wavin\",\"Toren air : Tangki air, Penguin\",\"Septic tank : Tanji tinja, Bio-fill\",\"Kabel : NYA, NYM (Jembo Cable)\",\"Pipa : Conduit, Clipsal\",\"Stop kontak : Pieno (Schneider)\",\"Saklar : Pieno (Schneider)\",\"MCB : 1 phase (Schneider)\",\"Lampu : LED 4\\\"9 watt (Phillips)\",\"Air : PDAM\",\"Listrik : Abodemen, PLN\",\"Panel surya : 2 panel surya, AmeriSolar (Garansi 12 tahun)\"]","uuid":"4e652d1f-fc91-4b3c-a7ea-f48a0e3b6169","medias":[{"mediaType":"COVER","mediaInfo":[{"mediaUrl":"https:\/\/pic.rumah123.com\/r123\/1080x720-fit\/primary_property\/project\/3277\/1684814443_1684814443646c3a6bebcbaads_images_1684814443.png","thumbnailUrl":"https:\/\/pic.rumah123.com\/r123\/250x160-fit\/primary_property\/project\/3277\/1684814443_1684814443646c3a6bebcbaads_images_1684814443.png","formatUrl":"https:\/\/pic.rumah123.com\/r123\/{width}x{height}-{scale}\/primary_property\/project\/3277\/1684814443_1684814443646c3a6bebcbaads_images_1684814443.png","order":0}]},{"mediaType":"SITEPLAN","mediaInfo":[{"mediaUrl":"https:\/\/pic.rumah123.com\/r123\/1080x720-fit\/primary_property\/project\/3277\/1710211571_65efc1f35c6d0floorplan_7264.jpg","thumbnailUrl":"https:\/\/pic.rumah123.com\/r123\/250x160-fit\/primary_property\/project\/3277\/1710211571_65efc1f35c6d0floorplan_7264.jpg","formatUrl":"https:\/\/pic.rumah123.com\/r123\/{width}x{height}-{scale}\/primary_property\/project\/3277\/1710211571_65efc1f35c6d0floorplan_7264.jpg","order":0}]}],"attributes":{"landSize":{"name":"landSize","label":"Luas Tanah","value":"54","formattedValue":"54 m\u00b2"},"buildingSize":{"name":"buildingSize","label":"Luas Bangunan","value":"180","formattedValue":"180 m\u00b2"},"bedrooms":{"name":"bedrooms","label":"Kamar","value":"3","formattedValue":"3"},"bathrooms":{"name":"bathrooms","label":"Kamar Mandi","value":"3","formattedValue":"3"},"carports":null},"propertyType":{"name":"propertyType","label":"Tipe Properti","value":"2","formattedValue":"Ruko"},"price":{"minValue":2250000000,"maxValue":2250000000,"currencyType":360,"display":"Rp 2,25 Miliar","offer":2250000000,"unitType":0,"subDisplay":""},"location":{"uuid":"","level":0,"name":"","locationType":0,"text":""},"subtitle":"","url":"\/perumahan-baru\/properti\/bogor\/anvaya-townhouse\/suvarna\/shs17264\/"}]}]},"url":"\/perumahan-baru\/properti\/bogor\/anvaya-townhouse\/nps3277\/"},{"uuid":"0e1e8a27-d0e1-41a5-b66e-e252017e7286","agent":{"organization":{"uuid":"f2306d4a-7c8d-414d-a47f-2c7314f78416","name":"PT. Kebun Bambu Jakarta","medias":[{"mediaType":"REGULAR","mediaInfo":[{"mediaUrl":"https:\/\/pic.rumah123.com\/r123\/250x250-fit\/developer\/logo\/developer-logokbjwarna-1725516991.jpg","thumbnailUrl":"https:\/\/pic.rumah123.com\/r123\/250x160-fit\/developer\/logo\/developer-logokbjwarna-1725516991.jpg","formatUrl":"https:\/\/pic.rumah123.com\/r123\/{width}x{height}-{scale}\/developer\/logo\/developer-logokbjwarna-1725516991.jpg","order":0}]}],"contacts":[{"contactType":1,"type":"EMAIL","value":"evergreen@99.co"},{"contactType":3,"type":"WHATSAPP","value":"+6285280037619"},{"contactType":2,"type":"PHONE_NUMBER","value":"+6285280037619"}],"url":"\/properti-baru\/developer\/pt-kebun-bambu-jakarta\/1576\/"}},"location":{"uuid":"6994a752-9ece-4a05-aebc-72f3401a4599","level":0,"name":"Bogor Selatan","locationType":0,"text":"Bogor Selatan, Bogor"},"originId":{"value":"nps3024","formattedValue":"nps3024"},"price":{"minValue":1200000000,"maxValue":1900000000,"currencyType":360,"display":"Rp 1,2 Miliar - 1,9 Miliar","offer":1200000000,"unitType":0,"subDisplay":""},"title":"Green Bamboo Terrace","medias":[{"mediaType":"BACKGROUND","mediaInfo":[{"mediaUrl":"https:\/\/picture.rumah123.com\/r123-images\/1080x720-fit\/customer\/1971002\/4e39c106fbfaab219eb637ba328b1820.png","thumbnailUrl":"https:\/\/picture.rumah123.com\/r123-images\/250x160-fit\/customer\/1971002\/4e39c106fbfaab219eb637ba328b1820.png","formatUrl":"https:\/\/picture.rumah123.com\/r123-images\/{width}x{height}-{scale}\/customer\/1971002\/4e39c106fbfaab219eb637ba328b1820.png","order":0},{"mediaUrl":"https:\/\/picture.rumah123.com\/r123-images\/1080x720-fit\/customer\/1899233\/39323c734edaee5433234580131559ec.png","thumbnailUrl":"https:\/\/picture.rumah123.com\/r123-images\/250x160-fit\/customer\/1899233\/39323c734edaee5433234580131559ec.png","formatUrl":"https:\/\/picture.rumah123.com\/r123-images\/{width}x{height}-{scale}\/customer\/1899233\/39323c734edaee5433234580131559ec.png","order":2},{"mediaUrl":"https:\/\/picture.rumah123.com\/r123-images\/1080x720-fit\/customer\/1971002\/20433617ff08b3c19a66e847f39e5851.jpg","thumbnailUrl":"https:\/\/picture.rumah123.com\/r123-images\/250x160-fit\/customer\/1971002\/20433617ff08b3c19a66e847f39e5851.jpg","formatUrl":"https:\/\/picture.rumah123.com\/r123-images\/{width}x{height}-{scale}\/customer\/1971002\/20433617ff08b3c19a66e847f39e5851.jpg","order":3},{"mediaUrl":"https:\/\/pic.rumah123.com\/r123\/1080x720-fit\/primary_property\/project\/3024\/1662089459_631178f2eb847ads_images_3024.jpg","thumbnailUrl":"https:\/\/pic.rumah123.com\/r123\/250x160-fit\/primary_property\/project\/3024\/1662089459_631178f2eb847ads_images_3024.jpg","formatUrl":"https:\/\/pic.rumah123.com\/r123\/{width}x{height}-{scale}\/primary_property\/project\/3024\/1662089459_631178f2eb847ads_images_3024.jpg","order":4},{"mediaUrl":"https:\/\/picture.rumah123.com\/r123-images\/1080x720-fit\/customer\/1899233\/5dde13b2861f64043e1402a61a3c4feb.png","thumbnailUrl":"https:\/\/picture.rumah123.com\/r123-images\/250x160-fit\/customer\/1899233\/5dde13b2861f64043e1402a61a3c4feb.png","formatUrl":"https:\/\/picture.rumah123.com\/r123-images\/{width}x{height}-{scale}\/customer\/1899233\/5dde13b2861f64043e1402a61a3c4feb.png","order":5}]},{"mediaType":"LOGO","mediaInfo":[{"mediaUrl":"https:\/\/picture.rumah123.com\/r123-images\/1080x720-fit\/customer\/1971002\/4e1a4d6d9ed5e96b4b4ed50234aa063f.png","thumbnailUrl":"https:\/\/picture.rumah123.com\/r123-images\/250x160-fit\/customer\/1971002\/4e1a4d6d9ed5e96b4b4ed50234aa063f.png","formatUrl":"https:\/\/picture.rumah123.com\/r123-images\/{width}x{height}-{scale}\/customer\/1971002\/4e1a4d6d9ed5e96b4b4ed50234aa063f.png","order":0}]},{"mediaType":"COVER","mediaInfo":[{"mediaUrl":"https:\/\/picture.rumah123.com\/r123-images\/1080x720-fit\/customer\/1971002\/4e39c106fbfaab219eb637ba328b1820.png","thumbnailUrl":"https:\/\/picture.rumah123.com\/r123-images\/250x160-fit\/customer\/1971002\/4e39c106fbfaab219eb637ba328b1820.png","formatUrl":"https:\/\/picture.rumah123.com\/r123-images\/{width}x{height}-{scale}\/customer\/1971002\/4e39c106fbfaab219eb637ba328b1820.png","order":0}]},{"mediaType":"SITEPLAN","mediaInfo":[{"mediaUrl":"https:\/\/picture.rumah123.com\/r123-images\/1080x720-fit\/customer\/1971002\/26e9a993247aa3ace17d6d9f777665e9.jpg","thumbnailUrl":"https:\/\/picture.rumah123.com\/r123-images\/250x160-fit\/customer\/1971002\/26e9a993247aa3ace17d6d9f777665e9.jpg","formatUrl":"https:\/\/picture.rumah123.com\/r123-images\/{width}x{height}-{scale}\/customer\/1971002\/26e9a993247aa3ace17d6d9f777665e9.jpg","order":0}]},{"mediaType":"YOUTUBE","mediaInfo":[{"mediaUrl":"https:\/\/www.youtube.com\/watch?v=T4ulWnDk3HE","thumbnailUrl":"https:\/\/www.youtube.com\/watch?v=T4ulWnDk3HE","formatUrl":"https:\/\/www.youtube.com\/watch?v=T4ulWnDk3HE","order":0}]},{"mediaType":"FACILITY","mediaInfo":[{"mediaUrl":"https:\/\/pic.rumah123.com\/r123\/1080x720-fit\/","thumbnailUrl":"https:\/\/pic.rumah123.com\/r123\/250x160-fit\/","formatUrl":"https:\/\/pic.rumah123.com\/r123\/{width}x{height}-{scale}\/","order":1},{"mediaUrl":"https:\/\/pic.rumah123.com\/r123\/1080x720-fit\/","thumbnailUrl":"https:\/\/pic.rumah123.com\/r123\/250x160-fit\/","formatUrl":"https:\/\/pic.rumah123.com\/r123\/{width}x{height}-{scale}\/","order":2},{"mediaUrl":"https:\/\/pic.rumah123.com\/r123\/1080x720-fit\/","thumbnailUrl":"https:\/\/pic.rumah123.com\/r123\/250x160-fit\/","formatUrl":"https:\/\/pic.rumah123.com\/r123\/{width}x{height}-{scale}\/","order":3},{"mediaUrl":"https:\/\/pic.rumah123.com\/r123\/1080x720-fit\/","thumbnailUrl":"https:\/\/pic.rumah123.com\/r123\/250x160-fit\/","formatUrl":"https:\/\/pic.rumah123.com\/r123\/{width}x{height}-{scale}\/","order":4},{"mediaUrl":"https:\/\/pic.rumah123.com\/r123\/1080x720-fit\/","thumbnailUrl":"https:\/\/pic.rumah123.com\/r123\/250x160-fit\/","formatUrl":"https:\/\/pic.rumah123.com\/r123\/{width}x{height}-{scale}\/","order":5},{"mediaUrl":"https:\/\/pic.rumah123.com\/r123\/1080x720-fit\/","thumbnailUrl":"https:\/\/pic.rumah123.com\/r123\/250x160-fit\/","formatUrl":"https:\/\/pic.rumah123.com\/r123\/{width}x{height}-{scale}\/","order":6},{"mediaUrl":"https:\/\/pic.rumah123.com\/r123\/1080x720-fit\/","thumbnailUrl":"https:\/\/pic.rumah123.com\/r123\/250x160-fit\/","formatUrl":"https:\/\/pic.rumah123.com\/r123\/{width}x{height}-{scale}\/","order":7},{"mediaUrl":"https:\/\/pic.rumah123.com\/r123\/1080x720-fit\/","thumbnailUrl":"https:\/\/pic.rumah123.com\/r123\/250x160-fit\/","formatUrl":"https:\/\/pic.rumah123.com\/r123\/{width}x{height}-{scale}\/","order":8},{"mediaUrl":"https:\/\/pic.rumah123.com\/r123\/1080x720-fit\/","thumbnailUrl":"https:\/\/pic.rumah123.com\/r123\/250x160-fit\/","formatUrl":"https:\/\/pic.rumah123.com\/r123\/{width}x{height}-{scale}\/","order":9}]}],"primaryProject":{"subUnits":[{"name":"Green Bamboo Terrace ","properties":[{"title":"Momiji Spesial","description":"Pondasi : Pondasi Tapak\nDinding : Bata Merah\nFacade : Granit Tile (Matt), Ornament dan grillwood\nFininshing Cat : Cat eks Jotun\nFinishing Lantai : Carport (keramik tile 40x40)\nKeramik dalam rumah : Granite Tile Merk Niro 60x60\nKusen : Alumunium merk YKK\nPintu : Engineered door merk Daiken\nRuang Mandi\/WC : Lantai & Dinding (Granite Tile Merk Niro 60x60)\nSanitary : Toto\nAtap : Atap fumira click 330, waterproof sika, sistem insulasi, rangka baja ringan\nPlafond : Gypsum (yoshino board)\nTangki air : Ground water tank 1000L merk penguin\nSupply air : PDAM, instalasi bawah tanah\nListrik : 2200, jaringan bawah tanah\nInternet : indihome, jaringan bawah tanah","uuid":"994da281-6ccd-47a4-8224-8db7e9cbdd96","medias":[{"mediaType":"COVER","mediaInfo":[{"mediaUrl":"https:\/\/picture.rumah123.com\/r123-images\/1080x720-fit\/customer\/1971002\/4b224b2d9597ded844436dc394c5a81b.jpg","thumbnailUrl":"https:\/\/picture.rumah123.com\/r123-images\/250x160-fit\/customer\/1971002\/4b224b2d9597ded844436dc394c5a81b.jpg","formatUrl":"https:\/\/picture.rumah123.com\/r123-images\/{width}x{height}-{scale}\/customer\/1971002\/4b224b2d9597ded844436dc394c5a81b.jpg","order":0}]},{"mediaType":"REGULAR","mediaInfo":[{"mediaUrl":"https:\/\/picture.rumah123.com\/r123-images\/1080x720-fit\/customer\/1971002\/8bf3abcacc293baa8fe880d1527649f3.jpg","thumbnailUrl":"https:\/\/picture.rumah123.com\/r123-images\/250x160-fit\/customer\/1971002\/8bf3abcacc293baa8fe880d1527649f3.jpg","formatUrl":"https:\/\/picture.rumah123.com\/r123-images\/{width}x{height}-{scale}\/customer\/1971002\/8bf3abcacc293baa8fe880d1527649f3.jpg","order":1},{"mediaUrl":"https:\/\/picture.rumah123.com\/r123-images\/1080x720-fit\/customer\/1971002\/d0bbde40df1ee436a3fb919032e2d7c4.jpg","thumbnailUrl":"https:\/\/picture.rumah123.com\/r123-images\/250x160-fit\/customer\/1971002\/d0bbde40df1ee436a3fb919032e2d7c4.jpg","formatUrl":"https:\/\/picture.rumah123.com\/r123-images\/{width}x{height}-{scale}\/customer\/1971002\/d0bbde40df1ee436a3fb919032e2d7c4.jpg","order":2},{"mediaUrl":"https:\/\/picture.rumah123.com\/r123-images\/1080x720-fit\/customer\/1971002\/9d4f319f19283214cd07ac588b5c02d1.jpg","thumbnailUrl":"https:\/\/picture.rumah123.com\/r123-images\/250x160-fit\/customer\/1971002\/9d4f319f19283214cd07ac588b5c02d1.jpg","formatUrl":"https:\/\/picture.rumah123.com\/r123-images\/{width}x{height}-{scale}\/customer\/1971002\/9d4f319f19283214cd07ac588b5c02d1.jpg","order":3},{"mediaUrl":"https:\/\/picture.rumah123.com\/r123-images\/1080x720-fit\/customer\/1971002\/005405888bd15d61a798ee13bcf65bf4.jpg","thumbnailUrl":"https:\/\/picture.rumah123.com\/r123-images\/250x160-fit\/customer\/1971002\/005405888bd15d61a798ee13bcf65bf4.jpg","formatUrl":"https:\/\/picture.rumah123.com\/r123-images\/{width}x{height}-{scale}\/customer\/1971002\/005405888bd15d61a798ee13bcf65bf4.jpg","order":4},{"mediaUrl":"https:\/\/picture.rumah123.com\/r123-images\/1080x720-fit\/customer\/1971002\/c24a1f3e6336c707d7564509e53bc07f.jpg","thumbnailUrl":"https:\/\/picture.rumah123.com\/r123-images\/250x160-fit\/customer\/1971002\/c24a1f3e6336c707d7564509e53bc07f.jpg","formatUrl":"https:\/\/picture.rumah123.com\/r123-images\/{width}x{height}-{scale}\/customer\/1971002\/c24a1f3e6336c707d7564509e53bc07f.jpg","order":5},{"mediaUrl":"https:\/\/picture.rumah123.com\/r123-images\/1080x720-fit\/customer\/1971002\/860dfe97f06a0903f4a70ad671825ad5.jpg","thumbnailUrl":"https:\/\/picture.rumah123.com\/r123-images\/250x160-fit\/customer\/1971002\/860dfe97f06a0903f4a70ad671825ad5.jpg","formatUrl":"https:\/\/picture.rumah123.com\/r123-images\/{width}x{height}-{scale}\/customer\/1971002\/860dfe97f06a0903f4a70ad671825ad5.jpg","order":6},{"mediaUrl":"https:\/\/picture.rumah123.com\/r123-images\/1080x720-fit\/customer\/1971002\/76c2aa24447caa1f29dd0c2f5f547c0d.jpg","thumbnailUrl":"https:\/\/picture.rumah123.com\/r123-images\/250x160-fit\/customer\/1971002\/76c2aa24447caa1f29dd0c2f5f547c0d.jpg","formatUrl":"https:\/\/picture.rumah123.com\/r123-images\/{width}x{height}-{scale}\/customer\/1971002\/76c2aa24447caa1f29dd0c2f5f547c0d.jpg","order":7},{"mediaUrl":"https:\/\/picture.rumah123.com\/r123-images\/1080x720-fit\/customer\/1971002\/2d44b0cff4167e244646fb876574d754.jpg","thumbnailUrl":"https:\/\/picture.rumah123.com\/r123-images\/250x160-fit\/customer\/1971002\/2d44b0cff4167e244646fb876574d754.jpg","formatUrl":"https:\/\/picture.rumah123.com\/r123-images\/{width}x{height}-{scale}\/customer\/1971002\/2d44b0cff4167e244646fb876574d754.jpg","order":8},{"mediaUrl":"https:\/\/picture.rumah123.com\/r123-images\/1080x720-fit\/customer\/1971002\/df31f2579a9ea9179e3f0bf605565849.jpg","thumbnailUrl":"https:\/\/picture.rumah123.com\/r123-images\/250x160-fit\/customer\/1971002\/df31f2579a9ea9179e3f0bf605565849.jpg","formatUrl":"https:\/\/picture.rumah123.com\/r123-images\/{width}x{height}-{scale}\/customer\/1971002\/df31f2579a9ea9179e3f0bf605565849.jpg","order":9},{"mediaUrl":"https:\/\/picture.rumah123.com\/r123-images\/1080x720-fit\/customer\/1971002\/d4a39e9a476725cf833e14149a02a855.jpg","thumbnailUrl":"https:\/\/picture.rumah123.com\/r123-images\/250x160-fit\/customer\/1971002\/d4a39e9a476725cf833e14149a02a855.jpg","formatUrl":"https:\/\/picture.rumah123.com\/r123-images\/{width}x{height}-{scale}\/customer\/1971002\/d4a39e9a476725cf833e14149a02a855.jpg","order":10},{"mediaUrl":"https:\/\/picture.rumah123.com\/r123-images\/1080x720-fit\/customer\/1971002\/2b5f44457a6eaf8d09f17b56a8c94284.jpg","thumbnailUrl":"https:\/\/picture.rumah123.com\/r123-images\/250x160-fit\/customer\/1971002\/2b5f44457a6eaf8d09f17b56a8c94284.jpg","formatUrl":"https:\/\/picture.rumah123.com\/r123-images\/{width}x{height}-{scale}\/customer\/1971002\/2b5f44457a6eaf8d09f17b56a8c94284.jpg","order":11},{"mediaUrl":"https:\/\/picture.rumah123.com\/r123-images\/1080x720-fit\/customer\/1971002\/9a00d2225af4dccc75d5638ee055c22b.jpg","thumbnailUrl":"https:\/\/picture.rumah123.com\/r123-images\/250x160-fit\/customer\/1971002\/9a00d2225af4dccc75d5638ee055c22b.jpg","formatUrl":"https:\/\/picture.rumah123.com\/r123-images\/{width}x{height}-{scale}\/customer\/1971002\/9a00d2225af4dccc75d5638ee055c22b.jpg","order":12}]},{"mediaType":"SITEPLAN","mediaInfo":[{"mediaUrl":"https:\/\/picture.rumah123.com\/r123-images\/1080x720-fit\/customer\/1971002\/44b70eb4987ff49f0cd0df30a0cffc4e.jpg","thumbnailUrl":"https:\/\/picture.rumah123.com\/r123-images\/250x160-fit\/customer\/1971002\/44b70eb4987ff49f0cd0df30a0cffc4e.jpg","formatUrl":"https:\/\/picture.rumah123.com\/r123-images\/{width}x{height}-{scale}\/customer\/1971002\/44b70eb4987ff49f0cd0df30a0cffc4e.jpg","order":0}]}],"attributes":{"landSize":{"name":"landSize","label":"Luas Tanah","value":"72","formattedValue":"72 m\u00b2"},"buildingSize":{"name":"buildingSize","label":"Luas Bangunan","value":"74","formattedValue":"74 m\u00b2"},"bedrooms":{"name":"bedrooms","label":"Kamar","value":"2","formattedValue":"2"},"bathrooms":{"name":"bathrooms","label":"Kamar Mandi","value":"2","formattedValue":"2"},"carports":{"name":"carports","label":"Carport","value":"1","formattedValue":"1"}},"propertyType":{"name":"propertyType","label":"Tipe Properti","value":"0","formattedValue":"Rumah"},"price":{"minValue":1200000000,"maxValue":1200000000,"currencyType":360,"display":"Rp 1,2 Miliar","offer":1200000000,"unitType":0,"subDisplay":""},"location":{"uuid":"","level":0,"name":"","locationType":0,"text":""},"subtitle":"","url":"\/perumahan-baru\/properti\/bogor\/green-bamboo-terrace\/momiji-spesial\/hos19571\/"},{"title":"New Momiji","description":"[\"Pondasi : Pondasi Tapak\",\"Dinding : Bata Merah\",\"Facade : Granit Tile (Matt), Ornament dan grillwood\",\"Fininshing Cat : Cat eks Jotun\",\"Finishing Lantai : Carport (keramik tile 40x40)\",\"Keramik dalam rumah : Granite Tile Merk Niro 60x60\",\"Kusen : Alumunium merk YKK\",\"Pintu : Engineered door merk Daiken\",\"Ruang Mandi\\\/WC : Lantai & Dinding (Granite Tile Merk Niro 60x60)\",\"Sanitary : Toto\",\"Atap : Atap fumira click 330, waterproof sika, sistem insulasi, rangka baja ringan\",\"Plafond : Gypsum (yoshino board)\",\"Tangki air : Ground water tank 1000L merk penguin\",\"Supply air : PDAM, instalasi bawah tanah\",\"Listrik : 2200, jaringan bawah tanah\",\"Internet : indihome, jaringan bawah tanah\"]","uuid":"67da7acc-f381-4f6a-af40-e76c052aad0f","medias":[{"mediaType":"REGULAR","mediaInfo":[{"mediaUrl":"https:\/\/picture.rumah123.com\/r123-images\/1080x720-fit\/customer\/1971002\/6bb8e6dee008bf2296f07b9dbb71fb55.jpg","thumbnailUrl":"https:\/\/picture.rumah123.com\/r123-images\/250x160-fit\/customer\/1971002\/6bb8e6dee008bf2296f07b9dbb71fb55.jpg","formatUrl":"https:\/\/picture.rumah123.com\/r123-images\/{width}x{height}-{scale}\/customer\/1971002\/6bb8e6dee008bf2296f07b9dbb71fb55.jpg","order":1},{"mediaUrl":"https:\/\/picture.rumah123.com\/r123-images\/1080x720-fit\/customer\/1971002\/40e94fefab19d9f38123b2478e573313.jpg","thumbnailUrl":"https:\/\/picture.rumah123.com\/r123-images\/250x160-fit\/customer\/1971002\/40e94fefab19d9f38123b2478e573313.jpg","formatUrl":"https:\/\/picture.rumah123.com\/r123-images\/{width}x{height}-{scale}\/customer\/1971002\/40e94fefab19d9f38123b2478e573313.jpg","order":2},{"mediaUrl":"https:\/\/picture.rumah123.com\/r123-images\/1080x720-fit\/customer\/1971002\/364e08206ed82fa33fed6fc47cf997e1.jpg","thumbnailUrl":"https:\/\/picture.rumah123.com\/r123-images\/250x160-fit\/customer\/1971002\/364e08206ed82fa33fed6fc47cf997e1.jpg","formatUrl":"https:\/\/picture.rumah123.com\/r123-images\/{width}x{height}-{scale}\/customer\/1971002\/364e08206ed82fa33fed6fc47cf997e1.jpg","order":3},{"mediaUrl":"https:\/\/picture.rumah123.com\/r123-images\/1080x720-fit\/customer\/1971002\/f58cae44bf06e8da12e81c6094455f58.jpg","thumbnailUrl":"https:\/\/picture.rumah123.com\/r123-images\/250x160-fit\/customer\/1971002\/f58cae44bf06e8da12e81c6094455f58.jpg","formatUrl":"https:\/\/picture.rumah123.com\/r123-images\/{width}x{height}-{scale}\/customer\/1971002\/f58cae44bf06e8da12e81c6094455f58.jpg","order":4},{"mediaUrl":"https:\/\/picture.rumah123.com\/r123-images\/1080x720-fit\/customer\/1971002\/9caa50545ff75ad4d1635d6956e9f6fe.jpg","thumbnailUrl":"https:\/\/picture.rumah123.com\/r123-images\/250x160-fit\/customer\/1971002\/9caa50545ff75ad4d1635d6956e9f6fe.jpg","formatUrl":"https:\/\/picture.rumah123.com\/r123-images\/{width}x{height}-{scale}\/customer\/1971002\/9caa50545ff75ad4d1635d6956e9f6fe.jpg","order":5},{"mediaUrl":"https:\/\/picture.rumah123.com\/r123-images\/1080x720-fit\/customer\/1971002\/8e1824d9dd1ac8e7ed25eb30b679cb72.jpg","thumbnailUrl":"https:\/\/picture.rumah123.com\/r123-images\/250x160-fit\/customer\/1971002\/8e1824d9dd1ac8e7ed25eb30b679cb72.jpg","formatUrl":"https:\/\/picture.rumah123.com\/r123-images\/{width}x{height}-{scale}\/customer\/1971002\/8e1824d9dd1ac8e7ed25eb30b679cb72.jpg","order":6},{"mediaUrl":"https:\/\/picture.rumah123.com\/r123-images\/1080x720-fit\/customer\/1971002\/62549932e1e91a6bcb8efbd8df0263c1.jpg","thumbnailUrl":"https:\/\/picture.rumah123.com\/r123-images\/250x160-fit\/customer\/1971002\/62549932e1e91a6bcb8efbd8df0263c1.jpg","formatUrl":"https:\/\/picture.rumah123.com\/r123-images\/{width}x{height}-{scale}\/customer\/1971002\/62549932e1e91a6bcb8efbd8df0263c1.jpg","order":7},{"mediaUrl":"https:\/\/picture.rumah123.com\/r123-images\/1080x720-fit\/customer\/1971002\/43881fdf01667d938170c9304b70aef1.jpg","thumbnailUrl":"https:\/\/picture.rumah123.com\/r123-images\/250x160-fit\/customer\/1971002\/43881fdf01667d938170c9304b70aef1.jpg","formatUrl":"https:\/\/picture.rumah123.com\/r123-images\/{width}x{height}-{scale}\/customer\/1971002\/43881fdf01667d938170c9304b70aef1.jpg","order":8},{"mediaUrl":"https:\/\/picture.rumah123.com\/r123-images\/1080x720-fit\/customer\/1971002\/8aec8e97ae8e5fe754490dfff96b882d.jpg","thumbnailUrl":"https:\/\/picture.rumah123.com\/r123-images\/250x160-fit\/customer\/1971002\/8aec8e97ae8e5fe754490dfff96b882d.jpg","formatUrl":"https:\/\/picture.rumah123.com\/r123-images\/{width}x{height}-{scale}\/customer\/1971002\/8aec8e97ae8e5fe754490dfff96b882d.jpg","order":9}]},{"mediaType":"SITEPLAN","mediaInfo":[{"mediaUrl":"https:\/\/picture.rumah123.com\/r123-images\/1080x720-fit\/customer\/1971002\/602a933c6fe97e67eda0fca395a35067.png","thumbnailUrl":"https:\/\/picture.rumah123.com\/r123-images\/250x160-fit\/customer\/1971002\/602a933c6fe97e67eda0fca395a35067.png","formatUrl":"https:\/\/picture.rumah123.com\/r123-images\/{width}x{height}-{scale}\/customer\/1971002\/602a933c6fe97e67eda0fca395a35067.png","order":0}]},{"mediaType":"COVER","mediaInfo":[{"mediaUrl":"https:\/\/picture.rumah123.com\/r123-images\/1080x720-fit\/customer\/1971002\/c873452cf27b0a02d4d8e7e108d3c0e6.jpg","thumbnailUrl":"https:\/\/picture.rumah123.com\/r123-images\/250x160-fit\/customer\/1971002\/c873452cf27b0a02d4d8e7e108d3c0e6.jpg","formatUrl":"https:\/\/picture.rumah123.com\/r123-images\/{width}x{height}-{scale}\/customer\/1971002\/c873452cf27b0a02d4d8e7e108d3c0e6.jpg","order":0}]}],"attributes":{"landSize":{"name":"landSize","label":"Luas Tanah","value":"72","formattedValue":"72 m\u00b2"},"buildingSize":{"name":"buildingSize","label":"Luas Bangunan","value":"86.76","formattedValue":"86.76 m\u00b2"},"bedrooms":{"name":"bedrooms","label":"Kamar","value":"3","formattedValue":"3"},"bathrooms":{"name":"bathrooms","label":"Kamar Mandi","value":"2","formattedValue":"2"},"carports":{"name":"carports","label":"Carport","value":"1","formattedValue":"1"}},"propertyType":{"name":"propertyType","label":"Tipe Properti","value":"0","formattedValue":"Rumah"},"price":{"minValue":1600000000,"maxValue":1600000000,"currencyType":360,"display":"Rp 1,6 Miliar","offer":1600000000,"unitType":0,"subDisplay":""},"location":{"uuid":"","level":0,"name":"","locationType":0,"text":""},"subtitle":"","url":"\/perumahan-baru\/properti\/bogor\/green-bamboo-terrace\/new-momiji\/hos26263\/"},{"title":"New Akane","description":"[\"Pondasi : Pondasi Tapak\",\"Dinding : Bata Merah\",\"Facade : Granit Tile (Matt), Ornament dan grillwood\",\"Fininshing Cat : Cat eks Jotun\",\"Finishing Lantai : Carport (keramik tile 40x40)\",\"Keramik dalam rumah : Granite Tile Merk Niro 60x60\",\"Kusen : Alumunium merk YKK\",\"Pintu : Engineered door merk Daiken\",\"Ruang Mandi\\\/WC : Lantai & Dinding (Granite Tile Merk Niro 60x60)\",\"Sanitary : Toto\",\"Atap : Atap fumira click 330, waterproof sika, sistem insulasi, rangka baja ringan\",\"Plafond : Gypsum (yoshino board)\",\"Tangki air : Ground water tank 1000L merk penguin\",\"Supply air : PDAM, instalasi bawah tanah\",\"Listrik : 2200, jaringan bawah tanah\",\"Internet : indihome, jaringan bawah tanah\"]","uuid":"1cb72bd4-2b5d-48ed-b32f-64dc8b9f5e6f","medias":[{"mediaType":"COVER","mediaInfo":[{"mediaUrl":"https:\/\/picture.rumah123.com\/r123-images\/1080x720-fit\/customer\/1971002\/be9ea105e9b8fdd5a23e6ff75b7d2bf9.jpg","thumbnailUrl":"https:\/\/picture.rumah123.com\/r123-images\/250x160-fit\/customer\/1971002\/be9ea105e9b8fdd5a23e6ff75b7d2bf9.jpg","formatUrl":"https:\/\/picture.rumah123.com\/r123-images\/{width}x{height}-{scale}\/customer\/1971002\/be9ea105e9b8fdd5a23e6ff75b7d2bf9.jpg","order":0}]},{"mediaType":"REGULAR","mediaInfo":[{"mediaUrl":"https:\/\/picture.rumah123.com\/r123-images\/1080x720-fit\/customer\/1971002\/4001e03489f8cdf300ee40c98731611f.png","thumbnailUrl":"https:\/\/picture.rumah123.com\/r123-images\/250x160-fit\/customer\/1971002\/4001e03489f8cdf300ee40c98731611f.png","formatUrl":"https:\/\/picture.rumah123.com\/r123-images\/{width}x{height}-{scale}\/customer\/1971002\/4001e03489f8cdf300ee40c98731611f.png","order":1},{"mediaUrl":"https:\/\/picture.rumah123.com\/r123-images\/1080x720-fit\/customer\/1971002\/033dcd06d9fb28eab4b4a65934b7dbd3.jpg","thumbnailUrl":"https:\/\/picture.rumah123.com\/r123-images\/250x160-fit\/customer\/1971002\/033dcd06d9fb28eab4b4a65934b7dbd3.jpg","formatUrl":"https:\/\/picture.rumah123.com\/r123-images\/{width}x{height}-{scale}\/customer\/1971002\/033dcd06d9fb28eab4b4a65934b7dbd3.jpg","order":2},{"mediaUrl":"https:\/\/picture.rumah123.com\/r123-images\/1080x720-fit\/customer\/1971002\/2a819b9ef0e5cead4629cde47e2783ec.jpg","thumbnailUrl":"https:\/\/picture.rumah123.com\/r123-images\/250x160-fit\/customer\/1971002\/2a819b9ef0e5cead4629cde47e2783ec.jpg","formatUrl":"https:\/\/picture.rumah123.com\/r123-images\/{width}x{height}-{scale}\/customer\/1971002\/2a819b9ef0e5cead4629cde47e2783ec.jpg","order":3},{"mediaUrl":"https:\/\/picture.rumah123.com\/r123-images\/1080x720-fit\/customer\/1971002\/14afe307eb3d6e36238150613b9ef858.jpg","thumbnailUrl":"https:\/\/picture.rumah123.com\/r123-images\/250x160-fit\/customer\/1971002\/14afe307eb3d6e36238150613b9ef858.jpg","formatUrl":"https:\/\/picture.rumah123.com\/r123-images\/{width}x{height}-{scale}\/customer\/1971002\/14afe307eb3d6e36238150613b9ef858.jpg","order":4},{"mediaUrl":"https:\/\/picture.rumah123.com\/r123-images\/1080x720-fit\/customer\/1971002\/93ea1ca00ff6218a61a47b10e2289d90.jpg","thumbnailUrl":"https:\/\/picture.rumah123.com\/r123-images\/250x160-fit\/customer\/1971002\/93ea1ca00ff6218a61a47b10e2289d90.jpg","formatUrl":"https:\/\/picture.rumah123.com\/r123-images\/{width}x{height}-{scale}\/customer\/1971002\/93ea1ca00ff6218a61a47b10e2289d90.jpg","order":5},{"mediaUrl":"https:\/\/picture.rumah123.com\/r123-images\/1080x720-fit\/customer\/1971002\/25e4db6f7b1c385757f291f453c66788.jpg","thumbnailUrl":"https:\/\/picture.rumah123.com\/r123-images\/250x160-fit\/customer\/1971002\/25e4db6f7b1c385757f291f453c66788.jpg","formatUrl":"https:\/\/picture.rumah123.com\/r123-images\/{width}x{height}-{scale}\/customer\/1971002\/25e4db6f7b1c385757f291f453c66788.jpg","order":6},{"mediaUrl":"https:\/\/picture.rumah123.com\/r123-images\/1080x720-fit\/customer\/1971002\/697db7fe83e9229e71caea1c53b65d6f.jpg","thumbnailUrl":"https:\/\/picture.rumah123.com\/r123-images\/250x160-fit\/customer\/1971002\/697db7fe83e9229e71caea1c53b65d6f.jpg","formatUrl":"https:\/\/picture.rumah123.com\/r123-images\/{width}x{height}-{scale}\/customer\/1971002\/697db7fe83e9229e71caea1c53b65d6f.jpg","order":7},{"mediaUrl":"https:\/\/picture.rumah123.com\/r123-images\/1080x720-fit\/customer\/1971002\/59740f559acac10be63c2cb8ba1d60ef.jpg","thumbnailUrl":"https:\/\/picture.rumah123.com\/r123-images\/250x160-fit\/customer\/1971002\/59740f559acac10be63c2cb8ba1d60ef.jpg","formatUrl":"https:\/\/picture.rumah123.com\/r123-images\/{width}x{height}-{scale}\/customer\/1971002\/59740f559acac10be63c2cb8ba1d60ef.jpg","order":8},{"mediaUrl":"https:\/\/picture.rumah123.com\/r123-images\/1080x720-fit\/customer\/1971002\/bfe62bb511560c2321ca66e399969f3b.jpg","thumbnailUrl":"https:\/\/picture.rumah123.com\/r123-images\/250x160-fit\/customer\/1971002\/bfe62bb511560c2321ca66e399969f3b.jpg","formatUrl":"https:\/\/picture.rumah123.com\/r123-images\/{width}x{height}-{scale}\/customer\/1971002\/bfe62bb511560c2321ca66e399969f3b.jpg","order":9}]},{"mediaType":"SITEPLAN","mediaInfo":[{"mediaUrl":"https:\/\/picture.rumah123.com\/r123-images\/1080x720-fit\/customer\/1971002\/f9a5bfe074212c15954649906fa0a7ae.png","thumbnailUrl":"https:\/\/picture.rumah123.com\/r123-images\/250x160-fit\/customer\/1971002\/f9a5bfe074212c15954649906fa0a7ae.png","formatUrl":"https:\/\/picture.rumah123.com\/r123-images\/{width}x{height}-{scale}\/customer\/1971002\/f9a5bfe074212c15954649906fa0a7ae.png","order":0}]}],"attributes":{"landSize":{"name":"landSize","label":"Luas Tanah","value":"90","formattedValue":"90 m\u00b2"},"buildingSize":{"name":"buildingSize","label":"Luas Bangunan","value":"97","formattedValue":"97 m\u00b2"},"bedrooms":{"name":"bedrooms","label":"Kamar","value":"4","formattedValue":"4"},"bathrooms":{"name":"bathrooms","label":"Kamar Mandi","value":"3","formattedValue":"3"},"carports":{"name":"carports","label":"Carport","value":"1","formattedValue":"1"}},"propertyType":{"name":"propertyType","label":"Tipe Properti","value":"0","formattedValue":"Rumah"},"price":{"minValue":1900000000,"maxValue":1900000000,"currencyType":360,"display":"Rp 1,9 Miliar","offer":1900000000,"unitType":0,"subDisplay":""},"location":{"uuid":"","level":0,"name":"","locationType":0,"text":""},"subtitle":"","url":"\/perumahan-baru\/properti\/bogor\/green-bamboo-terrace\/new-akane\/hos36262\/"}]}]},"url":"\/perumahan-baru\/properti\/bogor\/green-bamboo-terrace\/nps3024\/"}]}}},"strapi":null,"baseUrl":"https:\/\/www.rumah123.com"}
Denah Rumah 7×12 2 Kamar 1 Mushola

Rumah minimalis 7×12 masuk dalam jajaran rumah sederhana favorit pasangan muda dan kaum urban. Luas bangunannya pas dan masih cukup untuk membangun surau.
Spesifikasi hunian yang ada di rumah minimalis umumnya terdiri dari 2 kamar tidur, 1 kamar mandi, dapur semi outdoor dan bisa menambah ruang salat juga.
Pada denah rumah sederhana di atas, musala terdapat di antara ruang bekerja dan dapur. Ukurannya tidak terlalu besar, tetapi nyaman untuk beribadah secara khusyuk.
Ruang Rumah 6×12 3 Kamar 1 Mushola

Apabila kamu memiliki rumah 6×12 dengan 3 kamar dan memiliki kelebihan ruang, sebaiknya ruang tersebut dijadikan mushola. Contoh denahnya seperti pada gambar di atas.
Ruang mushola terdapat di antara kamar tidur I dan II. Berdekatan dengan ruang makan dan dapur, sehingga mudah dijangkau oleh semua penghuni rumah.
Dengan adanya mushola di rumah, menjalankan ibadah pasti akan lebih khusyuk tanpa ada gangguan. Itu dia informasi mengenai denah rumah dengan mushola di dalam.
Semoga informasinya bermanfaat dan impianmu punya rumah dengan tempat ibadah segera terwujud, ya!
{"attributes":{"type":"banner","custom_title":"Cari Rumah Impianmu","custom_link":"https:\/\/www.rumah123.com\/","custom_desc":"Temukan hanya di properti baru pilihan kami","custom_cta":"Lihat Sekarang","custom_background":"https:\/\/www.rumah123.com\/asset-core\/images\/wpBannerDesktop.png, https:\/\/www.rumah123.com\/asset-core\/images\/wpBannerMobile.png","pdp_id":[""]},"pdp":{"data":{"GetPropertiesByOriginID":{"properties":[]}}},"strapi":null,"baseUrl":"https:\/\/www.rumah123.com"}
Punya pertanyaan seputar properti? Yuk, Tanya Rumah123 di sini!