
Ketika bicara soal tempat tinggal, banyak yang lebih memilih apartemen dibanding rumah tapak, khususnya mereka yang tinggal di kota-kota besar. Pasalnya, denah apartemen mewah menawarkan banyak keuntungan.
Apartemen dianggap mampu menyokong aktivitas harian dengan lebih baik, mulai dari bekerja, belajar, hingga berolahraga.
Dewasa ini, terdapat beragam tipe apartemen yang dijual di pasaran.
Tak hanya apartemen studio yang berukuran kecil, nyatanya ada juga tipe apartemen mewah dengan ukuran yang cukup luas.
Bahkan sekarang sudah ada pilihan denah apartemen mewah 1 kamar, yang diperuntukkan bagi eksekutif muda atau ekspatriat, lo.

Mengenal Apartemen Mewah
Foto: Unsplash
Lalu, apa itu apartemen mewah?
Seperti namanya, apartemen mewah adalah apartemen yang memiliki target pasar kelas atas.
Biasanya, apartemen ini berukuran luas meski hanya memiliki satu kamar, serta terletak di tengah lokasi yang premium.
Apartemen mewah juga menyajikan pemandangan kota yang cantik, serta dilengkapi oleh sistem keamanan yang mutakhir.
Tak jarang juga kalau apartemen mewah sudah dijual dalam keadaan fully furnished atau semi furnished.
Beragam fasilitas mewah juga telah disediakan di dalamnya, seperti:
- Sky pool
- Sky garden
- Theater room
- Private lift
- Jacuzzi
- Spa dan sauna
- Keamanan dengan face recognition system
Apartemen mewah biasanya terletak di pusat kota guna memudahkan penghuni dalam beraktivitas sehari-hari.
Contohnya di Jakarta, terdapat banyak apartemen mewah yang menawarkan banyak keunggulan, seperti lokasi strategis dan dikelilingi oleh fasilitas umum.
Salah satu apartemen mewah yang cukup banyak diburu adalah The Elements yang merupakan apartemen eksklusif di Jakarta Selatan.
{"attributes":{"type":"udp","pdp_id":["nps1689"],"custom_title":"Rekomendasi Apartemen Mewah Dari Kita Untuk Anda"},"pdp":{"data":{"GetPropertiesByOriginID":{"properties":[{"uuid":"2aa633b6-611c-4772-8c6f-3689479fbb0c","agent":{"organization":{"uuid":"375c5096-65af-459d-9acc-d55cb2dd2ab8","name":"Sinar Mas Land","medias":[{"mediaType":"REGULAR","mediaInfo":[{"mediaUrl":"https:\/\/pic.rumah123.com\/r123\/250x250-fit\/developer\/logo\/developer-logo-sinar-mas-land-01-1600160450.jpg","thumbnailUrl":"https:\/\/pic.rumah123.com\/r123\/250x160-fit\/developer\/logo\/developer-logo-sinar-mas-land-01-1600160450.jpg","formatUrl":"https:\/\/pic.rumah123.com\/r123\/{width}x{height}-{scale}\/developer\/logo\/developer-logo-sinar-mas-land-01-1600160450.jpg","order":0}]}],"contacts":[{"contactType":1,"type":"EMAIL","value":"evergreen@99.co"},{"contactType":3,"type":"WHATSAPP","value":"+6287716252850"},{"contactType":2,"type":"PHONE_NUMBER","value":"+6287716252850"}],"url":"\/properti-baru\/developer\/sinar-mas-land\/1142\/"}},"location":{"uuid":"ad17acb5-e0f1-4471-bb00-f1c231dcd8a0","level":0,"name":"Kuningan","locationType":0,"text":"Kuningan, Jakarta Selatan"},"originId":{"value":"nps1689","formattedValue":"nps1689"},"price":{"minValue":5500000000,"maxValue":7728000000,"currencyType":360,"display":"Rp 5,5 Miliar - 7,72 Miliar","offer":5500000000,"unitType":0,"subDisplay":""},"title":"The Elements","medias":[{"mediaType":"FACILITY","mediaInfo":[{"mediaUrl":"https:\/\/pic.rumah123.com\/r123\/1080x720-fit\/","thumbnailUrl":"https:\/\/pic.rumah123.com\/r123\/250x160-fit\/","formatUrl":"https:\/\/pic.rumah123.com\/r123\/{width}x{height}-{scale}\/","order":1},{"mediaUrl":"https:\/\/pic.rumah123.com\/r123\/1080x720-fit\/","thumbnailUrl":"https:\/\/pic.rumah123.com\/r123\/250x160-fit\/","formatUrl":"https:\/\/pic.rumah123.com\/r123\/{width}x{height}-{scale}\/","order":2},{"mediaUrl":"https:\/\/pic.rumah123.com\/r123\/1080x720-fit\/","thumbnailUrl":"https:\/\/pic.rumah123.com\/r123\/250x160-fit\/","formatUrl":"https:\/\/pic.rumah123.com\/r123\/{width}x{height}-{scale}\/","order":3},{"mediaUrl":"https:\/\/pic.rumah123.com\/r123\/1080x720-fit\/","thumbnailUrl":"https:\/\/pic.rumah123.com\/r123\/250x160-fit\/","formatUrl":"https:\/\/pic.rumah123.com\/r123\/{width}x{height}-{scale}\/","order":4},{"mediaUrl":"https:\/\/pic.rumah123.com\/r123\/1080x720-fit\/","thumbnailUrl":"https:\/\/pic.rumah123.com\/r123\/250x160-fit\/","formatUrl":"https:\/\/pic.rumah123.com\/r123\/{width}x{height}-{scale}\/","order":5},{"mediaUrl":"https:\/\/pic.rumah123.com\/r123\/1080x720-fit\/","thumbnailUrl":"https:\/\/pic.rumah123.com\/r123\/250x160-fit\/","formatUrl":"https:\/\/pic.rumah123.com\/r123\/{width}x{height}-{scale}\/","order":6},{"mediaUrl":"https:\/\/pic.rumah123.com\/r123\/1080x720-fit\/","thumbnailUrl":"https:\/\/pic.rumah123.com\/r123\/250x160-fit\/","formatUrl":"https:\/\/pic.rumah123.com\/r123\/{width}x{height}-{scale}\/","order":7},{"mediaUrl":"https:\/\/pic.rumah123.com\/r123\/1080x720-fit\/","thumbnailUrl":"https:\/\/pic.rumah123.com\/r123\/250x160-fit\/","formatUrl":"https:\/\/pic.rumah123.com\/r123\/{width}x{height}-{scale}\/","order":8},{"mediaUrl":"https:\/\/pic.rumah123.com\/r123\/1080x720-fit\/","thumbnailUrl":"https:\/\/pic.rumah123.com\/r123\/250x160-fit\/","formatUrl":"https:\/\/pic.rumah123.com\/r123\/{width}x{height}-{scale}\/","order":9}]},{"mediaType":"BROCHURE","mediaInfo":[{"mediaUrl":"","thumbnailUrl":"https:\/\/edge-assets.rumah123.com\/primary_property\/project\/1689\/1721286625_pdf_1689.pdf","formatUrl":null,"order":0}]},{"mediaType":"BACKGROUND","mediaInfo":[{"mediaUrl":"https:\/\/pic.rumah123.com\/r123\/1080x720-fit\/primary_property\/project\/1689\/1589525588_5ebe3c54b535cads_images_1689.jpg","thumbnailUrl":"https:\/\/pic.rumah123.com\/r123\/250x160-fit\/primary_property\/project\/1689\/1589525588_5ebe3c54b535cads_images_1689.jpg","formatUrl":"https:\/\/pic.rumah123.com\/r123\/{width}x{height}-{scale}\/primary_property\/project\/1689\/1589525588_5ebe3c54b535cads_images_1689.jpg","order":0},{"mediaUrl":"https:\/\/pic.rumah123.com\/r123\/1080x720-fit\/primary_property\/project\/1689\/1589525592_5ebe3c58b5ae6ads_images_1689.jpg","thumbnailUrl":"https:\/\/pic.rumah123.com\/r123\/250x160-fit\/primary_property\/project\/1689\/1589525592_5ebe3c58b5ae6ads_images_1689.jpg","formatUrl":"https:\/\/pic.rumah123.com\/r123\/{width}x{height}-{scale}\/primary_property\/project\/1689\/1589525592_5ebe3c58b5ae6ads_images_1689.jpg","order":2}]},{"mediaType":"LOGO","mediaInfo":[{"mediaUrl":"https:\/\/picture.rumah123.com\/original\/r123\/primary_property\/project\/1689\/1589525563_5ebe3c3b4118cads_logo_1689.png","thumbnailUrl":"https:\/\/picture.rumah123.com\/original\/r123\/primary_property\/project\/1689\/1589525563_5ebe3c3b4118cads_logo_1689.png","formatUrl":"https:\/\/picture.rumah123.com\/original\/r123\/primary_property\/project\/1689\/1589525563_5ebe3c3b4118cads_logo_1689.png","order":0}]},{"mediaType":"COVER","mediaInfo":[{"mediaUrl":"https:\/\/pic.rumah123.com\/r123\/1080x720-fit\/primary_property\/project\/1689\/1589525588_5ebe3c54b535cads_images_1689.jpg","thumbnailUrl":"https:\/\/pic.rumah123.com\/r123\/250x160-fit\/primary_property\/project\/1689\/1589525588_5ebe3c54b535cads_images_1689.jpg","formatUrl":"https:\/\/pic.rumah123.com\/r123\/{width}x{height}-{scale}\/primary_property\/project\/1689\/1589525588_5ebe3c54b535cads_images_1689.jpg","order":0}]},{"mediaType":"SITEPLAN","mediaInfo":[{"mediaUrl":"https:\/\/pic.rumah123.com\/r123\/1080x720-fit\/primary_property\/project\/1689\/1589694251_siteplan_1689.jpg","thumbnailUrl":"https:\/\/pic.rumah123.com\/r123\/250x160-fit\/primary_property\/project\/1689\/1589694251_siteplan_1689.jpg","formatUrl":"https:\/\/pic.rumah123.com\/r123\/{width}x{height}-{scale}\/primary_property\/project\/1689\/1589694251_siteplan_1689.jpg","order":0}]},{"mediaType":"YOUTUBE","mediaInfo":[{"mediaUrl":"https:\/\/www.youtube.com\/watch?v=_IzyfmJ8cRs","thumbnailUrl":"https:\/\/www.youtube.com\/watch?v=_IzyfmJ8cRs","formatUrl":"https:\/\/www.youtube.com\/watch?v=_IzyfmJ8cRs","order":0},{"mediaUrl":"https:\/\/www.youtube.com\/watch?v=nh0yAEw4vSY","thumbnailUrl":"https:\/\/www.youtube.com\/watch?v=nh0yAEw4vSY","formatUrl":"https:\/\/www.youtube.com\/watch?v=nh0yAEw4vSY","order":1}]}],"primaryProject":{"subUnits":[{"name":"Harmony Tower","properties":[{"title":"Tipe A","description":"[\"Floor\",\"Living and Dining, Dry Kitchen : Imported Marble\",\"Bedrooms : High density laminate flooring\",\"Wet kitchen, service and maid area, maid bathrooms, balcony : Homogeneous Tile\",\"Ceiling\",\"Living and Dining, Dry Kitchen, Bedrooms, Service and Maid Area : Painted Gypsumboard \",\"Bathrooms, Wet Kitchen, Maid Bathrooms : WR gypsum board\",\"Wall \",\"Living and Dining, Bedrooms : Painted\",\"Bathrooms : Imported Marble\",\"Service and Maid Area, Maid Bathrooms : Painted\",\"Doors\",\"Main Door : Solid Engineered wood door\",\"Bedrooms, Bathrooms, Service and Maid Area : Engineered wood Doors\",\"Dry Kitchen\",\"Appliances : De Dietrich, European brand: Electric Hob, Hood and Oven\",\"Counter Top Surface : Quartz (high quality compact marble)\",\"Wet Kitchen \",\"Counter Top Surface : Homogeneous Tile\",\"Sanitary\\t\",\"Bathrooms : Toto Premium\",\"Air Conditioning\",\"Living and all Bedrooms* \\tSplit Duct - Mitsubishi\",\"Wardrobe : Built in all Bedrooms*\",\"Vanity : Built in all Bathrooms*\",\"Other \",\"Lighting : Down Light\",\"Connectivity\",\"Safety : Access card for lift lobby and facilities features\",\"Video Communication\",\"Water Heater \",\"Smoke, Heat and Sprinkler\",\"Electrial Power : 3BR = 13.200 VA, 2BR = 10.500 VA\",\"Parking : 1 Lot\",\"Clear Ceiling Height : \\u00b1 2.7 m - 3.1 m\",\"IPTV ready : Living room \",\"Internet port : Living room \"]","uuid":"73192221-716a-4d6f-b921-2fb362904300","medias":[{"mediaType":"COVER","mediaInfo":[{"mediaUrl":"https:\/\/picture.rumah123.com\/r123-images\/1080x720-fit\/customer\/1899233\/6227a18bd20380052e9dcea764d48d41.jpg","thumbnailUrl":"https:\/\/picture.rumah123.com\/r123-images\/250x160-fit\/customer\/1899233\/6227a18bd20380052e9dcea764d48d41.jpg","formatUrl":"https:\/\/picture.rumah123.com\/r123-images\/{width}x{height}-{scale}\/customer\/1899233\/6227a18bd20380052e9dcea764d48d41.jpg","order":0}]},{"mediaType":"REGULAR","mediaInfo":[{"mediaUrl":"https:\/\/picture.rumah123.com\/r123-images\/1080x720-fit\/customer\/1899233\/8988a982404c587a023889bed65c78b5.jpg","thumbnailUrl":"https:\/\/picture.rumah123.com\/r123-images\/250x160-fit\/customer\/1899233\/8988a982404c587a023889bed65c78b5.jpg","formatUrl":"https:\/\/picture.rumah123.com\/r123-images\/{width}x{height}-{scale}\/customer\/1899233\/8988a982404c587a023889bed65c78b5.jpg","order":1},{"mediaUrl":"https:\/\/picture.rumah123.com\/r123-images\/1080x720-fit\/customer\/1899233\/d515a5847296ab5c9471f3b647ceac46.jpg","thumbnailUrl":"https:\/\/picture.rumah123.com\/r123-images\/250x160-fit\/customer\/1899233\/d515a5847296ab5c9471f3b647ceac46.jpg","formatUrl":"https:\/\/picture.rumah123.com\/r123-images\/{width}x{height}-{scale}\/customer\/1899233\/d515a5847296ab5c9471f3b647ceac46.jpg","order":2},{"mediaUrl":"https:\/\/picture.rumah123.com\/r123-images\/1080x720-fit\/customer\/1899233\/4e3ec4dbc8d2671bb105fed2b6bfea63.jpg","thumbnailUrl":"https:\/\/picture.rumah123.com\/r123-images\/250x160-fit\/customer\/1899233\/4e3ec4dbc8d2671bb105fed2b6bfea63.jpg","formatUrl":"https:\/\/picture.rumah123.com\/r123-images\/{width}x{height}-{scale}\/customer\/1899233\/4e3ec4dbc8d2671bb105fed2b6bfea63.jpg","order":3},{"mediaUrl":"https:\/\/picture.rumah123.com\/r123-images\/1080x720-fit\/customer\/1899233\/e5b8d02cf95fd1e6a2d20ee23c8e8cc1.jpg","thumbnailUrl":"https:\/\/picture.rumah123.com\/r123-images\/250x160-fit\/customer\/1899233\/e5b8d02cf95fd1e6a2d20ee23c8e8cc1.jpg","formatUrl":"https:\/\/picture.rumah123.com\/r123-images\/{width}x{height}-{scale}\/customer\/1899233\/e5b8d02cf95fd1e6a2d20ee23c8e8cc1.jpg","order":4},{"mediaUrl":"https:\/\/picture.rumah123.com\/r123-images\/1080x720-fit\/customer\/1899233\/af105f8fcb62a3e6792c117cc259b777.jpg","thumbnailUrl":"https:\/\/picture.rumah123.com\/r123-images\/250x160-fit\/customer\/1899233\/af105f8fcb62a3e6792c117cc259b777.jpg","formatUrl":"https:\/\/picture.rumah123.com\/r123-images\/{width}x{height}-{scale}\/customer\/1899233\/af105f8fcb62a3e6792c117cc259b777.jpg","order":5},{"mediaUrl":"https:\/\/picture.rumah123.com\/r123-images\/1080x720-fit\/customer\/1899233\/68fcecc07e5b2afe8592b771a072ce54.jpg","thumbnailUrl":"https:\/\/picture.rumah123.com\/r123-images\/250x160-fit\/customer\/1899233\/68fcecc07e5b2afe8592b771a072ce54.jpg","formatUrl":"https:\/\/picture.rumah123.com\/r123-images\/{width}x{height}-{scale}\/customer\/1899233\/68fcecc07e5b2afe8592b771a072ce54.jpg","order":6},{"mediaUrl":"https:\/\/picture.rumah123.com\/r123-images\/1080x720-fit\/customer\/1899233\/4187dd2e3b2c6f42d77092096b82aac2.jpg","thumbnailUrl":"https:\/\/picture.rumah123.com\/r123-images\/250x160-fit\/customer\/1899233\/4187dd2e3b2c6f42d77092096b82aac2.jpg","formatUrl":"https:\/\/picture.rumah123.com\/r123-images\/{width}x{height}-{scale}\/customer\/1899233\/4187dd2e3b2c6f42d77092096b82aac2.jpg","order":7},{"mediaUrl":"https:\/\/picture.rumah123.com\/r123-images\/1080x720-fit\/customer\/1899233\/5a1675f03837f79f9ab4fe7e04bbbdd2.jpg","thumbnailUrl":"https:\/\/picture.rumah123.com\/r123-images\/250x160-fit\/customer\/1899233\/5a1675f03837f79f9ab4fe7e04bbbdd2.jpg","formatUrl":"https:\/\/picture.rumah123.com\/r123-images\/{width}x{height}-{scale}\/customer\/1899233\/5a1675f03837f79f9ab4fe7e04bbbdd2.jpg","order":8},{"mediaUrl":"https:\/\/picture.rumah123.com\/r123-images\/1080x720-fit\/customer\/1899233\/bc3374909d8177ed9d97e6111f9f41ab.jpg","thumbnailUrl":"https:\/\/picture.rumah123.com\/r123-images\/250x160-fit\/customer\/1899233\/bc3374909d8177ed9d97e6111f9f41ab.jpg","formatUrl":"https:\/\/picture.rumah123.com\/r123-images\/{width}x{height}-{scale}\/customer\/1899233\/bc3374909d8177ed9d97e6111f9f41ab.jpg","order":9},{"mediaUrl":"https:\/\/picture.rumah123.com\/r123-images\/1080x720-fit\/customer\/1899233\/4e90b35c9a83c92622aa6a3180dd62a0.jpg","thumbnailUrl":"https:\/\/picture.rumah123.com\/r123-images\/250x160-fit\/customer\/1899233\/4e90b35c9a83c92622aa6a3180dd62a0.jpg","formatUrl":"https:\/\/picture.rumah123.com\/r123-images\/{width}x{height}-{scale}\/customer\/1899233\/4e90b35c9a83c92622aa6a3180dd62a0.jpg","order":10},{"mediaUrl":"https:\/\/picture.rumah123.com\/r123-images\/1080x720-fit\/customer\/1899233\/e7b01a5aabe50f1f1de6574ef5529ad8.jpg","thumbnailUrl":"https:\/\/picture.rumah123.com\/r123-images\/250x160-fit\/customer\/1899233\/e7b01a5aabe50f1f1de6574ef5529ad8.jpg","formatUrl":"https:\/\/picture.rumah123.com\/r123-images\/{width}x{height}-{scale}\/customer\/1899233\/e7b01a5aabe50f1f1de6574ef5529ad8.jpg","order":11},{"mediaUrl":"https:\/\/picture.rumah123.com\/r123-images\/1080x720-fit\/customer\/1899233\/acf0ecb171f9ef052611a41942aa9618.jpg","thumbnailUrl":"https:\/\/picture.rumah123.com\/r123-images\/250x160-fit\/customer\/1899233\/acf0ecb171f9ef052611a41942aa9618.jpg","formatUrl":"https:\/\/picture.rumah123.com\/r123-images\/{width}x{height}-{scale}\/customer\/1899233\/acf0ecb171f9ef052611a41942aa9618.jpg","order":12},{"mediaUrl":"https:\/\/picture.rumah123.com\/r123-images\/1080x720-fit\/customer\/1899233\/f35e14fff1a03803c67e4902e4d51e22.jpg","thumbnailUrl":"https:\/\/picture.rumah123.com\/r123-images\/250x160-fit\/customer\/1899233\/f35e14fff1a03803c67e4902e4d51e22.jpg","formatUrl":"https:\/\/picture.rumah123.com\/r123-images\/{width}x{height}-{scale}\/customer\/1899233\/f35e14fff1a03803c67e4902e4d51e22.jpg","order":13},{"mediaUrl":"https:\/\/picture.rumah123.com\/r123-images\/1080x720-fit\/customer\/1899233\/a53ff0f5b2accb7dae8f915526ce7d23.jpg","thumbnailUrl":"https:\/\/picture.rumah123.com\/r123-images\/250x160-fit\/customer\/1899233\/a53ff0f5b2accb7dae8f915526ce7d23.jpg","formatUrl":"https:\/\/picture.rumah123.com\/r123-images\/{width}x{height}-{scale}\/customer\/1899233\/a53ff0f5b2accb7dae8f915526ce7d23.jpg","order":14},{"mediaUrl":"https:\/\/picture.rumah123.com\/r123-images\/1080x720-fit\/customer\/1899233\/7bdac8e8a4f1aa585d0ce2875e647843.jpg","thumbnailUrl":"https:\/\/picture.rumah123.com\/r123-images\/250x160-fit\/customer\/1899233\/7bdac8e8a4f1aa585d0ce2875e647843.jpg","formatUrl":"https:\/\/picture.rumah123.com\/r123-images\/{width}x{height}-{scale}\/customer\/1899233\/7bdac8e8a4f1aa585d0ce2875e647843.jpg","order":15},{"mediaUrl":"https:\/\/picture.rumah123.com\/r123-images\/1080x720-fit\/customer\/1899233\/06b87ac6c3e5854a821d2f46142eb3d3.jpg","thumbnailUrl":"https:\/\/picture.rumah123.com\/r123-images\/250x160-fit\/customer\/1899233\/06b87ac6c3e5854a821d2f46142eb3d3.jpg","formatUrl":"https:\/\/picture.rumah123.com\/r123-images\/{width}x{height}-{scale}\/customer\/1899233\/06b87ac6c3e5854a821d2f46142eb3d3.jpg","order":16},{"mediaUrl":"https:\/\/picture.rumah123.com\/r123-images\/1080x720-fit\/customer\/1899233\/cacf466305a9699fb5454aa7f62646fc.jpg","thumbnailUrl":"https:\/\/picture.rumah123.com\/r123-images\/250x160-fit\/customer\/1899233\/cacf466305a9699fb5454aa7f62646fc.jpg","formatUrl":"https:\/\/picture.rumah123.com\/r123-images\/{width}x{height}-{scale}\/customer\/1899233\/cacf466305a9699fb5454aa7f62646fc.jpg","order":17},{"mediaUrl":"https:\/\/picture.rumah123.com\/r123-images\/1080x720-fit\/customer\/1899233\/82d7ff7e04a3bbff9254bb08b8829de9.jpg","thumbnailUrl":"https:\/\/picture.rumah123.com\/r123-images\/250x160-fit\/customer\/1899233\/82d7ff7e04a3bbff9254bb08b8829de9.jpg","formatUrl":"https:\/\/picture.rumah123.com\/r123-images\/{width}x{height}-{scale}\/customer\/1899233\/82d7ff7e04a3bbff9254bb08b8829de9.jpg","order":18},{"mediaUrl":"https:\/\/picture.rumah123.com\/r123-images\/1080x720-fit\/customer\/1899233\/eedfda224928a2f6469291fa458c9c19.jpg","thumbnailUrl":"https:\/\/picture.rumah123.com\/r123-images\/250x160-fit\/customer\/1899233\/eedfda224928a2f6469291fa458c9c19.jpg","formatUrl":"https:\/\/picture.rumah123.com\/r123-images\/{width}x{height}-{scale}\/customer\/1899233\/eedfda224928a2f6469291fa458c9c19.jpg","order":19},{"mediaUrl":"https:\/\/picture.rumah123.com\/r123-images\/1080x720-fit\/customer\/1899233\/aa96b3739ef0c3337b59b3e7f89eb943.jpg","thumbnailUrl":"https:\/\/picture.rumah123.com\/r123-images\/250x160-fit\/customer\/1899233\/aa96b3739ef0c3337b59b3e7f89eb943.jpg","formatUrl":"https:\/\/picture.rumah123.com\/r123-images\/{width}x{height}-{scale}\/customer\/1899233\/aa96b3739ef0c3337b59b3e7f89eb943.jpg","order":20},{"mediaUrl":"https:\/\/pic.rumah123.com\/r123\/1080x720-fit\/primary_property\/project\/1689\/1589721926_15897219265ec13b46b037cads_images_3196.jpg","thumbnailUrl":"https:\/\/pic.rumah123.com\/r123\/250x160-fit\/primary_property\/project\/1689\/1589721926_15897219265ec13b46b037cads_images_3196.jpg","formatUrl":"https:\/\/pic.rumah123.com\/r123\/{width}x{height}-{scale}\/primary_property\/project\/1689\/1589721926_15897219265ec13b46b037cads_images_3196.jpg","order":21},{"mediaUrl":"https:\/\/pic.rumah123.com\/r123\/1080x720-fit\/primary_property\/project\/1689\/1589721919_15897219195ec13b3f1b52cads_images_3196.jpg","thumbnailUrl":"https:\/\/pic.rumah123.com\/r123\/250x160-fit\/primary_property\/project\/1689\/1589721919_15897219195ec13b3f1b52cads_images_3196.jpg","formatUrl":"https:\/\/pic.rumah123.com\/r123\/{width}x{height}-{scale}\/primary_property\/project\/1689\/1589721919_15897219195ec13b3f1b52cads_images_3196.jpg","order":22},{"mediaUrl":"https:\/\/pic.rumah123.com\/r123\/1080x720-fit\/primary_property\/project\/1689\/1589721926_15897219265ec13b46abd26ads_images_3196.jpg","thumbnailUrl":"https:\/\/pic.rumah123.com\/r123\/250x160-fit\/primary_property\/project\/1689\/1589721926_15897219265ec13b46abd26ads_images_3196.jpg","formatUrl":"https:\/\/pic.rumah123.com\/r123\/{width}x{height}-{scale}\/primary_property\/project\/1689\/1589721926_15897219265ec13b46abd26ads_images_3196.jpg","order":23},{"mediaUrl":"https:\/\/pic.rumah123.com\/r123\/1080x720-fit\/primary_property\/project\/1689\/1589721926_15897219265ec13b46e8d56ads_images_3196.jpg","thumbnailUrl":"https:\/\/pic.rumah123.com\/r123\/250x160-fit\/primary_property\/project\/1689\/1589721926_15897219265ec13b46e8d56ads_images_3196.jpg","formatUrl":"https:\/\/pic.rumah123.com\/r123\/{width}x{height}-{scale}\/primary_property\/project\/1689\/1589721926_15897219265ec13b46e8d56ads_images_3196.jpg","order":24},{"mediaUrl":"https:\/\/pic.rumah123.com\/r123\/1080x720-fit\/primary_property\/project\/1689\/1589721927_15897219275ec13b47116d7ads_images_3196.jpg","thumbnailUrl":"https:\/\/pic.rumah123.com\/r123\/250x160-fit\/primary_property\/project\/1689\/1589721927_15897219275ec13b47116d7ads_images_3196.jpg","formatUrl":"https:\/\/pic.rumah123.com\/r123\/{width}x{height}-{scale}\/primary_property\/project\/1689\/1589721927_15897219275ec13b47116d7ads_images_3196.jpg","order":25},{"mediaUrl":"https:\/\/pic.rumah123.com\/r123\/1080x720-fit\/primary_property\/project\/1689\/1589721927_15897219275ec13b4752129ads_images_3196.jpg","thumbnailUrl":"https:\/\/pic.rumah123.com\/r123\/250x160-fit\/primary_property\/project\/1689\/1589721927_15897219275ec13b4752129ads_images_3196.jpg","formatUrl":"https:\/\/pic.rumah123.com\/r123\/{width}x{height}-{scale}\/primary_property\/project\/1689\/1589721927_15897219275ec13b4752129ads_images_3196.jpg","order":26}]},{"mediaType":"SITEPLAN","mediaInfo":[{"mediaUrl":"https:\/\/picture.rumah123.com\/r123-images\/1080x720-fit\/customer\/4419385\/1dc41dfca767e67cff3f00747323eacf.png","thumbnailUrl":"https:\/\/picture.rumah123.com\/r123-images\/250x160-fit\/customer\/4419385\/1dc41dfca767e67cff3f00747323eacf.png","formatUrl":"https:\/\/picture.rumah123.com\/r123-images\/{width}x{height}-{scale}\/customer\/4419385\/1dc41dfca767e67cff3f00747323eacf.png","order":0}]}],"attributes":{"landSize":null,"buildingSize":{"name":"buildingSize","label":"Luas Bangunan","value":"127","formattedValue":"127 m\u00b2"},"bedrooms":{"name":"bedrooms","label":"Kamar","value":"2","formattedValue":"2"},"bathrooms":{"name":"bathrooms","label":"Kamar Mandi","value":"2","formattedValue":"2"},"carports":null},"propertyType":{"name":"propertyType","label":"Tipe Properti","value":"1","formattedValue":"Apartemen"},"price":{"minValue":5500000000,"maxValue":5500000000,"currencyType":360,"display":"Rp 5,5 Miliar","offer":5500000000,"unitType":0,"subDisplay":""},"location":{"uuid":"","level":0,"name":"","locationType":0,"text":""},"subtitle":"","url":"\/perumahan-baru\/properti\/jakarta-selatan\/the-elements\/tipe-a\/aps13196\/"},{"title":"Tipe B","description":"[\"Floor\",\"Living and Dining, Dry Kitchen : Imported Marble\",\"Bedrooms : High density laminate flooring\",\"Wet kitchen, service and maid area, maid bathrooms, balcony : Homogeneous Tile\",\"Ceiling\",\"Living and Dining, Dry Kitchen, Bedrooms, Service and Maid Area : Painted Gypsumboard \",\"Bathrooms, Wet Kitchen, Maid Bathrooms : WR gypsum board\",\"Wall \",\"Living and Dining, Bedrooms : Painted\",\"Bathrooms : Imported Marble\",\"Service and Maid Area, Maid Bathrooms : Painted\",\"Doors\",\"Main Door : Solid Engineered wood door\",\"Bedrooms, Bathrooms, Service and Maid Area : Engineered wood Doors\",\"Dry Kitchen\",\"Appliances : De Dietrich, European brand: Electric Hob, Hood and Oven\",\"Counter Top Surface : Quartz (high quality compact marble)\",\"Wet Kitchen \",\"Counter Top Surface : Homogeneous Tile\",\"Sanitary\\t\",\"Bathrooms : Toto Premium\",\"Air Conditioning\",\"Living and all Bedrooms* \\tSplit Duct - Mitsubishi\",\"Wardrobe : Built in all Bedrooms*\",\"Vanity : Built in all Bathrooms*\",\"Other \",\"Lighting : Down Light\",\"Connectivity\",\"Safety : Access card for lift lobby and facilities features\",\"Video Communication\",\"Water Heater \",\"Smoke, Heat and Sprinkler\",\"Electrial Power : 3BR = 13.200 VA, 2BR = 10.500 VA\",\"Parking : 1 Lot\",\"Clear Ceiling Height : \\u00b1 2.7 m - 3.1 m\",\"IPTV ready : Living room \",\"Internet port : Living room \"]","uuid":"40568912-3c97-49a6-8eea-beeb05a304dc","medias":[{"mediaType":"COVER","mediaInfo":[{"mediaUrl":"https:\/\/picture.rumah123.com\/r123-images\/1080x720-fit\/customer\/1971002\/29f5ae05b066995aaeb17598e7ce069d.jpg","thumbnailUrl":"https:\/\/picture.rumah123.com\/r123-images\/250x160-fit\/customer\/1971002\/29f5ae05b066995aaeb17598e7ce069d.jpg","formatUrl":"https:\/\/picture.rumah123.com\/r123-images\/{width}x{height}-{scale}\/customer\/1971002\/29f5ae05b066995aaeb17598e7ce069d.jpg","order":0}]},{"mediaType":"REGULAR","mediaInfo":[{"mediaUrl":"https:\/\/picture.rumah123.com\/r123-images\/1080x720-fit\/customer\/1971002\/1995c208b71bbd40e6ce2b54a4a3500a.jpg","thumbnailUrl":"https:\/\/picture.rumah123.com\/r123-images\/250x160-fit\/customer\/1971002\/1995c208b71bbd40e6ce2b54a4a3500a.jpg","formatUrl":"https:\/\/picture.rumah123.com\/r123-images\/{width}x{height}-{scale}\/customer\/1971002\/1995c208b71bbd40e6ce2b54a4a3500a.jpg","order":1},{"mediaUrl":"https:\/\/picture.rumah123.com\/r123-images\/1080x720-fit\/customer\/1971002\/7bf1e095e3888135b6a92e3e5b307d51.jpg","thumbnailUrl":"https:\/\/picture.rumah123.com\/r123-images\/250x160-fit\/customer\/1971002\/7bf1e095e3888135b6a92e3e5b307d51.jpg","formatUrl":"https:\/\/picture.rumah123.com\/r123-images\/{width}x{height}-{scale}\/customer\/1971002\/7bf1e095e3888135b6a92e3e5b307d51.jpg","order":2},{"mediaUrl":"https:\/\/picture.rumah123.com\/r123-images\/1080x720-fit\/customer\/1971002\/dcf586823cb420f30aafc517268bd46a.jpg","thumbnailUrl":"https:\/\/picture.rumah123.com\/r123-images\/250x160-fit\/customer\/1971002\/dcf586823cb420f30aafc517268bd46a.jpg","formatUrl":"https:\/\/picture.rumah123.com\/r123-images\/{width}x{height}-{scale}\/customer\/1971002\/dcf586823cb420f30aafc517268bd46a.jpg","order":3},{"mediaUrl":"https:\/\/picture.rumah123.com\/r123-images\/1080x720-fit\/customer\/1971002\/a94619fccf477b101753578c43484e96.jpg","thumbnailUrl":"https:\/\/picture.rumah123.com\/r123-images\/250x160-fit\/customer\/1971002\/a94619fccf477b101753578c43484e96.jpg","formatUrl":"https:\/\/picture.rumah123.com\/r123-images\/{width}x{height}-{scale}\/customer\/1971002\/a94619fccf477b101753578c43484e96.jpg","order":4},{"mediaUrl":"https:\/\/picture.rumah123.com\/r123-images\/1080x720-fit\/customer\/1971002\/a2b0aeb214c8b23ea39307de1b80bd86.jpg","thumbnailUrl":"https:\/\/picture.rumah123.com\/r123-images\/250x160-fit\/customer\/1971002\/a2b0aeb214c8b23ea39307de1b80bd86.jpg","formatUrl":"https:\/\/picture.rumah123.com\/r123-images\/{width}x{height}-{scale}\/customer\/1971002\/a2b0aeb214c8b23ea39307de1b80bd86.jpg","order":5},{"mediaUrl":"https:\/\/picture.rumah123.com\/r123-images\/1080x720-fit\/customer\/1971002\/95324850b773243022f970100a1c1e80.jpg","thumbnailUrl":"https:\/\/picture.rumah123.com\/r123-images\/250x160-fit\/customer\/1971002\/95324850b773243022f970100a1c1e80.jpg","formatUrl":"https:\/\/picture.rumah123.com\/r123-images\/{width}x{height}-{scale}\/customer\/1971002\/95324850b773243022f970100a1c1e80.jpg","order":6},{"mediaUrl":"https:\/\/picture.rumah123.com\/r123-images\/1080x720-fit\/customer\/1971002\/2b743959aba6e9186b9495d9da8b69a6.jpg","thumbnailUrl":"https:\/\/picture.rumah123.com\/r123-images\/250x160-fit\/customer\/1971002\/2b743959aba6e9186b9495d9da8b69a6.jpg","formatUrl":"https:\/\/picture.rumah123.com\/r123-images\/{width}x{height}-{scale}\/customer\/1971002\/2b743959aba6e9186b9495d9da8b69a6.jpg","order":7},{"mediaUrl":"https:\/\/picture.rumah123.com\/r123-images\/1080x720-fit\/customer\/1971002\/10c4daea864d2e44b5e55c338629cb6e.jpg","thumbnailUrl":"https:\/\/picture.rumah123.com\/r123-images\/250x160-fit\/customer\/1971002\/10c4daea864d2e44b5e55c338629cb6e.jpg","formatUrl":"https:\/\/picture.rumah123.com\/r123-images\/{width}x{height}-{scale}\/customer\/1971002\/10c4daea864d2e44b5e55c338629cb6e.jpg","order":8},{"mediaUrl":"https:\/\/picture.rumah123.com\/r123-images\/1080x720-fit\/customer\/1971002\/05322a5dee277ce6088da64d8c2346b7.jpg","thumbnailUrl":"https:\/\/picture.rumah123.com\/r123-images\/250x160-fit\/customer\/1971002\/05322a5dee277ce6088da64d8c2346b7.jpg","formatUrl":"https:\/\/picture.rumah123.com\/r123-images\/{width}x{height}-{scale}\/customer\/1971002\/05322a5dee277ce6088da64d8c2346b7.jpg","order":9},{"mediaUrl":"https:\/\/picture.rumah123.com\/r123-images\/1080x720-fit\/customer\/1971002\/7e21c6ee133a3ceb49e631a1ae6b7e1c.jpg","thumbnailUrl":"https:\/\/picture.rumah123.com\/r123-images\/250x160-fit\/customer\/1971002\/7e21c6ee133a3ceb49e631a1ae6b7e1c.jpg","formatUrl":"https:\/\/picture.rumah123.com\/r123-images\/{width}x{height}-{scale}\/customer\/1971002\/7e21c6ee133a3ceb49e631a1ae6b7e1c.jpg","order":10},{"mediaUrl":"https:\/\/picture.rumah123.com\/r123-images\/1080x720-fit\/customer\/1971002\/fe1c201c1a6a660fef96a30b5809df73.jpg","thumbnailUrl":"https:\/\/picture.rumah123.com\/r123-images\/250x160-fit\/customer\/1971002\/fe1c201c1a6a660fef96a30b5809df73.jpg","formatUrl":"https:\/\/picture.rumah123.com\/r123-images\/{width}x{height}-{scale}\/customer\/1971002\/fe1c201c1a6a660fef96a30b5809df73.jpg","order":11},{"mediaUrl":"https:\/\/picture.rumah123.com\/r123-images\/1080x720-fit\/customer\/1971002\/8a9512beaa32d8ce482183d149ccef4c.jpg","thumbnailUrl":"https:\/\/picture.rumah123.com\/r123-images\/250x160-fit\/customer\/1971002\/8a9512beaa32d8ce482183d149ccef4c.jpg","formatUrl":"https:\/\/picture.rumah123.com\/r123-images\/{width}x{height}-{scale}\/customer\/1971002\/8a9512beaa32d8ce482183d149ccef4c.jpg","order":12},{"mediaUrl":"https:\/\/picture.rumah123.com\/r123-images\/1080x720-fit\/customer\/1971002\/eec14668308f2c8c51715a9253926e10.jpg","thumbnailUrl":"https:\/\/picture.rumah123.com\/r123-images\/250x160-fit\/customer\/1971002\/eec14668308f2c8c51715a9253926e10.jpg","formatUrl":"https:\/\/picture.rumah123.com\/r123-images\/{width}x{height}-{scale}\/customer\/1971002\/eec14668308f2c8c51715a9253926e10.jpg","order":13}]},{"mediaType":"SITEPLAN","mediaInfo":[{"mediaUrl":"https:\/\/pic.rumah123.com\/r123\/1080x720-fit\/primary_property\/project\/1689\/1665975546_634cc4fac7c62floorplan_3197.jpg","thumbnailUrl":"https:\/\/pic.rumah123.com\/r123\/250x160-fit\/primary_property\/project\/1689\/1665975546_634cc4fac7c62floorplan_3197.jpg","formatUrl":"https:\/\/pic.rumah123.com\/r123\/{width}x{height}-{scale}\/primary_property\/project\/1689\/1665975546_634cc4fac7c62floorplan_3197.jpg","order":0}]}],"attributes":{"landSize":null,"buildingSize":{"name":"buildingSize","label":"Luas Bangunan","value":"141","formattedValue":"141 m\u00b2"},"bedrooms":{"name":"bedrooms","label":"Kamar","value":"3","formattedValue":"3"},"bathrooms":{"name":"bathrooms","label":"Kamar Mandi","value":"3","formattedValue":"3"},"carports":null},"propertyType":{"name":"propertyType","label":"Tipe Properti","value":"1","formattedValue":"Apartemen"},"price":{"minValue":5681000000,"maxValue":5681000000,"currencyType":360,"display":"Rp 5,68 Miliar","offer":5681000000,"unitType":0,"subDisplay":""},"location":{"uuid":"","level":0,"name":"","locationType":0,"text":""},"subtitle":"","url":"\/perumahan-baru\/properti\/jakarta-selatan\/the-elements\/tipe-b\/aps23197\/"},{"title":"Tipe E","description":"[\"Floor\",\"Living and Dining, Dry Kitchen : Imported Marble\",\"Bedrooms : High density laminate flooring\",\"Wet kitchen, service and maid area, maid bathrooms, balcony : Homogeneous Tile\",\"Ceiling\",\"Living and Dining, Dry Kitchen, Bedrooms, Service and Maid Area : Painted Gypsumboard \",\"Bathrooms, Wet Kitchen, Maid Bathrooms : WR gypsum board\",\"Wall \",\"Living and Dining, Bedrooms : Painted\",\"Bathrooms : Imported Marble\",\"Service and Maid Area, Maid Bathrooms : Painted\",\"Doors\",\"Main Door : Solid Engineered wood door\",\"Bedrooms, Bathrooms, Service and Maid Area : Engineered wood Doors\",\"Dry Kitchen\",\"Appliances : De Dietrich, European brand: Electric Hob, Hood and Oven\",\"Counter Top Surface : Quartz (high quality compact marble)\",\"Wet Kitchen \",\"Counter Top Surface : Homogeneous Tile\",\"Sanitary\\t\",\"Bathrooms : Toto Premium\",\"Air Conditioning\",\"Living and all Bedrooms* \\tSplit Duct - Mitsubishi\",\"Wardrobe : Built in all Bedrooms*\",\"Vanity : Built in all Bathrooms*\",\"Other \",\"Lighting : Down Light\",\"Connectivity\",\"Safety : Access card for lift lobby and facilities features\",\"Video Communication\",\"Water Heater \",\"Smoke, Heat and Sprinkler\",\"Electrial Power : 3BR = 13.200 VA, 2BR = 10.500 VA\",\"Parking : 1 Lot\",\"Clear Ceiling Height : \\u00b1 2.7 m - 3.1 m\",\"IPTV ready : Living room \",\"Internet port : Living room \"]","uuid":"48bcc42f-a024-4211-a6aa-eecaf1776768","medias":[{"mediaType":"COVER","mediaInfo":[{"mediaUrl":"https:\/\/pic.rumah123.com\/r123\/1080x720-fit\/primary_property\/project\/1689\/1589722154_15897221545ec13c2a4fadaads_images_3199.jpg","thumbnailUrl":"https:\/\/pic.rumah123.com\/r123\/250x160-fit\/primary_property\/project\/1689\/1589722154_15897221545ec13c2a4fadaads_images_3199.jpg","formatUrl":"https:\/\/pic.rumah123.com\/r123\/{width}x{height}-{scale}\/primary_property\/project\/1689\/1589722154_15897221545ec13c2a4fadaads_images_3199.jpg","order":0}]},{"mediaType":"REGULAR","mediaInfo":[{"mediaUrl":"https:\/\/pic.rumah123.com\/r123\/1080x720-fit\/primary_property\/project\/1689\/1589722153_15897221535ec13c29d5dfaads_images_3199.jpg","thumbnailUrl":"https:\/\/pic.rumah123.com\/r123\/250x160-fit\/primary_property\/project\/1689\/1589722153_15897221535ec13c29d5dfaads_images_3199.jpg","formatUrl":"https:\/\/pic.rumah123.com\/r123\/{width}x{height}-{scale}\/primary_property\/project\/1689\/1589722153_15897221535ec13c29d5dfaads_images_3199.jpg","order":1},{"mediaUrl":"https:\/\/pic.rumah123.com\/r123\/1080x720-fit\/primary_property\/project\/1689\/1589722154_15897221545ec13c2a02588ads_images_3199.jpg","thumbnailUrl":"https:\/\/pic.rumah123.com\/r123\/250x160-fit\/primary_property\/project\/1689\/1589722154_15897221545ec13c2a02588ads_images_3199.jpg","formatUrl":"https:\/\/pic.rumah123.com\/r123\/{width}x{height}-{scale}\/primary_property\/project\/1689\/1589722154_15897221545ec13c2a02588ads_images_3199.jpg","order":2},{"mediaUrl":"https:\/\/pic.rumah123.com\/r123\/1080x720-fit\/primary_property\/project\/1689\/1589722154_15897221545ec13c2a0b54bads_images_3199.jpg","thumbnailUrl":"https:\/\/pic.rumah123.com\/r123\/250x160-fit\/primary_property\/project\/1689\/1589722154_15897221545ec13c2a0b54bads_images_3199.jpg","formatUrl":"https:\/\/pic.rumah123.com\/r123\/{width}x{height}-{scale}\/primary_property\/project\/1689\/1589722154_15897221545ec13c2a0b54bads_images_3199.jpg","order":3},{"mediaUrl":"https:\/\/pic.rumah123.com\/r123\/1080x720-fit\/primary_property\/project\/1689\/1589722154_15897221545ec13c2a32f03ads_images_3199.jpg","thumbnailUrl":"https:\/\/pic.rumah123.com\/r123\/250x160-fit\/primary_property\/project\/1689\/1589722154_15897221545ec13c2a32f03ads_images_3199.jpg","formatUrl":"https:\/\/pic.rumah123.com\/r123\/{width}x{height}-{scale}\/primary_property\/project\/1689\/1589722154_15897221545ec13c2a32f03ads_images_3199.jpg","order":4},{"mediaUrl":"https:\/\/pic.rumah123.com\/r123\/1080x720-fit\/primary_property\/project\/1689\/1589722154_15897221545ec13c2a93b40ads_images_3199.jpg","thumbnailUrl":"https:\/\/pic.rumah123.com\/r123\/250x160-fit\/primary_property\/project\/1689\/1589722154_15897221545ec13c2a93b40ads_images_3199.jpg","formatUrl":"https:\/\/pic.rumah123.com\/r123\/{width}x{height}-{scale}\/primary_property\/project\/1689\/1589722154_15897221545ec13c2a93b40ads_images_3199.jpg","order":6},{"mediaUrl":"https:\/\/pic.rumah123.com\/r123\/1080x720-fit\/primary_property\/project\/1689\/1589722154_15897221545ec13c2ad622aads_images_3199.jpg","thumbnailUrl":"https:\/\/pic.rumah123.com\/r123\/250x160-fit\/primary_property\/project\/1689\/1589722154_15897221545ec13c2ad622aads_images_3199.jpg","formatUrl":"https:\/\/pic.rumah123.com\/r123\/{width}x{height}-{scale}\/primary_property\/project\/1689\/1589722154_15897221545ec13c2ad622aads_images_3199.jpg","order":7}]},{"mediaType":"SITEPLAN","mediaInfo":[{"mediaUrl":"https:\/\/pic.rumah123.com\/r123\/1080x720-fit\/primary_property\/project\/1689\/1665975672_634cc5783f5c5floorplan_3199.jpg","thumbnailUrl":"https:\/\/pic.rumah123.com\/r123\/250x160-fit\/primary_property\/project\/1689\/1665975672_634cc5783f5c5floorplan_3199.jpg","formatUrl":"https:\/\/pic.rumah123.com\/r123\/{width}x{height}-{scale}\/primary_property\/project\/1689\/1665975672_634cc5783f5c5floorplan_3199.jpg","order":0}]}],"attributes":{"landSize":null,"buildingSize":{"name":"buildingSize","label":"Luas Bangunan","value":"139","formattedValue":"139 m\u00b2"},"bedrooms":{"name":"bedrooms","label":"Kamar","value":"3","formattedValue":"3"},"bathrooms":{"name":"bathrooms","label":"Kamar Mandi","value":"3","formattedValue":"3"},"carports":null},"propertyType":{"name":"propertyType","label":"Tipe Properti","value":"1","formattedValue":"Apartemen"},"price":{"minValue":6542000000,"maxValue":6542000000,"currencyType":360,"display":"Rp 6,54 Miliar","offer":6542000000,"unitType":0,"subDisplay":""},"location":{"uuid":"","level":0,"name":"","locationType":0,"text":""},"subtitle":"","url":"\/perumahan-baru\/properti\/jakarta-selatan\/the-elements\/tipe-e\/aps43199\/"}]},{"name":"Serenity Tower","properties":[{"title":"Tipe A, B, C, D","description":"[\"Floor\",\"Living and Dining, Dry Kitchen : Imported Marble\",\"Bedrooms : High density laminate flooring\",\"Wet kitchen, service and maid area, maid bathrooms, balcony : Homogeneous Tile\",\"Ceiling\",\"Living and Dining, Dry Kitchen, Bedrooms, Service and Maid Area : Painted Gypsumboard \",\"Bathrooms, Wet Kitchem, Maid Bathrooms : WR gypsum board\",\"Wall \",\"Living and Dining, Bedrooms : Painted\",\"Bathrooms : High Quality marble\",\"Service and Maid Area, Maid Bathrooms : Painted\",\"Doors\",\"Main Door : Solid Engineered wood door\",\"Bedrooms, Bathrooms, Service and Maid Area : Engineered wood Doors\",\"Dry Kitchen\",\"Appliances : European brand: Electric Hob, Hood and Oven\",\"Counter Top Surface : Quartz (high quality compact marble)\",\"Wet Kitchen \",\"Counter Top Surface : Homogeneous Tile\",\"Sanitary\\t\",\"Bathrooms : Toto Premium\",\"Air Conditioning\",\"Living and all Bedrooms* \\tSplit Duct - Mitsubishi\",\"Wardrobe : Built in all Bedrooms*\",\"Vanity : Built in all Bathrooms*\",\"Other \",\"Lighting : Down Light\",\"Connectivity\",\"Safety : Access card for lift lobby and facilities features\",\"Video Communication\",\"Water Heater \",\"Smoke, Heat and Sprinkler\",\"Back-up Generator\",\"Parking : 1 Lot\",\"Clear Ceiling Height : \\u00b1 2.7 m - 3.1 m\",\"MATV ready : Living room and all bedrooms*\",\"Internet port : Living room \"]","uuid":"b8cd21ce-e556-4643-807e-fe87f97cd350","medias":[{"mediaType":"COVER","mediaInfo":[{"mediaUrl":"https:\/\/picture.rumah123.com\/r123-images\/1080x720-fit\/customer\/1971002\/0ef96d23632a026e8e44b65a583bb346.jpg","thumbnailUrl":"https:\/\/picture.rumah123.com\/r123-images\/250x160-fit\/customer\/1971002\/0ef96d23632a026e8e44b65a583bb346.jpg","formatUrl":"https:\/\/picture.rumah123.com\/r123-images\/{width}x{height}-{scale}\/customer\/1971002\/0ef96d23632a026e8e44b65a583bb346.jpg","order":0}]},{"mediaType":"REGULAR","mediaInfo":[{"mediaUrl":"https:\/\/picture.rumah123.com\/r123-images\/1080x720-fit\/customer\/1971002\/2f8ebb20c504c5e78b05e22f4a66b808.jpg","thumbnailUrl":"https:\/\/picture.rumah123.com\/r123-images\/250x160-fit\/customer\/1971002\/2f8ebb20c504c5e78b05e22f4a66b808.jpg","formatUrl":"https:\/\/picture.rumah123.com\/r123-images\/{width}x{height}-{scale}\/customer\/1971002\/2f8ebb20c504c5e78b05e22f4a66b808.jpg","order":1},{"mediaUrl":"https:\/\/picture.rumah123.com\/r123-images\/1080x720-fit\/customer\/1971002\/3441f03bda52c3e5059e3f574a719d8d.jpg","thumbnailUrl":"https:\/\/picture.rumah123.com\/r123-images\/250x160-fit\/customer\/1971002\/3441f03bda52c3e5059e3f574a719d8d.jpg","formatUrl":"https:\/\/picture.rumah123.com\/r123-images\/{width}x{height}-{scale}\/customer\/1971002\/3441f03bda52c3e5059e3f574a719d8d.jpg","order":2},{"mediaUrl":"https:\/\/picture.rumah123.com\/r123-images\/1080x720-fit\/customer\/1971002\/bbf2d44a90c4ccad942084f6b18cf320.jpg","thumbnailUrl":"https:\/\/picture.rumah123.com\/r123-images\/250x160-fit\/customer\/1971002\/bbf2d44a90c4ccad942084f6b18cf320.jpg","formatUrl":"https:\/\/picture.rumah123.com\/r123-images\/{width}x{height}-{scale}\/customer\/1971002\/bbf2d44a90c4ccad942084f6b18cf320.jpg","order":3},{"mediaUrl":"https:\/\/picture.rumah123.com\/r123-images\/1080x720-fit\/customer\/1971002\/3dafc2ce74fa5bff33bb7e7758e28a54.jpg","thumbnailUrl":"https:\/\/picture.rumah123.com\/r123-images\/250x160-fit\/customer\/1971002\/3dafc2ce74fa5bff33bb7e7758e28a54.jpg","formatUrl":"https:\/\/picture.rumah123.com\/r123-images\/{width}x{height}-{scale}\/customer\/1971002\/3dafc2ce74fa5bff33bb7e7758e28a54.jpg","order":4},{"mediaUrl":"https:\/\/picture.rumah123.com\/r123-images\/1080x720-fit\/customer\/1971002\/ca2a41d1415bffb6886b1b1626ec925f.jpg","thumbnailUrl":"https:\/\/picture.rumah123.com\/r123-images\/250x160-fit\/customer\/1971002\/ca2a41d1415bffb6886b1b1626ec925f.jpg","formatUrl":"https:\/\/picture.rumah123.com\/r123-images\/{width}x{height}-{scale}\/customer\/1971002\/ca2a41d1415bffb6886b1b1626ec925f.jpg","order":5},{"mediaUrl":"https:\/\/picture.rumah123.com\/r123-images\/1080x720-fit\/customer\/1971002\/82e7dec945b816115905c4de53470c57.jpg","thumbnailUrl":"https:\/\/picture.rumah123.com\/r123-images\/250x160-fit\/customer\/1971002\/82e7dec945b816115905c4de53470c57.jpg","formatUrl":"https:\/\/picture.rumah123.com\/r123-images\/{width}x{height}-{scale}\/customer\/1971002\/82e7dec945b816115905c4de53470c57.jpg","order":6},{"mediaUrl":"https:\/\/picture.rumah123.com\/r123-images\/1080x720-fit\/customer\/1971002\/519f414346405f9f5ab49c2654edb634.jpg","thumbnailUrl":"https:\/\/picture.rumah123.com\/r123-images\/250x160-fit\/customer\/1971002\/519f414346405f9f5ab49c2654edb634.jpg","formatUrl":"https:\/\/picture.rumah123.com\/r123-images\/{width}x{height}-{scale}\/customer\/1971002\/519f414346405f9f5ab49c2654edb634.jpg","order":7},{"mediaUrl":"https:\/\/picture.rumah123.com\/r123-images\/1080x720-fit\/customer\/1971002\/dcd9e23441e8e8469416a65319939abc.jpg","thumbnailUrl":"https:\/\/picture.rumah123.com\/r123-images\/250x160-fit\/customer\/1971002\/dcd9e23441e8e8469416a65319939abc.jpg","formatUrl":"https:\/\/picture.rumah123.com\/r123-images\/{width}x{height}-{scale}\/customer\/1971002\/dcd9e23441e8e8469416a65319939abc.jpg","order":8},{"mediaUrl":"https:\/\/picture.rumah123.com\/r123-images\/1080x720-fit\/customer\/1971002\/b8cb49709a1ef879e4a8ad9ac1ef070b.jpg","thumbnailUrl":"https:\/\/picture.rumah123.com\/r123-images\/250x160-fit\/customer\/1971002\/b8cb49709a1ef879e4a8ad9ac1ef070b.jpg","formatUrl":"https:\/\/picture.rumah123.com\/r123-images\/{width}x{height}-{scale}\/customer\/1971002\/b8cb49709a1ef879e4a8ad9ac1ef070b.jpg","order":9},{"mediaUrl":"https:\/\/picture.rumah123.com\/r123-images\/1080x720-fit\/customer\/1971002\/ac95d1e839d521c0b66dcd5a63f6083c.jpg","thumbnailUrl":"https:\/\/picture.rumah123.com\/r123-images\/250x160-fit\/customer\/1971002\/ac95d1e839d521c0b66dcd5a63f6083c.jpg","formatUrl":"https:\/\/picture.rumah123.com\/r123-images\/{width}x{height}-{scale}\/customer\/1971002\/ac95d1e839d521c0b66dcd5a63f6083c.jpg","order":10},{"mediaUrl":"https:\/\/picture.rumah123.com\/r123-images\/1080x720-fit\/customer\/1971002\/2ad8b092e92ffd815cd603d39b06b326.jpg","thumbnailUrl":"https:\/\/picture.rumah123.com\/r123-images\/250x160-fit\/customer\/1971002\/2ad8b092e92ffd815cd603d39b06b326.jpg","formatUrl":"https:\/\/picture.rumah123.com\/r123-images\/{width}x{height}-{scale}\/customer\/1971002\/2ad8b092e92ffd815cd603d39b06b326.jpg","order":11},{"mediaUrl":"https:\/\/picture.rumah123.com\/r123-images\/1080x720-fit\/customer\/1971002\/ab37a705842e4bdb2d72285abe070a57.jpg","thumbnailUrl":"https:\/\/picture.rumah123.com\/r123-images\/250x160-fit\/customer\/1971002\/ab37a705842e4bdb2d72285abe070a57.jpg","formatUrl":"https:\/\/picture.rumah123.com\/r123-images\/{width}x{height}-{scale}\/customer\/1971002\/ab37a705842e4bdb2d72285abe070a57.jpg","order":12}]},{"mediaType":"SITEPLAN","mediaInfo":[{"mediaUrl":"https:\/\/pic.rumah123.com\/r123\/1080x720-fit\/primary_property\/project\/1689\/1665975749_634cc5c5674f9floorplan_3195.jpg","thumbnailUrl":"https:\/\/pic.rumah123.com\/r123\/250x160-fit\/primary_property\/project\/1689\/1665975749_634cc5c5674f9floorplan_3195.jpg","formatUrl":"https:\/\/pic.rumah123.com\/r123\/{width}x{height}-{scale}\/primary_property\/project\/1689\/1665975749_634cc5c5674f9floorplan_3195.jpg","order":0}]}],"attributes":{"landSize":null,"buildingSize":{"name":"buildingSize","label":"Luas Bangunan","value":"186","formattedValue":"186 m\u00b2"},"bedrooms":{"name":"bedrooms","label":"Kamar","value":"3","formattedValue":"3"},"bathrooms":{"name":"bathrooms","label":"Kamar Mandi","value":"3","formattedValue":"3"},"carports":null},"propertyType":{"name":"propertyType","label":"Tipe Properti","value":"1","formattedValue":"Apartemen"},"price":{"minValue":7728000000,"maxValue":7728000000,"currencyType":360,"display":"Rp 7,72 Miliar","offer":7728000000,"unitType":0,"subDisplay":""},"location":{"uuid":"","level":0,"name":"","locationType":0,"text":""},"subtitle":"","url":"\/perumahan-baru\/properti\/jakarta-selatan\/the-elements\/tipe-a-b-c-d\/aps13195\/"}]}]},"url":"\/perumahan-baru\/properti\/jakarta-selatan\/the-elements\/nps1689\/"}]}}},"strapi":null,"baseUrl":"https:\/\/www.rumah123.com"}
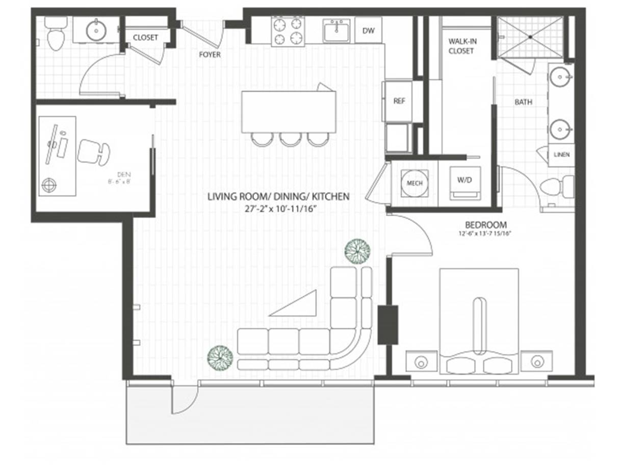
Jenis-Jenis Denah Apartemen Mewah 1 Kamar
Kita semua tahu kalau apartemen adalah hunian vertikal yang terbagi ke dalam beberapa ruangan berbeda tanpa partisi.
Agar lebih mengetahui berapa kamar tidur di dalamnya atau seberapa luas ruang tengahnya, kita bisa melihat denah dari apartemen tersebut.
Hal ini tak hanya berlaku pada apartemen biasa, melainkan juga pada apartemen yang mewah.
Di bawah ini terdapat beberapa macam denah apartemen mewah 1 kamar sesuai dengan jenisnya.
1. Denah Penthouse Mewah 1 Kamar
Foto: Two Light Luxury Apartments
Penthouse adalah apartemen mewah yang terletak di lantai paling atas dari sebuah gedung.
Apartemen ini menyajikan pemandangan dan lanskap yang indah.
Selain itu, balkon dan rooftop deck yang mewah adalah fitur yang sering ditemui di apartemen penthouse.
Meskipun berukuran besar, beberapa penthouse juga hanya memiliki satu kamar tidur, seperti yang terlihat pada contoh denah apartemen mewah 1 kamar di atas.
2. Denah Apartemen High Rise Mewah 1 Kamar
Foto: Klaska Residence
Sering ditemui di tengah metropolitan atau kota-kota padat penduduk, apartemen high rise merupakan sebuah bangunan menjulang dengan tinggi mencapai 23–150 meter.
Di Indonesia sendiri, terdapat beberapa apartemen high rise yang diisi dengan satu kamar tidur, salah satunya adalah Klaska Residence.
{"attributes":{"type":"udp","pdp_id":["nps1873"],"custom_title":"Rekomendasi Apartemen Mewah Dari Kita Untuk Anda"},"pdp":{"data":{"GetPropertiesByOriginID":{"properties":[{"uuid":"81af5e14-b0bd-4009-9c79-008d284ff517","agent":{"organization":{"uuid":"375c5096-65af-459d-9acc-d55cb2dd2ab8","name":"Sinar Mas Land","medias":[{"mediaType":"REGULAR","mediaInfo":[{"mediaUrl":"https:\/\/pic.rumah123.com\/r123\/250x250-fit\/developer\/logo\/developer-logo-sinar-mas-land-01-1600160450.jpg","thumbnailUrl":"https:\/\/pic.rumah123.com\/r123\/250x160-fit\/developer\/logo\/developer-logo-sinar-mas-land-01-1600160450.jpg","formatUrl":"https:\/\/pic.rumah123.com\/r123\/{width}x{height}-{scale}\/developer\/logo\/developer-logo-sinar-mas-land-01-1600160450.jpg","order":0}]}],"contacts":[{"contactType":1,"type":"EMAIL","value":"evergreen@99.co"},{"contactType":3,"type":"WHATSAPP","value":"+6281952984752"},{"contactType":5,"type":"WEBSITE","value":"http:\/\/www.klaskaresidence.com\/klaska-frontend\/"},{"contactType":2,"type":"PHONE_NUMBER","value":"+6281952984752"}],"url":"\/properti-baru\/developer\/sinar-mas-land\/1142\/"}},"location":{"uuid":"f79b86ea-235f-4a35-b8fb-490d813236f7","level":0,"name":"Wonokromo","locationType":0,"text":"Wonokromo, Surabaya"},"originId":{"value":"nps1873","formattedValue":"nps1873"},"price":{"minValue":749034000,"maxValue":1229400000,"currencyType":360,"display":"Rp 749 Juta - 1,22 Miliar","offer":749034000,"unitType":0,"subDisplay":""},"title":"Klaska Residence","medias":[{"mediaType":"SITEPLAN","mediaInfo":[{"mediaUrl":"https:\/\/pic.rumah123.com\/r123\/1080x720-fit\/primary_property\/project\/1873\/1600679271_siteplan_1873.png","thumbnailUrl":"https:\/\/pic.rumah123.com\/r123\/250x160-fit\/primary_property\/project\/1873\/1600679271_siteplan_1873.png","formatUrl":"https:\/\/pic.rumah123.com\/r123\/{width}x{height}-{scale}\/primary_property\/project\/1873\/1600679271_siteplan_1873.png","order":0}]},{"mediaType":"YOUTUBE","mediaInfo":[{"mediaUrl":"https:\/\/www.youtube.com\/watch?v=dUaPg9wKmyI","thumbnailUrl":"https:\/\/www.youtube.com\/watch?v=dUaPg9wKmyI","formatUrl":"https:\/\/www.youtube.com\/watch?v=dUaPg9wKmyI","order":0}]},{"mediaType":"FACILITY","mediaInfo":[{"mediaUrl":"https:\/\/pic.rumah123.com\/r123\/1080x720-fit\/","thumbnailUrl":"https:\/\/pic.rumah123.com\/r123\/250x160-fit\/","formatUrl":"https:\/\/pic.rumah123.com\/r123\/{width}x{height}-{scale}\/","order":1},{"mediaUrl":"https:\/\/pic.rumah123.com\/r123\/1080x720-fit\/","thumbnailUrl":"https:\/\/pic.rumah123.com\/r123\/250x160-fit\/","formatUrl":"https:\/\/pic.rumah123.com\/r123\/{width}x{height}-{scale}\/","order":2},{"mediaUrl":"https:\/\/pic.rumah123.com\/r123\/1080x720-fit\/","thumbnailUrl":"https:\/\/pic.rumah123.com\/r123\/250x160-fit\/","formatUrl":"https:\/\/pic.rumah123.com\/r123\/{width}x{height}-{scale}\/","order":3},{"mediaUrl":"https:\/\/pic.rumah123.com\/r123\/1080x720-fit\/","thumbnailUrl":"https:\/\/pic.rumah123.com\/r123\/250x160-fit\/","formatUrl":"https:\/\/pic.rumah123.com\/r123\/{width}x{height}-{scale}\/","order":4},{"mediaUrl":"https:\/\/pic.rumah123.com\/r123\/1080x720-fit\/","thumbnailUrl":"https:\/\/pic.rumah123.com\/r123\/250x160-fit\/","formatUrl":"https:\/\/pic.rumah123.com\/r123\/{width}x{height}-{scale}\/","order":5},{"mediaUrl":"https:\/\/pic.rumah123.com\/r123\/1080x720-fit\/","thumbnailUrl":"https:\/\/pic.rumah123.com\/r123\/250x160-fit\/","formatUrl":"https:\/\/pic.rumah123.com\/r123\/{width}x{height}-{scale}\/","order":6},{"mediaUrl":"https:\/\/pic.rumah123.com\/r123\/1080x720-fit\/","thumbnailUrl":"https:\/\/pic.rumah123.com\/r123\/250x160-fit\/","formatUrl":"https:\/\/pic.rumah123.com\/r123\/{width}x{height}-{scale}\/","order":7},{"mediaUrl":"https:\/\/pic.rumah123.com\/r123\/1080x720-fit\/","thumbnailUrl":"https:\/\/pic.rumah123.com\/r123\/250x160-fit\/","formatUrl":"https:\/\/pic.rumah123.com\/r123\/{width}x{height}-{scale}\/","order":8},{"mediaUrl":"https:\/\/pic.rumah123.com\/r123\/1080x720-fit\/","thumbnailUrl":"https:\/\/pic.rumah123.com\/r123\/250x160-fit\/","formatUrl":"https:\/\/pic.rumah123.com\/r123\/{width}x{height}-{scale}\/","order":9}]},{"mediaType":"BACKGROUND","mediaInfo":[{"mediaUrl":"https:\/\/pic.rumah123.com\/r123\/1080x720-fit\/primary_property\/project\/1873\/1661496821_63086df5912e0ads_images_1873.png","thumbnailUrl":"https:\/\/pic.rumah123.com\/r123\/250x160-fit\/primary_property\/project\/1873\/1661496821_63086df5912e0ads_images_1873.png","formatUrl":"https:\/\/pic.rumah123.com\/r123\/{width}x{height}-{scale}\/primary_property\/project\/1873\/1661496821_63086df5912e0ads_images_1873.png","order":0},{"mediaUrl":"https:\/\/pic.rumah123.com\/r123\/1080x720-fit\/primary_property\/project\/1873\/1601902324_5f7b16f425579ads_images_1873.png","thumbnailUrl":"https:\/\/pic.rumah123.com\/r123\/250x160-fit\/primary_property\/project\/1873\/1601902324_5f7b16f425579ads_images_1873.png","formatUrl":"https:\/\/pic.rumah123.com\/r123\/{width}x{height}-{scale}\/primary_property\/project\/1873\/1601902324_5f7b16f425579ads_images_1873.png","order":1},{"mediaUrl":"https:\/\/pic.rumah123.com\/r123\/1080x720-fit\/primary_property\/project\/1873\/1644464887_62048af7d0811ads_images_1873.jpg","thumbnailUrl":"https:\/\/pic.rumah123.com\/r123\/250x160-fit\/primary_property\/project\/1873\/1644464887_62048af7d0811ads_images_1873.jpg","formatUrl":"https:\/\/pic.rumah123.com\/r123\/{width}x{height}-{scale}\/primary_property\/project\/1873\/1644464887_62048af7d0811ads_images_1873.jpg","order":2}]},{"mediaType":"LOGO","mediaInfo":[{"mediaUrl":"https:\/\/picture.rumah123.com\/original\/r123\/primary_property\/project\/1873\/1597299157_5f34d9d5970ceads_logo_1873.jpg","thumbnailUrl":"https:\/\/picture.rumah123.com\/original\/r123\/primary_property\/project\/1873\/1597299157_5f34d9d5970ceads_logo_1873.jpg","formatUrl":"https:\/\/picture.rumah123.com\/original\/r123\/primary_property\/project\/1873\/1597299157_5f34d9d5970ceads_logo_1873.jpg","order":0}]},{"mediaType":"COVER","mediaInfo":[{"mediaUrl":"https:\/\/pic.rumah123.com\/r123\/1080x720-fit\/primary_property\/project\/1873\/1661496821_63086df5912e0ads_images_1873.png","thumbnailUrl":"https:\/\/pic.rumah123.com\/r123\/250x160-fit\/primary_property\/project\/1873\/1661496821_63086df5912e0ads_images_1873.png","formatUrl":"https:\/\/pic.rumah123.com\/r123\/{width}x{height}-{scale}\/primary_property\/project\/1873\/1661496821_63086df5912e0ads_images_1873.png","order":0}]}],"primaryProject":{"subUnits":[{"name":"TOWER AZURE","properties":[{"title":"Superior +","description":"[\"Lantai unit : HT 60x60\",\"Sanitary : American Standart\\\/setara\",\"Listrik : 1.300- 3500 watt\"]","uuid":"a38c22db-93ea-46fd-bcca-242ec5a0242a","medias":[{"mediaType":"COVER","mediaInfo":[{"mediaUrl":"https:\/\/pic.rumah123.com\/r123\/1080x720-fit\/primary_property\/project\/1873\/1681187161_16811871616434e159aeb3cads_images_3508.jpg","thumbnailUrl":"https:\/\/pic.rumah123.com\/r123\/250x160-fit\/primary_property\/project\/1873\/1681187161_16811871616434e159aeb3cads_images_3508.jpg","formatUrl":"https:\/\/pic.rumah123.com\/r123\/{width}x{height}-{scale}\/primary_property\/project\/1873\/1681187161_16811871616434e159aeb3cads_images_3508.jpg","order":0}]},{"mediaType":"REGULAR","mediaInfo":[{"mediaUrl":"https:\/\/pic.rumah123.com\/r123\/1080x720-fit\/primary_property\/project\/1873\/1673507183_167350718363bfb16f8b3f7ads_images_3508.jpg","thumbnailUrl":"https:\/\/pic.rumah123.com\/r123\/250x160-fit\/primary_property\/project\/1873\/1673507183_167350718363bfb16f8b3f7ads_images_3508.jpg","formatUrl":"https:\/\/pic.rumah123.com\/r123\/{width}x{height}-{scale}\/primary_property\/project\/1873\/1673507183_167350718363bfb16f8b3f7ads_images_3508.jpg","order":1},{"mediaUrl":"https:\/\/pic.rumah123.com\/r123\/1080x720-fit\/primary_property\/project\/1873\/1673507184_167350718463bfb1700cfdbads_images_3508.jpg","thumbnailUrl":"https:\/\/pic.rumah123.com\/r123\/250x160-fit\/primary_property\/project\/1873\/1673507184_167350718463bfb1700cfdbads_images_3508.jpg","formatUrl":"https:\/\/pic.rumah123.com\/r123\/{width}x{height}-{scale}\/primary_property\/project\/1873\/1673507184_167350718463bfb1700cfdbads_images_3508.jpg","order":2},{"mediaUrl":"https:\/\/pic.rumah123.com\/r123\/1080x720-fit\/primary_property\/project\/1873\/1681187161_16811871616434e15960324ads_images_3508.jpg","thumbnailUrl":"https:\/\/pic.rumah123.com\/r123\/250x160-fit\/primary_property\/project\/1873\/1681187161_16811871616434e15960324ads_images_3508.jpg","formatUrl":"https:\/\/pic.rumah123.com\/r123\/{width}x{height}-{scale}\/primary_property\/project\/1873\/1681187161_16811871616434e15960324ads_images_3508.jpg","order":3}]},{"mediaType":"SITEPLAN","mediaInfo":[{"mediaUrl":"https:\/\/pic.rumah123.com\/r123\/1080x720-fit\/primary_property\/project\/1873\/1673507215_63bfb18f9f64dfloorplan_3508.jpg","thumbnailUrl":"https:\/\/pic.rumah123.com\/r123\/250x160-fit\/primary_property\/project\/1873\/1673507215_63bfb18f9f64dfloorplan_3508.jpg","formatUrl":"https:\/\/pic.rumah123.com\/r123\/{width}x{height}-{scale}\/primary_property\/project\/1873\/1673507215_63bfb18f9f64dfloorplan_3508.jpg","order":0}]}],"attributes":{"landSize":null,"buildingSize":{"name":"buildingSize","label":"Luas Bangunan","value":"25.67","formattedValue":"25.67 m\u00b2"},"bedrooms":{"name":"bedrooms","label":"Kamar","value":"1","formattedValue":"1"},"bathrooms":{"name":"bathrooms","label":"Kamar Mandi","value":"1","formattedValue":"1"},"carports":null},"propertyType":{"name":"propertyType","label":"Tipe Properti","value":"1","formattedValue":"Apartemen"},"price":{"minValue":749034000,"maxValue":749034000,"currencyType":360,"display":"Rp 749 Juta","offer":749034000,"unitType":0,"subDisplay":""},"location":{"uuid":"","level":0,"name":"","locationType":0,"text":""},"subtitle":"","url":"\/perumahan-baru\/properti\/surabaya\/klaska-residence\/superior\/aps13508\/"},{"title":"Deluxe 1BR","description":"[\"Lantai unit : HT 60x60\",\"Sanitary : American Standart\\\/setara\",\"Listrik : 1.300- 3500 watt\"]","uuid":"f4f2e9ee-454c-4cb6-b3f6-297bde2c004a","medias":[{"mediaType":"COVER","mediaInfo":[{"mediaUrl":"https:\/\/pic.rumah123.com\/r123\/1080x720-fit\/primary_property\/project\/1873\/1681187195_16811871956434e17b1d156ads_images_3509.jpg","thumbnailUrl":"https:\/\/pic.rumah123.com\/r123\/250x160-fit\/primary_property\/project\/1873\/1681187195_16811871956434e17b1d156ads_images_3509.jpg","formatUrl":"https:\/\/pic.rumah123.com\/r123\/{width}x{height}-{scale}\/primary_property\/project\/1873\/1681187195_16811871956434e17b1d156ads_images_3509.jpg","order":0}]},{"mediaType":"REGULAR","mediaInfo":[{"mediaUrl":"https:\/\/pic.rumah123.com\/r123\/1080x720-fit\/primary_property\/project\/1873\/1657696128_165769612862ce6f80d578dads_images_3509.jpeg","thumbnailUrl":"https:\/\/pic.rumah123.com\/r123\/250x160-fit\/primary_property\/project\/1873\/1657696128_165769612862ce6f80d578dads_images_3509.jpeg","formatUrl":"https:\/\/pic.rumah123.com\/r123\/{width}x{height}-{scale}\/primary_property\/project\/1873\/1657696128_165769612862ce6f80d578dads_images_3509.jpeg","order":1},{"mediaUrl":"https:\/\/pic.rumah123.com\/r123\/1080x720-fit\/primary_property\/project\/1873\/1657696129_165769612962ce6f81a2203ads_images_3509.jpg","thumbnailUrl":"https:\/\/pic.rumah123.com\/r123\/250x160-fit\/primary_property\/project\/1873\/1657696129_165769612962ce6f81a2203ads_images_3509.jpg","formatUrl":"https:\/\/pic.rumah123.com\/r123\/{width}x{height}-{scale}\/primary_property\/project\/1873\/1657696129_165769612962ce6f81a2203ads_images_3509.jpg","order":2},{"mediaUrl":"https:\/\/pic.rumah123.com\/r123\/1080x720-fit\/primary_property\/project\/1873\/1681187195_16811871956434e17b7ab2cads_images_3509.jpg","thumbnailUrl":"https:\/\/pic.rumah123.com\/r123\/250x160-fit\/primary_property\/project\/1873\/1681187195_16811871956434e17b7ab2cads_images_3509.jpg","formatUrl":"https:\/\/pic.rumah123.com\/r123\/{width}x{height}-{scale}\/primary_property\/project\/1873\/1681187195_16811871956434e17b7ab2cads_images_3509.jpg","order":4},{"mediaUrl":"https:\/\/pic.rumah123.com\/r123\/1080x720-fit\/primary_property\/project\/1873\/1681187195_16811871956434e17b96383ads_images_3509.jpg","thumbnailUrl":"https:\/\/pic.rumah123.com\/r123\/250x160-fit\/primary_property\/project\/1873\/1681187195_16811871956434e17b96383ads_images_3509.jpg","formatUrl":"https:\/\/pic.rumah123.com\/r123\/{width}x{height}-{scale}\/primary_property\/project\/1873\/1681187195_16811871956434e17b96383ads_images_3509.jpg","order":5},{"mediaUrl":"https:\/\/pic.rumah123.com\/r123\/1080x720-fit\/primary_property\/project\/1873\/1681187195_16811871956434e17b96916ads_images_3509.jpg","thumbnailUrl":"https:\/\/pic.rumah123.com\/r123\/250x160-fit\/primary_property\/project\/1873\/1681187195_16811871956434e17b96916ads_images_3509.jpg","formatUrl":"https:\/\/pic.rumah123.com\/r123\/{width}x{height}-{scale}\/primary_property\/project\/1873\/1681187195_16811871956434e17b96916ads_images_3509.jpg","order":6}]},{"mediaType":"SITEPLAN","mediaInfo":[{"mediaUrl":"https:\/\/pic.rumah123.com\/r123\/1080x720-fit\/primary_property\/project\/1873\/1673507237_63bfb1a5cfce3floorplan_3509.jpg","thumbnailUrl":"https:\/\/pic.rumah123.com\/r123\/250x160-fit\/primary_property\/project\/1873\/1673507237_63bfb1a5cfce3floorplan_3509.jpg","formatUrl":"https:\/\/pic.rumah123.com\/r123\/{width}x{height}-{scale}\/primary_property\/project\/1873\/1673507237_63bfb1a5cfce3floorplan_3509.jpg","order":0}]}],"attributes":{"landSize":null,"buildingSize":{"name":"buildingSize","label":"Luas Bangunan","value":"35.06","formattedValue":"35.06 m\u00b2"},"bedrooms":{"name":"bedrooms","label":"Kamar","value":"1","formattedValue":"1"},"bathrooms":{"name":"bathrooms","label":"Kamar Mandi","value":"1","formattedValue":"1"},"carports":null},"propertyType":{"name":"propertyType","label":"Tipe Properti","value":"1","formattedValue":"Apartemen"},"price":{"minValue":810558000,"maxValue":810558000,"currencyType":360,"display":"Rp 810 Juta","offer":810558000,"unitType":0,"subDisplay":""},"location":{"uuid":"","level":0,"name":"","locationType":0,"text":""},"subtitle":"","url":"\/perumahan-baru\/properti\/surabaya\/klaska-residence\/deluxe-1br\/aps23509\/"},{"title":"Suite 2BR","description":"[\"Lantai unit : HT 60x60\",\"Sanitary : American Standart\\\/setara\",\"Listrik : 1.300- 3500 watt\"]","uuid":"bd568675-946b-4086-b834-f1c79134c311","medias":[{"mediaType":"REGULAR","mediaInfo":[{"mediaUrl":"https:\/\/pic.rumah123.com\/r123\/1080x720-fit\/primary_property\/project\/1873\/1657695917_165769591762ce6ead549a2ads_images_3510.png","thumbnailUrl":"https:\/\/pic.rumah123.com\/r123\/250x160-fit\/primary_property\/project\/1873\/1657695917_165769591762ce6ead549a2ads_images_3510.png","formatUrl":"https:\/\/pic.rumah123.com\/r123\/{width}x{height}-{scale}\/primary_property\/project\/1873\/1657695917_165769591762ce6ead549a2ads_images_3510.png","order":1},{"mediaUrl":"https:\/\/pic.rumah123.com\/r123\/1080x720-fit\/primary_property\/project\/1873\/1657695917_165769591762ce6eadd426dads_images_3510.png","thumbnailUrl":"https:\/\/pic.rumah123.com\/r123\/250x160-fit\/primary_property\/project\/1873\/1657695917_165769591762ce6eadd426dads_images_3510.png","formatUrl":"https:\/\/pic.rumah123.com\/r123\/{width}x{height}-{scale}\/primary_property\/project\/1873\/1657695917_165769591762ce6eadd426dads_images_3510.png","order":2},{"mediaUrl":"https:\/\/pic.rumah123.com\/r123\/1080x720-fit\/primary_property\/project\/1873\/1657695918_165769591862ce6eae404c7ads_images_3510.png","thumbnailUrl":"https:\/\/pic.rumah123.com\/r123\/250x160-fit\/primary_property\/project\/1873\/1657695918_165769591862ce6eae404c7ads_images_3510.png","formatUrl":"https:\/\/pic.rumah123.com\/r123\/{width}x{height}-{scale}\/primary_property\/project\/1873\/1657695918_165769591862ce6eae404c7ads_images_3510.png","order":3},{"mediaUrl":"https:\/\/pic.rumah123.com\/r123\/1080x720-fit\/primary_property\/project\/1873\/1657695918_165769591862ce6eae4b9f8ads_images_3510.png","thumbnailUrl":"https:\/\/pic.rumah123.com\/r123\/250x160-fit\/primary_property\/project\/1873\/1657695918_165769591862ce6eae4b9f8ads_images_3510.png","formatUrl":"https:\/\/pic.rumah123.com\/r123\/{width}x{height}-{scale}\/primary_property\/project\/1873\/1657695918_165769591862ce6eae4b9f8ads_images_3510.png","order":4},{"mediaUrl":"https:\/\/pic.rumah123.com\/r123\/1080x720-fit\/primary_property\/project\/1873\/1681187218_16811872186434e192b2fddads_images_3510.jpg","thumbnailUrl":"https:\/\/pic.rumah123.com\/r123\/250x160-fit\/primary_property\/project\/1873\/1681187218_16811872186434e192b2fddads_images_3510.jpg","formatUrl":"https:\/\/pic.rumah123.com\/r123\/{width}x{height}-{scale}\/primary_property\/project\/1873\/1681187218_16811872186434e192b2fddads_images_3510.jpg","order":5},{"mediaUrl":"https:\/\/pic.rumah123.com\/r123\/1080x720-fit\/primary_property\/project\/1873\/1681187219_16811872196434e19328a8bads_images_3510.jpg","thumbnailUrl":"https:\/\/pic.rumah123.com\/r123\/250x160-fit\/primary_property\/project\/1873\/1681187219_16811872196434e19328a8bads_images_3510.jpg","formatUrl":"https:\/\/pic.rumah123.com\/r123\/{width}x{height}-{scale}\/primary_property\/project\/1873\/1681187219_16811872196434e19328a8bads_images_3510.jpg","order":6}]},{"mediaType":"SITEPLAN","mediaInfo":[{"mediaUrl":"https:\/\/pic.rumah123.com\/r123\/1080x720-fit\/primary_property\/project\/1873\/1673507254_63bfb1b6130a7floorplan_3510.jpg","thumbnailUrl":"https:\/\/pic.rumah123.com\/r123\/250x160-fit\/primary_property\/project\/1873\/1673507254_63bfb1b6130a7floorplan_3510.jpg","formatUrl":"https:\/\/pic.rumah123.com\/r123\/{width}x{height}-{scale}\/primary_property\/project\/1873\/1673507254_63bfb1b6130a7floorplan_3510.jpg","order":0}]},{"mediaType":"COVER","mediaInfo":[{"mediaUrl":"https:\/\/pic.rumah123.com\/r123\/1080x720-fit\/primary_property\/project\/1873\/1681187219_16811872196434e1932617cads_images_3510.jpg","thumbnailUrl":"https:\/\/pic.rumah123.com\/r123\/250x160-fit\/primary_property\/project\/1873\/1681187219_16811872196434e1932617cads_images_3510.jpg","formatUrl":"https:\/\/pic.rumah123.com\/r123\/{width}x{height}-{scale}\/primary_property\/project\/1873\/1681187219_16811872196434e1932617cads_images_3510.jpg","order":0}]}],"attributes":{"landSize":null,"buildingSize":{"name":"buildingSize","label":"Luas Bangunan","value":"51.58","formattedValue":"51.58 m\u00b2"},"bedrooms":{"name":"bedrooms","label":"Kamar","value":"2","formattedValue":"2"},"bathrooms":{"name":"bathrooms","label":"Kamar Mandi","value":"1","formattedValue":"1"},"carports":null},"propertyType":{"name":"propertyType","label":"Tipe Properti","value":"1","formattedValue":"Apartemen"},"price":{"minValue":1229400000,"maxValue":1229400000,"currencyType":360,"display":"Rp 1,22 Miliar","offer":1229400000,"unitType":0,"subDisplay":""},"location":{"uuid":"","level":0,"name":"","locationType":0,"text":""},"subtitle":"","url":"\/perumahan-baru\/properti\/surabaya\/klaska-residence\/suite-2br\/aps33510\/"}]}]},"url":"\/perumahan-baru\/properti\/surabaya\/klaska-residence\/nps1873\/"}]}}},"strapi":null,"baseUrl":"https:\/\/www.rumah123.com"}
3. Denah Apartemen Low Rise Mewah 1 Kamar
Foto: Asatti Garden House
Kebalikan dari jenis apartemen sebelumnya, apartemen low rise memiliki struktur bangunan yang relatif lebih rendah, tetapi menawarkan lebih banyak privasi.
Salah satunya dapat ditemukan di Asatti Garden House, apartemen mewah 1 kamar di BSD City yang memiliki sistem pengamanan berlapis dan fasilitas mumpuni.
{"attributes":{"type":"udp","pdp_id":["nps1683"],"custom_title":"Detail Unit Asatti Garden House BSD City"},"pdp":{"data":{"GetPropertiesByOriginID":{"properties":[{"uuid":"9150dfbf-0188-41ec-a768-73fedf2132cd","agent":{"organization":{"uuid":"af95480f-28d7-41cf-baae-e5930612b7fa","name":"BSD City - Sinar Mas Land","medias":[{"mediaType":"REGULAR","mediaInfo":[{"mediaUrl":"https:\/\/pic.rumah123.com\/r123\/250x250-fit\/developer\/logo\/developer-developer-logo-sinar-mas-land-01-1589518075-1589702210.png","thumbnailUrl":"https:\/\/pic.rumah123.com\/r123\/250x160-fit\/developer\/logo\/developer-developer-logo-sinar-mas-land-01-1589518075-1589702210.png","formatUrl":"https:\/\/pic.rumah123.com\/r123\/{width}x{height}-{scale}\/developer\/logo\/developer-developer-logo-sinar-mas-land-01-1589518075-1589702210.png","order":0}]}],"contacts":[{"contactType":1,"type":"EMAIL","value":"evergreen@99.co"},{"contactType":1,"type":"EMAIL","value":"evergreen@99.co"},{"contactType":3,"type":"WHATSAPP","value":"+628118254123"},{"contactType":5,"type":"WEBSITE","value":"https:\/\/sinarmasland.com\/moveinquickly\/3"},{"contactType":2,"type":"PHONE_NUMBER","value":"+6281212666003"}],"url":"\/properti-baru\/developer\/bsd-city-sinar-mas-land\/1027\/"}},"location":{"uuid":"ef369418-6f17-47a4-bcb2-4895bae18869","level":0,"name":"Bsd","locationType":0,"text":"BSD, Tangerang"},"originId":{"value":"nps1683","formattedValue":"nps1683"},"price":{"minValue":692000000,"maxValue":2139413000,"currencyType":360,"display":"Rp 692 Juta - 2,13 Miliar","offer":692000000,"unitType":0,"subDisplay":""},"title":"Asatti Garden House, BSD City","medias":[{"mediaType":"LOGO","mediaInfo":[{"mediaUrl":"https:\/\/picture.rumah123.com\/original\/r123\/primary_property\/project\/1683\/1589701529_5ec0eb990ffd0ads_logo_1683.jpeg","thumbnailUrl":"https:\/\/picture.rumah123.com\/original\/r123\/primary_property\/project\/1683\/1589701529_5ec0eb990ffd0ads_logo_1683.jpeg","formatUrl":"https:\/\/picture.rumah123.com\/original\/r123\/primary_property\/project\/1683\/1589701529_5ec0eb990ffd0ads_logo_1683.jpeg","order":0}]},{"mediaType":"COVER","mediaInfo":[{"mediaUrl":"https:\/\/pic.rumah123.com\/r123\/1080x720-fit\/primary_property\/project\/1683\/1589250217_5eba08a900cb7ads_images_1683.jpg","thumbnailUrl":"https:\/\/pic.rumah123.com\/r123\/250x160-fit\/primary_property\/project\/1683\/1589250217_5eba08a900cb7ads_images_1683.jpg","formatUrl":"https:\/\/pic.rumah123.com\/r123\/{width}x{height}-{scale}\/primary_property\/project\/1683\/1589250217_5eba08a900cb7ads_images_1683.jpg","order":0}]},{"mediaType":"SITEPLAN","mediaInfo":[{"mediaUrl":"https:\/\/pic.rumah123.com\/r123\/1080x720-fit\/primary_property\/project\/1683\/1589707014_siteplan_1683.jpg","thumbnailUrl":"https:\/\/pic.rumah123.com\/r123\/250x160-fit\/primary_property\/project\/1683\/1589707014_siteplan_1683.jpg","formatUrl":"https:\/\/pic.rumah123.com\/r123\/{width}x{height}-{scale}\/primary_property\/project\/1683\/1589707014_siteplan_1683.jpg","order":0}]},{"mediaType":"FACILITY","mediaInfo":[{"mediaUrl":"https:\/\/pic.rumah123.com\/r123\/1080x720-fit\/primary_property\/project\/1683\/1589707156_facility_291683.jpg","thumbnailUrl":"https:\/\/pic.rumah123.com\/r123\/250x160-fit\/primary_property\/project\/1683\/1589707156_facility_291683.jpg","formatUrl":"https:\/\/pic.rumah123.com\/r123\/{width}x{height}-{scale}\/primary_property\/project\/1683\/1589707156_facility_291683.jpg","order":0},{"mediaUrl":"https:\/\/pic.rumah123.com\/r123\/1080x720-fit\/primary_property\/project\/1683\/1589707190_facility_11683.jpg","thumbnailUrl":"https:\/\/pic.rumah123.com\/r123\/250x160-fit\/primary_property\/project\/1683\/1589707190_facility_11683.jpg","formatUrl":"https:\/\/pic.rumah123.com\/r123\/{width}x{height}-{scale}\/primary_property\/project\/1683\/1589707190_facility_11683.jpg","order":1},{"mediaUrl":"https:\/\/pic.rumah123.com\/r123\/1080x720-fit\/primary_property\/project\/1683\/1589707211_facility_371683.jpg","thumbnailUrl":"https:\/\/pic.rumah123.com\/r123\/250x160-fit\/primary_property\/project\/1683\/1589707211_facility_371683.jpg","formatUrl":"https:\/\/pic.rumah123.com\/r123\/{width}x{height}-{scale}\/primary_property\/project\/1683\/1589707211_facility_371683.jpg","order":2},{"mediaUrl":"https:\/\/pic.rumah123.com\/r123\/1080x720-fit\/primary_property\/project\/1683\/1589707233_facility_281683.jpg","thumbnailUrl":"https:\/\/pic.rumah123.com\/r123\/250x160-fit\/primary_property\/project\/1683\/1589707233_facility_281683.jpg","formatUrl":"https:\/\/pic.rumah123.com\/r123\/{width}x{height}-{scale}\/primary_property\/project\/1683\/1589707233_facility_281683.jpg","order":3},{"mediaUrl":"https:\/\/pic.rumah123.com\/r123\/1080x720-fit\/primary_property\/project\/1683\/1589707263_facility_71683.jpg","thumbnailUrl":"https:\/\/pic.rumah123.com\/r123\/250x160-fit\/primary_property\/project\/1683\/1589707263_facility_71683.jpg","formatUrl":"https:\/\/pic.rumah123.com\/r123\/{width}x{height}-{scale}\/primary_property\/project\/1683\/1589707263_facility_71683.jpg","order":4},{"mediaUrl":"https:\/\/pic.rumah123.com\/r123\/1080x720-fit\/primary_property\/project\/1683\/1629954521_facility_111683.jpg","thumbnailUrl":"https:\/\/pic.rumah123.com\/r123\/250x160-fit\/primary_property\/project\/1683\/1629954521_facility_111683.jpg","formatUrl":"https:\/\/pic.rumah123.com\/r123\/{width}x{height}-{scale}\/primary_property\/project\/1683\/1629954521_facility_111683.jpg","order":5}]},{"mediaType":"BACKGROUND","mediaInfo":[{"mediaUrl":"https:\/\/pic.rumah123.com\/r123\/1080x720-fit\/primary_property\/project\/1683\/1589250217_5eba08a900cb7ads_images_1683.jpg","thumbnailUrl":"https:\/\/pic.rumah123.com\/r123\/250x160-fit\/primary_property\/project\/1683\/1589250217_5eba08a900cb7ads_images_1683.jpg","formatUrl":"https:\/\/pic.rumah123.com\/r123\/{width}x{height}-{scale}\/primary_property\/project\/1683\/1589250217_5eba08a900cb7ads_images_1683.jpg","order":0},{"mediaUrl":"https:\/\/pic.rumah123.com\/r123\/1080x720-fit\/primary_property\/project\/1683\/1589250211_5eba08a3aa74dads_images_1683.jpg","thumbnailUrl":"https:\/\/pic.rumah123.com\/r123\/250x160-fit\/primary_property\/project\/1683\/1589250211_5eba08a3aa74dads_images_1683.jpg","formatUrl":"https:\/\/pic.rumah123.com\/r123\/{width}x{height}-{scale}\/primary_property\/project\/1683\/1589250211_5eba08a3aa74dads_images_1683.jpg","order":1},{"mediaUrl":"https:\/\/pic.rumah123.com\/r123\/1080x720-fit\/primary_property\/project\/1683\/1589250217_5eba08a91e9eeads_images_1683.jpg","thumbnailUrl":"https:\/\/pic.rumah123.com\/r123\/250x160-fit\/primary_property\/project\/1683\/1589250217_5eba08a91e9eeads_images_1683.jpg","formatUrl":"https:\/\/pic.rumah123.com\/r123\/{width}x{height}-{scale}\/primary_property\/project\/1683\/1589250217_5eba08a91e9eeads_images_1683.jpg","order":3},{"mediaUrl":"https:\/\/pic.rumah123.com\/r123\/1080x720-fit\/primary_property\/project\/1683\/1629954448_61272190e2953ads_images_1683.jpg","thumbnailUrl":"https:\/\/pic.rumah123.com\/r123\/250x160-fit\/primary_property\/project\/1683\/1629954448_61272190e2953ads_images_1683.jpg","formatUrl":"https:\/\/pic.rumah123.com\/r123\/{width}x{height}-{scale}\/primary_property\/project\/1683\/1629954448_61272190e2953ads_images_1683.jpg","order":4},{"mediaUrl":"https:\/\/pic.rumah123.com\/r123\/1080x720-fit\/primary_property\/project\/1683\/1629954478_612721ae65df1ads_images_1683.jpg","thumbnailUrl":"https:\/\/pic.rumah123.com\/r123\/250x160-fit\/primary_property\/project\/1683\/1629954478_612721ae65df1ads_images_1683.jpg","formatUrl":"https:\/\/pic.rumah123.com\/r123\/{width}x{height}-{scale}\/primary_property\/project\/1683\/1629954478_612721ae65df1ads_images_1683.jpg","order":5}]}],"primaryProject":{"subUnits":[{"name":"Asatti","properties":[{"title":"Carnelian (2 BR)","description":"[\"Pondasi : Mini Pile & Beton Bertulang\",\"Dinding Luar\\\/antar unit & KM\\\/WC : Batu Bata, Plester, Aci, Finish Cat\",\"Dinding Dalam : Gypsum Board 9mm, Rangka Metal Furing, Finish Cat\",\"Atap : Rangka Atap Baja Ringan, Penutup Atap Metal, Dak Beton dengan Waterproofing system\",\"Plafond : \",\"A : R. Utama, R. Tidur : Rangka Plafond Metal Furing dengan Penutup Plafond Gypsum 9mm, Finish Cat\",\"B : KM\\\/WC : Rangka Plafond Metal Furing dengan Penutup Plafond GRC 6mm, Finish Cat\",\"Dinding : \",\"A. Dinding Luar : Finishing Cat Weathercoat\",\"B. Ruang Utama Ruang Tidur : Plester Aci Finish Cat. C. KM\\\/WC : Keramik dengan ketinggian sampai plafond\",\"Lantai : \",\"A. Ruang Utama : Homogenous Tile 60x60 cm\",\"B. Ruang Tidur : Vinyl motif Parquette. C. Balkon, Teras, KM : Ceramic Tile\",\"Jendela : Frame Aluminium dengan kaca\",\"Pintu : \",\"A. Pintu Ruang Utama : Kusen dan Pintu Solid Engineering Wood dengan Handle Stainles Steel ex Import\",\"B. Pintu Ruang Tidur, KM\\\/WC : Kusen Engineering Wood\",\"Pintu Engineering Door dengan Handle Stainles Steel ex Import\",\"Sanitair : \",\"A. KM\\\/WC : Wastafel dengan Kran & Cermin\",\"Monoblok dengan Shower Spray, Shower dengan Kran Panas Dingin\",\"B. Merk TOTO \\\/ American Standard\",\"Air : \",\"A. PDAM\",\"B. KM\\\/WC : disiapkan instalasi Air Panas\",\"Listrik : Ruang Utama & Ruang Tidur menggunakan lampu Downlight (Tanpa Bohlam)\"]","uuid":"7f8a3b65-03e2-4e5e-9f9f-f88fb49e84b3","medias":[{"mediaType":"SITEPLAN","mediaInfo":[{"mediaUrl":"https:\/\/pic.rumah123.com\/r123\/1080x720-fit\/primary_property\/project\/1683\/1589719334_5ec131263c403floorplan_3203.jpg","thumbnailUrl":"https:\/\/pic.rumah123.com\/r123\/250x160-fit\/primary_property\/project\/1683\/1589719334_5ec131263c403floorplan_3203.jpg","formatUrl":"https:\/\/pic.rumah123.com\/r123\/{width}x{height}-{scale}\/primary_property\/project\/1683\/1589719334_5ec131263c403floorplan_3203.jpg","order":0}]},{"mediaType":"YOUTUBE","mediaInfo":[{"mediaUrl":"https:\/\/youtube.com\/embed\/67Bqd_R5yvM","thumbnailUrl":"https:\/\/youtube.com\/embed\/67Bqd_R5yvM","formatUrl":"https:\/\/youtube.com\/embed\/67Bqd_R5yvM","order":0}]},{"mediaType":"VR360","mediaInfo":[{"mediaUrl":"https:\/\/my.matterport.com\/show\/?m=sTNHP47AAWV","thumbnailUrl":"https:\/\/pic.rumah123.com\/r123\/250x160-fit\/primary_property\/project\/1683\/1589719256_15897192565ec130d85f8f6ads_images_3203.jpg","formatUrl":"https:\/\/my.matterport.com\/show\/?m=sTNHP47AAWV","order":0}]},{"mediaType":"COVER","mediaInfo":[{"mediaUrl":"https:\/\/pic.rumah123.com\/r123\/1080x720-fit\/primary_property\/project\/1683\/1589719256_15897192565ec130d85f8f6ads_images_3203.jpg","thumbnailUrl":"https:\/\/pic.rumah123.com\/r123\/250x160-fit\/primary_property\/project\/1683\/1589719256_15897192565ec130d85f8f6ads_images_3203.jpg","formatUrl":"https:\/\/pic.rumah123.com\/r123\/{width}x{height}-{scale}\/primary_property\/project\/1683\/1589719256_15897192565ec130d85f8f6ads_images_3203.jpg","order":0}]},{"mediaType":"REGULAR","mediaInfo":[{"mediaUrl":"https:\/\/pic.rumah123.com\/r123\/1080x720-fit\/primary_property\/project\/1683\/1589719252_15897192525ec130d4a5035ads_images_1589719252.jpg","thumbnailUrl":"https:\/\/pic.rumah123.com\/r123\/250x160-fit\/primary_property\/project\/1683\/1589719252_15897192525ec130d4a5035ads_images_1589719252.jpg","formatUrl":"https:\/\/pic.rumah123.com\/r123\/{width}x{height}-{scale}\/primary_property\/project\/1683\/1589719252_15897192525ec130d4a5035ads_images_1589719252.jpg","order":0},{"mediaUrl":"https:\/\/pic.rumah123.com\/r123\/1080x720-fit\/primary_property\/project\/1683\/1589719256_15897192565ec130d8b1021ads_images_3203.jpg","thumbnailUrl":"https:\/\/pic.rumah123.com\/r123\/250x160-fit\/primary_property\/project\/1683\/1589719256_15897192565ec130d8b1021ads_images_3203.jpg","formatUrl":"https:\/\/pic.rumah123.com\/r123\/{width}x{height}-{scale}\/primary_property\/project\/1683\/1589719256_15897192565ec130d8b1021ads_images_3203.jpg","order":2}]}],"attributes":{"landSize":null,"buildingSize":{"name":"buildingSize","label":"Luas Bangunan","value":"50.49","formattedValue":"50.49 m\u00b2"},"bedrooms":{"name":"bedrooms","label":"Kamar","value":"2","formattedValue":"2"},"bathrooms":{"name":"bathrooms","label":"Kamar Mandi","value":"1","formattedValue":"1"},"carports":null},"propertyType":{"name":"propertyType","label":"Tipe Properti","value":"1","formattedValue":"Apartemen"},"price":{"minValue":1016458000,"maxValue":1016458000,"currencyType":360,"display":"Rp 1,01 Miliar","offer":1016458000,"unitType":0,"subDisplay":""},"location":{"uuid":"","level":0,"name":"","locationType":0,"text":""},"subtitle":"","url":"\/perumahan-baru\/properti\/tangerang\/asatti-garden-house-bsd-city\/carnelian-2-br\/aps03203\/"},{"title":"Agate (3 BR)","description":"[\"Pondasi : Mini Pile & Beton Bertulang\",\"Dinding Luar\\\/antar unit & KM\\\/WC : Batu Bata, Plester, Aci, Finish Cat\",\"Dinding Dalam : Gypsum Board 9mm, Rangka Metal Furing, Finish Cat\",\"Atap : Rangka Atap Baja Ringan, Penutup Atap Metal, Dak Beton dengan Waterproofing system\",\"Plafond : \",\"A : R. Utama, R. Tidur : Rangka Plafond Metal Furing dengan Penutup Plafond Gypsum 9mm, Finish Cat\",\"B : KM\\\/WC : Rangka Plafond Metal Furing dengan Penutup Plafond GRC 6mm, Finish Cat\",\"Dinding : \",\"A. Dinding Luar : Finishing Cat Weathercoat\",\"B. Ruang Utama Ruang Tidur : Plester Aci Finish Cat. C. KM\\\/WC : Keramik dengan ketinggian sampai plafond\",\"Lantai : \",\"A. Ruang Utama : Homogenous Tile 60x60 cm\",\"B. Ruang Tidur : Vinyl motif Parquette. C. Balkon, Teras, KM : Ceramic Tile\",\"Jendela : Frame Aluminium dengan kaca\",\"Pintu : \",\"A. Pintu Ruang Utama : Kusen dan Pintu Solid Engineering Wood dengan Handle Stainles Steel ex Import\",\"B. Pintu Ruang Tidur, KM\\\/WC : Kusen Engineering Wood\",\"Pintu Engineering Door dengan Handle Stainles Steel ex Import\",\"Sanitair : \",\"A. KM\\\/WC : Wastafel dengan Kran & Cermin\",\"Monoblok dengan Shower Spray, Shower dengan Kran Panas Dingin\",\"B. Merk TOTO \\\/ American Standard\",\"Air : \",\"A. PDAM\",\"B. KM\\\/WC : disiapkan instalasi Air Panas\",\"Listrik : Ruang Utama & Ruang Tidur menggunakan lampu Downlight (Tanpa Bohlam)\"]","uuid":"c0631b34-9f98-4897-91d1-c47bb9d07b00","medias":[{"mediaType":"COVER","mediaInfo":[{"mediaUrl":"https:\/\/pic.rumah123.com\/r123\/1080x720-fit\/primary_property\/project\/1683\/1589719791_15897197915ec132efa14cfads_images_3205.jpg","thumbnailUrl":"https:\/\/pic.rumah123.com\/r123\/250x160-fit\/primary_property\/project\/1683\/1589719791_15897197915ec132efa14cfads_images_3205.jpg","formatUrl":"https:\/\/pic.rumah123.com\/r123\/{width}x{height}-{scale}\/primary_property\/project\/1683\/1589719791_15897197915ec132efa14cfads_images_3205.jpg","order":0}]},{"mediaType":"REGULAR","mediaInfo":[{"mediaUrl":"https:\/\/pic.rumah123.com\/r123\/1080x720-fit\/primary_property\/project\/1683\/1589719787_15897197875ec132ebcb979ads_images_1589719787.jpg","thumbnailUrl":"https:\/\/pic.rumah123.com\/r123\/250x160-fit\/primary_property\/project\/1683\/1589719787_15897197875ec132ebcb979ads_images_1589719787.jpg","formatUrl":"https:\/\/pic.rumah123.com\/r123\/{width}x{height}-{scale}\/primary_property\/project\/1683\/1589719787_15897197875ec132ebcb979ads_images_1589719787.jpg","order":0},{"mediaUrl":"https:\/\/pic.rumah123.com\/r123\/1080x720-fit\/primary_property\/project\/1683\/1589719791_15897197915ec132efb9485ads_images_3205.jpg","thumbnailUrl":"https:\/\/pic.rumah123.com\/r123\/250x160-fit\/primary_property\/project\/1683\/1589719791_15897197915ec132efb9485ads_images_3205.jpg","formatUrl":"https:\/\/pic.rumah123.com\/r123\/{width}x{height}-{scale}\/primary_property\/project\/1683\/1589719791_15897197915ec132efb9485ads_images_3205.jpg","order":2}]},{"mediaType":"SITEPLAN","mediaInfo":[{"mediaUrl":"https:\/\/pic.rumah123.com\/r123\/1080x720-fit\/primary_property\/project\/1683\/1589719827_5ec1331381001floorplan_3205.jpg","thumbnailUrl":"https:\/\/pic.rumah123.com\/r123\/250x160-fit\/primary_property\/project\/1683\/1589719827_5ec1331381001floorplan_3205.jpg","formatUrl":"https:\/\/pic.rumah123.com\/r123\/{width}x{height}-{scale}\/primary_property\/project\/1683\/1589719827_5ec1331381001floorplan_3205.jpg","order":0}]}],"attributes":{"landSize":null,"buildingSize":{"name":"buildingSize","label":"Luas Bangunan","value":"60.86","formattedValue":"60.86 m\u00b2"},"bedrooms":{"name":"bedrooms","label":"Kamar","value":"3","formattedValue":"3"},"bathrooms":{"name":"bathrooms","label":"Kamar Mandi","value":"2","formattedValue":"2"},"carports":null},"propertyType":{"name":"propertyType","label":"Tipe Properti","value":"1","formattedValue":"Apartemen"},"price":{"minValue":1211846000,"maxValue":1211846000,"currencyType":360,"display":"Rp 1,21 Miliar","offer":1211846000,"unitType":0,"subDisplay":""},"location":{"uuid":"","level":0,"name":"","locationType":0,"text":""},"subtitle":"","url":"\/perumahan-baru\/properti\/tangerang\/asatti-garden-house-bsd-city\/agate-3-br\/aps03205\/"},{"title":"Agate loft (3 BR)","description":"[\"Pondasi : Mini Pile & Beton Bertulang\",\"Dinding Luar\\\/antar unit & KM\\\/WC : Batu Bata, Plester, Aci, Finish Cat\",\"Dinding Dalam : Gypsum Board 9mm, Rangka Metal Furing, Finish Cat\",\"Atap : Rangka Atap Baja Ringan, Penutup Atap Metal, Dak Beton dengan Waterproofing system\",\"Plafond : \",\"A : R. Utama, R. Tidur : Rangka Plafond Metal Furing dengan Penutup Plafond Gypsum 9mm, Finish Cat\",\"B : KM\\\/WC : Rangka Plafond Metal Furing dengan Penutup Plafond GRC 6mm, Finish Cat\",\"Dinding : \",\"A. Dinding Luar : Finishing Cat Weathercoat\",\"B. Ruang Utama Ruang Tidur : Plester Aci Finish Cat. C. KM\\\/WC : Keramik dengan ketinggian sampai plafond\",\"Lantai : \",\"A. Ruang Utama : Homogenous Tile 60x60 cm\",\"B. Ruang Tidur : Vinyl motif Parquette. C. Balkon, Teras, KM : Ceramic Tile\",\"Jendela : Frame Aluminium dengan kaca\",\"Pintu : \",\"A. Pintu Ruang Utama : Kusen dan Pintu Solid Engineering Wood dengan Handle Stainles Steel ex Import\",\"B. Pintu Ruang Tidur, KM\\\/WC : Kusen Engineering Wood\",\"Pintu Engineering Door dengan Handle Stainles Steel ex Import\",\"Sanitair : \",\"A. KM\\\/WC : Wastafel dengan Kran & Cermin\",\"Monoblok dengan Shower Spray, Shower dengan Kran Panas Dingin\",\"B. Merk TOTO \\\/ American Standard\",\"Air : \",\"A. PDAM\",\"B. KM\\\/WC : disiapkan instalasi Air Panas\",\"Listrik : Ruang Utama & Ruang Tidur menggunakan lampu Downlight (Tanpa Bohlam)\"]","uuid":"1156dca0-6839-4f5c-a4ad-1f630e04f794","medias":[{"mediaType":"COVER","mediaInfo":[{"mediaUrl":"https:\/\/pic.rumah123.com\/r123\/1080x720-fit\/primary_property\/project\/1683\/1589720048_15897200485ec133f04f6c7ads_images_3206.jpg","thumbnailUrl":"https:\/\/pic.rumah123.com\/r123\/250x160-fit\/primary_property\/project\/1683\/1589720048_15897200485ec133f04f6c7ads_images_3206.jpg","formatUrl":"https:\/\/pic.rumah123.com\/r123\/{width}x{height}-{scale}\/primary_property\/project\/1683\/1589720048_15897200485ec133f04f6c7ads_images_3206.jpg","order":0}]},{"mediaType":"REGULAR","mediaInfo":[{"mediaUrl":"https:\/\/pic.rumah123.com\/r123\/1080x720-fit\/primary_property\/project\/1683\/1589720044_15897200445ec133ec85189ads_images_1589720044.jpg","thumbnailUrl":"https:\/\/pic.rumah123.com\/r123\/250x160-fit\/primary_property\/project\/1683\/1589720044_15897200445ec133ec85189ads_images_1589720044.jpg","formatUrl":"https:\/\/pic.rumah123.com\/r123\/{width}x{height}-{scale}\/primary_property\/project\/1683\/1589720044_15897200445ec133ec85189ads_images_1589720044.jpg","order":0},{"mediaUrl":"https:\/\/pic.rumah123.com\/r123\/1080x720-fit\/primary_property\/project\/1683\/1589720050_15897200505ec133f24160fads_images_3206.jpg","thumbnailUrl":"https:\/\/pic.rumah123.com\/r123\/250x160-fit\/primary_property\/project\/1683\/1589720050_15897200505ec133f24160fads_images_3206.jpg","formatUrl":"https:\/\/pic.rumah123.com\/r123\/{width}x{height}-{scale}\/primary_property\/project\/1683\/1589720050_15897200505ec133f24160fads_images_3206.jpg","order":2},{"mediaUrl":"https:\/\/pic.rumah123.com\/r123\/1080x720-fit\/primary_property\/project\/1683\/1589720050_15897200505ec133f259a5bads_images_3206.jpg","thumbnailUrl":"https:\/\/pic.rumah123.com\/r123\/250x160-fit\/primary_property\/project\/1683\/1589720050_15897200505ec133f259a5bads_images_3206.jpg","formatUrl":"https:\/\/pic.rumah123.com\/r123\/{width}x{height}-{scale}\/primary_property\/project\/1683\/1589720050_15897200505ec133f259a5bads_images_3206.jpg","order":3}]},{"mediaType":"SITEPLAN","mediaInfo":[{"mediaUrl":"https:\/\/pic.rumah123.com\/r123\/1080x720-fit\/primary_property\/project\/1683\/1589720052_5ec133f41c59bfloorplan_3206.jpg","thumbnailUrl":"https:\/\/pic.rumah123.com\/r123\/250x160-fit\/primary_property\/project\/1683\/1589720052_5ec133f41c59bfloorplan_3206.jpg","formatUrl":"https:\/\/pic.rumah123.com\/r123\/{width}x{height}-{scale}\/primary_property\/project\/1683\/1589720052_5ec133f41c59bfloorplan_3206.jpg","order":0}]}],"attributes":{"landSize":null,"buildingSize":{"name":"buildingSize","label":"Luas Bangunan","value":"106.27","formattedValue":"106.27 m\u00b2"},"bedrooms":{"name":"bedrooms","label":"Kamar","value":"3","formattedValue":"3"},"bathrooms":{"name":"bathrooms","label":"Kamar Mandi","value":"3","formattedValue":"3"},"carports":null},"propertyType":{"name":"propertyType","label":"Tipe Properti","value":"1","formattedValue":"Apartemen"},"price":{"minValue":2139413000,"maxValue":2139413000,"currencyType":360,"display":"Rp 2,13 Miliar","offer":2139413000,"unitType":0,"subDisplay":""},"location":{"uuid":"","level":0,"name":"","locationType":0,"text":""},"subtitle":"","url":"\/perumahan-baru\/properti\/tangerang\/asatti-garden-house-bsd-city\/agate-loft-3-br\/aps03206\/"},{"title":"Chalcedony (1BR)","description":"[\"Pondasi : Mini Pile & Beton Bertulang\",\"Dinding Luar\\\/antar unit & KM\\\/WC : Batu Bata, Plester, Aci, Finish Cat\",\"Dinding Dalam : Gypsum Board 9mm, Rangka Metal Furing, Finish Cat\",\"Atap : Rangka Atap Baja Ringan, Penutup Atap Metal, Dak Beton dengan Waterproofing system\",\"Plafond : \",\"A : R. Utama, R. Tidur : Rangka Plafond Metal Furing dengan Penutup Plafond Gypsum 9mm, Finish Cat\",\"B : KM\\\/WC : Rangka Plafond Metal Furing dengan Penutup Plafond GRC 6mm, Finish Cat\",\"Dinding : \",\"A. Dinding Luar : Finishing Cat Weathercoat\",\"B. Ruang Utama Ruang Tidur : Plester Aci Finish Cat. C. KM\\\/WC : Keramik dengan ketinggian sampai plafond\",\"Lantai : \",\"A. Ruang Utama : Homogenous Tile 60x60 cm\",\"B. Ruang Tidur : Vinyl motif Parquette. C. Balkon, Teras, KM : Ceramic Tile\",\"Jendela : Frame Aluminium dengan kaca\",\"Pintu : \",\"A. Pintu Ruang Utama : Kusen dan Pintu Solid Engineering Wood dengan Handle Stainles Steel ex Import\",\"B. Pintu Ruang Tidur, KM\\\/WC : Kusen Engineering Wood\",\"Pintu Engineering Door : dengan Handle Stainles Steel ex Import\",\"Sanitair : \",\"A. KM\\\/WC : Wastafel dengan Kran & Cermin\",\"Monoblok : dengan Shower Spray, Shower dengan Kran Panas Dingin\",\"B. Merk TOTO \\\/ American Standard\",\"Air : \",\"A. PDAM\",\"B. KM\\\/WC : disiapkan instalasi Air Panas\",\"Listrik : Ruang Utama & Ruang Tidur menggunakan lampu Downlight (Tanpa Bohlam)\"]","uuid":"f5ead12c-9f7a-4952-809a-51ce9dcec870","medias":[{"mediaType":"VR360","mediaInfo":[{"mediaUrl":"https:\/\/my.matterport.com\/show-mds?m=sTNHP47AAWV","thumbnailUrl":"https:\/\/pic.rumah123.com\/r123\/250x160-fit\/primary_property\/project\/1683\/1589707332_15897073325ec102446c787ads_images_3158.jpg","formatUrl":"https:\/\/my.matterport.com\/show-mds?m=sTNHP47AAWV","order":0}]},{"mediaType":"COVER","mediaInfo":[{"mediaUrl":"https:\/\/pic.rumah123.com\/r123\/1080x720-fit\/primary_property\/project\/1683\/1589707332_15897073325ec102446c787ads_images_3158.jpg","thumbnailUrl":"https:\/\/pic.rumah123.com\/r123\/250x160-fit\/primary_property\/project\/1683\/1589707332_15897073325ec102446c787ads_images_3158.jpg","formatUrl":"https:\/\/pic.rumah123.com\/r123\/{width}x{height}-{scale}\/primary_property\/project\/1683\/1589707332_15897073325ec102446c787ads_images_3158.jpg","order":0}]},{"mediaType":"REGULAR","mediaInfo":[{"mediaUrl":"https:\/\/pic.rumah123.com\/r123\/1080x720-fit\/primary_property\/project\/1683\/1589707328_15897073285ec102401dca3ads_images_3158.jpg","thumbnailUrl":"https:\/\/pic.rumah123.com\/r123\/250x160-fit\/primary_property\/project\/1683\/1589707328_15897073285ec102401dca3ads_images_3158.jpg","formatUrl":"https:\/\/pic.rumah123.com\/r123\/{width}x{height}-{scale}\/primary_property\/project\/1683\/1589707328_15897073285ec102401dca3ads_images_3158.jpg","order":0},{"mediaUrl":"https:\/\/pic.rumah123.com\/r123\/1080x720-fit\/primary_property\/project\/1683\/1589707331_15897073315ec10243e9732ads_images_3158.jpg","thumbnailUrl":"https:\/\/pic.rumah123.com\/r123\/250x160-fit\/primary_property\/project\/1683\/1589707331_15897073315ec10243e9732ads_images_3158.jpg","formatUrl":"https:\/\/pic.rumah123.com\/r123\/{width}x{height}-{scale}\/primary_property\/project\/1683\/1589707331_15897073315ec10243e9732ads_images_3158.jpg","order":1}]},{"mediaType":"SITEPLAN","mediaInfo":[{"mediaUrl":"https:\/\/pic.rumah123.com\/r123\/1080x720-fit\/primary_property\/project\/1683\/1589707342_5ec1024df1e98floorplan_3158.jpg","thumbnailUrl":"https:\/\/pic.rumah123.com\/r123\/250x160-fit\/primary_property\/project\/1683\/1589707342_5ec1024df1e98floorplan_3158.jpg","formatUrl":"https:\/\/pic.rumah123.com\/r123\/{width}x{height}-{scale}\/primary_property\/project\/1683\/1589707342_5ec1024df1e98floorplan_3158.jpg","order":0}]},{"mediaType":"YOUTUBE","mediaInfo":[{"mediaUrl":"https:\/\/youtube.com\/embed\/p3_PPMqVkYQ","thumbnailUrl":"https:\/\/youtube.com\/embed\/p3_PPMqVkYQ","formatUrl":"https:\/\/youtube.com\/embed\/p3_PPMqVkYQ","order":0}]}],"attributes":{"landSize":null,"buildingSize":{"name":"buildingSize","label":"Luas Bangunan","value":"35.6","formattedValue":"35.6 m\u00b2"},"bedrooms":{"name":"bedrooms","label":"Kamar","value":"1","formattedValue":"1"},"bathrooms":{"name":"bathrooms","label":"Kamar Mandi","value":"1","formattedValue":"1"},"carports":null},"propertyType":{"name":"propertyType","label":"Tipe Properti","value":"1","formattedValue":"Apartemen"},"price":{"minValue":692000000,"maxValue":692000000,"currencyType":360,"display":"Rp 692 Juta","offer":692000000,"unitType":0,"subDisplay":""},"location":{"uuid":"","level":0,"name":"","locationType":0,"text":""},"subtitle":"","url":"\/perumahan-baru\/properti\/tangerang\/asatti-garden-house-bsd-city\/chalcedony-1br\/aps13158\/"},{"title":"Aventurine (3 BR)","description":"[\"Pondasi : Mini Pile & Beton Bertulang\",\"Dinding Luar\\\/antar unit & KM\\\/WC : Batu Bata, Plester, Aci, Finish Cat\",\"Dinding Dalam : Gypsum Board 9mm, Rangka Metal Furing, Finish Cat\",\"Atap : Rangka Atap Baja Ringan, Penutup Atap Metal, Dak Beton dengan Waterproofing system\",\"Plafond : \",\"A : R. Utama, R. Tidur : Rangka Plafond Metal Furing dengan Penutup Plafond Gypsum 9mm, Finish Cat\",\"B : KM\\\/WC : Rangka Plafond Metal Furing dengan Penutup Plafond GRC 6mm, Finish Cat\",\"Dinding : \",\"A. Dinding Luar : Finishing Cat Weathercoat\",\"B. Ruang Utama Ruang Tidur : Plester Aci Finish Cat. C. KM\\\/WC : Keramik dengan ketinggian sampai plafond\",\"Lantai : \",\"A. Ruang Utama : Homogenous Tile 60x60 cm\",\"B. Ruang Tidur : Vinyl motif Parquette. C. Balkon, Teras, KM : Ceramic Tile\",\"Jendela : Frame Aluminium dengan kaca\",\"Pintu : \",\"A. Pintu Ruang Utama : Kusen dan Pintu Solid Engineering Wood dengan Handle Stainles Steel ex Import\",\"B. Pintu Ruang Tidur, KM\\\/WC : Kusen Engineering Wood\",\"Pintu Engineering Door : dengan Handle Stainles Steel ex Import\",\"Sanitair : \",\"A. KM\\\/WC : Wastafel dengan Kran & Cermin\",\"Monoblok : dengan Shower Spray, Shower dengan Kran Panas Dingin\",\"B. Merk TOTO \\\/ American Standard\",\"Air : \",\"A. PDAM\",\"B. KM\\\/WC : disiapkan instalasi Air Panas\",\"Listrik : Ruang Utama & Ruang Tidur menggunakan lampu Downlight (Tanpa Bohlam)\"]","uuid":"3481ad45-b42d-460b-98ce-73681ebb867d","medias":[{"mediaType":"COVER","mediaInfo":[{"mediaUrl":"https:\/\/pic.rumah123.com\/r123\/1080x720-fit\/primary_property\/project\/1683\/1589719634_15897196345ec132529dddfads_images_3204.jpg","thumbnailUrl":"https:\/\/pic.rumah123.com\/r123\/250x160-fit\/primary_property\/project\/1683\/1589719634_15897196345ec132529dddfads_images_3204.jpg","formatUrl":"https:\/\/pic.rumah123.com\/r123\/{width}x{height}-{scale}\/primary_property\/project\/1683\/1589719634_15897196345ec132529dddfads_images_3204.jpg","order":0}]},{"mediaType":"REGULAR","mediaInfo":[{"mediaUrl":"https:\/\/pic.rumah123.com\/r123\/1080x720-fit\/primary_property\/project\/1683\/1589719621_15897196215ec13245da7c2ads_images_1589719621.jpg","thumbnailUrl":"https:\/\/pic.rumah123.com\/r123\/250x160-fit\/primary_property\/project\/1683\/1589719621_15897196215ec13245da7c2ads_images_1589719621.jpg","formatUrl":"https:\/\/pic.rumah123.com\/r123\/{width}x{height}-{scale}\/primary_property\/project\/1683\/1589719621_15897196215ec13245da7c2ads_images_1589719621.jpg","order":0},{"mediaUrl":"https:\/\/pic.rumah123.com\/r123\/1080x720-fit\/primary_property\/project\/1683\/1589719634_15897196345ec13252d3463ads_images_3204.jpg","thumbnailUrl":"https:\/\/pic.rumah123.com\/r123\/250x160-fit\/primary_property\/project\/1683\/1589719634_15897196345ec13252d3463ads_images_3204.jpg","formatUrl":"https:\/\/pic.rumah123.com\/r123\/{width}x{height}-{scale}\/primary_property\/project\/1683\/1589719634_15897196345ec13252d3463ads_images_3204.jpg","order":2}]},{"mediaType":"SITEPLAN","mediaInfo":[{"mediaUrl":"https:\/\/pic.rumah123.com\/r123\/1080x720-fit\/primary_property\/project\/1683\/1589719635_5ec1325320651floorplan_3204.jpg","thumbnailUrl":"https:\/\/pic.rumah123.com\/r123\/250x160-fit\/primary_property\/project\/1683\/1589719635_5ec1325320651floorplan_3204.jpg","formatUrl":"https:\/\/pic.rumah123.com\/r123\/{width}x{height}-{scale}\/primary_property\/project\/1683\/1589719635_5ec1325320651floorplan_3204.jpg","order":0}]}],"attributes":{"landSize":null,"buildingSize":{"name":"buildingSize","label":"Luas Bangunan","value":"61.3","formattedValue":"61.3 m\u00b2"},"bedrooms":{"name":"bedrooms","label":"Kamar","value":"3","formattedValue":"3"},"bathrooms":{"name":"bathrooms","label":"Kamar Mandi","value":"2","formattedValue":"2"},"carports":null},"propertyType":{"name":"propertyType","label":"Tipe Properti","value":"1","formattedValue":"Apartemen"},"price":{"minValue":1200000000,"maxValue":1200000000,"currencyType":360,"display":"Rp 1,2 Miliar","offer":1200000000,"unitType":0,"subDisplay":""},"location":{"uuid":"","level":0,"name":"","locationType":0,"text":""},"subtitle":"","url":"\/perumahan-baru\/properti\/tangerang\/asatti-garden-house-bsd-city\/aventurine-3-br\/aps23204\/"}]}]},"url":"\/perumahan-baru\/properti\/tangerang\/asatti-garden-house-bsd-city\/nps1683\/"}]}}},"strapi":null,"baseUrl":"https:\/\/www.rumah123.com"}
4. Denah Apartemen Convertible Mewah 1 Kamar
Foto: Interior Design Ideas
Apartemen convertible adalah apartemen tipe studio yang cukup besar sehingga penghuni dapat memasang sekat untuk memisahkan kamar tidur dan ruang tengah.
Jika tertarik untuk tinggal di dalam hunian ini, pertimbangkan untuk memasang partisi apartemen studio yang cantik dan fungsional.
5. Denah Apartemen Loft Mewah 1 Kamar
Foto: The Ave
Apartemen loft adalah salah satu tipe apartemen yang dilengkapi dengan ruang tambahan berukuran setengah lantai.
Meski biasanya menawarkan denah minimalis, ada pula apartemen tipe loft yang memiliki denah mewah dengan fasilitas 1 kamar tidur.
6. Denah Apartemen SOHO Mewah 1 Kamar
Foto: Padina SOHO and Residence
Selanjutnya, ada apartemen SOHO yang melayani dua fungsi sekaligus, yaitu sebagai tempat tinggal dan kantor.
Kamu dapat menemukan hunian “hybrid” ini di Padina SOHO and Residence dan Roseville SOHO BSD.
Itulah tadi penjelasan mengenai jenis-jenis denah apartemen mewah 1 kamar beserta rekomendasinya.
Temukan juga jenis-jenis apartemen lainnya di situs Rumah123, seperti apartemen fully furnished hingga apartemen milenial.
Semoga ulasannya bermanfaat, ya.
Punya pertanyaan lain seputar apartemen?
Yuk, ngobrolin properti lewat Teras123!