Pilihan Denah Apartemen 3 Kamar, Super Nyaman!
Terakhir diperbarui 21 Juni 2024 · 4 min read · by Miyanti Rahman
Foto: Canva
Apartemen identik dengan penghuni yang masih single atau pasangan muda yang baru saja menikah.
Jenis apartemen 3 kamar sendiri bisa menjadi hunian ideal untuk keluarga dua atau tiga anak, jika memiliki sirkulasi dan tata ruang yang pas.
Lantas, bagaimana cara mengetahui sebuah apartemen ideal atau tidak untuk dihuni bersama keluarga tersayang?
Langkah awal dan paling mudah dilakukan, yaitu dengan cara mengintip peta kecil atau denahnya.
Denah menunjukkan bentuk ruang, letak kamar tidur, kamar mandi, kitchen and dining, serta sudut-sudut lainnya.
Selain itu, denah memperlihatkan susunan dan arus keluar-masuk pada sebuah ruang (sirkulasi).
Dimensi ukuran setiap ruang juga bisa diketahui dari denah. Jadi, Anda bisa mengetahui apakah ruang sebuah apartemen ideal atau tidak.
Bicara soal ruang ideal, kita bisa mengacu pada ketentuan yang ditetapkan oleh pemerintah, yaitu 9 m2 per orang.
Walaupun memang kenyataannya bisa berbeda-beda; ada yang lebih, ada pula yang kurang dari angka tersebut.
Nah kalau Anda bingung memilih apartemen 3 bedroom dengan sirkulasi dan tata ruangan yang pas, rumah123.com memiliki rekomendasinya.
Hunian vertikal di bawah memiliki denah apartemen 3 kamar super nyaman untuk Anda dan keluarga.
Aerium Residence @ Taman Permata Buana
Gambar di atas merupakan denah apartemen 3 kamar di Aerium Residence.
Dari denah tersebut diketahui unit apartemen berbentuk persegi panjang dengan dua kamar mandi di dalamnya.
Luas unit mencapai 144,75 m2 untuk 3 BR⎼B. Dapurnya terlihat luas dan tidak pengap.
Sementara itu, unit apartemen 3 BR⎼A memiliki luasnya 165.58 m2 dengan denah yang hampir serupa.
Aerium Residence dikembangkan oleh Sinarmas Land untuk Anda yang sedang mencari apartemen di Jakarta Barat.
Gallery West Residences
Gallery West Residences menjual apartemen 3 BR dengan luas 78,7 m2 di lantai 19 gedung.
Lokasinya sama dengan apartemen sebelumnya yaitu di Jakarta Barat, tepatnya di Jalan Panjang, Kebon Jeruk.
Dari pintu masuk unit apartemen, Anda akan langsung disambut oleh kitchen and dining, serta ruang fungsional yang cukup luas.
Di sampingnya ada living room yang bisa diisi oleh sofa panjang dan rak televisi. Ruang ini sangat nyaman untuk Anda yang hobi Netflix-an!
Kamar utamanya dilengkapi oleh bathroom dan toilet. Satu unit 3 BR di sini dibanderol di kisaran harga Rp3-4 miliar.
Meikarta
Kota modern Meikarta menawarkan apartemen 3 BR dengan luas 72,29 m2 dan 83,62 m2.
Berdasarkan denahnya, master bedroom dilengkapi oleh bathroom. Sedangkan dua kamar lainnya dilengkapi oleh meja kerja.
Kamar mandi lainnya terletak di dekat pintu masuk. Dapur, ruang makan, dan living room dirancang secara terpadu.
Tepat di samping ruangan terpadu, ada balkon untuk bersantai atau berjemur. Saty unit apartemen dibanderol harga Rp680 juta.
Meikarta adalah proyek yang dikembangkan oleh Mahkota Sentosa Utama. Hadir untuk memenuhi permintaan apartemen dijual di Bekasi.
Roseville SOHO & Suite
Roseville SOHO & Suite merupakan apartemen dijual di Serpong, Tangerang Selatan. Alamatnya di Sunburst Central Business District Lot 1.
Kalau dilihat dari denah apartemen 3 kamar tidur ini, unitnya berbentuk menyerupai persegi.
Master bedroom dan dua kamar lain saling berhadapan. Kamar mandi di ruang tidur utama lebih luas dari yang lain.
Pantry berada di dekat pintu masuk. Tak ada sekat antara ruang makan dan living room. Kedua ruang ini langsung menembus balkon.
Dengan begitu, Anda bisa lebih hemat energi lantaran angin datang dari balkon ke semua ruang. Anda tak perlu menyalakan AC.
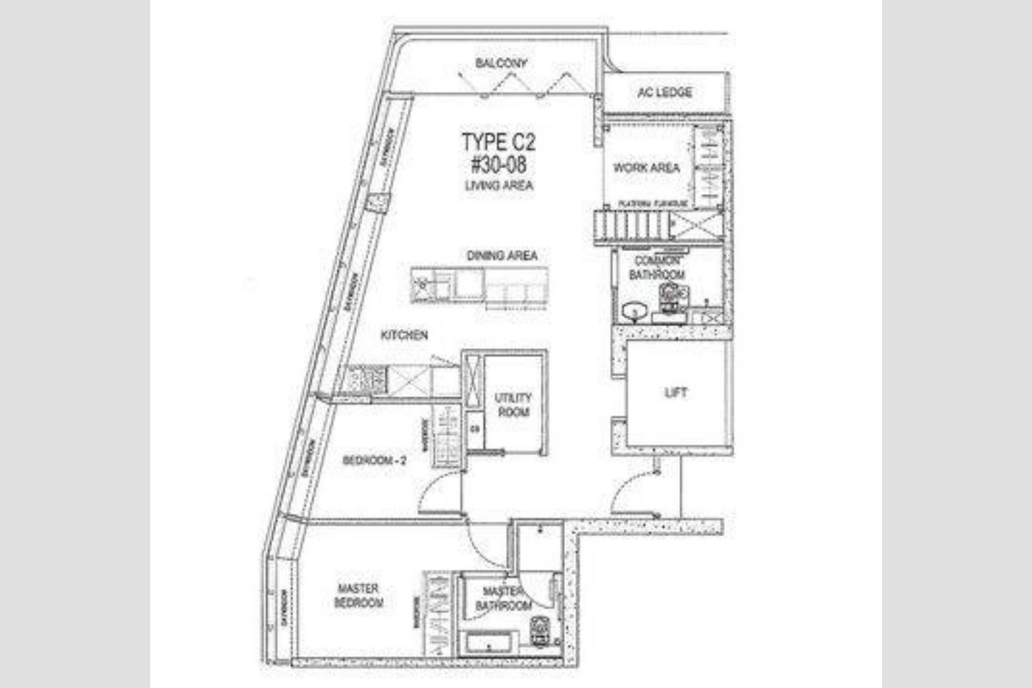
The Scotts Tower
Denah apartemen 3 kamar di The Scotts Tower hampir menyerupai bentuk geometri trapesium sekaligus jajar genjang.
The Scotts Tower sendiri merupakan apartemen dijual di Singapura yang tak boleh Anda lewatkan sebagai aset investasi.
Berdasarkan denah di atas, unit apartemen 3 BR The Scotts Tower spesial lantaran memiliki private lift dan area kerja khusus.
Sedangkan ruang terpadu kitchen, dining, dan living room serupa dengan apartemen-apartemen sebelumnya.
Langsung menembus balkon yang menyuguhkan city view super keren 38 Scotts Road, Singapura.
Wismaya Residence
Wismaya Residence menjual apartemen 3 BR dengan luas unit 66,76 m2. Denah apartemen 3 kamar ini berbentuk persegi.
Nuansanya sedikit berbeda dengan apartemen-apartemen sebelumnya. Meskipun luas unitnya kecil, ada dua balkon di dalamnya.
Satu balkon berada di master bedroom, sedangkan balkon yang lain tak jauh dari ruang terpadu living, kitchen and dining.
Unit apartemen 3 BR Wismaya Residence dibanderol dengan harga Rp1,1 miliaran.
Proyek hunian vertikal ini dikembangkan oleh Langgeng Land di sunrise area yang sedang berkembang pesat, apalagi kalau bukan Bekasi.
Itu dia rekomendasi hunian vertikal lengkap dengan denah apartemen tiga kamar tidurnya.
Semoga informasi ini bermanfaat, ya!
Author:
Miyanti Rahman








