
Foto desain perumahan mewah: abodo
Melihat desain perumahan mewah bisa menjadi inspirasi tersendiri sebelum Anda mulai merancang hunian.
Biasanya, memilih konsep untuk rumah sendiri memang merupakan hal yang gampang-gampang susah.
Jika tidak ada ide, bisa jadi desain rumah yang tercipta malah tidak sesuai dengan apa yang diimpikan.
Karena itu, Anda bisa melihat terlebih dulu desain rumah yang bagus, agar nantinya hunian yang dibangun bisa memberikan citra positif dan prestise.
Selain itu, rumah yang memiliki desain mewah juga cenderung mempertahankan nilai investasi yang tinggi atau bahkan meningkat.
Jadi, mari lihat satu per satu desain perumahan mewah di bawah ini!
Desain Perumahan Mewah Parkland Podomoro

Parkland Podomoro menghadirkan rumah untuk beragam tipe. Salah satu unit termewahnya adalah Valerian Catur.
Rumah 2 lantai ini menyuguhkan kemewahan karena perpaduan material batu alam, motif kayu, dan dinding berwarna abu-abu.
Dengan langit-langitnya yang tinggi, rumahnya juga terlihat semakin megah.
{"attributes":{"type":"udp","pdp_id":["nps3227"],"custom_title":"Lihat Lebih Detail Rumah Parkland Podomoro"},"pdp":{"data":{"GetPropertiesByOriginID":{"properties":[{"uuid":"d9d8de2b-a6c0-4aa6-9489-786ad6c90c7c","agent":{"organization":{"uuid":"d33c6916-4681-46ac-82ae-eecc73f3ad7e","name":"PT. Agung Podomoro Land, Tbk","medias":[{"mediaType":"REGULAR","mediaInfo":[{"mediaUrl":"https:\/\/pic.rumah123.com\/r123\/250x250-fit\/developer\/logo\/developer-index-1481083146.jpg","thumbnailUrl":"https:\/\/pic.rumah123.com\/r123\/250x160-fit\/developer\/logo\/developer-index-1481083146.jpg","formatUrl":"https:\/\/pic.rumah123.com\/r123\/{width}x{height}-{scale}\/developer\/logo\/developer-index-1481083146.jpg","order":0}]}],"contacts":[{"contactType":1,"type":"EMAIL","value":"evergreen@99.co"},{"contactType":3,"type":"WHATSAPP","value":"+6285941138764"},{"contactType":2,"type":"PHONE_NUMBER","value":"+6285941138764"}],"url":"\/properti-baru\/developer\/pt-agung-podomoro-land-tbk\/824\/"}},"location":{"uuid":"8eb7083e-63d2-4eca-9cbf-cf2c1aa0b5d3","level":0,"name":"Karawang Barat","locationType":0,"text":"Karawang Barat, Karawang"},"originId":{"value":"nps3227","formattedValue":"nps3227"},"price":{"minValue":1000000000,"maxValue":4900000000,"currencyType":360,"display":"Rp 1 Miliar - 4,9 Miliar","offer":1000000000,"unitType":0,"subDisplay":""},"title":"Parkland Podomoro","medias":[{"mediaType":"BACKGROUND","mediaInfo":[{"mediaUrl":"https:\/\/pic.rumah123.com\/r123\/1080x720-fit\/primary_property\/project\/3227\/1719213716_66791e94e502fads_images_3227.jpg","thumbnailUrl":"https:\/\/pic.rumah123.com\/r123\/250x160-fit\/primary_property\/project\/3227\/1719213716_66791e94e502fads_images_3227.jpg","formatUrl":"https:\/\/pic.rumah123.com\/r123\/{width}x{height}-{scale}\/primary_property\/project\/3227\/1719213716_66791e94e502fads_images_3227.jpg","order":0},{"mediaUrl":"https:\/\/picture.rumah123.com\/r123-images\/1080x720-fit\/customer\/543233\/2024-07-29-08-22-43-fa28615f-5624-4625-adbf-ed359aaaa6bd.jpg","thumbnailUrl":"https:\/\/picture.rumah123.com\/r123-images\/250x160-fit\/customer\/543233\/2024-07-29-08-22-43-fa28615f-5624-4625-adbf-ed359aaaa6bd.jpg","formatUrl":"https:\/\/picture.rumah123.com\/r123-images\/{width}x{height}-{scale}\/customer\/543233\/2024-07-29-08-22-43-fa28615f-5624-4625-adbf-ed359aaaa6bd.jpg","order":2},{"mediaUrl":"https:\/\/pic.rumah123.com\/r123\/1080x720-fit\/primary_property\/project\/3227\/1713520137_66223e09d1778ads_images_3227.jpg","thumbnailUrl":"https:\/\/pic.rumah123.com\/r123\/250x160-fit\/primary_property\/project\/3227\/1713520137_66223e09d1778ads_images_3227.jpg","formatUrl":"https:\/\/pic.rumah123.com\/r123\/{width}x{height}-{scale}\/primary_property\/project\/3227\/1713520137_66223e09d1778ads_images_3227.jpg","order":3},{"mediaUrl":"https:\/\/pic.rumah123.com\/r123\/1080x720-fit\/primary_property\/project\/3227\/1713520146_66223e127f22aads_images_3227.jpg","thumbnailUrl":"https:\/\/pic.rumah123.com\/r123\/250x160-fit\/primary_property\/project\/3227\/1713520146_66223e127f22aads_images_3227.jpg","formatUrl":"https:\/\/pic.rumah123.com\/r123\/{width}x{height}-{scale}\/primary_property\/project\/3227\/1713520146_66223e127f22aads_images_3227.jpg","order":4},{"mediaUrl":"https:\/\/pic.rumah123.com\/r123\/1080x720-fit\/primary_property\/project\/3227\/1713520152_66223e184d67aads_images_3227.jpg","thumbnailUrl":"https:\/\/pic.rumah123.com\/r123\/250x160-fit\/primary_property\/project\/3227\/1713520152_66223e184d67aads_images_3227.jpg","formatUrl":"https:\/\/pic.rumah123.com\/r123\/{width}x{height}-{scale}\/primary_property\/project\/3227\/1713520152_66223e184d67aads_images_3227.jpg","order":5},{"mediaUrl":"https:\/\/pic.rumah123.com\/r123\/1080x720-fit\/primary_property\/project\/3227\/1713520160_66223e2031863ads_images_3227.jpg","thumbnailUrl":"https:\/\/pic.rumah123.com\/r123\/250x160-fit\/primary_property\/project\/3227\/1713520160_66223e2031863ads_images_3227.jpg","formatUrl":"https:\/\/pic.rumah123.com\/r123\/{width}x{height}-{scale}\/primary_property\/project\/3227\/1713520160_66223e2031863ads_images_3227.jpg","order":6},{"mediaUrl":"https:\/\/pic.rumah123.com\/r123\/1080x720-fit\/primary_property\/project\/3227\/1713520167_66223e2765c6fads_images_3227.jpg","thumbnailUrl":"https:\/\/pic.rumah123.com\/r123\/250x160-fit\/primary_property\/project\/3227\/1713520167_66223e2765c6fads_images_3227.jpg","formatUrl":"https:\/\/pic.rumah123.com\/r123\/{width}x{height}-{scale}\/primary_property\/project\/3227\/1713520167_66223e2765c6fads_images_3227.jpg","order":7}]},{"mediaType":"LOGO","mediaInfo":[{"mediaUrl":"https:\/\/picture.rumah123.com\/original\/r123\/primary_property\/project\/3227\/1678683505_640ead716ace3ads_logo_3227.png","thumbnailUrl":"https:\/\/picture.rumah123.com\/original\/r123\/primary_property\/project\/3227\/1678683505_640ead716ace3ads_logo_3227.png","formatUrl":"https:\/\/picture.rumah123.com\/original\/r123\/primary_property\/project\/3227\/1678683505_640ead716ace3ads_logo_3227.png","order":0}]},{"mediaType":"COVER","mediaInfo":[{"mediaUrl":"https:\/\/pic.rumah123.com\/r123\/1080x720-fit\/primary_property\/project\/3227\/1719213716_66791e94e502fads_images_3227.jpg","thumbnailUrl":"https:\/\/pic.rumah123.com\/r123\/250x160-fit\/primary_property\/project\/3227\/1719213716_66791e94e502fads_images_3227.jpg","formatUrl":"https:\/\/pic.rumah123.com\/r123\/{width}x{height}-{scale}\/primary_property\/project\/3227\/1719213716_66791e94e502fads_images_3227.jpg","order":0}]},{"mediaType":"SITEPLAN","mediaInfo":[{"mediaUrl":"https:\/\/picture.rumah123.com\/r123-images\/1080x720-fit\/customer\/1899233\/3acac3c8b3a34859a0341142eb1da9ed.jpg","thumbnailUrl":"https:\/\/picture.rumah123.com\/r123-images\/250x160-fit\/customer\/1899233\/3acac3c8b3a34859a0341142eb1da9ed.jpg","formatUrl":"https:\/\/picture.rumah123.com\/r123-images\/{width}x{height}-{scale}\/customer\/1899233\/3acac3c8b3a34859a0341142eb1da9ed.jpg","order":0}]},{"mediaType":"YOUTUBE","mediaInfo":[{"mediaUrl":"https:\/\/www.youtube.com\/watch?v=TBBUlx3ImdA","thumbnailUrl":"https:\/\/www.youtube.com\/watch?v=TBBUlx3ImdA","formatUrl":"https:\/\/www.youtube.com\/watch?v=TBBUlx3ImdA","order":0}]},{"mediaType":"FACILITY","mediaInfo":[{"mediaUrl":"https:\/\/pic.rumah123.com\/r123\/1080x720-fit\/","thumbnailUrl":"https:\/\/pic.rumah123.com\/r123\/250x160-fit\/","formatUrl":"https:\/\/pic.rumah123.com\/r123\/{width}x{height}-{scale}\/","order":1},{"mediaUrl":"https:\/\/pic.rumah123.com\/r123\/1080x720-fit\/","thumbnailUrl":"https:\/\/pic.rumah123.com\/r123\/250x160-fit\/","formatUrl":"https:\/\/pic.rumah123.com\/r123\/{width}x{height}-{scale}\/","order":2},{"mediaUrl":"https:\/\/pic.rumah123.com\/r123\/1080x720-fit\/","thumbnailUrl":"https:\/\/pic.rumah123.com\/r123\/250x160-fit\/","formatUrl":"https:\/\/pic.rumah123.com\/r123\/{width}x{height}-{scale}\/","order":3},{"mediaUrl":"https:\/\/pic.rumah123.com\/r123\/1080x720-fit\/","thumbnailUrl":"https:\/\/pic.rumah123.com\/r123\/250x160-fit\/","formatUrl":"https:\/\/pic.rumah123.com\/r123\/{width}x{height}-{scale}\/","order":4},{"mediaUrl":"https:\/\/pic.rumah123.com\/r123\/1080x720-fit\/","thumbnailUrl":"https:\/\/pic.rumah123.com\/r123\/250x160-fit\/","formatUrl":"https:\/\/pic.rumah123.com\/r123\/{width}x{height}-{scale}\/","order":5},{"mediaUrl":"https:\/\/pic.rumah123.com\/r123\/1080x720-fit\/","thumbnailUrl":"https:\/\/pic.rumah123.com\/r123\/250x160-fit\/","formatUrl":"https:\/\/pic.rumah123.com\/r123\/{width}x{height}-{scale}\/","order":6},{"mediaUrl":"https:\/\/pic.rumah123.com\/r123\/1080x720-fit\/","thumbnailUrl":"https:\/\/pic.rumah123.com\/r123\/250x160-fit\/","formatUrl":"https:\/\/pic.rumah123.com\/r123\/{width}x{height}-{scale}\/","order":7},{"mediaUrl":"https:\/\/pic.rumah123.com\/r123\/1080x720-fit\/","thumbnailUrl":"https:\/\/pic.rumah123.com\/r123\/250x160-fit\/","formatUrl":"https:\/\/pic.rumah123.com\/r123\/{width}x{height}-{scale}\/","order":8},{"mediaUrl":"https:\/\/pic.rumah123.com\/r123\/1080x720-fit\/","thumbnailUrl":"https:\/\/pic.rumah123.com\/r123\/250x160-fit\/","formatUrl":"https:\/\/pic.rumah123.com\/r123\/{width}x{height}-{scale}\/","order":9},{"mediaUrl":"https:\/\/pic.rumah123.com\/r123\/1080x720-fit\/","thumbnailUrl":"https:\/\/pic.rumah123.com\/r123\/250x160-fit\/","formatUrl":"https:\/\/pic.rumah123.com\/r123\/{width}x{height}-{scale}\/","order":10}]}],"primaryProject":{"subUnits":[{"name":"UNIT FREE PPN 2026","properties":[{"title":"Viola","description":"[\"Pondasi & Struktur Atas\",\"Pondasi Bangunan & Kanopi : Tiang Pancang\",\"Pondasi Pagar Belakang : Batu Kali\",\"Pile Cap & Slof, Struktur Bangunan : Beton Bertulang\",\"Dinding\",\"Dinding Interior, Exterior : Bata Ringan\",\"Bathroom : Keramik\",\"Omamen Dinding Luar : Roster\",\"Plafond & Atap\",\"Plafond Interior & Bathroom : Gypsum Board\",\"Plafond Exterior & Bathroom : Calsiboard\",\"Rangka Plafond : Metal Hollow\",\"Rangka Atap : Baja Ringan\",\"Penutup Atap : Genteng Beton\",\"Listplang : GRC Board\",\"Lantai\",\"Carpark : Rabat Beton\",\"Teras : Keramik\",\"Living Room & Bedroom : Homogeneous Tile\",\"Bathroom : Keramik\",\"Pintu & Jendela\",\"Tipe Pintu : Engineering Door\",\"Pintu Utama : Solid Core\",\"Pintu Bedroom, Bathroom, Belakang : Hollow Core\",\"Pintu Courtyard : Alumunium Powder Coating\",\"Kaca Jendela : Clear\",\"Sanitary\",\"Kloset Wastafel, Shower, Jet Washer, Faucet, FD : Ex TOTO\",\"Vanity Mirror, Keran Mesin Cuci, Keran Kitchen Sink, Kitchen Sink : Tersedia\",\"Kitchen Table : Keramik\",\"Elektrikal & Mekanikal\",\"Daya Listrik : 2200 VA\",","uuid":"b4aa0d5c-ab4f-422a-a2ba-90d03b4a4e45","medias":[{"mediaType":"COVER","mediaInfo":[{"mediaUrl":"https:\/\/picture.rumah123.com\/r123-images\/1080x720-fit\/customer\/4419385\/5068b6c3c9aeeefbd838abf5b17688d3.jpg","thumbnailUrl":"https:\/\/picture.rumah123.com\/r123-images\/250x160-fit\/customer\/4419385\/5068b6c3c9aeeefbd838abf5b17688d3.jpg","formatUrl":"https:\/\/picture.rumah123.com\/r123-images\/{width}x{height}-{scale}\/customer\/4419385\/5068b6c3c9aeeefbd838abf5b17688d3.jpg","order":0}]},{"mediaType":"REGULAR","mediaInfo":[{"mediaUrl":"https:\/\/picture.rumah123.com\/r123-images\/1080x720-fit\/customer\/4419385\/38c9abadd428a03e36e5f37a7ee82471.jpg","thumbnailUrl":"https:\/\/picture.rumah123.com\/r123-images\/250x160-fit\/customer\/4419385\/38c9abadd428a03e36e5f37a7ee82471.jpg","formatUrl":"https:\/\/picture.rumah123.com\/r123-images\/{width}x{height}-{scale}\/customer\/4419385\/38c9abadd428a03e36e5f37a7ee82471.jpg","order":1},{"mediaUrl":"https:\/\/picture.rumah123.com\/r123-images\/1080x720-fit\/customer\/4419385\/3310a473167072645f7de4cae08bfc32.jpg","thumbnailUrl":"https:\/\/picture.rumah123.com\/r123-images\/250x160-fit\/customer\/4419385\/3310a473167072645f7de4cae08bfc32.jpg","formatUrl":"https:\/\/picture.rumah123.com\/r123-images\/{width}x{height}-{scale}\/customer\/4419385\/3310a473167072645f7de4cae08bfc32.jpg","order":3}]}],"attributes":{"landSize":{"name":"landSize","label":"Luas Tanah","value":"70","formattedValue":"70 m\u00b2"},"buildingSize":{"name":"buildingSize","label":"Luas Bangunan","value":"42","formattedValue":"42 m\u00b2"},"bedrooms":{"name":"bedrooms","label":"Kamar","value":"2","formattedValue":"2"},"bathrooms":{"name":"bathrooms","label":"Kamar Mandi","value":"1","formattedValue":"1"},"carports":{"name":"carports","label":"Carport","value":"1","formattedValue":"1"}},"propertyType":{"name":"propertyType","label":"Tipe Properti","value":"0","formattedValue":"Rumah"},"price":{"minValue":1000000000,"maxValue":1000000000,"currencyType":360,"display":"Rp 1 Miliar","offer":1000000000,"unitType":0,"subDisplay":""},"location":{"uuid":"","level":0,"name":"","locationType":0,"text":""},"subtitle":"","url":"\/perumahan-baru\/properti\/karawang\/parkland-podomoro\/viola\/hos1101202\/"},{"title":"Akasia","description":"[\"Pondasi & Struktur Atas\",\"Pondasi Bangunan & Kanopi : Tiang Pancang\",\"Pondasi Pagar Belakang : Batu Kali\",\"Pile Cap & Slof, Struktur Bangunan : Beton Bertulang\",\"Dinding\",\"Dinding Interior, Exterior : Bata Ringan\",\"Bathroom : Keramik\",\"Omamen Dinding Luar : Roster\",\"Plafond & Atap\",\"Plafond Interior & Bathroom : Gypsum Board\",\"Plafond Exterior & Bathroom : Calsiboard\",\"Rangka Plafond : Metal Hollow\",\"Rangka Atap : Baja Ringan\",\"Penutup Atap : Genteng Beton\",\"Listplang : GRC Board\",\"Lantai\",\"Carpark : Rabat Beton\",\"Teras : Keramik\",\"Living Room & Bedroom : Homogeneous Tile\",\"Bathroom : Keramik\",\"Pintu & Jendela\",\"Tipe Pintu : Engineering Door\",\"Pintu Utama : Solid Core\",\"Pintu Bedroom, Bathroom, Belakang : Hollow Core\",\"Pintu Courtyard : Alumunium Powder Coating\",\"Kaca Jendela : Clear\",\"Sanitary\",\"Kloset Wastafel, Shower, Jet Washer, Faucet, FD : Ex TOTO\",\"Vanity Mirror, Keran Mesin Cuci, Keran Kitchen Sink, Kitchen Sink : Tersedia\",\"Kitchen Table : Keramik\",\"Elektrikal & Mekanikal\",\"Daya Listrik : 2200 VA\"]","uuid":"694cd3b3-1945-44ee-b555-a5499e01cd3b","medias":[{"mediaType":"COVER","mediaInfo":[{"mediaUrl":"https:\/\/picture.rumah123.com\/r123-images\/1080x720-fit\/customer\/4419385\/0b3cd05f21e78bdf1cd78fe852c46a07.jpg","thumbnailUrl":"https:\/\/picture.rumah123.com\/r123-images\/250x160-fit\/customer\/4419385\/0b3cd05f21e78bdf1cd78fe852c46a07.jpg","formatUrl":"https:\/\/picture.rumah123.com\/r123-images\/{width}x{height}-{scale}\/customer\/4419385\/0b3cd05f21e78bdf1cd78fe852c46a07.jpg","order":0}]}],"attributes":{"landSize":{"name":"landSize","label":"Luas Tanah","value":"78","formattedValue":"78 m\u00b2"},"buildingSize":{"name":"buildingSize","label":"Luas Bangunan","value":"82","formattedValue":"82 m\u00b2"},"bedrooms":{"name":"bedrooms","label":"Kamar","value":"2","formattedValue":"2"},"bathrooms":{"name":"bathrooms","label":"Kamar Mandi","value":"2","formattedValue":"2"},"carports":{"name":"carports","label":"Carport","value":"2","formattedValue":"2"}},"propertyType":{"name":"propertyType","label":"Tipe Properti","value":"0","formattedValue":"Rumah"},"price":{"minValue":1500000000,"maxValue":1500000000,"currencyType":360,"display":"Rp 1,5 Miliar","offer":1500000000,"unitType":0,"subDisplay":""},"location":{"uuid":"","level":0,"name":"","locationType":0,"text":""},"subtitle":"","url":"\/perumahan-baru\/properti\/karawang\/parkland-podomoro\/akasia\/hos2100000002\/"},{"title":"Valerian Catur","description":"[\"Pondasi & Struktur Atas\",\"Pondasi Bangunan & Kanopi : Tiang Pancang\",\"Pondasi Pagar Belakang : Batu Kali\",\"Pile Cap & Slof, Struktur Bangunan : Beton Bertulang\",\"Dinding\",\"Dinding Interior, Exterior : Bata Merah\",\"Bathroom : Keramik\",\"Omamen Dinding Luar : GRC & Homogeneous\",\"Plafond & Atap\",\"Plafond Interior : Gypsum Board\",\"Plafond Exterior (Teras & Balkon) : GRC Finish Cat\",\"Plafond Bathroom : Calsiboard\",\"Rangka Plafond : Besi Hollow\",\"Rangka Atap : Baja Ringan\",\"Penutup Atap : Genteng Beton\",\"Listplang : GRC Board\",\"Lantai\",\"Carpark : Keramik\",\"Teras & Balkon, Living Room & Tangga : Homogeneous Tile\",\"Bedroom : Wood SPC Flooring\",\"Bathroom : Keramik\",\"Pintu & Jendela\",\"Tipe Pintu : Engineering Door + Kayu Kusen\",\"Pintu Utama : Solid Core\",\"Pintu Bedroom, Bathroom : Hollow Core\",\"Handle Pintu Utama : Pull Handle\",\"Handle Pintu Lain : Lever Handle\",\"Kaca Jendela : Clear\",\"Sanitary\",\"Kloset Wastafel, Shower, Jet Washer, Faucet, FD : Ex TOTO\",\"Vanity Mirror, Keran Mesin Cuci, Keran Kitchen Sink, Kitchen]","uuid":"e0076c3c-8f84-429a-bb23-7891da10323a","medias":[{"mediaType":"COVER","mediaInfo":[{"mediaUrl":"https:\/\/picture.rumah123.com\/r123-images\/1080x720-fit\/customer\/4419385\/c7230a05b5128509021b86c0d4a0cfc8.jpg","thumbnailUrl":"https:\/\/picture.rumah123.com\/r123-images\/250x160-fit\/customer\/4419385\/c7230a05b5128509021b86c0d4a0cfc8.jpg","formatUrl":"https:\/\/picture.rumah123.com\/r123-images\/{width}x{height}-{scale}\/customer\/4419385\/c7230a05b5128509021b86c0d4a0cfc8.jpg","order":0}]},{"mediaType":"REGULAR","mediaInfo":[{"mediaUrl":"https:\/\/picture.rumah123.com\/r123-images\/1080x720-fit\/customer\/4419385\/f0df65adbccd02ca134911c3b55605b9.jpg","thumbnailUrl":"https:\/\/picture.rumah123.com\/r123-images\/250x160-fit\/customer\/4419385\/f0df65adbccd02ca134911c3b55605b9.jpg","formatUrl":"https:\/\/picture.rumah123.com\/r123-images\/{width}x{height}-{scale}\/customer\/4419385\/f0df65adbccd02ca134911c3b55605b9.jpg","order":1},{"mediaUrl":"https:\/\/picture.rumah123.com\/r123-images\/1080x720-fit\/customer\/4419385\/e5ba6e135abd392a2cb48c602f898f1a.jpg","thumbnailUrl":"https:\/\/picture.rumah123.com\/r123-images\/250x160-fit\/customer\/4419385\/e5ba6e135abd392a2cb48c602f898f1a.jpg","formatUrl":"https:\/\/picture.rumah123.com\/r123-images\/{width}x{height}-{scale}\/customer\/4419385\/e5ba6e135abd392a2cb48c602f898f1a.jpg","order":2},{"mediaUrl":"https:\/\/picture.rumah123.com\/r123-images\/1080x720-fit\/customer\/4419385\/981303dea01d376e42f493d99ce886f8.jpg","thumbnailUrl":"https:\/\/picture.rumah123.com\/r123-images\/250x160-fit\/customer\/4419385\/981303dea01d376e42f493d99ce886f8.jpg","formatUrl":"https:\/\/picture.rumah123.com\/r123-images\/{width}x{height}-{scale}\/customer\/4419385\/981303dea01d376e42f493d99ce886f8.jpg","order":3},{"mediaUrl":"https:\/\/picture.rumah123.com\/r123-images\/1080x720-fit\/customer\/4419385\/01adfeb582fdea064aec7dd832f72875.jpg","thumbnailUrl":"https:\/\/picture.rumah123.com\/r123-images\/250x160-fit\/customer\/4419385\/01adfeb582fdea064aec7dd832f72875.jpg","formatUrl":"https:\/\/picture.rumah123.com\/r123-images\/{width}x{height}-{scale}\/customer\/4419385\/01adfeb582fdea064aec7dd832f72875.jpg","order":4},{"mediaUrl":"https:\/\/picture.rumah123.com\/r123-images\/1080x720-fit\/customer\/4419385\/4f628d91b1b579f50502d4f62d15d18b.jpg","thumbnailUrl":"https:\/\/picture.rumah123.com\/r123-images\/250x160-fit\/customer\/4419385\/4f628d91b1b579f50502d4f62d15d18b.jpg","formatUrl":"https:\/\/picture.rumah123.com\/r123-images\/{width}x{height}-{scale}\/customer\/4419385\/4f628d91b1b579f50502d4f62d15d18b.jpg","order":5}]},{"mediaType":"SITEPLAN","mediaInfo":[{"mediaUrl":"https:\/\/picture.rumah123.com\/r123-images\/1080x720-fit\/customer\/4419385\/2134cacdd4b06f0662ed758534378fcd.jpg","thumbnailUrl":"https:\/\/picture.rumah123.com\/r123-images\/250x160-fit\/customer\/4419385\/2134cacdd4b06f0662ed758534378fcd.jpg","formatUrl":"https:\/\/picture.rumah123.com\/r123-images\/{width}x{height}-{scale}\/customer\/4419385\/2134cacdd4b06f0662ed758534378fcd.jpg","order":0}]}],"attributes":{"landSize":{"name":"landSize","label":"Luas Tanah","value":"138","formattedValue":"138 m\u00b2"},"buildingSize":{"name":"buildingSize","label":"Luas Bangunan","value":"160","formattedValue":"160 m\u00b2"},"bedrooms":{"name":"bedrooms","label":"Kamar","value":"3","formattedValue":"3"},"bathrooms":{"name":"bathrooms","label":"Kamar Mandi","value":"3","formattedValue":"3"},"carports":{"name":"carports","label":"Carport","value":"2","formattedValue":"2"}},"propertyType":{"name":"propertyType","label":"Tipe Properti","value":"0","formattedValue":"Rumah"},"price":{"minValue":3200000000,"maxValue":3200000000,"currencyType":360,"display":"Rp 3,2 Miliar","offer":3200000000,"unitType":0,"subDisplay":""},"location":{"uuid":"","level":0,"name":"","locationType":0,"text":""},"subtitle":"","url":"\/perumahan-baru\/properti\/karawang\/parkland-podomoro\/valerian-catur\/hos4100000012\/"},{"title":"La Promenade Hook Corner","description":"","uuid":"f0277ae2-31af-43f9-912c-869450582188","medias":[{"mediaType":"COVER","mediaInfo":[{"mediaUrl":"https:\/\/picture.rumah123.com\/r123-images\/1080x720-fit\/customer\/4419385\/27ff1c55280ce023e667acc9f42c6229.png","thumbnailUrl":"https:\/\/picture.rumah123.com\/r123-images\/250x160-fit\/customer\/4419385\/27ff1c55280ce023e667acc9f42c6229.png","formatUrl":"https:\/\/picture.rumah123.com\/r123-images\/{width}x{height}-{scale}\/customer\/4419385\/27ff1c55280ce023e667acc9f42c6229.png","order":0}]},{"mediaType":"REGULAR","mediaInfo":[{"mediaUrl":"https:\/\/picture.rumah123.com\/r123-images\/1080x720-fit\/customer\/4419385\/44e37d17932984a905a11d5ab2ab5cdd.png","thumbnailUrl":"https:\/\/picture.rumah123.com\/r123-images\/250x160-fit\/customer\/4419385\/44e37d17932984a905a11d5ab2ab5cdd.png","formatUrl":"https:\/\/picture.rumah123.com\/r123-images\/{width}x{height}-{scale}\/customer\/4419385\/44e37d17932984a905a11d5ab2ab5cdd.png","order":1},{"mediaUrl":"https:\/\/picture.rumah123.com\/r123-images\/1080x720-fit\/customer\/4419385\/f7bc1c2603c8d7d2d63bd79a38de37de.jpg","thumbnailUrl":"https:\/\/picture.rumah123.com\/r123-images\/250x160-fit\/customer\/4419385\/f7bc1c2603c8d7d2d63bd79a38de37de.jpg","formatUrl":"https:\/\/picture.rumah123.com\/r123-images\/{width}x{height}-{scale}\/customer\/4419385\/f7bc1c2603c8d7d2d63bd79a38de37de.jpg","order":2},{"mediaUrl":"https:\/\/picture.rumah123.com\/r123-images\/1080x720-fit\/customer\/4419385\/2101f0aaec152e59859836810b3938e6.jpg","thumbnailUrl":"https:\/\/picture.rumah123.com\/r123-images\/250x160-fit\/customer\/4419385\/2101f0aaec152e59859836810b3938e6.jpg","formatUrl":"https:\/\/picture.rumah123.com\/r123-images\/{width}x{height}-{scale}\/customer\/4419385\/2101f0aaec152e59859836810b3938e6.jpg","order":3}]}],"attributes":{"landSize":{"name":"landSize","label":"Luas Tanah","value":"152","formattedValue":"152 m\u00b2"},"buildingSize":{"name":"buildingSize","label":"Luas Bangunan","value":"302","formattedValue":"302 m\u00b2"},"bedrooms":null,"bathrooms":{"name":"bathrooms","label":"Kamar Mandi","value":"1","formattedValue":"1"},"carports":null},"propertyType":{"name":"propertyType","label":"Tipe Properti","value":"2","formattedValue":"Ruko"},"price":{"minValue":4900000000,"maxValue":4900000000,"currencyType":360,"display":"Rp 4,9 Miliar","offer":4900000000,"unitType":0,"subDisplay":""},"location":{"uuid":"","level":0,"name":"","locationType":0,"text":""},"subtitle":"","url":"\/perumahan-baru\/properti\/karawang\/parkland-podomoro\/la-promenade-hook-corner\/shs4100000020\/"}]},{"name":"CLUSTER EMORY","properties":[{"title":"Millenial","description":"","uuid":"3c879276-5faa-4b9d-b65e-0f2b5cec9974","medias":[{"mediaType":"COVER","mediaInfo":[{"mediaUrl":"https:\/\/pic.rumah123.com\/r123\/1080x720-fit\/primary_property\/project\/3227\/1717412374_1717412374665da216510c6ads_images_1717412374.jpg","thumbnailUrl":"https:\/\/pic.rumah123.com\/r123\/250x160-fit\/primary_property\/project\/3227\/1717412374_1717412374665da216510c6ads_images_1717412374.jpg","formatUrl":"https:\/\/pic.rumah123.com\/r123\/{width}x{height}-{scale}\/primary_property\/project\/3227\/1717412374_1717412374665da216510c6ads_images_1717412374.jpg","order":0}]},{"mediaType":"REGULAR","mediaInfo":[{"mediaUrl":"https:\/\/pic.rumah123.com\/r123\/1080x720-fit\/primary_property\/project\/3227\/1717412379_1717412379665da21b6ff73ads_images_8616.jpg","thumbnailUrl":"https:\/\/pic.rumah123.com\/r123\/250x160-fit\/primary_property\/project\/3227\/1717412379_1717412379665da21b6ff73ads_images_8616.jpg","formatUrl":"https:\/\/pic.rumah123.com\/r123\/{width}x{height}-{scale}\/primary_property\/project\/3227\/1717412379_1717412379665da21b6ff73ads_images_8616.jpg","order":2},{"mediaUrl":"https:\/\/pic.rumah123.com\/r123\/1080x720-fit\/primary_property\/project\/3227\/1717412385_1717412385665da22146b31ads_images_8616.jpg","thumbnailUrl":"https:\/\/pic.rumah123.com\/r123\/250x160-fit\/primary_property\/project\/3227\/1717412385_1717412385665da22146b31ads_images_8616.jpg","formatUrl":"https:\/\/pic.rumah123.com\/r123\/{width}x{height}-{scale}\/primary_property\/project\/3227\/1717412385_1717412385665da22146b31ads_images_8616.jpg","order":3},{"mediaUrl":"https:\/\/pic.rumah123.com\/r123\/1080x720-fit\/primary_property\/project\/3227\/1717412385_1717412385665da2219843cads_images_8616.jpg","thumbnailUrl":"https:\/\/pic.rumah123.com\/r123\/250x160-fit\/primary_property\/project\/3227\/1717412385_1717412385665da2219843cads_images_8616.jpg","formatUrl":"https:\/\/pic.rumah123.com\/r123\/{width}x{height}-{scale}\/primary_property\/project\/3227\/1717412385_1717412385665da2219843cads_images_8616.jpg","order":4}]},{"mediaType":"SITEPLAN","mediaInfo":[{"mediaUrl":"https:\/\/pic.rumah123.com\/r123\/1080x720-fit\/primary_property\/project\/3227\/1717412388_665da224e4366floorplan_8616.jpg","thumbnailUrl":"https:\/\/pic.rumah123.com\/r123\/250x160-fit\/primary_property\/project\/3227\/1717412388_665da224e4366floorplan_8616.jpg","formatUrl":"https:\/\/pic.rumah123.com\/r123\/{width}x{height}-{scale}\/primary_property\/project\/3227\/1717412388_665da224e4366floorplan_8616.jpg","order":0}]}],"attributes":{"landSize":{"name":"landSize","label":"Luas Tanah","value":"60","formattedValue":"60 m\u00b2"},"buildingSize":{"name":"buildingSize","label":"Luas Bangunan","value":"31","formattedValue":"31 m\u00b2"},"bedrooms":{"name":"bedrooms","label":"Kamar","value":"2","formattedValue":"2"},"bathrooms":{"name":"bathrooms","label":"Kamar Mandi","value":"1","formattedValue":"1"},"carports":null},"propertyType":{"name":"propertyType","label":"Tipe Properti","value":"0","formattedValue":"Rumah"},"price":{"minValue":1000000000,"maxValue":1000000000,"currencyType":360,"display":"Rp 1 Miliar","offer":1000000000,"unitType":0,"subDisplay":""},"location":{"uuid":"","level":0,"name":"","locationType":0,"text":""},"subtitle":"","url":"\/perumahan-baru\/properti\/karawang\/parkland-podomoro\/millenial\/hos18616\/"},{"title":"Iris","description":"[\"Pondasi & Struktur Atas\",\"Pondasi Bangunan & Kanopi : Tiang Pancang\",\"Pondasi Pagar Belakang : Batu Kali\",\"Pile Cap & Slof, Struktur Bangunan : Beton Bertulang\",\"Dinding\",\"Dinding Interior, Exterior : Bata Ringan\",\"Bathroom : Keramik\",\"Omamen Dinding Luar : Roster\",\"Plafond & Atap\",\"Plafond Interior & Bathroom : Gypsum Board\",\"Plafond Exterior & Bathroom : Calsiboard\",\"Rangka Plafond : Metal Hollow\",\"Rangka Atap : Baja Ringan\",\"Penutup Atap : Genteng Beton\",\"Listplang : GRC Board\",\" Lantai\",\"Carpark : Rabat Beton\",\"Teras : Keramik\",\"Living Room & Bedroom : Homogeneous Tile\",\"Bathroom : Keramik\",\"Pintu & Jendela\",\"Tipe Pintu : Engineering Door\",\"Pintu Utama : Solid Core\",\"Pintu Bedroom, Bathroom, Belakang : Hollow Core\",\"Pintu Courtyard : Alumunium Powder Coating\",\"Kaca Jendela : Clear\",\"Sanitary\",\"Kloset Wastafel, Shower, Jet Washer, Faucet, FD : Ex TOTO\",\"Vanity Mirror, Keran Mesin Cuci, Keran Kitchen Sink, Kitchen Sink : Tersedia\",\"Kitchen Table : Keramik\",\"Elektrikal & Mekanikal\",\"Daya Listrik : 2200 VA\",\"Tipe Lampu : Fitting saja\",\"Sumber Air Bersih : PDAM\",\"Taman Lampu, Keran : Tersedia\",\"Bak Sampah : Portable Fiber\"]","uuid":"2537cba8-c59a-4694-8129-4ae1b3660082","medias":[{"mediaType":"COVER","mediaInfo":[{"mediaUrl":"https:\/\/pic.rumah123.com\/r123\/1080x720-fit\/primary_property\/project\/3227\/1699017157_16990171576544f1c55270fads_images_7126.jpg","thumbnailUrl":"https:\/\/pic.rumah123.com\/r123\/250x160-fit\/primary_property\/project\/3227\/1699017157_16990171576544f1c55270fads_images_7126.jpg","formatUrl":"https:\/\/pic.rumah123.com\/r123\/{width}x{height}-{scale}\/primary_property\/project\/3227\/1699017157_16990171576544f1c55270fads_images_7126.jpg","order":0}]},{"mediaType":"REGULAR","mediaInfo":[{"mediaUrl":"https:\/\/pic.rumah123.com\/r123\/1080x720-fit\/primary_property\/project\/3227\/1699017158_16990171586544f1c6c1707ads_images_7126.jpg","thumbnailUrl":"https:\/\/pic.rumah123.com\/r123\/250x160-fit\/primary_property\/project\/3227\/1699017158_16990171586544f1c6c1707ads_images_7126.jpg","formatUrl":"https:\/\/pic.rumah123.com\/r123\/{width}x{height}-{scale}\/primary_property\/project\/3227\/1699017158_16990171586544f1c6c1707ads_images_7126.jpg","order":2},{"mediaUrl":"https:\/\/pic.rumah123.com\/r123\/1080x720-fit\/primary_property\/project\/3227\/1699017158_16990171586544f1c6e0da7ads_images_7126.jpg","thumbnailUrl":"https:\/\/pic.rumah123.com\/r123\/250x160-fit\/primary_property\/project\/3227\/1699017158_16990171586544f1c6e0da7ads_images_7126.jpg","formatUrl":"https:\/\/pic.rumah123.com\/r123\/{width}x{height}-{scale}\/primary_property\/project\/3227\/1699017158_16990171586544f1c6e0da7ads_images_7126.jpg","order":3}]},{"mediaType":"SITEPLAN","mediaInfo":[{"mediaUrl":"https:\/\/pic.rumah123.com\/r123\/1080x720-fit\/primary_property\/project\/3227\/1699017174_6544f1d61c3b2floorplan_7126.jpg","thumbnailUrl":"https:\/\/pic.rumah123.com\/r123\/250x160-fit\/primary_property\/project\/3227\/1699017174_6544f1d61c3b2floorplan_7126.jpg","formatUrl":"https:\/\/pic.rumah123.com\/r123\/{width}x{height}-{scale}\/primary_property\/project\/3227\/1699017174_6544f1d61c3b2floorplan_7126.jpg","order":0}]}],"attributes":{"landSize":{"name":"landSize","label":"Luas Tanah","value":"126","formattedValue":"126 m\u00b2"},"buildingSize":{"name":"buildingSize","label":"Luas Bangunan","value":"84","formattedValue":"84 m\u00b2"},"bedrooms":{"name":"bedrooms","label":"Kamar","value":"2","formattedValue":"2"},"bathrooms":{"name":"bathrooms","label":"Kamar Mandi","value":"2","formattedValue":"2"},"carports":null},"propertyType":{"name":"propertyType","label":"Tipe Properti","value":"0","formattedValue":"Rumah"},"price":{"minValue":2300000000,"maxValue":2300000000,"currencyType":360,"display":"Rp 2,3 Miliar","offer":2300000000,"unitType":0,"subDisplay":""},"location":{"uuid":"","level":0,"name":"","locationType":0,"text":""},"subtitle":"","url":"\/perumahan-baru\/properti\/karawang\/parkland-podomoro\/iris\/hos47126\/"}]},{"name":"CLUSTER EVERGREEN","properties":[{"title":"Averly ","description":"PONDASI = Tiang pancang \nSTRUKTUR ATAS = Beton Bertulang\n\nATAP \nRangka Atap = Baja ringan \nPenutup Atap = Genteng beton\nCanopy Carport = Alderon + Plafond \n\nPLAFOND\nPlafond Interior = Gypsum 9 mm\nPlafond Eksterior = Gypsum Water Resistant\nBathroom = Gypsum water Resistant\n\nDINDING \nDinding Bangunan = Bata merah + plesteran + aci\n\nFINISHING DINDING\nInterior = Fin. cat Interior \nEksterior = Fin. cat Eksterior \nBathroom = Homogeneous Tile\nOrnamen Dinding Luar = Homogeneous Tile\n\nFINISHING LANTAI\nRuang Dalam = Homogeneous Tile\nKamar Tidur = Vinly Flooring \nKM & WC = Homogeneous Tile\nTeras = Homogeneous Tile\n\nKUSEN, PINTU, DAN JENDELA\nDaun Jendela = Kusen Alumunium + Glass \nDaun Pintu Depan = Finish Duco\nDaun Pintu K. Mandi = Engineering door\n\u00a0\nSANITAIR\nKloset Duduk = Ex. TOTO\/Setara\n\nINSTALASI\nAir Bersih = PDAM\nDaya Listrik = 3500 VA\nInstalasi AC = Disediakan\nPompa Transfer = Disediakan","uuid":"16475fe1-8b7a-4426-9565-1b15550b33f9","medias":[{"mediaType":"COVER","mediaInfo":[{"mediaUrl":"https:\/\/picture.rumah123.com\/r123-images\/1080x720-fit\/customer\/1899233\/3b661bd9c86150a014a93c0b4267f176.jpg","thumbnailUrl":"https:\/\/picture.rumah123.com\/r123-images\/250x160-fit\/customer\/1899233\/3b661bd9c86150a014a93c0b4267f176.jpg","formatUrl":"https:\/\/picture.rumah123.com\/r123-images\/{width}x{height}-{scale}\/customer\/1899233\/3b661bd9c86150a014a93c0b4267f176.jpg","order":0}]},{"mediaType":"REGULAR","mediaInfo":[{"mediaUrl":"https:\/\/picture.rumah123.com\/r123-images\/1080x720-fit\/customer\/1899233\/e96ae2cec82c5df59d9ecdca082d5d9e.jpg","thumbnailUrl":"https:\/\/picture.rumah123.com\/r123-images\/250x160-fit\/customer\/1899233\/e96ae2cec82c5df59d9ecdca082d5d9e.jpg","formatUrl":"https:\/\/picture.rumah123.com\/r123-images\/{width}x{height}-{scale}\/customer\/1899233\/e96ae2cec82c5df59d9ecdca082d5d9e.jpg","order":1}]},{"mediaType":"SITEPLAN","mediaInfo":[{"mediaUrl":"https:\/\/picture.rumah123.com\/r123-images\/1080x720-fit\/customer\/1899233\/c6ec37e5b572a7ab9fced548d053f7df.jpg","thumbnailUrl":"https:\/\/picture.rumah123.com\/r123-images\/250x160-fit\/customer\/1899233\/c6ec37e5b572a7ab9fced548d053f7df.jpg","formatUrl":"https:\/\/picture.rumah123.com\/r123-images\/{width}x{height}-{scale}\/customer\/1899233\/c6ec37e5b572a7ab9fced548d053f7df.jpg","order":0}]}],"attributes":{"landSize":{"name":"landSize","label":"Luas Tanah","value":"72","formattedValue":"72 m\u00b2"},"buildingSize":{"name":"buildingSize","label":"Luas Bangunan","value":"90","formattedValue":"90 m\u00b2"},"bedrooms":{"name":"bedrooms","label":"Kamar","value":"3","formattedValue":"3"},"bathrooms":{"name":"bathrooms","label":"Kamar Mandi","value":"2","formattedValue":"2"},"carports":null},"propertyType":{"name":"propertyType","label":"Tipe Properti","value":"0","formattedValue":"Rumah"},"price":{"minValue":1800000000,"maxValue":1800000000,"currencyType":360,"display":"Rp 1,8 Miliar","offer":1800000000,"unitType":0,"subDisplay":""},"location":{"uuid":"","level":0,"name":"","locationType":0,"text":""},"subtitle":"","url":"\/perumahan-baru\/properti\/karawang\/parkland-podomoro\/averly\/hos1100352\/"},{"title":"Azalea","description":"[\"Pondasi & Struktur Atas\",\"Pondasi Bangunan & Kanopi : Tiang Pancang\",\"Pondasi Pagar Belakang : Batu Kali\",\"Pile Cap & Slof, Struktur Bangunan : Beton Bertulang\",\"Dinding\",\"Dinding Interior, Exterior : Bata Merah\",\"Bathroom : Keramik\",\"Omamen Dinding Luar : GRC & Homogeneous\",\"Plafond & Atap\",\"Plafond Interior : Gypsum Board\",\"Plafond Exterior (Teras & Balkon) : GRC Finish Cat\",\"Plafond Bathroom : Calsiboard\",\"Rangka Plafond : Besi Hollow\",\"Rangka Atap : Baja Ringan\",\"Penutup Atap : Genteng Beton\",\"Listplang : GRC Board\",\"Lantai\",\"Carpark : Keramik\",\"Teras & Balkon, Living Room & Tangga : Homogeneous Tile\",\"Bedroom : Wood SPC Flooring\",\"Bathroom : Keramik\",\"Pintu & Jendela\",\"Tipe Pintu : Engineering Door + Kayu Kusen\",\"Pintu Utama : Solid Core\",\"Pintu Bedroom, Bathroom : Hollow Core\",\"Handle Pintu Utama : Pull Handle\",\"Handle Pintu Lain : Lever Handle\",\"Kaca Jendela : Clear\",\"Sanitary\",\"Kloset Wastafel, Shower, Jet Washer, Faucet, FD : Ex TOTO\",\"Vanity Mirror, Keran Mesin Cuci, Keran Kitchen Sink, Kitchen Sink : Tersedia\",\"Kitchen Table : Homogeneous Tile\",\"Elektrikal, Mekanikal & Plumbing\",\"Daya Listrik : 3500 VA (Tipe 7), 4400 VA (Tipe 8)\",\"Tipe Lampu : Downlight + Bohlam LED\",\"Sumber Air Bersih : PDAM\",\"Taman Lampu, Keran : Tersedia\",\"Bak Sampah : Portable Fiber\"]","uuid":"b157ae66-8172-4ed1-a58d-e6871ef02fe9","medias":[{"mediaType":"COVER","mediaInfo":[{"mediaUrl":"https:\/\/pic.rumah123.com\/r123\/1080x720-fit\/primary_property\/project\/3227\/1678939434_16789394346412952a02e4dads_images_7122.jpg","thumbnailUrl":"https:\/\/pic.rumah123.com\/r123\/250x160-fit\/primary_property\/project\/3227\/1678939434_16789394346412952a02e4dads_images_7122.jpg","formatUrl":"https:\/\/pic.rumah123.com\/r123\/{width}x{height}-{scale}\/primary_property\/project\/3227\/1678939434_16789394346412952a02e4dads_images_7122.jpg","order":0}]},{"mediaType":"SITEPLAN","mediaInfo":[{"mediaUrl":"https:\/\/pic.rumah123.com\/r123\/1080x720-fit\/primary_property\/project\/3227\/1678789984_64104d6043cabfloorplan_7122.jpg","thumbnailUrl":"https:\/\/pic.rumah123.com\/r123\/250x160-fit\/primary_property\/project\/3227\/1678789984_64104d6043cabfloorplan_7122.jpg","formatUrl":"https:\/\/pic.rumah123.com\/r123\/{width}x{height}-{scale}\/primary_property\/project\/3227\/1678789984_64104d6043cabfloorplan_7122.jpg","order":0}]}],"attributes":{"landSize":{"name":"landSize","label":"Luas Tanah","value":"98","formattedValue":"98 m\u00b2"},"buildingSize":{"name":"buildingSize","label":"Luas Bangunan","value":"120","formattedValue":"120 m\u00b2"},"bedrooms":{"name":"bedrooms","label":"Kamar","value":"3","formattedValue":"3"},"bathrooms":{"name":"bathrooms","label":"Kamar Mandi","value":"3","formattedValue":"3"},"carports":null},"propertyType":{"name":"propertyType","label":"Tipe Properti","value":"0","formattedValue":"Rumah"},"price":{"minValue":2500000000,"maxValue":2500000000,"currencyType":360,"display":"Rp 2,5 Miliar","offer":2500000000,"unitType":0,"subDisplay":""},"location":{"uuid":"","level":0,"name":"","locationType":0,"text":""},"subtitle":"","url":"\/perumahan-baru\/properti\/karawang\/parkland-podomoro\/azalea\/hos27122\/"}]},{"name":"SHOPHOUSE NEO PROMENADE","properties":[{"title":"Neo Promenade","description":"[\"Pondasi : Tiang Pancang\",\"Struktur : Beton Bertulang\",\"Palfond Interir : Gypsumboard\",\"Dinding Luar & Dalam : Bata Ringan Plester Aci\",\"Finishing Dinding\",\"Dinding Luar : Cat Eksterior, Dinding Dalam : Cat Interior, KM & WC : Keramik\",\"Finishing Lantai : Ruang Dalam : To be confirmed, KM, WC & Teras : Keramik\",\"Kusen, Pintu & Jendela \",\"Daun Jendela & Daun Pintu Depan : Kusen Alumunium + Glass\",\"Daun Pintu Kamar Mandi : UPVC\",\"Sanitair : Closet Duduk : Ex TOTO\\\/Setara\",\"Instalasi\",\"Air Bersih : PDAM\",\"Daya Listrik : 2200 VA\",\"Instalasi AC : Disediakan\",\"Plumbing : Septictank : Disediakan\",\"Tinggi Plafond Ruko 1 Lantai\",\"A. Tipe Standart (Non Mezzanine) Interior : Mengikuti kemiringan atap tinggi min 3m, tinggi max 4.8m - 5m\",\"B. Tipe Standart (Mezzanine) + Corner A Interior : Mengikuti kemiringan atap tinggi min 4.6m, tinggi max 6.2m\",\"C : Tipe Standart 6 - Corner B (2 Lantai) Interior : Lantai Dasar : 3.2m. Lantai Atas : mengikuti kemiringan atap tinggi min 2.6m, tinggi max 3m\",\"Teras : 3.4m (untuk semua tipe) \",\"Toilet : 2.5m (untuk semua tipe)\"]","uuid":"b8e73d58-76aa-43f5-8f25-c312723256a4","medias":[{"mediaType":"SITEPLAN","mediaInfo":[{"mediaUrl":"https:\/\/pic.rumah123.com\/r123\/1080x720-fit\/primary_property\/project\/3227\/1706170773_65b21995195f1floorplan_8127.jpg","thumbnailUrl":"https:\/\/pic.rumah123.com\/r123\/250x160-fit\/primary_property\/project\/3227\/1706170773_65b21995195f1floorplan_8127.jpg","formatUrl":"https:\/\/pic.rumah123.com\/r123\/{width}x{height}-{scale}\/primary_property\/project\/3227\/1706170773_65b21995195f1floorplan_8127.jpg","order":0}]},{"mediaType":"COVER","mediaInfo":[{"mediaUrl":"https:\/\/picture.rumah123.com\/r123-images\/1080x720-fit\/customer\/1899233\/8eec906068ed6d04f1357b7260520829.png","thumbnailUrl":"https:\/\/picture.rumah123.com\/r123-images\/250x160-fit\/customer\/1899233\/8eec906068ed6d04f1357b7260520829.png","formatUrl":"https:\/\/picture.rumah123.com\/r123-images\/{width}x{height}-{scale}\/customer\/1899233\/8eec906068ed6d04f1357b7260520829.png","order":0}]},{"mediaType":"REGULAR","mediaInfo":[{"mediaUrl":"https:\/\/picture.rumah123.com\/r123-images\/1080x720-fit\/customer\/1899233\/59a4b68921374e063bd63503d2b001e3.jpg","thumbnailUrl":"https:\/\/picture.rumah123.com\/r123-images\/250x160-fit\/customer\/1899233\/59a4b68921374e063bd63503d2b001e3.jpg","formatUrl":"https:\/\/picture.rumah123.com\/r123-images\/{width}x{height}-{scale}\/customer\/1899233\/59a4b68921374e063bd63503d2b001e3.jpg","order":1},{"mediaUrl":"https:\/\/picture.rumah123.com\/r123-images\/1080x720-fit\/customer\/1899233\/08b0fb63346ab6ec410d88453c65f3c7.jpg","thumbnailUrl":"https:\/\/picture.rumah123.com\/r123-images\/250x160-fit\/customer\/1899233\/08b0fb63346ab6ec410d88453c65f3c7.jpg","formatUrl":"https:\/\/picture.rumah123.com\/r123-images\/{width}x{height}-{scale}\/customer\/1899233\/08b0fb63346ab6ec410d88453c65f3c7.jpg","order":2},{"mediaUrl":"https:\/\/picture.rumah123.com\/r123-images\/1080x720-fit\/customer\/1899233\/42a015bbbf2d674df86b2d1d5e26bb91.jpg","thumbnailUrl":"https:\/\/picture.rumah123.com\/r123-images\/250x160-fit\/customer\/1899233\/42a015bbbf2d674df86b2d1d5e26bb91.jpg","formatUrl":"https:\/\/picture.rumah123.com\/r123-images\/{width}x{height}-{scale}\/customer\/1899233\/42a015bbbf2d674df86b2d1d5e26bb91.jpg","order":3},{"mediaUrl":"https:\/\/picture.rumah123.com\/r123-images\/1080x720-fit\/customer\/1899233\/b8f2498375e3970feddcf0ae88c8da55.jpg","thumbnailUrl":"https:\/\/picture.rumah123.com\/r123-images\/250x160-fit\/customer\/1899233\/b8f2498375e3970feddcf0ae88c8da55.jpg","formatUrl":"https:\/\/picture.rumah123.com\/r123-images\/{width}x{height}-{scale}\/customer\/1899233\/b8f2498375e3970feddcf0ae88c8da55.jpg","order":4},{"mediaUrl":"https:\/\/picture.rumah123.com\/r123-images\/1080x720-fit\/customer\/1899233\/ccdc34cd8e24ba1d1c303539ef48b81a.jpg","thumbnailUrl":"https:\/\/picture.rumah123.com\/r123-images\/250x160-fit\/customer\/1899233\/ccdc34cd8e24ba1d1c303539ef48b81a.jpg","formatUrl":"https:\/\/picture.rumah123.com\/r123-images\/{width}x{height}-{scale}\/customer\/1899233\/ccdc34cd8e24ba1d1c303539ef48b81a.jpg","order":5},{"mediaUrl":"https:\/\/picture.rumah123.com\/r123-images\/1080x720-fit\/customer\/1899233\/3dc9201bb42711a79c45dbdc3578b111.jpg","thumbnailUrl":"https:\/\/picture.rumah123.com\/r123-images\/250x160-fit\/customer\/1899233\/3dc9201bb42711a79c45dbdc3578b111.jpg","formatUrl":"https:\/\/picture.rumah123.com\/r123-images\/{width}x{height}-{scale}\/customer\/1899233\/3dc9201bb42711a79c45dbdc3578b111.jpg","order":6},{"mediaUrl":"https:\/\/picture.rumah123.com\/r123-images\/1080x720-fit\/customer\/1899233\/da05d2f00f09b931a1b0b0d5a26f8e36.jpg","thumbnailUrl":"https:\/\/picture.rumah123.com\/r123-images\/250x160-fit\/customer\/1899233\/da05d2f00f09b931a1b0b0d5a26f8e36.jpg","formatUrl":"https:\/\/picture.rumah123.com\/r123-images\/{width}x{height}-{scale}\/customer\/1899233\/da05d2f00f09b931a1b0b0d5a26f8e36.jpg","order":7}]}],"attributes":{"landSize":{"name":"landSize","label":"Luas Tanah","value":"76.5","formattedValue":"76.5 m\u00b2"},"buildingSize":{"name":"buildingSize","label":"Luas Bangunan","value":"49","formattedValue":"49 m\u00b2"},"bedrooms":null,"bathrooms":{"name":"bathrooms","label":"Kamar Mandi","value":"1","formattedValue":"1"},"carports":null},"propertyType":{"name":"propertyType","label":"Tipe Properti","value":"2","formattedValue":"Ruko"},"price":{"minValue":2100000000,"maxValue":2100000000,"currencyType":360,"display":"Rp 2,1 Miliar","offer":2100000000,"unitType":0,"subDisplay":""},"location":{"uuid":"","level":0,"name":"","locationType":0,"text":""},"subtitle":"","url":"\/perumahan-baru\/properti\/karawang\/parkland-podomoro\/neo-promenade\/shs18127\/"}]},{"name":"LA PROMENADE","properties":[{"title":"La Promenade Standar","description":"","uuid":"e9ec7b1f-4699-4538-bcbd-f2f1a5db25c4","medias":[{"mediaType":"COVER","mediaInfo":[{"mediaUrl":"https:\/\/picture.rumah123.com\/r123-images\/1080x720-fit\/customer\/1899233\/45727aa77d8be93aaf0bc33dceb65842.png","thumbnailUrl":"https:\/\/picture.rumah123.com\/r123-images\/250x160-fit\/customer\/1899233\/45727aa77d8be93aaf0bc33dceb65842.png","formatUrl":"https:\/\/picture.rumah123.com\/r123-images\/{width}x{height}-{scale}\/customer\/1899233\/45727aa77d8be93aaf0bc33dceb65842.png","order":0}]},{"mediaType":"REGULAR","mediaInfo":[{"mediaUrl":"https:\/\/picture.rumah123.com\/r123-images\/1080x720-fit\/customer\/1899233\/2f5babc5a2ba4a4f3947647b4a39af94.jpg","thumbnailUrl":"https:\/\/picture.rumah123.com\/r123-images\/250x160-fit\/customer\/1899233\/2f5babc5a2ba4a4f3947647b4a39af94.jpg","formatUrl":"https:\/\/picture.rumah123.com\/r123-images\/{width}x{height}-{scale}\/customer\/1899233\/2f5babc5a2ba4a4f3947647b4a39af94.jpg","order":1},{"mediaUrl":"https:\/\/picture.rumah123.com\/r123-images\/1080x720-fit\/customer\/1899233\/e1b193bf1c213553a24872b484c522d4.jpg","thumbnailUrl":"https:\/\/picture.rumah123.com\/r123-images\/250x160-fit\/customer\/1899233\/e1b193bf1c213553a24872b484c522d4.jpg","formatUrl":"https:\/\/picture.rumah123.com\/r123-images\/{width}x{height}-{scale}\/customer\/1899233\/e1b193bf1c213553a24872b484c522d4.jpg","order":2},{"mediaUrl":"https:\/\/picture.rumah123.com\/r123-images\/1080x720-fit\/customer\/1899233\/f30e7b0688204a69734bcb370c80c1cc.jpg","thumbnailUrl":"https:\/\/picture.rumah123.com\/r123-images\/250x160-fit\/customer\/1899233\/f30e7b0688204a69734bcb370c80c1cc.jpg","formatUrl":"https:\/\/picture.rumah123.com\/r123-images\/{width}x{height}-{scale}\/customer\/1899233\/f30e7b0688204a69734bcb370c80c1cc.jpg","order":3},{"mediaUrl":"https:\/\/picture.rumah123.com\/r123-images\/1080x720-fit\/customer\/1899233\/72ca685dabf13403733f326313d64178.jpg","thumbnailUrl":"https:\/\/picture.rumah123.com\/r123-images\/250x160-fit\/customer\/1899233\/72ca685dabf13403733f326313d64178.jpg","formatUrl":"https:\/\/picture.rumah123.com\/r123-images\/{width}x{height}-{scale}\/customer\/1899233\/72ca685dabf13403733f326313d64178.jpg","order":4},{"mediaUrl":"https:\/\/picture.rumah123.com\/r123-images\/1080x720-fit\/customer\/1899233\/ec45b85f53718ae41bcff7cdd7bdcdd2.jpg","thumbnailUrl":"https:\/\/picture.rumah123.com\/r123-images\/250x160-fit\/customer\/1899233\/ec45b85f53718ae41bcff7cdd7bdcdd2.jpg","formatUrl":"https:\/\/picture.rumah123.com\/r123-images\/{width}x{height}-{scale}\/customer\/1899233\/ec45b85f53718ae41bcff7cdd7bdcdd2.jpg","order":5},{"mediaUrl":"https:\/\/picture.rumah123.com\/r123-images\/1080x720-fit\/customer\/1899233\/54d3fcc00329b3d55386cc55333b6ef1.jpg","thumbnailUrl":"https:\/\/picture.rumah123.com\/r123-images\/250x160-fit\/customer\/1899233\/54d3fcc00329b3d55386cc55333b6ef1.jpg","formatUrl":"https:\/\/picture.rumah123.com\/r123-images\/{width}x{height}-{scale}\/customer\/1899233\/54d3fcc00329b3d55386cc55333b6ef1.jpg","order":6},{"mediaUrl":"https:\/\/picture.rumah123.com\/r123-images\/1080x720-fit\/customer\/1899233\/e0f559920b0d865a5493d4e02f01b504.jpg","thumbnailUrl":"https:\/\/picture.rumah123.com\/r123-images\/250x160-fit\/customer\/1899233\/e0f559920b0d865a5493d4e02f01b504.jpg","formatUrl":"https:\/\/picture.rumah123.com\/r123-images\/{width}x{height}-{scale}\/customer\/1899233\/e0f559920b0d865a5493d4e02f01b504.jpg","order":7}]},{"mediaType":"SITEPLAN","mediaInfo":[{"mediaUrl":"https:\/\/pic.rumah123.com\/r123\/1080x720-fit\/primary_property\/project\/3227\/1699429694_654b3d3e049d9floorplan_7748.jpg","thumbnailUrl":"https:\/\/pic.rumah123.com\/r123\/250x160-fit\/primary_property\/project\/3227\/1699429694_654b3d3e049d9floorplan_7748.jpg","formatUrl":"https:\/\/pic.rumah123.com\/r123\/{width}x{height}-{scale}\/primary_property\/project\/3227\/1699429694_654b3d3e049d9floorplan_7748.jpg","order":0}]}],"attributes":{"landSize":{"name":"landSize","label":"Luas Tanah","value":"76.5","formattedValue":"76.5 m\u00b2"},"buildingSize":{"name":"buildingSize","label":"Luas Bangunan","value":"72","formattedValue":"72 m\u00b2"},"bedrooms":null,"bathrooms":null,"carports":null},"propertyType":{"name":"propertyType","label":"Tipe Properti","value":"2","formattedValue":"Ruko"},"price":{"minValue":2900000000,"maxValue":2900000000,"currencyType":360,"display":"Rp 2,9 Miliar","offer":2900000000,"unitType":0,"subDisplay":""},"location":{"uuid":"","level":0,"name":"","locationType":0,"text":""},"subtitle":"","url":"\/perumahan-baru\/properti\/karawang\/parkland-podomoro\/la-promenade-standar\/shs17748\/"}]}]},"url":"\/perumahan-baru\/properti\/karawang\/parkland-podomoro\/nps3227\/"}]}}},"strapi":null,"baseUrl":"https:\/\/www.rumah123.com"}
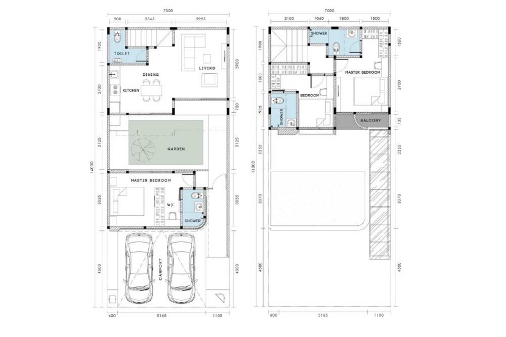
Tipe Valerian Catur terdiri dari 2 lantai, dengan 5 kamar tidur dan 4 kamar mandi. Huniannya pas ditempati oleh keluarga besar.
Jika ingin melihat inspirasi desain rumah mewah 1 lantai, Anda bisa mengintip Tipe Viola dengan 2 kamar tidur.
Rumah dengan luas yang compact ini cocok bagi Anda pasangan muda yang ingin memiliki rumah pertama yang mewah.
Desain Perumahan Mewah Podomoro Park Bandung

Berbicara mengenai desain perumahan mewah, rasanya tak lengkap jika tak membahas mengenai perumahan di Bandung ini.
Podomoro Park Bandung memiliki beragam cluster, salah satu yang termewah adalah Brahmapuri dengan tipe unit Sagara.
Jika Anda sedang mencari inspirasi desain rumah mewah 2 lantai dengan nuansa warna bumi, seperti krem dan cokelat, wajib melihat tipe Sagara.
{"attributes":{"type":"udp","pdp_id":["nps1697"],"custom_title":"Lihat Lebih Detail Rumah Podomoro Park"},"pdp":{"data":{"GetPropertiesByOriginID":{"properties":[{"uuid":"3aa6b560-7090-49a0-bd1b-accf2eead042","agent":{"organization":{"uuid":"d33c6916-4681-46ac-82ae-eecc73f3ad7e","name":"PT. Agung Podomoro Land, Tbk","medias":[{"mediaType":"REGULAR","mediaInfo":[{"mediaUrl":"https:\/\/pic.rumah123.com\/r123\/250x250-fit\/developer\/logo\/developer-index-1481083146.jpg","thumbnailUrl":"https:\/\/pic.rumah123.com\/r123\/250x160-fit\/developer\/logo\/developer-index-1481083146.jpg","formatUrl":"https:\/\/pic.rumah123.com\/r123\/{width}x{height}-{scale}\/developer\/logo\/developer-index-1481083146.jpg","order":0}]}],"contacts":[{"contactType":1,"type":"EMAIL","value":"evergreen@99.co"},{"contactType":3,"type":"WHATSAPP","value":"+6281952984809"},{"contactType":2,"type":"PHONE_NUMBER","value":"+6281952984809"}],"url":"\/properti-baru\/developer\/pt-agung-podomoro-land-tbk\/824\/"}},"location":{"uuid":"0c673d74-8635-4c53-9377-99b710c03908","level":0,"name":"Buah Batu","locationType":0,"text":"Buah Batu, Bandung"},"originId":{"value":"nps1697","formattedValue":"nps1697"},"price":{"minValue":900000000,"maxValue":8000000000,"currencyType":360,"display":"Rp 900 Juta - 8 Miliar","offer":900000000,"unitType":0,"subDisplay":""},"title":"Podomoro Park Bandung","medias":[{"mediaType":"BACKGROUND","mediaInfo":[{"mediaUrl":"https:\/\/picture.rumah123.com\/r123-images\/1080x720-fit\/customer\/4419385\/e89661bcdc54f553ab07f70ed8d4ae90.jpg","thumbnailUrl":"https:\/\/picture.rumah123.com\/r123-images\/250x160-fit\/customer\/4419385\/e89661bcdc54f553ab07f70ed8d4ae90.jpg","formatUrl":"https:\/\/picture.rumah123.com\/r123-images\/{width}x{height}-{scale}\/customer\/4419385\/e89661bcdc54f553ab07f70ed8d4ae90.jpg","order":0},{"mediaUrl":"https:\/\/pic.rumah123.com\/r123\/1080x720-fit\/primary_property\/project\/1697\/1668500448_63734be07802cads_images_1697.jpg","thumbnailUrl":"https:\/\/pic.rumah123.com\/r123\/250x160-fit\/primary_property\/project\/1697\/1668500448_63734be07802cads_images_1697.jpg","formatUrl":"https:\/\/pic.rumah123.com\/r123\/{width}x{height}-{scale}\/primary_property\/project\/1697\/1668500448_63734be07802cads_images_1697.jpg","order":2},{"mediaUrl":"https:\/\/pic.rumah123.com\/r123\/1080x720-fit\/primary_property\/project\/1697\/1686885061_648bd2c5aa609ads_images_1697.jpg","thumbnailUrl":"https:\/\/pic.rumah123.com\/r123\/250x160-fit\/primary_property\/project\/1697\/1686885061_648bd2c5aa609ads_images_1697.jpg","formatUrl":"https:\/\/pic.rumah123.com\/r123\/{width}x{height}-{scale}\/primary_property\/project\/1697\/1686885061_648bd2c5aa609ads_images_1697.jpg","order":3},{"mediaUrl":"https:\/\/pic.rumah123.com\/r123\/1080x720-fit\/primary_property\/project\/1697\/1686902006_648c14f6034adads_images_1697.jpg","thumbnailUrl":"https:\/\/pic.rumah123.com\/r123\/250x160-fit\/primary_property\/project\/1697\/1686902006_648c14f6034adads_images_1697.jpg","formatUrl":"https:\/\/pic.rumah123.com\/r123\/{width}x{height}-{scale}\/primary_property\/project\/1697\/1686902006_648c14f6034adads_images_1697.jpg","order":4},{"mediaUrl":"https:\/\/pic.rumah123.com\/r123\/1080x720-fit\/primary_property\/project\/1697\/1715153478_663b2a46b487cads_images_1697.jpg","thumbnailUrl":"https:\/\/pic.rumah123.com\/r123\/250x160-fit\/primary_property\/project\/1697\/1715153478_663b2a46b487cads_images_1697.jpg","formatUrl":"https:\/\/pic.rumah123.com\/r123\/{width}x{height}-{scale}\/primary_property\/project\/1697\/1715153478_663b2a46b487cads_images_1697.jpg","order":5}]},{"mediaType":"LOGO","mediaInfo":[{"mediaUrl":"https:\/\/picture.rumah123.com\/original\/r123\/primary_property\/project\/1697\/1594705208_5f0d45384b671ads_logo_1697.png","thumbnailUrl":"https:\/\/picture.rumah123.com\/original\/r123\/primary_property\/project\/1697\/1594705208_5f0d45384b671ads_logo_1697.png","formatUrl":"https:\/\/picture.rumah123.com\/original\/r123\/primary_property\/project\/1697\/1594705208_5f0d45384b671ads_logo_1697.png","order":0}]},{"mediaType":"COVER","mediaInfo":[{"mediaUrl":"https:\/\/picture.rumah123.com\/r123-images\/1080x720-fit\/customer\/4419385\/e89661bcdc54f553ab07f70ed8d4ae90.jpg","thumbnailUrl":"https:\/\/picture.rumah123.com\/r123-images\/250x160-fit\/customer\/4419385\/e89661bcdc54f553ab07f70ed8d4ae90.jpg","formatUrl":"https:\/\/picture.rumah123.com\/r123-images\/{width}x{height}-{scale}\/customer\/4419385\/e89661bcdc54f553ab07f70ed8d4ae90.jpg","order":0}]},{"mediaType":"SITEPLAN","mediaInfo":[{"mediaUrl":"https:\/\/picture.rumah123.com\/r123-images\/1080x720-fit\/customer\/4419385\/6caddea7d4a57ac92b2ba0e83afbe340.png","thumbnailUrl":"https:\/\/picture.rumah123.com\/r123-images\/250x160-fit\/customer\/4419385\/6caddea7d4a57ac92b2ba0e83afbe340.png","formatUrl":"https:\/\/picture.rumah123.com\/r123-images\/{width}x{height}-{scale}\/customer\/4419385\/6caddea7d4a57ac92b2ba0e83afbe340.png","order":0}]},{"mediaType":"FACILITY","mediaInfo":[{"mediaUrl":"https:\/\/pic.rumah123.com\/r123\/1080x720-fit\/","thumbnailUrl":"https:\/\/pic.rumah123.com\/r123\/250x160-fit\/","formatUrl":"https:\/\/pic.rumah123.com\/r123\/{width}x{height}-{scale}\/","order":1},{"mediaUrl":"https:\/\/pic.rumah123.com\/r123\/1080x720-fit\/","thumbnailUrl":"https:\/\/pic.rumah123.com\/r123\/250x160-fit\/","formatUrl":"https:\/\/pic.rumah123.com\/r123\/{width}x{height}-{scale}\/","order":2},{"mediaUrl":"https:\/\/pic.rumah123.com\/r123\/1080x720-fit\/","thumbnailUrl":"https:\/\/pic.rumah123.com\/r123\/250x160-fit\/","formatUrl":"https:\/\/pic.rumah123.com\/r123\/{width}x{height}-{scale}\/","order":3},{"mediaUrl":"https:\/\/pic.rumah123.com\/r123\/1080x720-fit\/","thumbnailUrl":"https:\/\/pic.rumah123.com\/r123\/250x160-fit\/","formatUrl":"https:\/\/pic.rumah123.com\/r123\/{width}x{height}-{scale}\/","order":4},{"mediaUrl":"https:\/\/pic.rumah123.com\/r123\/1080x720-fit\/","thumbnailUrl":"https:\/\/pic.rumah123.com\/r123\/250x160-fit\/","formatUrl":"https:\/\/pic.rumah123.com\/r123\/{width}x{height}-{scale}\/","order":5},{"mediaUrl":"https:\/\/pic.rumah123.com\/r123\/1080x720-fit\/","thumbnailUrl":"https:\/\/pic.rumah123.com\/r123\/250x160-fit\/","formatUrl":"https:\/\/pic.rumah123.com\/r123\/{width}x{height}-{scale}\/","order":6},{"mediaUrl":"https:\/\/pic.rumah123.com\/r123\/1080x720-fit\/","thumbnailUrl":"https:\/\/pic.rumah123.com\/r123\/250x160-fit\/","formatUrl":"https:\/\/pic.rumah123.com\/r123\/{width}x{height}-{scale}\/","order":7},{"mediaUrl":"https:\/\/pic.rumah123.com\/r123\/1080x720-fit\/","thumbnailUrl":"https:\/\/pic.rumah123.com\/r123\/250x160-fit\/","formatUrl":"https:\/\/pic.rumah123.com\/r123\/{width}x{height}-{scale}\/","order":8},{"mediaUrl":"https:\/\/pic.rumah123.com\/r123\/1080x720-fit\/","thumbnailUrl":"https:\/\/pic.rumah123.com\/r123\/250x160-fit\/","formatUrl":"https:\/\/pic.rumah123.com\/r123\/{width}x{height}-{scale}\/","order":9},{"mediaUrl":"https:\/\/pic.rumah123.com\/r123\/1080x720-fit\/","thumbnailUrl":"https:\/\/pic.rumah123.com\/r123\/250x160-fit\/","formatUrl":"https:\/\/pic.rumah123.com\/r123\/{width}x{height}-{scale}\/","order":10},{"mediaUrl":"https:\/\/pic.rumah123.com\/r123\/1080x720-fit\/","thumbnailUrl":"https:\/\/pic.rumah123.com\/r123\/250x160-fit\/","formatUrl":"https:\/\/pic.rumah123.com\/r123\/{width}x{height}-{scale}\/","order":11},{"mediaUrl":"https:\/\/pic.rumah123.com\/r123\/1080x720-fit\/","thumbnailUrl":"https:\/\/pic.rumah123.com\/r123\/250x160-fit\/","formatUrl":"https:\/\/pic.rumah123.com\/r123\/{width}x{height}-{scale}\/","order":12},{"mediaUrl":"https:\/\/pic.rumah123.com\/r123\/1080x720-fit\/","thumbnailUrl":"https:\/\/pic.rumah123.com\/r123\/250x160-fit\/","formatUrl":"https:\/\/pic.rumah123.com\/r123\/{width}x{height}-{scale}\/","order":13},{"mediaUrl":"https:\/\/pic.rumah123.com\/r123\/1080x720-fit\/","thumbnailUrl":"https:\/\/pic.rumah123.com\/r123\/250x160-fit\/","formatUrl":"https:\/\/pic.rumah123.com\/r123\/{width}x{height}-{scale}\/","order":14},{"mediaUrl":"https:\/\/pic.rumah123.com\/r123\/1080x720-fit\/","thumbnailUrl":"https:\/\/pic.rumah123.com\/r123\/250x160-fit\/","formatUrl":"https:\/\/pic.rumah123.com\/r123\/{width}x{height}-{scale}\/","order":15},{"mediaUrl":"https:\/\/pic.rumah123.com\/r123\/1080x720-fit\/","thumbnailUrl":"https:\/\/pic.rumah123.com\/r123\/250x160-fit\/","formatUrl":"https:\/\/pic.rumah123.com\/r123\/{width}x{height}-{scale}\/","order":16},{"mediaUrl":"https:\/\/pic.rumah123.com\/r123\/1080x720-fit\/","thumbnailUrl":"https:\/\/pic.rumah123.com\/r123\/250x160-fit\/","formatUrl":"https:\/\/pic.rumah123.com\/r123\/{width}x{height}-{scale}\/","order":17},{"mediaUrl":"https:\/\/pic.rumah123.com\/r123\/1080x720-fit\/","thumbnailUrl":"https:\/\/pic.rumah123.com\/r123\/250x160-fit\/","formatUrl":"https:\/\/pic.rumah123.com\/r123\/{width}x{height}-{scale}\/","order":18},{"mediaUrl":"https:\/\/pic.rumah123.com\/r123\/1080x720-fit\/","thumbnailUrl":"https:\/\/pic.rumah123.com\/r123\/250x160-fit\/","formatUrl":"https:\/\/pic.rumah123.com\/r123\/{width}x{height}-{scale}\/","order":19},{"mediaUrl":"https:\/\/pic.rumah123.com\/r123\/1080x720-fit\/","thumbnailUrl":"https:\/\/pic.rumah123.com\/r123\/250x160-fit\/","formatUrl":"https:\/\/pic.rumah123.com\/r123\/{width}x{height}-{scale}\/","order":20},{"mediaUrl":"https:\/\/pic.rumah123.com\/r123\/1080x720-fit\/","thumbnailUrl":"https:\/\/pic.rumah123.com\/r123\/250x160-fit\/","formatUrl":"https:\/\/pic.rumah123.com\/r123\/{width}x{height}-{scale}\/","order":21},{"mediaUrl":"https:\/\/pic.rumah123.com\/r123\/1080x720-fit\/","thumbnailUrl":"https:\/\/pic.rumah123.com\/r123\/250x160-fit\/","formatUrl":"https:\/\/pic.rumah123.com\/r123\/{width}x{height}-{scale}\/","order":22}]}],"primaryProject":{"subUnits":[{"name":"Arunagriya","properties":[{"title":"Svara Eka","description":"Pondasi : Tiang Pancang\nStruktur : Beton Bertulang\n\nAtap\nRangka Atap : Baja Ringan\nPenutup Atap\t: Genteng Beton\n\nPlafond\nMaterial Plafond : Gypsum Board; Finishing Cat\n\nDinding\nLuar & Dalam\t: Bata Plester Aci\n\nFinishing Dinding\nDinding Dalam : Cat Interior\nDinding Luar : Cat Exterior\nKM Utama & WC\t: Keramik\n\nFinishing Lantai\nRuang Utama\t: Homogeneous Tile\nKamar Utama\t: Homogeneous Tile\nTeras : Keramik\nKamar Mandi\t: Keramik\nCarport : Paving\n\nKusen, Pintu dan Jendela\nPintu Utama\t: Engineering Wood\nPintu Belakang : Kaca, Aluminum Frame \nPintu Kamar Tidur : Engineering Wood \nPintu Kamar Mandi : Engineering Wood \nJendela : Kaca, Aluminum Frame\n\nSanitary\nKamar Mandi\t: Toto\n\nInstalasi\nAir Bersih : PDAM\nDaya Listrik : 2.200 VA\nInstalasi AC : Ada (instalasi drain) Instalasi Water Heater\t: Ada\nInstalasi Roof Tank : Ada (Tanpa roof tank & ground water tank) Lain-Lain\t: Smarthome, jaringan telepon & TV","uuid":"4a504091-9588-4d54-aa18-8f40fd0e3700","medias":[{"mediaType":"COVER","mediaInfo":[{"mediaUrl":"https:\/\/picture.rumah123.com\/r123-images\/1080x720-fit\/customer\/4419385\/84cb78b1609b1e3272ae8bb71e2a077d.jpg","thumbnailUrl":"https:\/\/picture.rumah123.com\/r123-images\/250x160-fit\/customer\/4419385\/84cb78b1609b1e3272ae8bb71e2a077d.jpg","formatUrl":"https:\/\/picture.rumah123.com\/r123-images\/{width}x{height}-{scale}\/customer\/4419385\/84cb78b1609b1e3272ae8bb71e2a077d.jpg","order":0}]},{"mediaType":"REGULAR","mediaInfo":[{"mediaUrl":"https:\/\/picture.rumah123.com\/r123-images\/1080x720-fit\/customer\/4419385\/8e7ee3af5d2844e940bf9f9a6cc44b21.jpg","thumbnailUrl":"https:\/\/picture.rumah123.com\/r123-images\/250x160-fit\/customer\/4419385\/8e7ee3af5d2844e940bf9f9a6cc44b21.jpg","formatUrl":"https:\/\/picture.rumah123.com\/r123-images\/{width}x{height}-{scale}\/customer\/4419385\/8e7ee3af5d2844e940bf9f9a6cc44b21.jpg","order":1}]},{"mediaType":"SITEPLAN","mediaInfo":[{"mediaUrl":"https:\/\/picture.rumah123.com\/r123-images\/1080x720-fit\/customer\/4419385\/8646895c7816cc726feb92082f7d984f.png","thumbnailUrl":"https:\/\/picture.rumah123.com\/r123-images\/250x160-fit\/customer\/4419385\/8646895c7816cc726feb92082f7d984f.png","formatUrl":"https:\/\/picture.rumah123.com\/r123-images\/{width}x{height}-{scale}\/customer\/4419385\/8646895c7816cc726feb92082f7d984f.png","order":0}]}],"attributes":{"landSize":{"name":"landSize","label":"Luas Tanah","value":"75","formattedValue":"75 m\u00b2"},"buildingSize":{"name":"buildingSize","label":"Luas Bangunan","value":"60","formattedValue":"60 m\u00b2"},"bedrooms":{"name":"bedrooms","label":"Kamar","value":"3","formattedValue":"3"},"bathrooms":{"name":"bathrooms","label":"Kamar Mandi","value":"2","formattedValue":"2"},"carports":{"name":"carports","label":"Carport","value":"1","formattedValue":"1"}},"propertyType":{"name":"propertyType","label":"Tipe Properti","value":"0","formattedValue":"Rumah"},"price":{"minValue":1300000000,"maxValue":1300000000,"currencyType":360,"display":"Rp 1,3 Miliar","offer":1300000000,"unitType":0,"subDisplay":""},"location":{"uuid":"","level":0,"name":"","locationType":0,"text":""},"subtitle":"","url":"\/perumahan-baru\/properti\/bandung\/podomoro-park-bandung\/svara-eka\/hos0101090\/"}]},{"name":"Millenial Home","properties":[{"title":"Hanami","description":"","uuid":"36381000-b878-490b-a6e1-7b6f4eaf660c","medias":[{"mediaType":"COVER","mediaInfo":[{"mediaUrl":"https:\/\/picture.rumah123.com\/r123-images\/1080x720-fit\/customer\/4419385\/fe6a714daa505e6295991478676448c5.png","thumbnailUrl":"https:\/\/picture.rumah123.com\/r123-images\/250x160-fit\/customer\/4419385\/fe6a714daa505e6295991478676448c5.png","formatUrl":"https:\/\/picture.rumah123.com\/r123-images\/{width}x{height}-{scale}\/customer\/4419385\/fe6a714daa505e6295991478676448c5.png","order":0}]},{"mediaType":"REGULAR","mediaInfo":[{"mediaUrl":"https:\/\/picture.rumah123.com\/r123-images\/1080x720-fit\/customer\/1899233\/b5fb4f20c113442e541a45bcecda6b9d.jpg","thumbnailUrl":"https:\/\/picture.rumah123.com\/r123-images\/250x160-fit\/customer\/1899233\/b5fb4f20c113442e541a45bcecda6b9d.jpg","formatUrl":"https:\/\/picture.rumah123.com\/r123-images\/{width}x{height}-{scale}\/customer\/1899233\/b5fb4f20c113442e541a45bcecda6b9d.jpg","order":1},{"mediaUrl":"https:\/\/picture.rumah123.com\/r123-images\/1080x720-fit\/customer\/1899233\/0eef0aaba48fda8bab9146447d2bb74e.jpg","thumbnailUrl":"https:\/\/picture.rumah123.com\/r123-images\/250x160-fit\/customer\/1899233\/0eef0aaba48fda8bab9146447d2bb74e.jpg","formatUrl":"https:\/\/picture.rumah123.com\/r123-images\/{width}x{height}-{scale}\/customer\/1899233\/0eef0aaba48fda8bab9146447d2bb74e.jpg","order":2},{"mediaUrl":"https:\/\/picture.rumah123.com\/r123-images\/1080x720-fit\/customer\/1899233\/07c91aa0cf9c0590bdce770bfc487a84.jpg","thumbnailUrl":"https:\/\/picture.rumah123.com\/r123-images\/250x160-fit\/customer\/1899233\/07c91aa0cf9c0590bdce770bfc487a84.jpg","formatUrl":"https:\/\/picture.rumah123.com\/r123-images\/{width}x{height}-{scale}\/customer\/1899233\/07c91aa0cf9c0590bdce770bfc487a84.jpg","order":3},{"mediaUrl":"https:\/\/picture.rumah123.com\/r123-images\/1080x720-fit\/customer\/1899233\/6f2dfaeeada7568679aa60b183ad20c9.jpg","thumbnailUrl":"https:\/\/picture.rumah123.com\/r123-images\/250x160-fit\/customer\/1899233\/6f2dfaeeada7568679aa60b183ad20c9.jpg","formatUrl":"https:\/\/picture.rumah123.com\/r123-images\/{width}x{height}-{scale}\/customer\/1899233\/6f2dfaeeada7568679aa60b183ad20c9.jpg","order":4},{"mediaUrl":"https:\/\/picture.rumah123.com\/r123-images\/1080x720-fit\/customer\/1899233\/82c4558ab0698c69643ba6618c4da6b4.jpg","thumbnailUrl":"https:\/\/picture.rumah123.com\/r123-images\/250x160-fit\/customer\/1899233\/82c4558ab0698c69643ba6618c4da6b4.jpg","formatUrl":"https:\/\/picture.rumah123.com\/r123-images\/{width}x{height}-{scale}\/customer\/1899233\/82c4558ab0698c69643ba6618c4da6b4.jpg","order":5},{"mediaUrl":"https:\/\/picture.rumah123.com\/r123-images\/1080x720-fit\/customer\/1899233\/c3db8aa4ad825d2bb2810e077c4663b9.jpg","thumbnailUrl":"https:\/\/picture.rumah123.com\/r123-images\/250x160-fit\/customer\/1899233\/c3db8aa4ad825d2bb2810e077c4663b9.jpg","formatUrl":"https:\/\/picture.rumah123.com\/r123-images\/{width}x{height}-{scale}\/customer\/1899233\/c3db8aa4ad825d2bb2810e077c4663b9.jpg","order":6},{"mediaUrl":"https:\/\/picture.rumah123.com\/r123-images\/1080x720-fit\/customer\/1899233\/b3af672022b555a1a2308bca5215dea6.jpg","thumbnailUrl":"https:\/\/picture.rumah123.com\/r123-images\/250x160-fit\/customer\/1899233\/b3af672022b555a1a2308bca5215dea6.jpg","formatUrl":"https:\/\/picture.rumah123.com\/r123-images\/{width}x{height}-{scale}\/customer\/1899233\/b3af672022b555a1a2308bca5215dea6.jpg","order":7},{"mediaUrl":"https:\/\/picture.rumah123.com\/r123-images\/1080x720-fit\/customer\/1899233\/28f0893b9ca31440fb758b1dc69271ec.png","thumbnailUrl":"https:\/\/picture.rumah123.com\/r123-images\/250x160-fit\/customer\/1899233\/28f0893b9ca31440fb758b1dc69271ec.png","formatUrl":"https:\/\/picture.rumah123.com\/r123-images\/{width}x{height}-{scale}\/customer\/1899233\/28f0893b9ca31440fb758b1dc69271ec.png","order":8},{"mediaUrl":"https:\/\/picture.rumah123.com\/r123-images\/1080x720-fit\/customer\/1899233\/9b2176928eb1fad433a3004ead3571ee.png","thumbnailUrl":"https:\/\/picture.rumah123.com\/r123-images\/250x160-fit\/customer\/1899233\/9b2176928eb1fad433a3004ead3571ee.png","formatUrl":"https:\/\/picture.rumah123.com\/r123-images\/{width}x{height}-{scale}\/customer\/1899233\/9b2176928eb1fad433a3004ead3571ee.png","order":9},{"mediaUrl":"https:\/\/picture.rumah123.com\/r123-images\/1080x720-fit\/customer\/1899233\/a8a7ac63c6a9c33f0af0ba95b5b01729.jpg","thumbnailUrl":"https:\/\/picture.rumah123.com\/r123-images\/250x160-fit\/customer\/1899233\/a8a7ac63c6a9c33f0af0ba95b5b01729.jpg","formatUrl":"https:\/\/picture.rumah123.com\/r123-images\/{width}x{height}-{scale}\/customer\/1899233\/a8a7ac63c6a9c33f0af0ba95b5b01729.jpg","order":10}]},{"mediaType":"SITEPLAN","mediaInfo":[{"mediaUrl":"https:\/\/picture.rumah123.com\/r123-images\/1080x720-fit\/customer\/1899233\/0296e489f2b89907f6154b82256aa4a2.jpg","thumbnailUrl":"https:\/\/picture.rumah123.com\/r123-images\/250x160-fit\/customer\/1899233\/0296e489f2b89907f6154b82256aa4a2.jpg","formatUrl":"https:\/\/picture.rumah123.com\/r123-images\/{width}x{height}-{scale}\/customer\/1899233\/0296e489f2b89907f6154b82256aa4a2.jpg","order":0}]}],"attributes":{"landSize":{"name":"landSize","label":"Luas Tanah","value":"70","formattedValue":"70 m\u00b2"},"buildingSize":{"name":"buildingSize","label":"Luas Bangunan","value":"31","formattedValue":"31 m\u00b2"},"bedrooms":{"name":"bedrooms","label":"Kamar","value":"2","formattedValue":"2"},"bathrooms":{"name":"bathrooms","label":"Kamar Mandi","value":"1","formattedValue":"1"},"carports":null},"propertyType":{"name":"propertyType","label":"Tipe Properti","value":"0","formattedValue":"Rumah"},"price":{"minValue":900000000,"maxValue":900000000,"currencyType":360,"display":"Rp 900 Juta","offer":900000000,"unitType":0,"subDisplay":""},"location":{"uuid":"","level":0,"name":"","locationType":0,"text":""},"subtitle":"","url":"\/perumahan-baru\/properti\/bandung\/podomoro-park-bandung\/hanami\/hos18322\/"},{"title":"Hinoki","description":"","uuid":"3034a833-a1ea-478b-94e2-d58203d78576","medias":[{"mediaType":"SITEPLAN","mediaInfo":[{"mediaUrl":"https:\/\/picture.rumah123.com\/r123-images\/1080x720-fit\/customer\/1899233\/46d344c4c2d6129514c97f1e7ec4dd10.jpg","thumbnailUrl":"https:\/\/picture.rumah123.com\/r123-images\/250x160-fit\/customer\/1899233\/46d344c4c2d6129514c97f1e7ec4dd10.jpg","formatUrl":"https:\/\/picture.rumah123.com\/r123-images\/{width}x{height}-{scale}\/customer\/1899233\/46d344c4c2d6129514c97f1e7ec4dd10.jpg","order":0}]},{"mediaType":"COVER","mediaInfo":[{"mediaUrl":"https:\/\/picture.rumah123.com\/r123-images\/1080x720-fit\/customer\/4419385\/fe6a714daa505e6295991478676448c5.png","thumbnailUrl":"https:\/\/picture.rumah123.com\/r123-images\/250x160-fit\/customer\/4419385\/fe6a714daa505e6295991478676448c5.png","formatUrl":"https:\/\/picture.rumah123.com\/r123-images\/{width}x{height}-{scale}\/customer\/4419385\/fe6a714daa505e6295991478676448c5.png","order":0}]},{"mediaType":"REGULAR","mediaInfo":[{"mediaUrl":"https:\/\/picture.rumah123.com\/r123-images\/1080x720-fit\/customer\/1899233\/b5fb4f20c113442e541a45bcecda6b9d.jpg","thumbnailUrl":"https:\/\/picture.rumah123.com\/r123-images\/250x160-fit\/customer\/1899233\/b5fb4f20c113442e541a45bcecda6b9d.jpg","formatUrl":"https:\/\/picture.rumah123.com\/r123-images\/{width}x{height}-{scale}\/customer\/1899233\/b5fb4f20c113442e541a45bcecda6b9d.jpg","order":1},{"mediaUrl":"https:\/\/picture.rumah123.com\/r123-images\/1080x720-fit\/customer\/1899233\/0eef0aaba48fda8bab9146447d2bb74e.jpg","thumbnailUrl":"https:\/\/picture.rumah123.com\/r123-images\/250x160-fit\/customer\/1899233\/0eef0aaba48fda8bab9146447d2bb74e.jpg","formatUrl":"https:\/\/picture.rumah123.com\/r123-images\/{width}x{height}-{scale}\/customer\/1899233\/0eef0aaba48fda8bab9146447d2bb74e.jpg","order":2},{"mediaUrl":"https:\/\/picture.rumah123.com\/r123-images\/1080x720-fit\/customer\/1899233\/066fc8f5635aa60277fb540c112d44fa.png","thumbnailUrl":"https:\/\/picture.rumah123.com\/r123-images\/250x160-fit\/customer\/1899233\/066fc8f5635aa60277fb540c112d44fa.png","formatUrl":"https:\/\/picture.rumah123.com\/r123-images\/{width}x{height}-{scale}\/customer\/1899233\/066fc8f5635aa60277fb540c112d44fa.png","order":3},{"mediaUrl":"https:\/\/picture.rumah123.com\/r123-images\/1080x720-fit\/customer\/1899233\/96a14cca7f402053122d6638913e49b6.png","thumbnailUrl":"https:\/\/picture.rumah123.com\/r123-images\/250x160-fit\/customer\/1899233\/96a14cca7f402053122d6638913e49b6.png","formatUrl":"https:\/\/picture.rumah123.com\/r123-images\/{width}x{height}-{scale}\/customer\/1899233\/96a14cca7f402053122d6638913e49b6.png","order":4},{"mediaUrl":"https:\/\/picture.rumah123.com\/r123-images\/1080x720-fit\/customer\/1899233\/8657e4b4c0d4751c2fd8cb5f3cdec5a1.png","thumbnailUrl":"https:\/\/picture.rumah123.com\/r123-images\/250x160-fit\/customer\/1899233\/8657e4b4c0d4751c2fd8cb5f3cdec5a1.png","formatUrl":"https:\/\/picture.rumah123.com\/r123-images\/{width}x{height}-{scale}\/customer\/1899233\/8657e4b4c0d4751c2fd8cb5f3cdec5a1.png","order":5},{"mediaUrl":"https:\/\/picture.rumah123.com\/r123-images\/1080x720-fit\/customer\/1899233\/8a085e4b840bb0846d07601402dda3ff.jpg","thumbnailUrl":"https:\/\/picture.rumah123.com\/r123-images\/250x160-fit\/customer\/1899233\/8a085e4b840bb0846d07601402dda3ff.jpg","formatUrl":"https:\/\/picture.rumah123.com\/r123-images\/{width}x{height}-{scale}\/customer\/1899233\/8a085e4b840bb0846d07601402dda3ff.jpg","order":6},{"mediaUrl":"https:\/\/picture.rumah123.com\/r123-images\/1080x720-fit\/customer\/1899233\/8182a74202d5addbf9a1e97a534dc715.png","thumbnailUrl":"https:\/\/picture.rumah123.com\/r123-images\/250x160-fit\/customer\/1899233\/8182a74202d5addbf9a1e97a534dc715.png","formatUrl":"https:\/\/picture.rumah123.com\/r123-images\/{width}x{height}-{scale}\/customer\/1899233\/8182a74202d5addbf9a1e97a534dc715.png","order":7},{"mediaUrl":"https:\/\/picture.rumah123.com\/r123-images\/1080x720-fit\/customer\/1899233\/326579ebbf2d67a42909835876917389.png","thumbnailUrl":"https:\/\/picture.rumah123.com\/r123-images\/250x160-fit\/customer\/1899233\/326579ebbf2d67a42909835876917389.png","formatUrl":"https:\/\/picture.rumah123.com\/r123-images\/{width}x{height}-{scale}\/customer\/1899233\/326579ebbf2d67a42909835876917389.png","order":8},{"mediaUrl":"https:\/\/picture.rumah123.com\/r123-images\/1080x720-fit\/customer\/1899233\/054dcd9c19f1a1e5013d6afabab44e80.png","thumbnailUrl":"https:\/\/picture.rumah123.com\/r123-images\/250x160-fit\/customer\/1899233\/054dcd9c19f1a1e5013d6afabab44e80.png","formatUrl":"https:\/\/picture.rumah123.com\/r123-images\/{width}x{height}-{scale}\/customer\/1899233\/054dcd9c19f1a1e5013d6afabab44e80.png","order":9},{"mediaUrl":"https:\/\/picture.rumah123.com\/r123-images\/1080x720-fit\/customer\/1899233\/f1d0c76f98e231c6e415be81280ef0a7.png","thumbnailUrl":"https:\/\/picture.rumah123.com\/r123-images\/250x160-fit\/customer\/1899233\/f1d0c76f98e231c6e415be81280ef0a7.png","formatUrl":"https:\/\/picture.rumah123.com\/r123-images\/{width}x{height}-{scale}\/customer\/1899233\/f1d0c76f98e231c6e415be81280ef0a7.png","order":10}]}],"attributes":{"landSize":{"name":"landSize","label":"Luas Tanah","value":"60","formattedValue":"60 m\u00b2"},"buildingSize":{"name":"buildingSize","label":"Luas Bangunan","value":"31","formattedValue":"31 m\u00b2"},"bedrooms":{"name":"bedrooms","label":"Kamar","value":"2","formattedValue":"2"},"bathrooms":{"name":"bathrooms","label":"Kamar Mandi","value":"1","formattedValue":"1"},"carports":null},"propertyType":{"name":"propertyType","label":"Tipe Properti","value":"0","formattedValue":"Rumah"},"price":{"minValue":900000000,"maxValue":900000000,"currencyType":360,"display":"Rp 900 Juta","offer":900000000,"unitType":0,"subDisplay":""},"location":{"uuid":"","level":0,"name":"","locationType":0,"text":""},"subtitle":"","url":"\/perumahan-baru\/properti\/bandung\/podomoro-park-bandung\/hinoki\/hos28323\/"}]},{"name":"Wangsagriya","properties":[{"title":"Arana Eka","description":"[\"Pondasi : Tiang pancang \",\"Struktur : Beton Bertulang \",\"Dinding luar & dalam : bata plester aci \",\"Lantai : Kamar Utama & Ruang Utama: Homogeneous Tile, Carport : Keramik \"]","uuid":"c72d60cb-2c27-4030-acfc-0847af451650","medias":[{"mediaType":"COVER","mediaInfo":[{"mediaUrl":"https:\/\/picture.rumah123.com\/r123-images\/1080x720-fit\/customer\/1899233\/13a04a85704ed934a1d2482d552a59e6.jpg","thumbnailUrl":"https:\/\/picture.rumah123.com\/r123-images\/250x160-fit\/customer\/1899233\/13a04a85704ed934a1d2482d552a59e6.jpg","formatUrl":"https:\/\/picture.rumah123.com\/r123-images\/{width}x{height}-{scale}\/customer\/1899233\/13a04a85704ed934a1d2482d552a59e6.jpg","order":0}]},{"mediaType":"REGULAR","mediaInfo":[{"mediaUrl":"https:\/\/picture.rumah123.com\/r123-images\/1080x720-fit\/customer\/1899233\/f5f97cac2f88418c96f2747fefbb9779.jpg","thumbnailUrl":"https:\/\/picture.rumah123.com\/r123-images\/250x160-fit\/customer\/1899233\/f5f97cac2f88418c96f2747fefbb9779.jpg","formatUrl":"https:\/\/picture.rumah123.com\/r123-images\/{width}x{height}-{scale}\/customer\/1899233\/f5f97cac2f88418c96f2747fefbb9779.jpg","order":1},{"mediaUrl":"https:\/\/picture.rumah123.com\/r123-images\/1080x720-fit\/customer\/1899233\/6f230a309cfe25976cd5957f85ebd75f.jpg","thumbnailUrl":"https:\/\/picture.rumah123.com\/r123-images\/250x160-fit\/customer\/1899233\/6f230a309cfe25976cd5957f85ebd75f.jpg","formatUrl":"https:\/\/picture.rumah123.com\/r123-images\/{width}x{height}-{scale}\/customer\/1899233\/6f230a309cfe25976cd5957f85ebd75f.jpg","order":2},{"mediaUrl":"https:\/\/picture.rumah123.com\/r123-images\/1080x720-fit\/customer\/1899233\/7b5e3af6258f22b186dbbb91c9b2bb0d.jpg","thumbnailUrl":"https:\/\/picture.rumah123.com\/r123-images\/250x160-fit\/customer\/1899233\/7b5e3af6258f22b186dbbb91c9b2bb0d.jpg","formatUrl":"https:\/\/picture.rumah123.com\/r123-images\/{width}x{height}-{scale}\/customer\/1899233\/7b5e3af6258f22b186dbbb91c9b2bb0d.jpg","order":3},{"mediaUrl":"https:\/\/picture.rumah123.com\/r123-images\/1080x720-fit\/customer\/1899233\/d0ceaa7d97ae6aaad8b12bc8eaa8b16c.jpg","thumbnailUrl":"https:\/\/picture.rumah123.com\/r123-images\/250x160-fit\/customer\/1899233\/d0ceaa7d97ae6aaad8b12bc8eaa8b16c.jpg","formatUrl":"https:\/\/picture.rumah123.com\/r123-images\/{width}x{height}-{scale}\/customer\/1899233\/d0ceaa7d97ae6aaad8b12bc8eaa8b16c.jpg","order":4},{"mediaUrl":"https:\/\/picture.rumah123.com\/r123-images\/1080x720-fit\/customer\/1899233\/fa8bc7a4ca053c318757d1d64e2d3beb.jpg","thumbnailUrl":"https:\/\/picture.rumah123.com\/r123-images\/250x160-fit\/customer\/1899233\/fa8bc7a4ca053c318757d1d64e2d3beb.jpg","formatUrl":"https:\/\/picture.rumah123.com\/r123-images\/{width}x{height}-{scale}\/customer\/1899233\/fa8bc7a4ca053c318757d1d64e2d3beb.jpg","order":5}]},{"mediaType":"SITEPLAN","mediaInfo":[{"mediaUrl":"https:\/\/pic.rumah123.com\/r123\/1080x720-fit\/primary_property\/project\/1697\/1715151125_663b21154e15bfloorplan_8512.jpg","thumbnailUrl":"https:\/\/pic.rumah123.com\/r123\/250x160-fit\/primary_property\/project\/1697\/1715151125_663b21154e15bfloorplan_8512.jpg","formatUrl":"https:\/\/pic.rumah123.com\/r123\/{width}x{height}-{scale}\/primary_property\/project\/1697\/1715151125_663b21154e15bfloorplan_8512.jpg","order":0}]}],"attributes":{"landSize":{"name":"landSize","label":"Luas Tanah","value":"82","formattedValue":"82 m\u00b2"},"buildingSize":{"name":"buildingSize","label":"Luas Bangunan","value":"72","formattedValue":"72 m\u00b2"},"bedrooms":{"name":"bedrooms","label":"Kamar","value":"2","formattedValue":"2"},"bathrooms":{"name":"bathrooms","label":"Kamar Mandi","value":"1","formattedValue":"1"},"carports":null},"propertyType":{"name":"propertyType","label":"Tipe Properti","value":"0","formattedValue":"Rumah"},"price":{"minValue":1700000000,"maxValue":1700000000,"currencyType":360,"display":"Rp 1,7 Miliar","offer":1700000000,"unitType":0,"subDisplay":""},"location":{"uuid":"","level":0,"name":"","locationType":0,"text":""},"subtitle":"","url":"\/perumahan-baru\/properti\/bandung\/podomoro-park-bandung\/arana-eka\/hos18512\/"},{"title":"Grand Calya","description":"[\"Pondasi : Tiang pancang \",\"Struktur : Beton Bertulang \",\"Dinding luar & dalam : bata plester aci \",\"Lantai : Kamar Utama & Ruang Utama: Homogeneous Tile, Carport : Keramik \"]","uuid":"9cd22e4a-c79d-45b6-a142-0c69fe7c4f91","medias":[{"mediaType":"SITEPLAN","mediaInfo":[{"mediaUrl":"https:\/\/pic.rumah123.com\/r123\/1080x720-fit\/primary_property\/project\/1697\/1715151560_663b22c8db496floorplan_1715151560.jpg","thumbnailUrl":"https:\/\/pic.rumah123.com\/r123\/250x160-fit\/primary_property\/project\/1697\/1715151560_663b22c8db496floorplan_1715151560.jpg","formatUrl":"https:\/\/pic.rumah123.com\/r123\/{width}x{height}-{scale}\/primary_property\/project\/1697\/1715151560_663b22c8db496floorplan_1715151560.jpg","order":0}]},{"mediaType":"COVER","mediaInfo":[{"mediaUrl":"https:\/\/picture.rumah123.com\/r123-images\/1080x720-fit\/customer\/1899233\/13a04a85704ed934a1d2482d552a59e6.jpg","thumbnailUrl":"https:\/\/picture.rumah123.com\/r123-images\/250x160-fit\/customer\/1899233\/13a04a85704ed934a1d2482d552a59e6.jpg","formatUrl":"https:\/\/picture.rumah123.com\/r123-images\/{width}x{height}-{scale}\/customer\/1899233\/13a04a85704ed934a1d2482d552a59e6.jpg","order":0}]},{"mediaType":"REGULAR","mediaInfo":[{"mediaUrl":"https:\/\/picture.rumah123.com\/r123-images\/1080x720-fit\/customer\/1899233\/f5f97cac2f88418c96f2747fefbb9779.jpg","thumbnailUrl":"https:\/\/picture.rumah123.com\/r123-images\/250x160-fit\/customer\/1899233\/f5f97cac2f88418c96f2747fefbb9779.jpg","formatUrl":"https:\/\/picture.rumah123.com\/r123-images\/{width}x{height}-{scale}\/customer\/1899233\/f5f97cac2f88418c96f2747fefbb9779.jpg","order":1},{"mediaUrl":"https:\/\/pic.rumah123.com\/r123\/1080x720-fit\/primary_property\/project\/1697\/1715151617_1715151617663b230119dcbads_images_8515.jpg","thumbnailUrl":"https:\/\/pic.rumah123.com\/r123\/250x160-fit\/primary_property\/project\/1697\/1715151617_1715151617663b230119dcbads_images_8515.jpg","formatUrl":"https:\/\/pic.rumah123.com\/r123\/{width}x{height}-{scale}\/primary_property\/project\/1697\/1715151617_1715151617663b230119dcbads_images_8515.jpg","order":2},{"mediaUrl":"https:\/\/picture.rumah123.com\/r123-images\/1080x720-fit\/customer\/1899233\/6f230a309cfe25976cd5957f85ebd75f.jpg","thumbnailUrl":"https:\/\/picture.rumah123.com\/r123-images\/250x160-fit\/customer\/1899233\/6f230a309cfe25976cd5957f85ebd75f.jpg","formatUrl":"https:\/\/picture.rumah123.com\/r123-images\/{width}x{height}-{scale}\/customer\/1899233\/6f230a309cfe25976cd5957f85ebd75f.jpg","order":4},{"mediaUrl":"https:\/\/picture.rumah123.com\/r123-images\/1080x720-fit\/customer\/1899233\/7b5e3af6258f22b186dbbb91c9b2bb0d.jpg","thumbnailUrl":"https:\/\/picture.rumah123.com\/r123-images\/250x160-fit\/customer\/1899233\/7b5e3af6258f22b186dbbb91c9b2bb0d.jpg","formatUrl":"https:\/\/picture.rumah123.com\/r123-images\/{width}x{height}-{scale}\/customer\/1899233\/7b5e3af6258f22b186dbbb91c9b2bb0d.jpg","order":5},{"mediaUrl":"https:\/\/picture.rumah123.com\/r123-images\/1080x720-fit\/customer\/1899233\/d0ceaa7d97ae6aaad8b12bc8eaa8b16c.jpg","thumbnailUrl":"https:\/\/picture.rumah123.com\/r123-images\/250x160-fit\/customer\/1899233\/d0ceaa7d97ae6aaad8b12bc8eaa8b16c.jpg","formatUrl":"https:\/\/picture.rumah123.com\/r123-images\/{width}x{height}-{scale}\/customer\/1899233\/d0ceaa7d97ae6aaad8b12bc8eaa8b16c.jpg","order":6},{"mediaUrl":"https:\/\/picture.rumah123.com\/r123-images\/1080x720-fit\/customer\/1899233\/fa8bc7a4ca053c318757d1d64e2d3beb.jpg","thumbnailUrl":"https:\/\/picture.rumah123.com\/r123-images\/250x160-fit\/customer\/1899233\/fa8bc7a4ca053c318757d1d64e2d3beb.jpg","formatUrl":"https:\/\/picture.rumah123.com\/r123-images\/{width}x{height}-{scale}\/customer\/1899233\/fa8bc7a4ca053c318757d1d64e2d3beb.jpg","order":7}]}],"attributes":{"landSize":{"name":"landSize","label":"Luas Tanah","value":"130","formattedValue":"130 m\u00b2"},"buildingSize":{"name":"buildingSize","label":"Luas Bangunan","value":"126","formattedValue":"126 m\u00b2"},"bedrooms":{"name":"bedrooms","label":"Kamar","value":"3","formattedValue":"3"},"bathrooms":{"name":"bathrooms","label":"Kamar Mandi","value":"3","formattedValue":"3"},"carports":null},"propertyType":{"name":"propertyType","label":"Tipe Properti","value":"0","formattedValue":"Rumah"},"price":{"minValue":2900000000,"maxValue":2900000000,"currencyType":360,"display":"Rp 2,9 Miliar","offer":2900000000,"unitType":0,"subDisplay":""},"location":{"uuid":"","level":0,"name":"","locationType":0,"text":""},"subtitle":"","url":"\/perumahan-baru\/properti\/bandung\/podomoro-park-bandung\/grand-calya\/hos38515\/"}]},{"name":"Brahmapuri","properties":[{"title":"Tanaya","description":"[\"Pondasi : Tiang Pancang \",\"Struktur : Beton Bertulang \",\"Dinding : Bata Plester Aci \",\"Penutup Atap : Genteng Bitumen \",\"Daya Listirk : 4400 VA\"]","uuid":"d5eaa77a-8050-4d6b-b183-2fcdb25e470f","medias":[{"mediaType":"COVER","mediaInfo":[{"mediaUrl":"https:\/\/pic.rumah123.com\/r123\/1080x720-fit\/primary_property\/project\/1697\/1623052261_162305226160bdcfe5c7c86ads_images_5132.jpg","thumbnailUrl":"https:\/\/pic.rumah123.com\/r123\/250x160-fit\/primary_property\/project\/1697\/1623052261_162305226160bdcfe5c7c86ads_images_5132.jpg","formatUrl":"https:\/\/pic.rumah123.com\/r123\/{width}x{height}-{scale}\/primary_property\/project\/1697\/1623052261_162305226160bdcfe5c7c86ads_images_5132.jpg","order":0}]},{"mediaType":"REGULAR","mediaInfo":[{"mediaUrl":"https:\/\/pic.rumah123.com\/r123\/1080x720-fit\/primary_property\/project\/1697\/1707012026_170701202665beefba9564eads_images_5132.jpg","thumbnailUrl":"https:\/\/pic.rumah123.com\/r123\/250x160-fit\/primary_property\/project\/1697\/1707012026_170701202665beefba9564eads_images_5132.jpg","formatUrl":"https:\/\/pic.rumah123.com\/r123\/{width}x{height}-{scale}\/primary_property\/project\/1697\/1707012026_170701202665beefba9564eads_images_5132.jpg","order":1},{"mediaUrl":"https:\/\/pic.rumah123.com\/r123\/1080x720-fit\/primary_property\/project\/1697\/1707012032_170701203265beefc03837eads_images_5132.jpg","thumbnailUrl":"https:\/\/pic.rumah123.com\/r123\/250x160-fit\/primary_property\/project\/1697\/1707012032_170701203265beefc03837eads_images_5132.jpg","formatUrl":"https:\/\/pic.rumah123.com\/r123\/{width}x{height}-{scale}\/primary_property\/project\/1697\/1707012032_170701203265beefc03837eads_images_5132.jpg","order":2},{"mediaUrl":"https:\/\/picture.rumah123.com\/r123-images\/1080x720-fit\/customer\/1899233\/bf44172a1b9c0a1014609daa081e65cf.png","thumbnailUrl":"https:\/\/picture.rumah123.com\/r123-images\/250x160-fit\/customer\/1899233\/bf44172a1b9c0a1014609daa081e65cf.png","formatUrl":"https:\/\/picture.rumah123.com\/r123-images\/{width}x{height}-{scale}\/customer\/1899233\/bf44172a1b9c0a1014609daa081e65cf.png","order":3},{"mediaUrl":"https:\/\/picture.rumah123.com\/r123-images\/1080x720-fit\/customer\/1899233\/162da0f817fbb0bbc524c156a0cc273d.png","thumbnailUrl":"https:\/\/picture.rumah123.com\/r123-images\/250x160-fit\/customer\/1899233\/162da0f817fbb0bbc524c156a0cc273d.png","formatUrl":"https:\/\/picture.rumah123.com\/r123-images\/{width}x{height}-{scale}\/customer\/1899233\/162da0f817fbb0bbc524c156a0cc273d.png","order":4},{"mediaUrl":"https:\/\/picture.rumah123.com\/r123-images\/1080x720-fit\/customer\/1899233\/880c1bc5160225801d1c29a86ee01520.png","thumbnailUrl":"https:\/\/picture.rumah123.com\/r123-images\/250x160-fit\/customer\/1899233\/880c1bc5160225801d1c29a86ee01520.png","formatUrl":"https:\/\/picture.rumah123.com\/r123-images\/{width}x{height}-{scale}\/customer\/1899233\/880c1bc5160225801d1c29a86ee01520.png","order":5},{"mediaUrl":"https:\/\/picture.rumah123.com\/r123-images\/1080x720-fit\/customer\/1899233\/87113a8506db3eb6c7ddfa6d861b926a.png","thumbnailUrl":"https:\/\/picture.rumah123.com\/r123-images\/250x160-fit\/customer\/1899233\/87113a8506db3eb6c7ddfa6d861b926a.png","formatUrl":"https:\/\/picture.rumah123.com\/r123-images\/{width}x{height}-{scale}\/customer\/1899233\/87113a8506db3eb6c7ddfa6d861b926a.png","order":6},{"mediaUrl":"https:\/\/picture.rumah123.com\/r123-images\/1080x720-fit\/customer\/1899233\/689e62e10868c6fcd76237a73501762d.png","thumbnailUrl":"https:\/\/picture.rumah123.com\/r123-images\/250x160-fit\/customer\/1899233\/689e62e10868c6fcd76237a73501762d.png","formatUrl":"https:\/\/picture.rumah123.com\/r123-images\/{width}x{height}-{scale}\/customer\/1899233\/689e62e10868c6fcd76237a73501762d.png","order":7},{"mediaUrl":"https:\/\/picture.rumah123.com\/r123-images\/1080x720-fit\/customer\/1899233\/d7967f17a497e7ad4ff7ff7d3dd635c2.jpg","thumbnailUrl":"https:\/\/picture.rumah123.com\/r123-images\/250x160-fit\/customer\/1899233\/d7967f17a497e7ad4ff7ff7d3dd635c2.jpg","formatUrl":"https:\/\/picture.rumah123.com\/r123-images\/{width}x{height}-{scale}\/customer\/1899233\/d7967f17a497e7ad4ff7ff7d3dd635c2.jpg","order":8}]},{"mediaType":"SITEPLAN","mediaInfo":[{"mediaUrl":"https:\/\/pic.rumah123.com\/r123\/1080x720-fit\/primary_property\/project\/1697\/1623052033_60bdcf0189736floorplan_5132.jpg","thumbnailUrl":"https:\/\/pic.rumah123.com\/r123\/250x160-fit\/primary_property\/project\/1697\/1623052033_60bdcf0189736floorplan_5132.jpg","formatUrl":"https:\/\/pic.rumah123.com\/r123\/{width}x{height}-{scale}\/primary_property\/project\/1697\/1623052033_60bdcf0189736floorplan_5132.jpg","order":0}]}],"attributes":{"landSize":{"name":"landSize","label":"Luas Tanah","value":"140","formattedValue":"140 m\u00b2"},"buildingSize":{"name":"buildingSize","label":"Luas Bangunan","value":"147","formattedValue":"147 m\u00b2"},"bedrooms":{"name":"bedrooms","label":"Kamar","value":"4","formattedValue":"4"},"bathrooms":{"name":"bathrooms","label":"Kamar Mandi","value":"3","formattedValue":"3"},"carports":null},"propertyType":{"name":"propertyType","label":"Tipe Properti","value":"0","formattedValue":"Rumah"},"price":{"minValue":4000000000,"maxValue":4000000000,"currencyType":360,"display":"Rp 4 Miliar","offer":4000000000,"unitType":0,"subDisplay":""},"location":{"uuid":"","level":0,"name":"","locationType":0,"text":""},"subtitle":"","url":"\/perumahan-baru\/properti\/bandung\/podomoro-park-bandung\/tanaya\/hos15132\/"},{"title":"Askara","description":"[\"Pondasi : Tiang Pancang \",\"Struktur : Beton Bertulang \",\"Dinding : Bata Plester Aci \",\"Penutup Atap : Genteng Bitumen \",\"Daya Listirk : 4400 VA\"]","uuid":"77c9ac51-0836-4530-9774-2fb6c80aa94e","medias":[{"mediaType":"REGULAR","mediaInfo":[{"mediaUrl":"https:\/\/pic.rumah123.com\/r123\/1080x720-fit\/primary_property\/project\/1697\/1623052109_162305210960bdcf4d6617aads_images_5133.jpg","thumbnailUrl":"https:\/\/pic.rumah123.com\/r123\/250x160-fit\/primary_property\/project\/1697\/1623052109_162305210960bdcf4d6617aads_images_5133.jpg","formatUrl":"https:\/\/pic.rumah123.com\/r123\/{width}x{height}-{scale}\/primary_property\/project\/1697\/1623052109_162305210960bdcf4d6617aads_images_5133.jpg","order":1},{"mediaUrl":"https:\/\/pic.rumah123.com\/r123\/1080x720-fit\/primary_property\/project\/1697\/1668500433_166850043363734bd1539dfads_images_5133.jpg","thumbnailUrl":"https:\/\/pic.rumah123.com\/r123\/250x160-fit\/primary_property\/project\/1697\/1668500433_166850043363734bd1539dfads_images_5133.jpg","formatUrl":"https:\/\/pic.rumah123.com\/r123\/{width}x{height}-{scale}\/primary_property\/project\/1697\/1668500433_166850043363734bd1539dfads_images_5133.jpg","order":2},{"mediaUrl":"https:\/\/pic.rumah123.com\/r123\/1080x720-fit\/primary_property\/project\/1697\/1707012105_170701210565bef00993471ads_images_5133.jpg","thumbnailUrl":"https:\/\/pic.rumah123.com\/r123\/250x160-fit\/primary_property\/project\/1697\/1707012105_170701210565bef00993471ads_images_5133.jpg","formatUrl":"https:\/\/pic.rumah123.com\/r123\/{width}x{height}-{scale}\/primary_property\/project\/1697\/1707012105_170701210565bef00993471ads_images_5133.jpg","order":3},{"mediaUrl":"https:\/\/pic.rumah123.com\/r123\/1080x720-fit\/primary_property\/project\/1697\/1707012110_170701211065bef00def8f6ads_images_5133.jpg","thumbnailUrl":"https:\/\/pic.rumah123.com\/r123\/250x160-fit\/primary_property\/project\/1697\/1707012110_170701211065bef00def8f6ads_images_5133.jpg","formatUrl":"https:\/\/pic.rumah123.com\/r123\/{width}x{height}-{scale}\/primary_property\/project\/1697\/1707012110_170701211065bef00def8f6ads_images_5133.jpg","order":4},{"mediaUrl":"https:\/\/pic.rumah123.com\/r123\/1080x720-fit\/primary_property\/project\/1697\/1707012110_170701211065bef00e0fc6fads_images_5133.jpg","thumbnailUrl":"https:\/\/pic.rumah123.com\/r123\/250x160-fit\/primary_property\/project\/1697\/1707012110_170701211065bef00e0fc6fads_images_5133.jpg","formatUrl":"https:\/\/pic.rumah123.com\/r123\/{width}x{height}-{scale}\/primary_property\/project\/1697\/1707012110_170701211065bef00e0fc6fads_images_5133.jpg","order":5},{"mediaUrl":"https:\/\/picture.rumah123.com\/r123-images\/1080x720-fit\/customer\/1899233\/bf44172a1b9c0a1014609daa081e65cf.png","thumbnailUrl":"https:\/\/picture.rumah123.com\/r123-images\/250x160-fit\/customer\/1899233\/bf44172a1b9c0a1014609daa081e65cf.png","formatUrl":"https:\/\/picture.rumah123.com\/r123-images\/{width}x{height}-{scale}\/customer\/1899233\/bf44172a1b9c0a1014609daa081e65cf.png","order":6},{"mediaUrl":"https:\/\/picture.rumah123.com\/r123-images\/1080x720-fit\/customer\/1899233\/162da0f817fbb0bbc524c156a0cc273d.png","thumbnailUrl":"https:\/\/picture.rumah123.com\/r123-images\/250x160-fit\/customer\/1899233\/162da0f817fbb0bbc524c156a0cc273d.png","formatUrl":"https:\/\/picture.rumah123.com\/r123-images\/{width}x{height}-{scale}\/customer\/1899233\/162da0f817fbb0bbc524c156a0cc273d.png","order":7},{"mediaUrl":"https:\/\/picture.rumah123.com\/r123-images\/1080x720-fit\/customer\/1899233\/880c1bc5160225801d1c29a86ee01520.png","thumbnailUrl":"https:\/\/picture.rumah123.com\/r123-images\/250x160-fit\/customer\/1899233\/880c1bc5160225801d1c29a86ee01520.png","formatUrl":"https:\/\/picture.rumah123.com\/r123-images\/{width}x{height}-{scale}\/customer\/1899233\/880c1bc5160225801d1c29a86ee01520.png","order":8},{"mediaUrl":"https:\/\/picture.rumah123.com\/r123-images\/1080x720-fit\/customer\/1899233\/87113a8506db3eb6c7ddfa6d861b926a.png","thumbnailUrl":"https:\/\/picture.rumah123.com\/r123-images\/250x160-fit\/customer\/1899233\/87113a8506db3eb6c7ddfa6d861b926a.png","formatUrl":"https:\/\/picture.rumah123.com\/r123-images\/{width}x{height}-{scale}\/customer\/1899233\/87113a8506db3eb6c7ddfa6d861b926a.png","order":9},{"mediaUrl":"https:\/\/picture.rumah123.com\/r123-images\/1080x720-fit\/customer\/1899233\/689e62e10868c6fcd76237a73501762d.png","thumbnailUrl":"https:\/\/picture.rumah123.com\/r123-images\/250x160-fit\/customer\/1899233\/689e62e10868c6fcd76237a73501762d.png","formatUrl":"https:\/\/picture.rumah123.com\/r123-images\/{width}x{height}-{scale}\/customer\/1899233\/689e62e10868c6fcd76237a73501762d.png","order":10},{"mediaUrl":"https:\/\/picture.rumah123.com\/r123-images\/1080x720-fit\/customer\/1899233\/d7967f17a497e7ad4ff7ff7d3dd635c2.jpg","thumbnailUrl":"https:\/\/picture.rumah123.com\/r123-images\/250x160-fit\/customer\/1899233\/d7967f17a497e7ad4ff7ff7d3dd635c2.jpg","formatUrl":"https:\/\/picture.rumah123.com\/r123-images\/{width}x{height}-{scale}\/customer\/1899233\/d7967f17a497e7ad4ff7ff7d3dd635c2.jpg","order":11}]},{"mediaType":"SITEPLAN","mediaInfo":[{"mediaUrl":"https:\/\/pic.rumah123.com\/r123\/1080x720-fit\/primary_property\/project\/1697\/1623052123_60bdcf5b73266floorplan_5133.jpg","thumbnailUrl":"https:\/\/pic.rumah123.com\/r123\/250x160-fit\/primary_property\/project\/1697\/1623052123_60bdcf5b73266floorplan_5133.jpg","formatUrl":"https:\/\/pic.rumah123.com\/r123\/{width}x{height}-{scale}\/primary_property\/project\/1697\/1623052123_60bdcf5b73266floorplan_5133.jpg","order":0}]},{"mediaType":"COVER","mediaInfo":[{"mediaUrl":"https:\/\/pic.rumah123.com\/r123\/1080x720-fit\/primary_property\/project\/1697\/1707011805_170701180565beeeddd36d5ads_images_5133.jpg","thumbnailUrl":"https:\/\/pic.rumah123.com\/r123\/250x160-fit\/primary_property\/project\/1697\/1707011805_170701180565beeeddd36d5ads_images_5133.jpg","formatUrl":"https:\/\/pic.rumah123.com\/r123\/{width}x{height}-{scale}\/primary_property\/project\/1697\/1707011805_170701180565beeeddd36d5ads_images_5133.jpg","order":0}]}],"attributes":{"landSize":{"name":"landSize","label":"Luas Tanah","value":"176","formattedValue":"176 m\u00b2"},"buildingSize":{"name":"buildingSize","label":"Luas Bangunan","value":"172","formattedValue":"172 m\u00b2"},"bedrooms":{"name":"bedrooms","label":"Kamar","value":"4","formattedValue":"4"},"bathrooms":{"name":"bathrooms","label":"Kamar Mandi","value":"3","formattedValue":"3"},"carports":null},"propertyType":{"name":"propertyType","label":"Tipe Properti","value":"0","formattedValue":"Rumah"},"price":{"minValue":5000000000,"maxValue":5000000000,"currencyType":360,"display":"Rp 5 Miliar","offer":5000000000,"unitType":0,"subDisplay":""},"location":{"uuid":"","level":0,"name":"","locationType":0,"text":""},"subtitle":"","url":"\/perumahan-baru\/properti\/bandung\/podomoro-park-bandung\/askara\/hos25133\/"},{"title":"Sagara","description":"[\"Pondasi : Tiang Pancang \",\" Struktur : Beton Bertulang \",\"Dinding : Bata Plester Aci \",\"Penutup Atap : Genteng Bitumen \",\"Daya Listirk : 4400 VA\"]","uuid":"b7fb55b7-8995-429a-9b74-2c3922f83439","medias":[{"mediaType":"SITEPLAN","mediaInfo":[{"mediaUrl":"https:\/\/pic.rumah123.com\/r123\/1080x720-fit\/primary_property\/project\/1697\/1623052321_60bdd021ae9e0floorplan_5134.jpg","thumbnailUrl":"https:\/\/pic.rumah123.com\/r123\/250x160-fit\/primary_property\/project\/1697\/1623052321_60bdd021ae9e0floorplan_5134.jpg","formatUrl":"https:\/\/pic.rumah123.com\/r123\/{width}x{height}-{scale}\/primary_property\/project\/1697\/1623052321_60bdd021ae9e0floorplan_5134.jpg","order":0}]},{"mediaType":"COVER","mediaInfo":[{"mediaUrl":"https:\/\/picture.rumah123.com\/r123-images\/1080x720-fit\/customer\/4419385\/c5349825fa3c4ecd6a2c0427ee5c3a95.png","thumbnailUrl":"https:\/\/picture.rumah123.com\/r123-images\/250x160-fit\/customer\/4419385\/c5349825fa3c4ecd6a2c0427ee5c3a95.png","formatUrl":"https:\/\/picture.rumah123.com\/r123-images\/{width}x{height}-{scale}\/customer\/4419385\/c5349825fa3c4ecd6a2c0427ee5c3a95.png","order":0}]},{"mediaType":"REGULAR","mediaInfo":[{"mediaUrl":"https:\/\/pic.rumah123.com\/r123\/1080x720-fit\/primary_property\/project\/1697\/1623052301_162305230160bdd00d6da7eads_images_5134.jpg","thumbnailUrl":"https:\/\/pic.rumah123.com\/r123\/250x160-fit\/primary_property\/project\/1697\/1623052301_162305230160bdd00d6da7eads_images_5134.jpg","formatUrl":"https:\/\/pic.rumah123.com\/r123\/{width}x{height}-{scale}\/primary_property\/project\/1697\/1623052301_162305230160bdd00d6da7eads_images_5134.jpg","order":1},{"mediaUrl":"https:\/\/pic.rumah123.com\/r123\/1080x720-fit\/primary_property\/project\/1697\/1707012134_170701213465bef026c1e11ads_images_5134.jpg","thumbnailUrl":"https:\/\/pic.rumah123.com\/r123\/250x160-fit\/primary_property\/project\/1697\/1707012134_170701213465bef026c1e11ads_images_5134.jpg","formatUrl":"https:\/\/pic.rumah123.com\/r123\/{width}x{height}-{scale}\/primary_property\/project\/1697\/1707012134_170701213465bef026c1e11ads_images_5134.jpg","order":2},{"mediaUrl":"https:\/\/pic.rumah123.com\/r123\/1080x720-fit\/primary_property\/project\/1697\/1707012139_170701213965bef02b7b241ads_images_5134.jpg","thumbnailUrl":"https:\/\/pic.rumah123.com\/r123\/250x160-fit\/primary_property\/project\/1697\/1707012139_170701213965bef02b7b241ads_images_5134.jpg","formatUrl":"https:\/\/pic.rumah123.com\/r123\/{width}x{height}-{scale}\/primary_property\/project\/1697\/1707012139_170701213965bef02b7b241ads_images_5134.jpg","order":3},{"mediaUrl":"https:\/\/pic.rumah123.com\/r123\/1080x720-fit\/primary_property\/project\/1697\/1707012139_170701213965bef02b8fd74ads_images_5134.jpg","thumbnailUrl":"https:\/\/pic.rumah123.com\/r123\/250x160-fit\/primary_property\/project\/1697\/1707012139_170701213965bef02b8fd74ads_images_5134.jpg","formatUrl":"https:\/\/pic.rumah123.com\/r123\/{width}x{height}-{scale}\/primary_property\/project\/1697\/1707012139_170701213965bef02b8fd74ads_images_5134.jpg","order":4},{"mediaUrl":"https:\/\/picture.rumah123.com\/r123-images\/1080x720-fit\/customer\/1899233\/bf44172a1b9c0a1014609daa081e65cf.png","thumbnailUrl":"https:\/\/picture.rumah123.com\/r123-images\/250x160-fit\/customer\/1899233\/bf44172a1b9c0a1014609daa081e65cf.png","formatUrl":"https:\/\/picture.rumah123.com\/r123-images\/{width}x{height}-{scale}\/customer\/1899233\/bf44172a1b9c0a1014609daa081e65cf.png","order":5},{"mediaUrl":"https:\/\/picture.rumah123.com\/r123-images\/1080x720-fit\/customer\/1899233\/162da0f817fbb0bbc524c156a0cc273d.png","thumbnailUrl":"https:\/\/picture.rumah123.com\/r123-images\/250x160-fit\/customer\/1899233\/162da0f817fbb0bbc524c156a0cc273d.png","formatUrl":"https:\/\/picture.rumah123.com\/r123-images\/{width}x{height}-{scale}\/customer\/1899233\/162da0f817fbb0bbc524c156a0cc273d.png","order":6},{"mediaUrl":"https:\/\/picture.rumah123.com\/r123-images\/1080x720-fit\/customer\/1899233\/880c1bc5160225801d1c29a86ee01520.png","thumbnailUrl":"https:\/\/picture.rumah123.com\/r123-images\/250x160-fit\/customer\/1899233\/880c1bc5160225801d1c29a86ee01520.png","formatUrl":"https:\/\/picture.rumah123.com\/r123-images\/{width}x{height}-{scale}\/customer\/1899233\/880c1bc5160225801d1c29a86ee01520.png","order":7},{"mediaUrl":"https:\/\/picture.rumah123.com\/r123-images\/1080x720-fit\/customer\/1899233\/87113a8506db3eb6c7ddfa6d861b926a.png","thumbnailUrl":"https:\/\/picture.rumah123.com\/r123-images\/250x160-fit\/customer\/1899233\/87113a8506db3eb6c7ddfa6d861b926a.png","formatUrl":"https:\/\/picture.rumah123.com\/r123-images\/{width}x{height}-{scale}\/customer\/1899233\/87113a8506db3eb6c7ddfa6d861b926a.png","order":8},{"mediaUrl":"https:\/\/picture.rumah123.com\/r123-images\/1080x720-fit\/customer\/1899233\/689e62e10868c6fcd76237a73501762d.png","thumbnailUrl":"https:\/\/picture.rumah123.com\/r123-images\/250x160-fit\/customer\/1899233\/689e62e10868c6fcd76237a73501762d.png","formatUrl":"https:\/\/picture.rumah123.com\/r123-images\/{width}x{height}-{scale}\/customer\/1899233\/689e62e10868c6fcd76237a73501762d.png","order":9},{"mediaUrl":"https:\/\/picture.rumah123.com\/r123-images\/1080x720-fit\/customer\/1899233\/d7967f17a497e7ad4ff7ff7d3dd635c2.jpg","thumbnailUrl":"https:\/\/picture.rumah123.com\/r123-images\/250x160-fit\/customer\/1899233\/d7967f17a497e7ad4ff7ff7d3dd635c2.jpg","formatUrl":"https:\/\/picture.rumah123.com\/r123-images\/{width}x{height}-{scale}\/customer\/1899233\/d7967f17a497e7ad4ff7ff7d3dd635c2.jpg","order":10}]}],"attributes":{"landSize":{"name":"landSize","label":"Luas Tanah","value":"198","formattedValue":"198 m\u00b2"},"buildingSize":{"name":"buildingSize","label":"Luas Bangunan","value":"230","formattedValue":"230 m\u00b2"},"bedrooms":{"name":"bedrooms","label":"Kamar","value":"4","formattedValue":"4"},"bathrooms":{"name":"bathrooms","label":"Kamar Mandi","value":"3","formattedValue":"3"},"carports":null},"propertyType":{"name":"propertyType","label":"Tipe Properti","value":"0","formattedValue":"Rumah"},"price":{"minValue":8000000000,"maxValue":8000000000,"currencyType":360,"display":"Rp 8 Miliar","offer":8000000000,"unitType":0,"subDisplay":""},"location":{"uuid":"","level":0,"name":"","locationType":0,"text":""},"subtitle":"","url":"\/perumahan-baru\/properti\/bandung\/podomoro-park-bandung\/sagara\/hos35134\/"},{"title":"Nawasena","description":"PONDASI : TIANG PANCANG \nDINDING : BATA PLESTER ACI \nLANTAI : KERAMIK","uuid":"4e212cac-c0c8-4de0-b4e8-95277cde500f","medias":[{"mediaType":"COVER","mediaInfo":[{"mediaUrl":"https:\/\/picture.rumah123.com\/r123-images\/1080x720-fit\/customer\/1899233\/1e473c811e9c921f19d2e758306bea0a.jpg","thumbnailUrl":"https:\/\/picture.rumah123.com\/r123-images\/250x160-fit\/customer\/1899233\/1e473c811e9c921f19d2e758306bea0a.jpg","formatUrl":"https:\/\/picture.rumah123.com\/r123-images\/{width}x{height}-{scale}\/customer\/1899233\/1e473c811e9c921f19d2e758306bea0a.jpg","order":0}]},{"mediaType":"REGULAR","mediaInfo":[{"mediaUrl":"https:\/\/picture.rumah123.com\/r123-images\/1080x720-fit\/customer\/1899233\/11a7756185450b431534b658abb427d5.jpg","thumbnailUrl":"https:\/\/picture.rumah123.com\/r123-images\/250x160-fit\/customer\/1899233\/11a7756185450b431534b658abb427d5.jpg","formatUrl":"https:\/\/picture.rumah123.com\/r123-images\/{width}x{height}-{scale}\/customer\/1899233\/11a7756185450b431534b658abb427d5.jpg","order":1}]},{"mediaType":"SITEPLAN","mediaInfo":[{"mediaUrl":"https:\/\/picture.rumah123.com\/r123-images\/1080x720-fit\/customer\/1899233\/41eeb7709f871a1d4c807b838567c5de.png","thumbnailUrl":"https:\/\/picture.rumah123.com\/r123-images\/250x160-fit\/customer\/1899233\/41eeb7709f871a1d4c807b838567c5de.png","formatUrl":"https:\/\/picture.rumah123.com\/r123-images\/{width}x{height}-{scale}\/customer\/1899233\/41eeb7709f871a1d4c807b838567c5de.png","order":0}]}],"attributes":{"landSize":{"name":"landSize","label":"Luas Tanah","value":"100","formattedValue":"100 m\u00b2"},"buildingSize":{"name":"buildingSize","label":"Luas Bangunan","value":"133","formattedValue":"133 m\u00b2"},"bedrooms":{"name":"bedrooms","label":"Kamar","value":"3","formattedValue":"3"},"bathrooms":{"name":"bathrooms","label":"Kamar Mandi","value":"3","formattedValue":"3"},"carports":null},"propertyType":{"name":"propertyType","label":"Tipe Properti","value":"0","formattedValue":"Rumah"},"price":{"minValue":2800000000,"maxValue":2800000000,"currencyType":360,"display":"Rp 2,8 Miliar","offer":2800000000,"unitType":0,"subDisplay":""},"location":{"uuid":"","level":0,"name":"","locationType":0,"text":""},"subtitle":"","url":"\/perumahan-baru\/properti\/bandung\/podomoro-park-bandung\/nawasena\/hos3100267\/"}]},{"name":"Naragriya","properties":[{"title":"Student House","description":"","uuid":"9bd1cdc6-f09e-476e-a672-6cb1c79fa89d","medias":[{"mediaType":"COVER","mediaInfo":[{"mediaUrl":"https:\/\/picture.rumah123.com\/r123-images\/1080x720-fit\/customer\/4419385\/dee7af3c1afa419dfd17ef8f6661d75a.jpg","thumbnailUrl":"https:\/\/picture.rumah123.com\/r123-images\/250x160-fit\/customer\/4419385\/dee7af3c1afa419dfd17ef8f6661d75a.jpg","formatUrl":"https:\/\/picture.rumah123.com\/r123-images\/{width}x{height}-{scale}\/customer\/4419385\/dee7af3c1afa419dfd17ef8f6661d75a.jpg","order":0}]},{"mediaType":"REGULAR","mediaInfo":[{"mediaUrl":"https:\/\/picture.rumah123.com\/r123-images\/1080x720-fit\/customer\/543233\/2024-07-26-12-39-17-31213f54-9cb6-43f7-8fe7-35c11c9896b1.jpg","thumbnailUrl":"https:\/\/picture.rumah123.com\/r123-images\/250x160-fit\/customer\/543233\/2024-07-26-12-39-17-31213f54-9cb6-43f7-8fe7-35c11c9896b1.jpg","formatUrl":"https:\/\/picture.rumah123.com\/r123-images\/{width}x{height}-{scale}\/customer\/543233\/2024-07-26-12-39-17-31213f54-9cb6-43f7-8fe7-35c11c9896b1.jpg","order":1},{"mediaUrl":"https:\/\/picture.rumah123.com\/r123-images\/1080x720-fit\/customer\/543233\/2024-07-26-12-39-59-e75901dc-8a23-42ee-898c-50d43bcd9d7a.jpg","thumbnailUrl":"https:\/\/picture.rumah123.com\/r123-images\/250x160-fit\/customer\/543233\/2024-07-26-12-39-59-e75901dc-8a23-42ee-898c-50d43bcd9d7a.jpg","formatUrl":"https:\/\/picture.rumah123.com\/r123-images\/{width}x{height}-{scale}\/customer\/543233\/2024-07-26-12-39-59-e75901dc-8a23-42ee-898c-50d43bcd9d7a.jpg","order":2}]},{"mediaType":"SITEPLAN","mediaInfo":[{"mediaUrl":"https:\/\/picture.rumah123.com\/r123-images\/1080x720-fit\/customer\/543233\/2024-07-26-12-40-20-5d3d13e5-8112-4aa9-b499-45c1fff9738c.jpg","thumbnailUrl":"https:\/\/picture.rumah123.com\/r123-images\/250x160-fit\/customer\/543233\/2024-07-26-12-40-20-5d3d13e5-8112-4aa9-b499-45c1fff9738c.jpg","formatUrl":"https:\/\/picture.rumah123.com\/r123-images\/{width}x{height}-{scale}\/customer\/543233\/2024-07-26-12-40-20-5d3d13e5-8112-4aa9-b499-45c1fff9738c.jpg","order":0}]}],"attributes":{"landSize":{"name":"landSize","label":"Luas Tanah","value":"70","formattedValue":"70 m\u00b2"},"buildingSize":{"name":"buildingSize","label":"Luas Bangunan","value":"146","formattedValue":"146 m\u00b2"},"bedrooms":{"name":"bedrooms","label":"Kamar","value":"10","formattedValue":"10"},"bathrooms":{"name":"bathrooms","label":"Kamar Mandi","value":"3","formattedValue":"3"},"carports":null},"propertyType":{"name":"propertyType","label":"Tipe Properti","value":"0","formattedValue":"Rumah"},"price":{"minValue":2300000000,"maxValue":2300000000,"currencyType":360,"display":"Rp 2,3 Miliar","offer":2300000000,"unitType":0,"subDisplay":""},"location":{"uuid":"","level":0,"name":"","locationType":0,"text":""},"subtitle":"","url":"\/perumahan-baru\/properti\/bandung\/podomoro-park-bandung\/student-house\/hos08957\/"}]}]},"url":"\/perumahan-baru\/properti\/bandung\/podomoro-park-bandung\/nps1697\/"}]}}},"strapi":null,"baseUrl":"https:\/\/www.rumah123.com"}
Dari bagian depannya, kita sudah bisa melihat rumahnya memiliki nuansa warna krem dan abu-abu, dengan penggunaan material alami.
Lantaran temboknya terkesan tebal dan jendelanya lebar, rumah Sagara terlihat mewah dan megah.
Saat tinggal di rumah ini, Anda bisa mendapatkan kebanggaan tersendiri.
Desain Rumah Mewah 2 Lantai di Casa Valli

Casa Valli merupakan rumah di Bintaro yang mengusung konsep tropical green living.
Hal tersebut terlihat dari banyaknya tanaman hijau di depan rumah dan di area perumahannya.
Kemewahan dari rumahnya sudah terlihat dari bagian depan, karena penggunaan kusen jendela yang terkesan tebal, dan bagian depan atap yang membentuk segitiga.
Di dalam rumahnya, kemewahan juga tercipta karena perpaduan material lantai bermotif kayu dengan dinding yang bersih.
Casa Valli merupakan rumah mewah 2 lantai. Jadi, Anda bisa menempatinya bersama 3-4 orang anggota keluarga lainnya.
Desain Rumah Mewah di Green Bamboo Terrace

Kolaborasi antara developer Indonesia dan Jepang ini menghasilkan rumah berkonsep Jepang yang mewah sekaligus menenangkan.
Dari bagian depan huniannya, kita bisa melihat perpaduan cantik antara material kayu dengan tembok berwarna terang dan kusen berwarna cokelat gelap.
Kesan alami semakin terasa karena ada beberapa pohon yang ditempatkan di halaman rumah Green Bamboo Terrace.
Saat masuk ke dalam rumahnya, Anda juga bisa merasakan tinggal di rumah dengan interior yang syahdu.
Ya, rumah Jepang biasanya memang mengutamakan keseimbangan antara unsur modern dan unsur alam, dengan tujuan membawa ketenangan bagi penghuninya.
Desain Rumah Minimalis Modern-Kemang Huis Townhouse

Foto desain perumahan mewah: kemanghuis
Kebanyakan orang berpikir, bahwa desain minimalis hanya diperuntukkan bagi rumah berdesain sederhana.
Belum tentu, lho!
Banyak juga desain perumahan mewah yang menggunakan gaya arsitektur minimalis modern, seperti Kemang Huis Townhouse.
Sesuai dengan namanya, perumahan ini terletak di kawasan Kemang, Jakarta Selatan. Sudah tahu ‘kan, bahwa kawasan Kemang menjadi salah satu kawasan elit di Jakarta?
Sekedar informasi, perumahan minimalis mewah ini bisa dibilang menjadi representasi tempat tinggal yang nyaman bagi keluarga.
Hal ini bukan tanpa alasan, lingkungan rumahnya terlihat asri dengan berbagai tanaman rimbun yang menyegarkan.
Kemudian, dari fasadnya Anda akan merasakan atmosfer kehangatan lewat perpaduan warna cokelat dan abu-abu yang mewah.
Pemaksimalan jendela besar membuat hunian ini lebih hemat energi, karena cahaya alami yang masuk ke dalam rumah jadi lebih besar.
Sedangkan untuk interiornya, semua dinding rumah dijual di Jakarta Selatan ini dipenuhi oleh material kayu. Namun untuk lantainya, desainer interior memilih lantai marmer untuk memperkuat kesan mewah.
Desain Kontemporer-Grand Duta City

Foto: granddutacity
Di Kota Bekasi, ada satu perumahan mewah yang menerapkan desain bangunan kontemporer, yakni East Manhattan di Grand Duta City.
Didesain langsung oleh arsitektur kenamaan Ferry Ridwan, hunian ini menerapkan konsep rumah kontemporer yang dikombinasikan dengan lingkungan hijau yang modern.
Konsep desain terbarukan ini benar-benar terasa dari penerapan fitur atau ciri khasnya, mulai dari penggunaan kaca besar, fasad berwarna abu-abu, sentuhan kayu, hingga bentuk kotaknya.
Mengusung rumah mewah yang compact, East Manhattan mampu mengakomodasi semua kebutuhan keluarga seperti bekerja, bermain, dan berkumpul dalam satu tempat.
Selain itu, setiap sudut ruangan dimanfaatkan sebagai ruang penyimpanan ekstrak yang banyak dan luas.
Gaya Rumah Mewah Art Deco-Shila at Sawangan

Foto desain perumahan mewah: Shila Sawangan
Gaya klasik memang tidak terlepas dari karakteristik perumahan mewah, seperti berbagai unit rumah di Shila at Sawangan.
Mengusung konsep rumah art deco atau bisa biasa disebut desain dengan kebebasan tinggi, hunian satu ini wajib banget Anda lirik.
Ciri khas desain tersebut dapat dengan mudah dikenali lewat tampilan fasadnya yang melengkung, serta transisi ketinggian dari bangunan.
Salah satu tipenya, The Courtyard, dibangun dengan desain yang unik. Terdiri dari dua struktur bangunan dan taman pribadi di tengahnya, posisi bangunannnya terlihat langka namun fungsional.

Foto: Shila Sawangan
Terlihat jelas pada denah rumah mewah di atas, yang mana hunian tersebut memiliki tiga kamar tidur dan empat kamar mandi.
Berbeda dengan tampilan luarnya yang art deco, desain interior rumah lebih bergaya perumahan minimalis mewah dengan Japanese style.
Dan antara ruang depan hingga area utama, dipisahkan oleh inner courtyard atau taman tengah rumah.
Desain Rumah Modern Tropical-Toba Lake Villas
Foto desain perumahan mewah: getsarchitects
Perumahan mewah selanjutnya yang banyak menghadirkan desain hunian berbeda dan menawan, ialah Jakarta Garden City.
Lewat proyek hunian megahnya, pengembang perumahan ini memperkenalkan Toba Lake Villas at Asya di Cakung, Jakarta Timur.
Bukan sembarang rumah, Toba Lake Villas merupakan township elit yang dibanderol seharga Rp8-23 miliar.
Hunian mewah satu ini menonjolkan gaya arsitektur tropis modern, yang berpadu dengan lingkungan hijau serta pemandangan langsung ke danau seluas 15 ha.

Foto desain perumahan mewah: asya-jgc
Unsur-unsur rumah tropis modern dapat begitu terasa dari penerapan high ceiling yang tingginya berkisar 5-7 meter.
Lalu penggunaan jendela yang lebar ampuh menghadirkan cahaya alami ke dalam ruangan, serta membuat rumah menjadi lebih terang.
Agar ruangan terlihat besar, penerapan konsep open space bisa dilakukan dengan menggabungkan area ruang keluarga, ruang makan, dan dapur tanpa sekat.
Toba Lake Villas Asya menghadirkan hunian kekinian tiga lantai, yang dipadukan dengan keharmonisan alam nan asri di tepi danau.
Toba Lake Villa sebagai cluster termewah juga dilengkapi club house yang siap memanjakan penghuninya. Fasilitas perumahan tersebut antara lain swimming pool, children playground, gymnasium, dan multifunction room.
Sedangkan fasilitas penunjang lainnya, tersedia keamanan 24 jam, CCTV, access card, hingga smart home with panic button.
Kesimpulan Mengenai Desain Perumahan Mewah
Dari inspirasi desain perumahan mewah di atas, ada beberapa aspek yang mesti Anda perhatikan ketika merancang hunian.
Beberapa aspek itu di antaranya adalah material yang dipilih hingga fasilitas yang tersedia.
Untuk material, Anda bisa memilih marmer, kayu keras, dan kaca untuk menciptakan kesan mewah.
Sementara untuk fasilitas, Anda dapat menggunakan fitur smart home system agar memudahkan aktivitas di dalam hunian.
Jangan lupa juga untuk menempatkan taman hijau agar desain huniannya semakin cantik.
Jadi, sudah mendapatkan inspirasi desain perumahan mewah?
Jika belum, Anda bisa melihat rumah mewah di kawasan elite, seperti rumah di Pondok Indah atau Kota Baru Parahyangan.
Punya pertanyaan seputar properti? Yuk, Tanya Rumah123 di sini!